176 Stuart Shores Listing Book

Page 1

1 7
T U A R T S H O R E S R O A D S T A N D I S H , M A I N E
6 S

Property Feautures + Location

Community Highlights + Local Spots

Demographics + Housing Stats

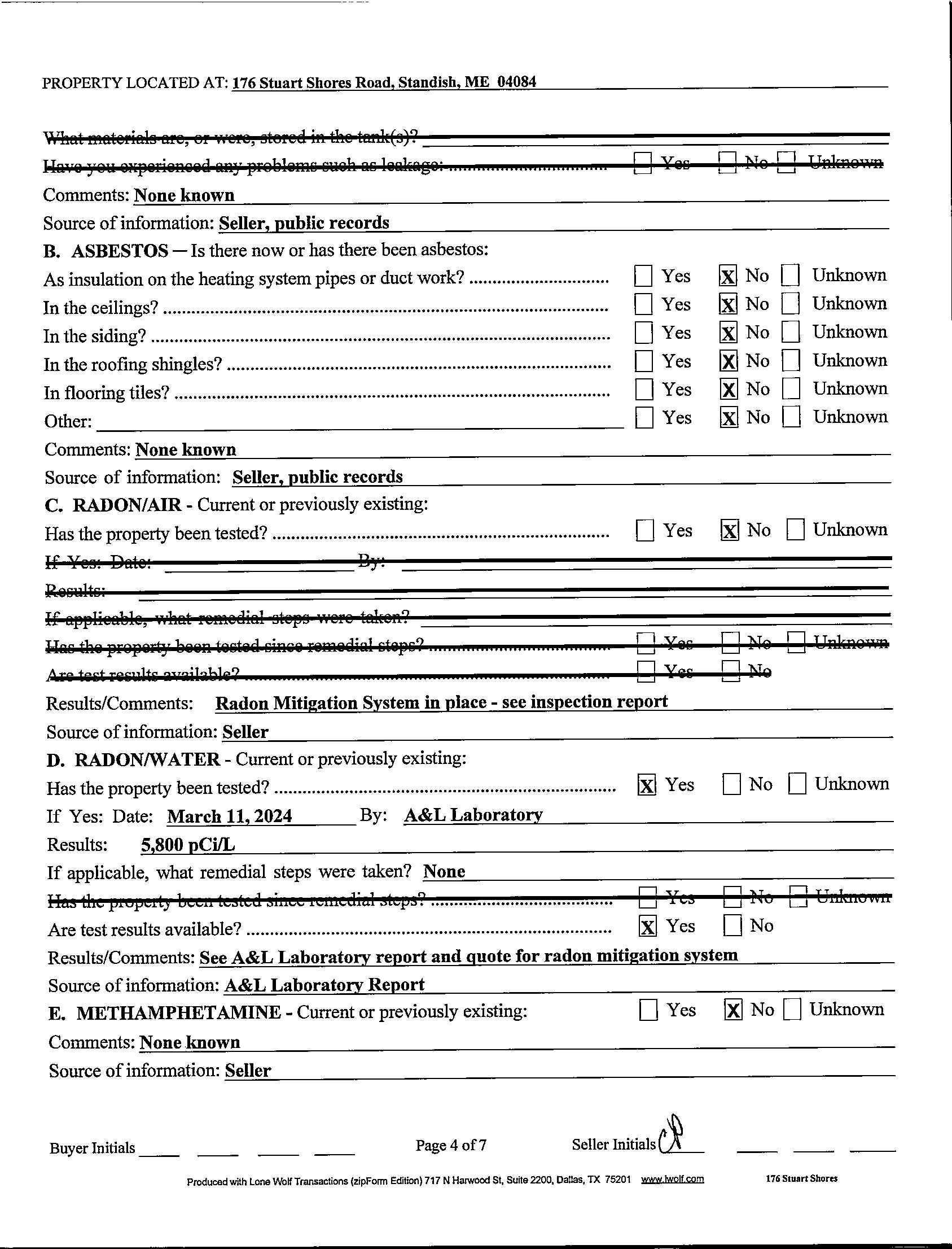
Property Disclosures, Deed, Inspection Reports

About This Home
02 03 04 05 06 C O N T E N T S T a b l e o f

HOME About this

This spectacular lake home offers the perfect blend of comfort and style, with an open floor plan on the first floor ideal for entertaining The floor-to-ceiling windows provide stunning, unobstructed views of Sebago Lake and Lindsay Island, creating a serene and inviting atmosphere. Step out onto the first-floor balcony for private, sweeping vistas of the basin.

The large primary bedroom is designed with multiple closets for ample storage, and the primary bath features a large soaking tub and private balcony, perfect for enjoying your morning cup of coffee while taking in the beautiful surroundings. Every room in this home is graced with water views, ensuring a tranquil and picturesque setting throughout

The fully finished basement adds to the home's versatility, offering a kitchenette, a spacious living room, an additional bedroom, and a full bathroom, making it ideal for guests or extended family stays. Outdoor living is at its finest here, with multiple seating areas to relax and soak in the peace and quiet of the Maine outdoors The large dock invites you to take an afternoon swim or tie up your kayaks after a day of exploring the lake. Enjoy the soothing sounds of loons and other local wildlife as you unwind in this natural haven, while remaining close to all the recreation Sebago Lake has to offer.

02
176 Stuart Shores

FEATURES Property

WHY I LOVE THIS HOME -

3 Bedrooms

3 Bathrooms Lake frontage

LOCATION

Nestled in the picturesque landscapes of Cumberland County, Standish, Maine, offers a charming blend of small-town charm and natural beauty With its rich history dating back to the early 18th century, Standish boasts a vibrant community that values tradition while embracing modernity. Surrounded by serene lakes and lush forests, outdoor enthusiasts revel in endless opportunities for hiking, fishing, and boating The town's quaint downtown area is adorned with historic architecture, local shops, and cozy cafes, fostering a sense of unity among residents and visitors alike. With a strong emphasis on education, Standish is home to reputable schools and institutions, nurturing the growth and development of its youth Whether strolling through its scenic parks, attending community events, or simply enjoying the tranquility of its surroundings, Standish warmly welcomes all to experience its unique charm and hospitality

03
S p a c i o u s l a y o u t O p e n c o n c e p t l i v i n g a r e a N a t u r a l l i g h t t h r o u g h o u t w i t h l a k e v i e w s G e n e r o u s l y s i z e d b e d r o o m s P r i m a r y s u i t e w i t h e n s u i t e b a t h r o o m 2 p r i v a t e b a l c o n i e s

HIGHLIGHTSCommunity

Sebago Lake State Park

Explore the pristine beauty of Sebago Lake State Park, which offers a wide range of outdoor activities such as swimming, fishing, hiking, and picnicking. With its sandy beaches, scenic trails, and abundant wildlife, the park provides the perfect setting for a day of relaxation and adventure.

Point Sebago Golf Resort

This award-winning golf course offers 18 holes of championship golf set against the backdrop of Maine's natural beauty. Whether you're a seasoned golfer or a beginner, the course provides a challenging yet enjoyable experience for players of all skill levels.

Steep Falls Farmer’s Market

Experience the flavors of Maine by visiting local farm stands and markets in nearby Steep Falls. . From seasonal fruits and vegetables to handcrafted cheeses and preserves, there's something for everyone to enjoy

04

Demographics +

HOUSING STATS

Standish, Maine

POPULATION: 10,242

MEDIAN INCOME: $91,429

POPULATION DENSITY: 395.8

MEDIAN AGE: 41 YEARS

05

Turn static files into dynamic content formats.

Create a flipbook
Issuu converts static files into: digital portfolios, online yearbooks, online catalogs, digital photo albums and more. Sign up and create your flipbook.
176 Stuart Shores Listing Book by kailimoore - Issuu