Undergraduate Portfolio 2020-2025

Page 1


Hello!, I’m Kamini Choudhary, an undergraduate architecture student at NIT Calicut. strive to blend practicality with creativity in my designs, and I firmly believe that architecture is a powerful catalyst for change. With a deep commitment to sustainable and inclusive design, I hope to contribute to a future that is both inspiring and transformative.

Work Experience

Architecture Intern MALIK architecture

May 2023 - Nov 2023

Had the opportunity to learn Detail Drawings, GFS’s and Tender Drawings. Understood problem Solving in architecture, as well as communication skills

View full work portfolio here

Architecture Intern Nalin Goel and Associates

May 2022 - July 2022

First experience working on live project and introduction to 3D softwares.

Education

Bachelor of Architecture (B.Arch)

National Institute of Technology, Calicut

2020 - 2025 CGPA: 7.74/10

Schooling (ICSE Board)

J.H.Tarapore School, Dhatkidih

Primary Schooling

2018-2020

Secondary Schooling

2018-2020

Design Builder/Climate Studio

Leader | Team Surya Qualified till 2’nd last stage Solar Decathlon India ’25 Qualified under TOP 50 Core Team | Conceptual Designer

ICSE: 91%

ISC : 95%

Concept: EDUCATE . ENGAGE . EXPERIENCE

Set in the heart of Bangalore, our school building is designed to enhance learning, comfort, and sustainability. It maximizes natural light, improves ventilation, and uses thermal mass to reduce the need for conventional energy.

Selected Works Undergraduate (2020-2025)

Daylighting and Radiation Analysis for Thermal Comfort

Designing schools with health and well being in mind is essential for fostering a comfortable, safe and engaging learning environment.

From the graph in the bottom right, we can understand that all the iterations have HG=HL, but with further building optimization, the hg in the building reduces.

For further optimization of thermal comfort can be achieved by natural ventilation across the building.

Residential Weekend Villa

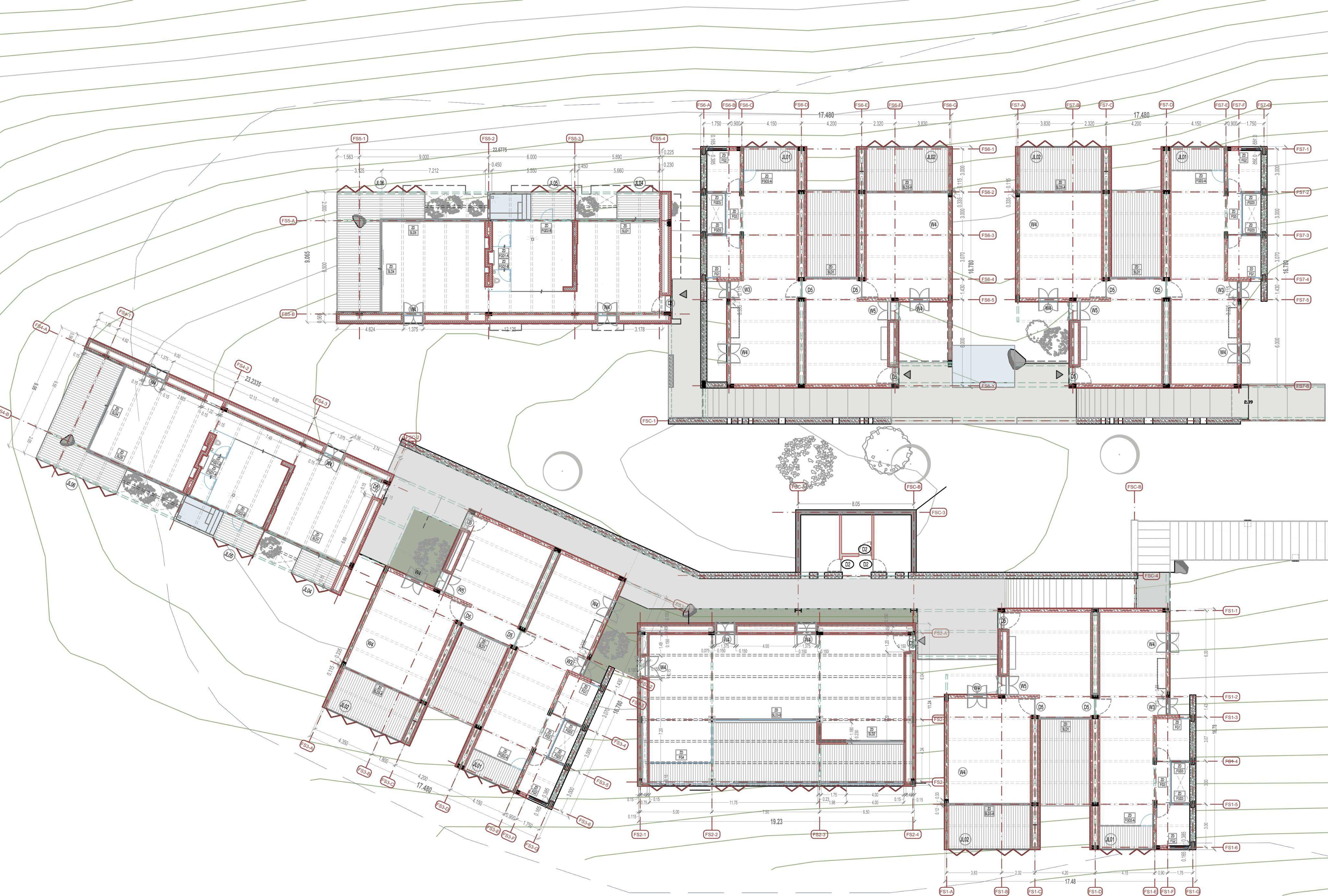
Internship project at Malik Architecture . The design responds to a steep hilltop site, using views and terrain to shape a residence with integrated communal spaces The design Features jack arches, steel, RCC, and stone cladding.

Key role included for GFC DRAWINGS SET.
 Drafting Sections, Elevations and Detail Drawings

Master Plan (Zone D)

SALIENT FEATURES:

ZONE D majorly deals with jack arches and innovative steal, RCC and stone cladding details and other such junction details to achieve a clean look

Coffered Roof Details

The pavilion is topped with a coffered roof, inspired by traditional temple architecture.

Its recessed panels add rhythm and depth, enhancing both aesthetics and acoustics of the space.

Film & Videography Institute

The State Institute of Design is a film and videography institute that prides itself on its unique concept of permaculture. The institute has been designed to blend seamlessly with its surroundings, providing an immersive learning environment for students.

Key learnings from the projects includes understanding and better grip of sustainable architecture.

Concept: GURUKUL

The Gurukul system of learning is an ancient Indian education system where scholars and their students lived together in an environment that prioritized discipline, learning, and personal development. The architecture is aimed at creating a sense of community, of being connected to one another, to the environment, and to the institution. This idea has been incorporated into the campus design of educational institutions to create an immersive and interactive learning environment that is inspiring, practical, and studentcentered.

NITC Commercial Complex

The project involved designing a commercial complex within the NITC campus for students and nearby residents. Centered around the concept of "fluidity," the design emphasizes flexible socio-spatial relationships, integrating various forces and functions seamlessly.

Key learnings from the projects includes understanding and working on . parametric architecture BIM software's

Concept: FLUIDITY

Architectural fluidity is a socio-spatial concept where social, material, and operational forces interact dynamically, staying in close proximity rather than fixed arrangements—much like states of matter.

Melkote Community Open Market Space

As part of ANDC’22, we documented a culturally significant heritage area, analyzing its challenges in depth. We developed context-sensitive design solutions aimed at revitalizing the space while preserving its identity.

My role was to understand the context via documentation and solve a problem via architecturefor the community.

The project is a viewpoint on Melukote’s western edge, designed to highlight its beauty and showcase local crafts. A replica of the Rayagopuram marks the entrance, symbolizing a microcosm of Melukote.

RAYAGOPURAM PILLERS

It comprises of a water body, representing the thousand-year-old stepwell and pillars from the Rayagopuram marking its entrance.

The pavilion has been designed by taking elements and features from the existing heritage examples of Melukote, namely the Kalyani and the Raya Gopuram

The mandapa has been designed with the intention of serving as a place of learning where the local traditional craft of basket weaving is taught to the tourists and pilgrims arriving and also acts as the commercial outlet for these small scale handicrafts.

SANCHALAM
MANDAPA

YAC’24

Museum Design

Another competitions, as part of student inter at Malik Architecture. Worked with a team of junior architects of the firm for the completion of the project and helped with the presentation of the same.

My role in the project was to into for better understanding of the project. convert the ideations and design process compelling graphical visuals

Urban Design Re- Develope Nashik

The vision aims to transform the riverfront into a resilient, multi-functional space with flood resilience, ecological stability, and cultural preservation.
 Objectives include improving connectivity, activating the riverfront, and addressing environmental concerns.

Key contribution was in the , analysis and design strategyconcept development.

Tp scheme III: Riverfront

Vision Statement

Reimagining Nashik as a River Centric, Livable city embracing it’s Culture and Environment.

The concept focuses on three key aspects: addressing flooding issues, ensuring connectivity, and optimizing zoning for community use. [ refer fig 1 and 2]

First, the site’s slope and drainage patterns were analyzed to develop strategies that mitigate surface runoff and waterlogging.

Second, connectivity to the surrounding areas was prioritized, aligning site access with the existing road network for seamless integration.

Finally, zoning was planned with a focus on balancing community accessibility and usability while addressing environmental concerns, ensuring a sustainable and functional design.

Fig 1: Existing Site Section
Fig 2: New Site Section
TPS III - Urban Greenfeild Development

Extra Projects Miscellaneous

Apart from architecture, i also have deep interested in graphic and digital designing . I specialize in UX, UI, branding, graphic design, and visual storytelling—bringing together strategy, creativity, and function. My process involves deep research, information architecture, wireframing, and visual interface design, all executed in agile and iterative workflows.

Jack of all Trades —through & through!

Logo Work Approach

I have independently developed a strong foundation in UX Design and Design Thinking, driven by a deep curiosity and a passion for solving complex problems through user-centered solutions.

I thrive in environments that challenge conventional thinking and demand innovative, practical outcomes.

My expertise spans across multiple disciplines— including UX and UI design, branding, graphic and visual design—which allows me to craft cohesive and engaging digital experiences.

Publication / Posters

Previous Clients :

Branding

THANK YOU

Kamini Choudhary
Linkedin Profile
Instagram Profile
Behance Profile

Turn static files into dynamic content formats.

Create a flipbook
Issuu converts static files into: digital portfolios, online yearbooks, online catalogs, digital photo albums and more. Sign up and create your flipbook.