Mixed-Use High-Rise Development

Page 1

MIXEDUSEBUILDING SUBMITTEDBY-JYOTISIKARWAR SEMESTER-6THSEM3RDYEAR BATCH-2019-2024

ARIHANTATRIA

APARTMENTBUILDINGINDHARWAD, KARNATAKA

ABOUTSITE

SiteAddress-81-A/3A,Saptapur2ndCross,NearIndiaPost,Dharwad, Karnataka580001

Climate-TropicalWetAndDryClimate

SITEArea-37038.50SQF(APROX)

Topography-FlatLand

Typology-ResidentialCommercial

SoilCondition-LateriticBrownishSandySoil

YearofConstruction2015

ArihantAtriaisaresidentialapartmentcomplexconsistingof68apartmentsin total,outofwhich49apartmentsare2BHK,8are2.5BHK7are3BHKand4 areDuplexapartments.The2BHKapartmentshave1-2balconies,the2.5BHK apartmentshave2balconies.Similarlythe3BHKhave2-3balconieswhereas theDuplexapartmentshave4-5balconies.Thisapartmentcomplexis27.8 metresinheightoverlookingtheTVtowerofDharwadandthemainroads.

FEATURES

•Everyapartmenthasitsownbalconyoverlookingoneoftheintersectingroads.

•Fortheresidentsintheseapartmentstheamenitiesprovidedincludeagrocery store,bank,pool,gym,banquethalletc

•Infrontofthemainentrancevisitor'sparkinghasbeenprovided.

•Thereisamajorsetbackonthefronttwosides,reasonbeingtheintersectionof Sarjapurmainroadwithanadjoining6metreroad.

•Alltheentertainmenthubsarenearby.

2BHKAPARTMENTS

(Total49available)

•1Masterbedroom

•1Kid'sbedroom

•Livingroom

•Diningroom

•KitchenwithUtility

•1-2balconies

•2Toilets(1attached)

Floorareavariesfrom 1200-1600Sqft

2.5BHKAPARTMENTS (Total8available)

•2Toilets(1attached)

Floorareavariesfrom 1400Sqft

3BHKAPARTMENTS

(Total7available)

•3Toilets(2attached)

Floorareavariesfrom 1500-1650Sqft

CASESTUDY SHEETNO. 01 MIXEDUSEBUILDING
FLOORPLAN
COMMERCIALSHOPSATTHE UPPERGROUNDFLOOR PARKINGENTRYTOLOWER GROUNDFLOOR SETBACKFROMTHEROAD
•1Masterbedroom •1-2Kid'sbedroom •Livingroom •Diningroom •KitchenwithUtility •2balconies
•2Masterbedroom •1Kid'sbedroom •Livingroom •Diningroom •KitchenwithUtility •1-2balconies
DUPLEXAPARTMENTS (Total4available) •2Masterbedroom •1Kid'sbedroom •Livingroom •Upperlivingforthefamily •Diningroom •KitchenwithUtility •4-5balconies •3Toilets(2attached) •Mezzanineflooroverlooking Dining Floorareavariesfrom 2300-2450Sqft LOWERGROUNDFLOORPLAN UPPERGROUNDFLOORPLAN SECONDFLOORPLAN FIRSTFLOORPLAN THIRDFLOORPLAN FOURTHFLOORPLAN EIGHTHFLOORPLAN SEVENTHFLOORPLAN FIFTHFLOORPLAN SIXTHFLOORPLAN Thelowergroundfloorfullfledgedwith commercialspacesrangingfrom270970 sqft. Thefourwheelershereaftercrossingthe maingateshallturntowardstheleftthrough thedrivewayto lowerlevelandthenbe parked. Aserviceliftand stairwayalsoprovided foreasyaccesstotheupperfloorsand likewisefromupperfloorstothebasement floors. Otherthanthese,twoseparatestairshave beenprovidedtoacce.theshopsfromthe roadlevel. Driveway Commercialcomplexes Liftsandstairways Pool Childrenplayarea BHKapartments OneDuplexapartment Passengerlift Servicelift Twostairways Totalnineapartments Eightapartments totalatthisfloor OneBHKapartmentRemainingare BHKapartments Ducts LiftsServiceliftPassengerlift Staircase Totalnineapartments OneBHKapartments OneDuplexapartment RemainingareBHKapart-ments Passengerlift&Servicelift Twostairways Mezzaninefloors •Eightapartmentsintotalatthis floorOneBHKapartment RemainingareBHKapartments •Sittingarea(Interactivespace) •LiftsServiceliftPassengerlift •Courtyard Totalnineapartments OneBHKapartments OneDuplexapartment RemainingareBHKapartments Mezzaninefloors Sittingarea Courtyard Eightapartmentsintotalatthis floorOneBHKapartment RemainingareBHKapartments Sittingarea(Interactivespace) Courtyard Totalnineapartments OneBHKapartments OneDuplexapartment RemainingareBHKapartments Passengerlift Servicelift Twostairways Mezzaninefloors •Eightapartmentsintotalatthisfloor •OneBHKapartment •RemainingareBHKapartments •Sittingarea(Interactivespace) •Mezzaninefloor •Courtyard •Grocerystore(RelianceFresh) facilityispro-videdattheupper groundfloorfortheapart-ment residentsaswellasforthelocal people. •AbankoutletoftheArihant franchisepro-videdatthis level. •Abakeryisalsoprovided. •Allthemultipurposehall functionsareheldouthere. Gymprovisionalsoprovided here. DUPLEXAPARTMENT(3BHK) 3BHKAPARTMENTTYPES Commercialcomplexes Liftsandstairways securitycabin Bank Multi-purposehall •visitor'sparking Gym AMENITIES AMENITIES PARKINGFACILITY MATERIALSPECIFICATIONS 2.5BHKAPARTMENTTYPES 2BHKAPARTMENTTYPES http://arihantinfra.co.in/ SUBMITTEDTO-AR.SUDHEERSINGHSIKARWAR,AR.NIKHILGOPALRAOWAKODE SUBMITTEDBY-JYOTISIKARWAR SEMESTER-6THSEM3RDYEAR

MIXEDUSEBUILDING

ARIHANTAURA MIXED-USEBUILDINGINTURBHE, NAVIMUMBAI

ABOUTSITE

SiteAddress-Thane-BelapurRd,TurbheMIDC,Turbhe,NaviMumbai,Maharashtra400705 Climate-TropicalWetAndDryClimate

SITEArea-4036466.41SQM(APROX)

Topography-FlatLand

Typology-Mixed-usebuilding

SoilCondition-LateriticBrownishSandySoil

YearofConstruction:2014

•Twoultra-moderntowers

•Tower1G+13&Tower2G+26

TOWERA

AMENITIES

•GrandLobbyEntrance

•ExclusiveEliteBanquetHalls

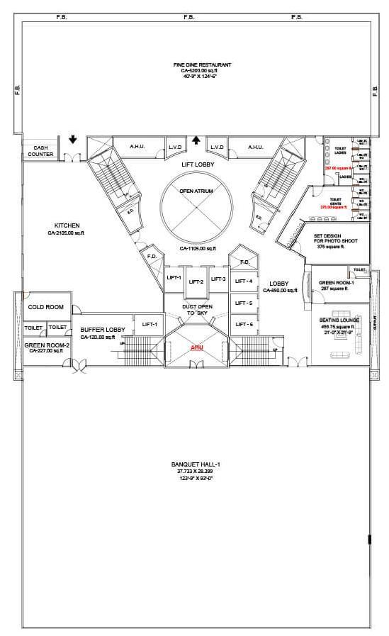
•FineDiningExperience

•IndoorFoodCourt

•TopnotchGymnasium

•ExoticSpa

•LuxuriousLoungeBar& BusinessCentre

•Separate&Dedicated GoodsLiftEntryfarLoading& Unloadingofmaterials

•FireAlarm&FireFighting Systems

•UltimateExtravagantLifestylewithG+13Floorscovered over174,425sq.ft.

•OfficeSpacesfrom5thfloorto13thfloorwiththepotential tobeconvertedintoServiceApartments

•CentrallyAirConditionedCommonArea

•AtriumStyleLobby

•DedicatedServiceFlooratLevel4forAC&Maintenance• Totalof6liftsand1dedicatedliftforGoods

3HighKoneSpeedElevatorsfromGroundto13thFloor; 3MitsubishiElevatorswithdedicatedentranceuptoLevel3

•Totalof4StaircaseswithLevel3having2dedicated Staircases TOWERB

•PremiumLuxuryandMagnificencewithG26Tower stretchedover203,060sq.ft.

•AestheticallyDesignedOfficesofferingChargeableSpace 007810sq.ft.withCarpetAreaof4800sq.ft.andUseable Areaofapproximately6035to6437sq.ft.

•Modestlysizedofficeswith1215sq.ft.and1475sq.ft.area

•DoubleGlazedFacadewithprominentvisibilityofNavi Mumbai&CentralMumbaiSkyline

•LargeLobby,OpenGallery&ServiceAreaperfloor

•4PassengerLiftsandOnededicatedServiceLift

•FloortoFloorHeightof3.6mwithElegantInteriorsand Columns

COMMERCIALSHOWROOM

•UpscaleCommercialSpacecoveringatotalareaofa 22,320sq.ft.

•OppositeTurbheRailwayStationontheThaneBelapur Road,NaviMumbai

•ClosetoIKEAnearbyRelianceCorporatePark&DAKC• DedicatedServicelift

FLOORPLANS

•2StaircaseswithFireSafety doors

•SeparateDuctsforfireand drainage

•DGPowerBackupfor CommonAreas

•FireEscapeBalcony

•FireSprinklersandSmoke detectorsoneachfloor

•AmpleCarParking

•WorldclassFireEscapeChute SystemforSafeEvacuation

•DedicatedSpaceforOutdoor

ACuniMeaneachfloor

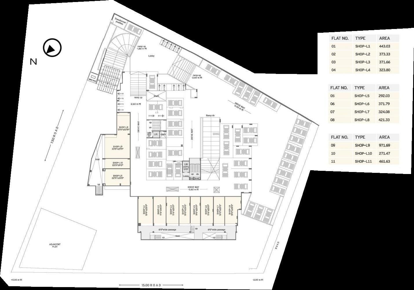
ARIHANTAURAABLOCK3RDFLOORPLAN ARIHANTAURAABLOCKTYPICAL FLOORPLAN4THFLOORPLAN ARIHANTAURAABLOCKFIRSTFLOORPLAN ARIHANTAURAABLOCKSECONDFLOORPLAN ARIHANTAURAABLOCKGROUNDFLOORPLAN ARIHANTAURAABLOCKTYPICALFLOORPLAN 5THTO13THFLOORPLAN ARIHANTAURA'B'BLOCKTYPICALFLOORPLAN 1THTO26THFLOORPLAN ARIHANTAURA'B'BLOCKGROUNDFLOORPLAN CASESTUDY SHEETNO. 02
SUBMITTEDTO-AR.SUDHEERSINGHSIKARWAR,AR.NIKHILGOPALRAOWAKODE SUBMITTEDBY-JYOTISIKARWAR SEMESTER-6THSEM3RDYEAR

ABOUTSITE

SITEADDRESS-RAILWAYSTATION,INFRONTOF,RACECOURSEROAD, GWALIOR,MADHYAPRADESH474002

CLIMATE-SUB-TROPICAL

SITEAREA-9900.00SQM(APROX)

TOMOGRAPHY-FLATLAND

TYPOLOGY-MIXEDUSE

SOILCONDITION-ALUVIALSOIL FAR-2.5

THESITEISACCESSIBLEFROMTWOSIDE

CLIMATE

Gwaliordistrictisinthecenterofthesurroundedarea,andismostlyflat. Althoughitssouthernpartissurroundedbyhills,abovesealevelisonlya fewhundredfeetheight.Gwaliorislocatedat26.22N78.18E Itisatanaverageelevationof197meters(646feet).

ClimateofGwaliorlivesonextremesinbothsummerandwinter.Summer usuallygetsveryhotandinGwaliorthewinterisverycold.Generallyrain inGwaliorisonlyinthemonthsofmonsoon.Mainlythenorth-western windsmove,thespeedofairinthecityofGwaliorisusually8kmperhour insummer,2kmperhourinwintertime.OctobertoMarchisthebest monthforarrivalinGwaliorcity.

Duringthesummermonths,theclimateofGwaliorisdominatedbythe heatandthelevelofhumidityalsoincreases.FromApriltoJuneofthe monthofApril,Gwaliorgets45to47degreecentigradetemperature. TheclimateofGwaliorisparticularlyhumidintheyear.Gwaliorhas300 averagetemperaturesinsummer.

Inthewinterseason,thetemperatureofGwaliorgoesupto2degrees Celsius.Inthewintermonths,theaverageminimumtemperatureis18.500 centigradeinGwalior.

DuetothegeographyofIndia,Gwaliorcityfallsintheshadowofrain. Consequently,thereisonly700mmaveragerainfallperyear,whichis almosthalftheaverageofothercitiesinthestate.Herethemonsoon startsfrommid-Juneandusuallycontinuestillmid-September.

CONNECTIVITY

CLIMATICCHARTS SITESURROUNDINGS

SITEPARAMETERS

AIRMOVEMENT CHALLENGES

TOPROVIDESENSEOFPURE

VENTILATIONTHROUGHOUTTHE BUILDINGANDENSURETHATIT SERVESTHEPURPOSEOFEACH PARTOFTHEBUILDING

WATERBODIES

CHALLENGES

TOLINKITWITHEACHPARTOF THEBUILDINGANDPROVIDEIN ANAPTPROPORTIONTOADD THRCOOLFACTORTOTHE BUILDING

LANDSCAPE CHALLENGES

TOPREVENTHEATGAINDURING SUMMERSANDMAXIMIZEHEAT GAINDURINGWINTERS.AND TOALSOPROVIDEAHABITAT FORTHENATIVESPECIESOF BIRDSOFTHEPLACE.

SOLUTIONS

PLACEMENT OF WINDOWS SHOULD BE DONE FACING NORTHWESTSIDEOFTHESITE. BULKOFOPENAREATOBE PROVIDEDFORMOVEMENTOF AIRFROMEACHBLOCK

SOLUTIONS

THEWATERBODYISPROVIDED INTHENORTHWESTDIRECTION OFTHESITEFORTHEPASSIVE COOLINGEFFECT.

SOLUTIONS

INCREASEOFSOFTSCAPEAREA ANDLESSOFHARDSCAPEAREA PLANTING FRUIT SMELLING LOCALTREETOATTRACTAND PROVIDE SHADE TO THE MIGRATING BIRDS AND INCREASE THE NATURAL AESTHETICSOFTHEBUILDING.

source-https://en.climate-data.org/asia/india/madhya-pradesh/gwalior-4881/

CLIMATE CHALLENGES SUBTROPICALCLIMATEMAIN AIMTOMINIMIZEHEATGAININ SUMMERSANDMAXIMIZEHEAT GAININWINTERS.

SOLUTIONS

PROVIDINGWATERBODYAND NATIVE TREE SHADE. ORIENTATIONOFBUILDINGIS PROVIDEDINSUCHAWAY THATITRECIEVESTHENORTH WESTWINDANDSOUTHSUN HEATWITHSHADE.

SHEETNO. 03
SITEANALYSIS
NEARESTBUSSTAND ANDSTOP400M NEARESTRAILWAY STATION500M NEAREST AIRPORT10.5KM TOPADAV FROMPADAV 40.0MWIDEROAD FROMGOLAKAMANDIR TOGOLAKAMANDIR 30.0 M WIDE ROAD SITEAREA=9900.00SQM 161.7 35.09 18.43 27.81 8.37 28.12 63.59 125.04
SUBMITTEDTO-AR.SUDHEERSINGHSIKARWAR,AR.NIKHILGOPALRAOWAKODE SUBMITTEDBY-JYOTISIKARWAR SEMESTER-6THSEM3RDYEAR NORTH SOUTH WEST EAST
MIXEDUSEBUILDING SITE

AREASTATEMENT

AREASTATEMENT

GROUNDFLOOR:

BUILT-UPAREA=1869.6sqm

DEDUCTION

STAIRCASE+LIFT=217.5sqm TOTAL=217.5sqm

F.A.RFLOORAREA=1869.6-217.5=1652.1sqm

FIRSTFLOOR:

BUILT-UPAREA=1869.6sqm

DEDUCTION

STAIRCASE+LIFT=217.5sqm TOTAL=217.5sqm

F.A.RFLOORAREA=1869.6-217.5=1652.1sqm

SECONDFLOOR:

BUILT-UPAREA=1869.6sqm

DEDUCTION

STAIRCASE+LIFT=217.5sqm TOTAL=217.5sqm

F.A.RFLOORAREA=1869.6-217.5=1652.1sqm

TYPICALFLOORS(3,5,7,9,11,13)

BUILT-UPAREA=2236.4sqm

DEDUCTION

STAIRCASE+LIFT=217.50sqm DUCTS=28.10sqm

BALCONY=75.60sqm TERRACE=299.00sqm

TOTAL=620.20sqm

FLOORAREA=2189.60-620.20=1569.40sqm

3+5+7+9+11+13FLOORAREA=1569.40sqmx6 =9,416.4SQM

TYPICALFLOORS(4,6,8,10,12,14)

BUILT-UPAREA=2189.60sqm

DEDUCTION

STAIRCASE+LIFT=217.50sqm DUCTS=28.10sqm

BALCONY=45.30sqm TERRACE=274.80sqm

TOTAL=565.00sqm

FLOORAREA=2189.60-565.00=1624.60sqm

4+6+8+10+12+14FLOORAREA=1624.60sqmx6 =9,747.6SQM

9900.00sqmSITEAREA:

TOTALBUILT-UPAREA:

TOTALFLOORAREA: F.A.R=TOTALFLOORAREA TOTALSITEAREA

F.A.RACHIEVED=2.2

F.A.R.PERMISSIBLE=2.5

PARKING: (100SQMFLOORAREA=1CAR)

PARKINGREQUIRED: 100 22468.2

PARKINGREQUIRED: 100 TOTALFLOORAREA =225nos.

SITEAREA=9900.00SQM

40.0MWIDEROAD

A.NONFSIAREAS:

C.SERVICEDAPARTMENTS:

B.PARKINGDETAILS

shopping/100sq.m.foroffice/75sq.m.for flats/50sq.m.forhotels. x1.8m 4.0m literaturestudy.

Source:GovernmentofIndia,Departmentof Tourism.

3.2.1DEVELOPMENTCONTROLRULFS A.BUILDINGNORMS

SHEET NO. 05 MIXEDUSEBUILDING SUBMITTEDTO-AR.SUDHEERSINGHSIKARWAR,AR.NIKHILGOPALRAOWAKODE SUBMITTEDBY-JYOTISIKARWAR SEMESTER-6THSEM3RDYEAR
22468.20sqm
24,750.00sqm
22468.2 9900.0 =2.2
TOPADAV FROMPADAV
FROMGOLAKAMANDIR TOGOLAKAMANDIR

thedrivewayandthenbeparked. likewisefromupperfloorstothebasementfloors.

LVL+0.15 LVL+0.3 GROUNDFLOORPLAN SHEET NO. 06 MIXEDUSEBUILDING SUBMITTEDTO-AR.SUDHEERSINGHSIKARWAR,AR.NIKHILGOPALRAOWAKODE SUBMITTEDBY-JYOTISIKARWAR SEMESTER-6THSEM3RDYEAR TOPADAV FROMPADAV 40.0MWIDEROAD FROMGOLA KAMANDIR TOGOLA KAMANDIR 30.0 M WIDE ROAD 161.7 35.09 18.43 27.81 8.37 28.12 63.59 125.04 ENTRY EXIT A' LVL+0.3 MALE GYM 13.9X10.7M SHOP01 11.2X5.7M SHOP02 11.2X5.7M SHOP03 11.2X5.7M SHOP04 11.2X5.7M SHOP05 11.2X5.7M SHOP06 11.2X5.7M STORE 16.4X17.0M STORE 16.4X17.0M UP DN LIFT 2.5X2.2M LIFT 2.5X2.2M LIFT 2.5X2.2M LIFT 2.5X2.2M LIFT 2.5X2.2M LIFT 2.5X2.2M LIFT 2.5X2.2M LIFT 2.5X2.2M UP DN REFUGE SHAFT HVAC 2.5X2.2M PLUMBING 2.5X2.2M ELETRICAL FORHE FORSHE A B
PlayingArea
BASEMENT01 SHEET NO. 09 MIXEDUSEBUILDING SUBMITTEDTO-AR.SUDHEERSINGHSIKARWAR,AR.NIKHILGOPALRAOWAKODE SUBMITTEDBY-JYOTISIKARWAR SEMESTER-6THSEM3RDYEAR 161.7 35.09 18.43 27.81 8.37 28.12 63.59 125.04 UP DN LIFT 2.5X2.2M LIFT 2.5X2.2M LIFT 2.5X2.2M LIFT 2.5X2.2M LIFT 2.5X2.2M LIFT 2.5X2.2M LIFT 2.5X2.2M LIFT 2.5X2.2M UP DN 01 02 03 04 05 06 07 08 09 10 11 12 13 14 15 16 17 18 19 20 21 22 23 24 25 26 27 28 29 30 31 32 3433 35 36 37 38 39 40 41 444342 45 46 47 48 49 50 51 52 53 54 55 56 57 58 59 60 61 62 63 64 65 66 67 A A' 34 35 36 37 38 39 40 41 42 43 44 45 46

BASEMENT02,03

BASEMENT02,03,04 SHEET NO. 10 MIXEDUSEBUILDING SUBMITTEDTO-AR.SUDHEERSINGHSIKARWAR,AR.NIKHILGOPALRAOWAKODE SUBMITTEDBY-JYOTISIKARWAR SEMESTER-6THSEM3RDYEAR 01 02 03 04 05 06 07 08 09 10 11 12 13 14 15 16 17 18 19 20 21 22 23 24 25 26 27 28 29 30 31 32 3433 35 36 37 38 39 40 41 444342 45 46 47 48 49 50 51 52 53 54 55 56 57 58 59 60 61 62 63 64 65 66 67 UP DN LIFT 2.5X2.2M LIFT 2.5X2.2M LIFT 2.5X2.2M LIFT 2.5X2.2M LIFT 2.5X2.2M LIFT 2.5X2.2M LIFT 2.5X2.2M LIFT 2.5X2.2M UP DN A 2.49 UP DN LIFT 2.5X2.2M LIFT 2.5X2.2M LIFT 2.5X2.2M LIFT 2.5X2.2M LIFT 2.5X2.2M LIFT 2.5X2.2M LIFT 2.5X2.2M LIFT 2.5X2.2M UP DN 01 02 03 04 05 06 07 08 09 10 11 12 13 14 15 16 17 18 3433 35 36 37 38 39 40 41 444342 45 46 47 48 49 50 51 52 53 54 55 56 57 58 59 60 61 62 63 64 65 66 67 19 20 21 22 23 24 25 26 27 28 29 30 31 32 A' BASEMENT04 35 36 37 38 39 40 41 42 43 44 45 46 35 36 37 38 39 40 41 42 43 44 45 46 34 34

TERRACELEVEL+56.4M

14thFLOORLEVEL+52.7M

13thFLOORLEVEL+49.0M

12thFLOORLEVEL+45.3M

11thFLOORLEVEL+41.6M

10thFLOORLEVEL+37.9M

09thFLOORLEVEL+34.2M

08thFLOORLEVEL+30.5M

07thFLOORLEVEL+26.8M

06thFLOORLEVEL+23.1M

05thFLOORLEVEL+19.4M

04thFLOORLEVEL+15.7M

03rdFLOORLEVEL+12.0M

02ndFLOORLEVEL+8.0M

01stFLOORLEVEL+4.0M

GROUNDFLOOR LEVEL 0.0M

BASEMENT01 FLOORLEVEL-4.0M

BASEMENT02 FLOORLEVEL-8.0M

BASEMENT03FLOOR LEVEL-12.0M

BASEMENT04FLOOR LEVEL-16.0M

TERRACELEVEL+56.4M

14thFLOORLEVEL+52.7M

13thFLOORLEVEL+49.0M

12thFLOORLEVEL+45.3M

11thFLOORLEVEL+41.6M

10thFLOORLEVEL+37.9M

09thFLOORLEVEL+34.2M

08thFLOORLEVEL+30.5M

07thFLOORLEVEL+26.8M

06thFLOORLEVEL+23.1M

05thFLOORLEVEL+19.4M

04thFLOORLEVEL+15.7M

03rdFLOORLEVEL+12.0M

02ndFLOORLEVEL+8.0M

SECTIONS SHEET NO. 11 MIXEDUSEBUILDING SUBMITTEDTO-AR.SUDHEERSINGHSIKARWAR,AR.NIKHILGOPALRAOWAKODE SUBMITTEDBY-JYOTISIKARWAR SEMESTER-6THSEM3RDYEAR
4.2 4 4
SECTIONA-A'
GROUNDFLOOR LEVEL 0.0M BASEMENT01 FLOORLEVEL-4.0M BASEMENT02 FLOORLEVEL-8.0M BASEMENT03FLOOR LEVEL-12.0M BASEMENT04FLOOR LEVEL-16.0M BEDROOM DINNING 5.6X3.5M KITCHEN 4.0X3.5M BALCONY 2.0X3.5M BEDROOM 5.0X3.5M DRAWING/ 4.0X3.5M CORRIDOR 3.0X3.5M 4.0X3.5M BEDROOM 5.0X3.5M DRAWING/ DINNING 5.6X3.5M KITCHEN CORRIDOR 3.0X3.5M BALCONY 2.0X3.5M DRAWING/ DINNING 5.6X3.5M KITCHEN 4.0X3.5M 3.0X3.5M BALCONY 4.0X3.5M BEDROOM 5.0X3.5M KITCHEN 4.0X3.5M CORRIDOR BALCONY BEDROOM 5.0X3.5M DRAWING/ DINNING 5.6X3.5M CORRIDOR 3.0X3.5M BALCONY 5.0X3.5M DRAWING/ DINNING 5.6X3.5M KITCHEN 4.0X3.5M CORRIDOR 3.0X3.5M BALCONY 2.0X3.5M BEDROOM DINNING 5.6X3.5M KITCHEN 4.0X3.5M CORRIDOR BALCONY 4.0X3.5M BEDROOM 5.0X3.5M DRAWING/ 4.0X3.5M CORRIDOR 3.0X3.5M BALCONY BEDROOM 5.0X3.5M DRAWING/ DINNING 5.6X3.5M KITCHEN CORRIDOR 3.0X3.5M BALCONY 4.0X3.5M BEDROOM 5.0X3.5M DRAWING/ DINNING 5.6X3.5M KITCHEN 4.0X3.5M BALCONY 2.0X3.5M BEDROOM 5.0X3.5M DRAWING/ 5.6X3.5M KITCHEN 4.0X3.5M CORRIDOR 4.0X3.5M CORRIDOR 3.0X3.8M BALCONY 2.0X3.8M TOILET 2.0X3.8M PENTRY 1.9X3.8M ROOM 6.0X3.8M WAITING 3.5X3.8M BALCONY 4.0X3.8M KITCHEN 14.8X3.8M CORRIDOR 3.0X3.8M BASEMENT 23.5X3.8M BASEMENT 23.5X3.8M BASEMENT 23.5X3.8M SECTIONB-B' 4 4 4 4 4 4 4 3.7 3.7 3.7 3.7 3.7 3.7 3.7 3.7 3.7 3.7 3.7 3.7 3.7 BASEMENT 33.5X3.8M 33.5X3.8M BASEMENT 33.5X3.8M BASEMENT BASEMENT BASEMENT 45.5X3.8M CORRIDOR 14.0X3.8M CORRIDOR 14.0X3.8M CORRIDOR 14.0X3.5M CORRIDOR 14.0X3.5M CORRIDOR CORRIDOR CORRIDOR CORRIDOR 14.0X3.5M CORRIDOR CORRIDOR 14.0X3.5M CORRIDOR 14.0X3.5M CORRIDOR 14.0X3.8M CORRIDOR 14.0X3.8M CORRIDOR 14.0X3.5M CORRIDOR 14.0X3.5M CORRIDOR CORRIDOR CORRIDOR CORRIDOR 14.0X3.5M CORRIDOR CORRIDOR 14.0X3.5M CORRIDOR 14.0X3.5M CORRIDOR 27.0X3.8M CORRIDOR 27.0X3.8M CORRIDOR 27.0X3.5M CORRIDOR 27.0X3.5M CORRIDOR 27.0X3.5M CORRIDOR CORRIDOR 27.0X3.5M CORRIDOR 27.0X3.5M CORRIDOR 27.0X3.5M CORRIDOR 27.0X3.5M CORRIDOR 27.0X3.5M CORRIDOR
01stFLOORLEVEL+4.0M
VIEW SHEET NO. 14 MIXEDUSEBUILDING SUBMITTEDTO-AR.SUDHEERSINGHSIKARWAR,AR.NIKHILGOPALRAOWAKODE SUBMITTEDBY-JYOTISIKARWAR SEMESTER-6THSEM3RDYEAR
VIEW SHEET NO. 15 MIXEDUSEBUILDING SUBMITTEDTO-AR.SUDHEERSINGHSIKARWAR,AR.NIKHILGOPALRAOWAKODE SUBMITTEDBY-JYOTISIKARWAR SEMESTER-6THSEM3RDYEAR

Turn static files into dynamic content formats.

Create a flipbook
Issuu converts static files into: digital portfolios, online yearbooks, online catalogs, digital photo albums and more. Sign up and create your flipbook.
Mixed-Use High-Rise Development by Jyoti sikarwar - Issuu