Skip to main content

Portafolio de proyectos

Page 1

PORTAFOLIO DE PROYECTOS

Jose Yañez M.

JOSE ALONSO YAÑEZ

EDUCACION

Universidad De Playa Ancha

Dibujante Proyectista

2015 - 2020

EXPERIENCIA LABORAL

MAR 2019 – JUL 2019 / PRACTICA PROFESIONAL / Oficina Arquitecto Victor Sereño Varas

• Trazados y registros de dimensiones en terreno de vivienda proyectada

• Elaboración de planimetría de proyectos de vivienda

• Participacion activa en diversos proyectos elaborando planimetria

DIC 2022 – SEPT 2023 / DIBUJANTE DE PLANIMETRIA TECNICA / SERVIFIBRA / Freelance

• Registro de dimensiones de dispositivos.

• Realización de planimetría técnica de acuerdo a requerimientos.

• Ejecución de informes de izaje en conformidad a lo exigido.

• Revisión y aprobación de documentación por parte de jefatura.

• Entrega definitiva de documentación para posterior envió a entidad solicitante.

ENE 2021 – OCT 2022 / DIBUJANTE DE PLANIMETRIA ARQUITECTONICA / PROFESIONALES Y PARTICULARES / Freelance

• Bosquejos y registros de dimensiones en terreno

• Confección de planimetría arquitectónica de acuerdo a normativa vigente.

• Revisión y aprobación final de documentación.

• Entrega final de carpeta a solicitante para posterior envió a entidad solicitante.

CONOCIMIENTOS

• AutoCAD

• Revit

• Trabajo en equipo

• Compromiso

• Puntualidad

• Capacidad de adaptación

• Proactividad

• Superación

• Sketchup • Twinmotion • Photoshop • Office APTITUDES

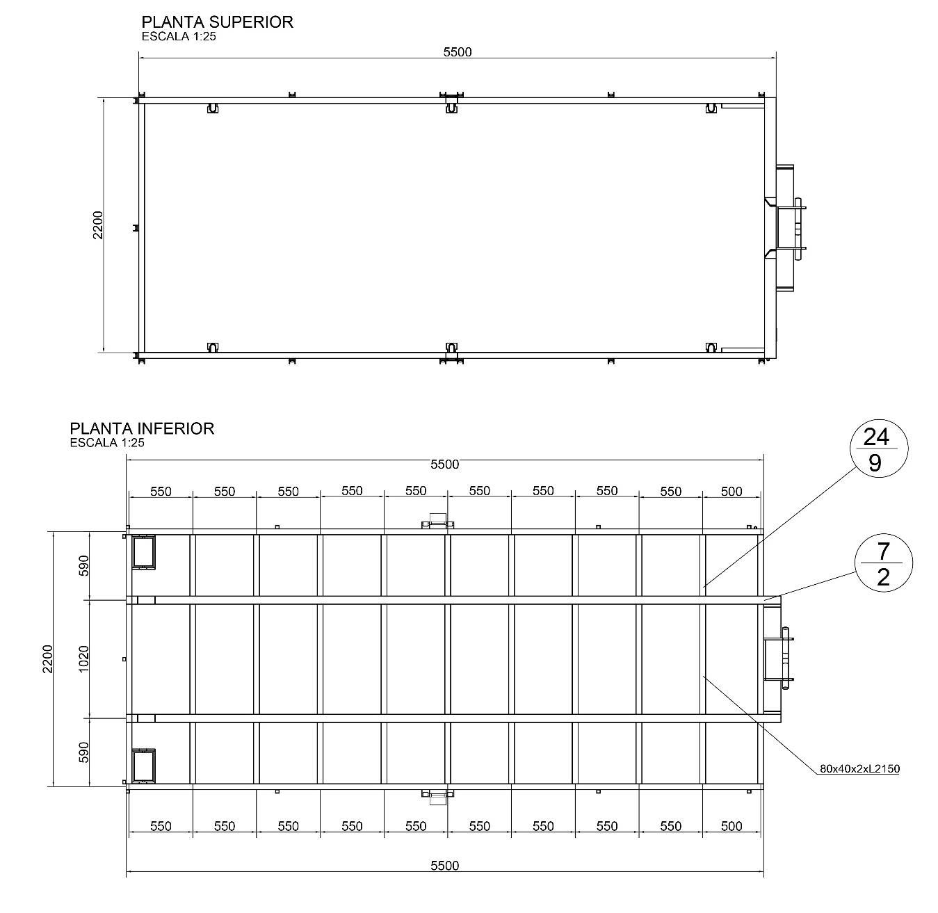
METALMECANICA

TOLVA

ESTANQUE CONTENEDOR (FRP) CON DISPENSADOR CONTENEDOR DE LIQUIDOS (FRP)

MULTI ROLL
04 05 01
INDICE 02
ARQUITECTURA AMPLIACION VIVIENDA QUINCHO FAMILIAR REMODELACION VIVIENDA 07 09 06 12 PRACTICA PROFESIONAL 08

METALMECANICA A

TOLVA MULTI ROLL

Machalí, Región de O’Higgins

Realización de levantamiento de estructura , con detallada información técnica y de acuerdo a requerimientos normativos.

ESTANQUE CONTENEDOR (FRP) CON DISPENSADOR

Machalí, Región de O’Higgins

Levantamiento de dispositivo, correspondiente a un estanque de almacenamiento de líquidos, realizado de acuerdo a exigencias y acompañado de informe de izaje.

CONTENEDOR DE LIQUIDOS (FRP)

Machalí, Región de O’Higgins

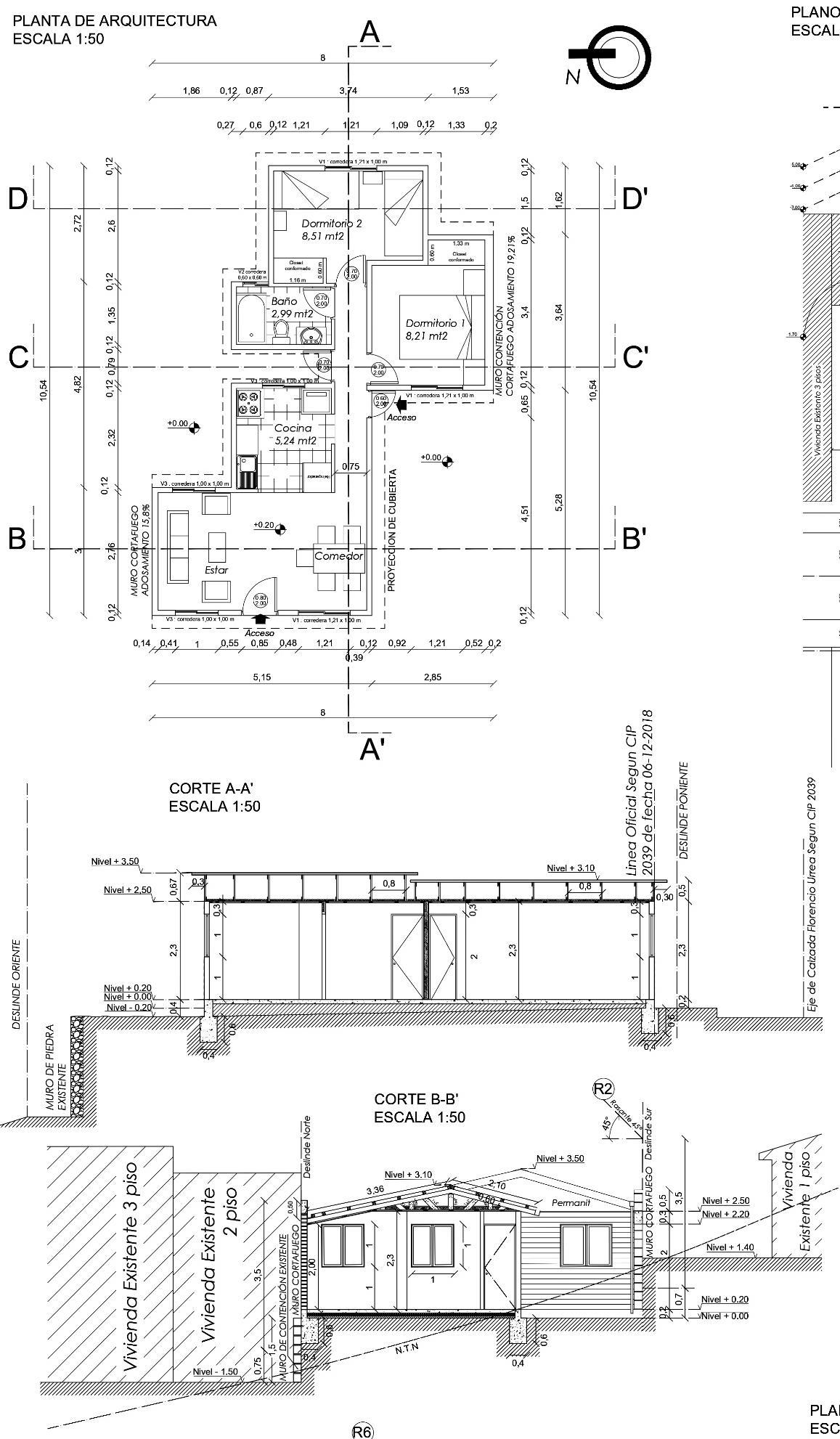
ARQUITECTURA B

AMPLIACION DE VIVIENDA

Rancagua, Región de O’Higgins

Renderizado para visualización de proyecto de ampliación de segundo nivel, se compone de dos habitaciones.

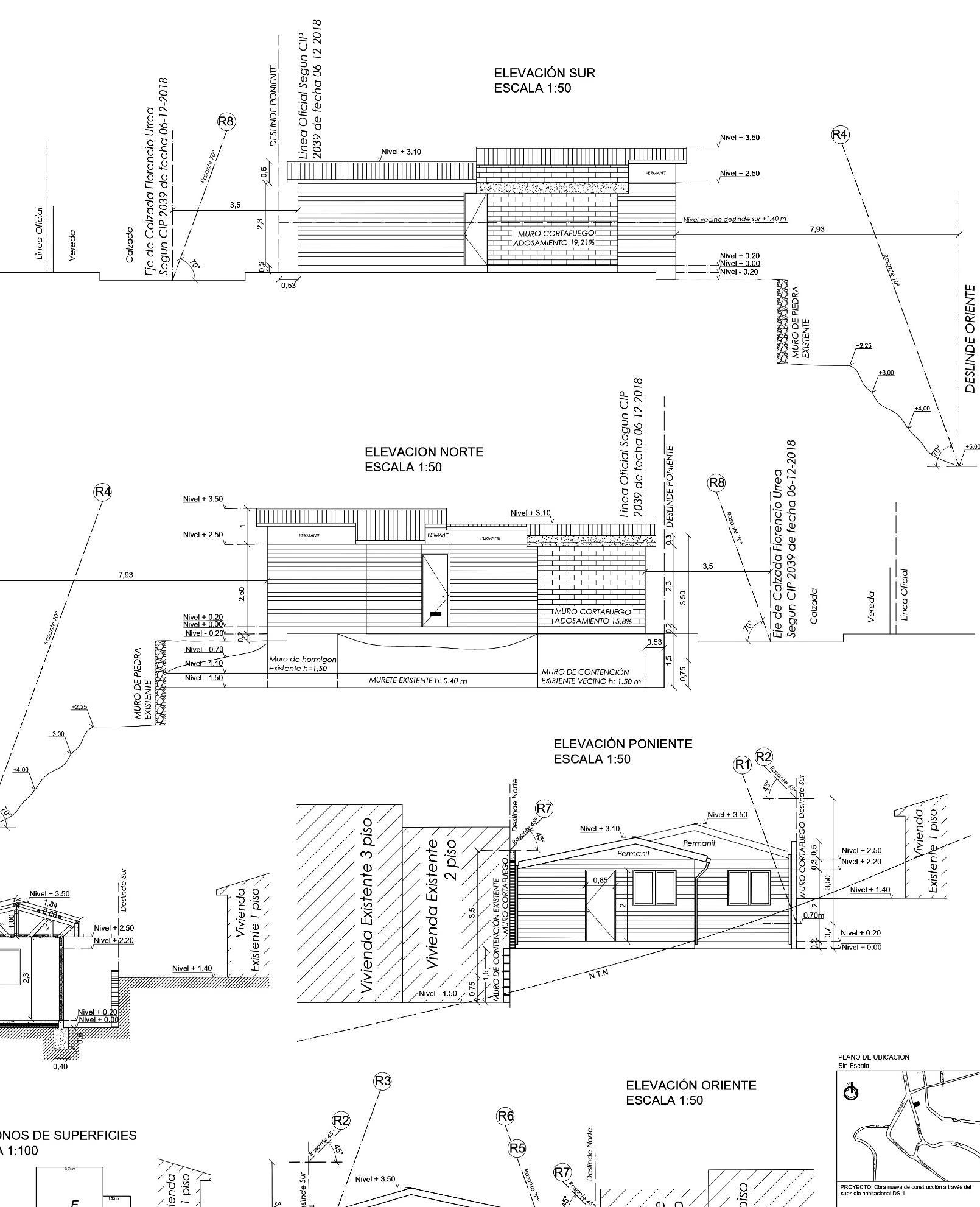
QUINCHO FAMILIAR

Requínoa, Región de O’Higgins

Quincho familiar de esparcimiento, inmerso en un contexto natural.

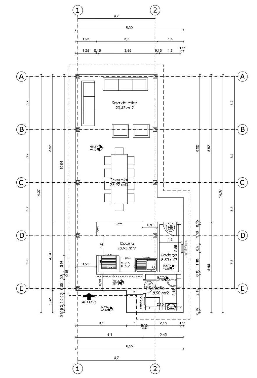
PRACTICA PROFESIONAL

Oficina Víctor Sereño - Arquitecto

Valparaíso, Región de Valparaíso

jyanezproyectos@gmail.com linkedin.com/in/jose-yañez Rancagua, Chile 985771004

Turn static files into dynamic content formats.

Create a flipbook