
Justīne Krista Cīrule
Portfolio



MATERIALS STUDIO
Bachelor’s degree final project
Art academy of Latvia, 2024
Thesis and project advisor
Lecturer, architect Ieva Lāce-Lukševica
Site address Kronvalda bulvāris 4, Rīga
The project aims to investigate the availability of reusable materials and their possible use in interior design. Materials Studio of the Art Academy of Latvia will be created from reused materials. It will include a material library, a material bank, a light laboratory, a workshop and an exhibition area.
Materials are found everywhere. Every object a person touches is made of some kind of material. Therefore, to understand the types of materials encountered in daily life and to explore both existing and new materials, the study of materials is essential. A proper learning process is not possible without knowledge of materials.
Collaboration with SIA “Rīgas nami”
For educational purposes, students and lecturers will visit a site owned by SIA “Rīgas nami” that is scheduled for demolition. Students will examine both the building and the materials available. Materials that are easy to dismantle will be removed by the students themselves. Those that require a longer or more complex process will be marked, so that demolition workers will know which materials need to be dismantled carefully.
The Materials Library and Materials Bank will include materials from different periods, such as historical materials from Riga, Soviet-era materials, and materials from modern “Euro-renovations.” Each material will be accompanied by a material passport.
The exhibition display is partially made from reused materials—gypsum board profiles sourced from a “Clean R” exchange point, which were used to create shelves and a lamp, while the tabletops were made from leftover tiles. Gypsum board scraps were also used in the model.

I received the Art Academy of Latvia & “AJ Power” award for a sustainable project.











APPARTEMENT IN ALBERTA IELA
Aug 2023 - in progress
Alberta iela 7, Rīga
Apartment in an Art Nouveau building. Total area: 157.84 sq. m.
The project includes:
- communication with the client, plumber, carpenter, and lead contractor;
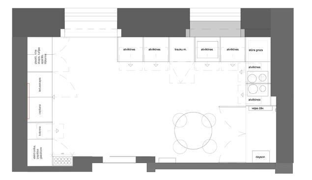
- taking measurements; - kitchen layout and design;
- two bathroom design and technical drawings; - lighting and electrical plans and diagrams; - wall panel drawings for two bedrooms and the dining room; - six wardrobe drawings;
- color and material coordination; - interior visualizations.


The design was developed in close collaboration with the client to fulfill their wishes.
Two bathrooms include an electrical plan, wall elevations, cabinet drawings, as well as drawings for natural stone, quartzite “Taj Mahal”, floor tiles, wall protection panels, and two freestanding sinks. The project involved close cooperation with plumbers and the Italian stone company Bruno Lucchetti.
A detailed layout, electrical and lighting plan, and design were created for the kitchen.
For the bedrooms, electrical and lighting plans, wardrobe drawings, and wall panel drawings were developed. There was communication with the carpenter regarding the wall panel design.






1)IZMĒRI







2-D
2-A
2-C
2-B




INTERNSHIP AT ARCHIPLAN STUDIO
Jan 2025 - Apr 2025
Mantova, Italy
First month:
Technical drawing of a bathroom; technical drawing of a different pavements and tile colour combinations.
Second month:
Historical fountain restauration and technical drawing; colour combinations and creating city regulations; site visit in Milan, San Girolamo and Mantova.
Third month:
3D modeling for private residence, furniture technical drawing, site visit in Mantova and Ostiglia.





A collaborative project between Art academy of Latvia and architecture
studio NRJA
Art academy of Latvia
Interior design, 3rd year, 2023
“Lenta” factory
Jelgavas iela 68, Rīga, LV-1004
Assignment: loft apartement with terrace
Lecturer, architect Ieva Lāce-Lukševica
The apartment is located between the north and south sides. Materials such as cinder blocks, concrete, steel, and plywood will be used in the interior.
The historic northern-facing walls of the apartment are being preserved. The interior walls are built from cinder blocks, which will remain unplastered and painted white to retain their raw character. The bathroom walls will be constructed from water-resistant drywall. On the ground floor, the flooring will be made of concrete, while the mezzanine floor will be covered with plywood.
The staircase will also serve as storage: under the stairs on the bathroom side, a washing machine and drawers will be hidden, while a wardrobe for outerwear will be located near the entrance.
The color green was chosen after research, as the machinery used in the Lenta factory to produce ribbons was green. The white furniture symbolizes that the resident can choose what to place in the space, and is thus arranged conceptually.









H TIKS
GAISMEKLIS PIESTIPRINĀTS PIE SIJAS
GAISMAS SLĒDZIS UN GAISMEKLIS IR IEBŪVĒTS ZEM
GRIEZUMS
A-A M 1:50
EL KONTAKTLIGZDU SPECIFIKĀCIJA:
EL KONTAKTLIGZDA IP22
EL KONTAKTLIGZDA IP44
EL KONTAKTLIGZDA VEĻAS MAZG MAŠ NAI
EL KONTAKTLIGZDA ŽĀVĒTĀJAM
H=300 mm (JA NAV NORĀDĪTS CITĀD )
EL KONTAKTLIGZDU/IZVADU SPECIFIKĀCIJA VIRTUVES TEHNIKAI:
GRIEZUMS B-B UN D-D M 1:50
EL KONTAKTLIGZDA LEDUSSKAPIM
EL KONTAKTLIGZDA PLĪTIJ
EL KONTAKTLIGZDA SĪKAJA TEHNIKAI
SLĒDŽU SPECIFIKĀCIJA:
EL SLĒDZIS IP20
EL PĀRSLĒDZIS IP20
EL SLĒDZIS IP44
GAISMEKĻU APZĪMĒJUMI:
PIE GRIESTU VIRSMAS ST PRINĀMS GAISMEKLIS
PIE S ENAS STIPRINĀMS GAISMEKLIS
GALDA LAMPA
GAISMEKLIS IEBŪVĒTS MĒBELĒ PIE GRIESTU VIRSMAS STIPRINĀMS GAISMEKLIS
PIEZĪME:
H=900 mm (JA NAV NORĀDĪTS CITĀD )
1) KONTAKTU IZVIETOJUMI DOTI PRINCIPIĀLI TOS UZSTĀDĪT SASKAŅĀ AR LBN ĒKU IEKŠĒJO ELEKTROINSTALĀCIJU!
2) IZMĒRI NORĀDĪTI MILIMETROS
3) MĒRUS PRECIZĒT OBJEKTĀ UZ VIETAS

CLAY SPACE
Art Academy of Latvia
Interior design, 3rd year, 2023
Co-author: Alīna Koņušaka
Professor Ingūna Elere
Assignment: retail
In the initial phase of the project, we explored one of the philosophical viewpoints — humanism. From there, we moved on to researching anxiety and integrated it into the interior design, which we developed in the shopping center “Domina” in Riga.

HUMANISM is a system of beliefs and actions characterized by love and respect for people, the defense of their rights, concern for personal development, and holistic stability. A higher power does not belong to God, but to the individual. Each person creates the beauty and meaning of their own life.
Humanists encourage living fully and enjoying each day. A healthy mind creates a healthy body, enabling us to move through our daily lives and notice the beauty around us.
THE PROBLEM – Stress and anxiety - health epidemic of the 21st century. It turns out that 275 million people suffer from anxiety.
THE VISION is to create a public space that helps to regulate emotional states, reduces anxiety and stress.
THE GOAL is to design a space that relaxes, reduces stress and anxiety, and offers a new experience.
“CLAY has medical benefits. It reduces stress, depression, regulates holistic well-being, stimulates all body senses, practice patience, trains concentration, reduces tensions or anger, activates the memory process.
Chronic stress and anxiety can lead to more serious health issues and affect hope, quality of life, and life expectancy. Hope plays a crucial role in a person’s life — it gives meaning, strengthens motivation, and helps prevent anxiety, depression, and even suicidal tendencies.
It has been proven that working with clay activates memory processes, induces emotional and meditative states through increased theta wave frequency, and enhances spatial and temporal processing in the brain.”
- Journal of Medical Science and Current Research









PAINTING & PHOTOGRAPHY
I enjoy painting with oil paints, though I also use other techniques, which I apply in my art sketchbooks. What I enjoy most is combining colors and the freedom of expression.
Analog photography is especially dear to me. I received my first camera from my grandmother, who used to take photos in her youth. Among film cameras, I use a Zenit and a so-called “point and shoot” camera. On a daily basis, I use an iPhone, but I’m also learning to work with a digital camera.

























































RESET
2020
A person relies on two essential activities to reset — eating and resting. In earlier times, bread was considered the staple food and was highly respected.
Furniture made from bread — two chairs, a table, and a lamp — symbolizes a space for rest and the restoration of strength.
