PORTFOLIO
Justin Kemmerer
B.S. Arch.
| Tyler School of Art and Architecture
Temple University

![]()
Justin Kemmerer
B.S. Arch.
| Tyler School of Art and Architecture
Temple University

pg 3 Resumé
pg 4-11 Mixed-Use Apartment & Health Services: Patchworks
pg 12-17 PublicLibrary
pg 17-21 Professional Experience
Jeremy Riggall,CR | GeneralManager,HarthDesignBuild 215-528-3847
Jeremy.Riggall@Harthbuilders.com
Chris Lux | SalesManager|HarthDesignBuild|SharedOfficewith Responds best to emails Chris.Lux@Harthbuilders.com
Robert Edwards PE,CCS,CCCA | President,Edwards&Co.Engineers 215-703-0628 rde@edwardsbec.com
Andrew Wit | Professor,GraduateCurricularhead|TempleUniversity 215-204-2137 Andrew.Wit@Temple.edu
StephenCampbell,CR | DesignDpt.Manager,HarthDesignBuild|DirectSupervisor Responds best to emails Stephen.Campbell@Harthbuilders.com
Randy Grasse | Owner, NRG Mech. 215-353-8871 nrg.mechanical.llc@gmail.com
Jill Voicheck AIA | Architect,HarthDesignBuild 215-692-4577
Jill.Voicheck@Harthbuilders.com
Rhino Grasshopper
Chief Architect
Lumion
D5 render Enscape
Adobe Creative Suite
Microsoft Suite
Some Revit
Model Making
Woodworking
I’m a high energy, detail oriented person with an extensive technical background who has a passion for interacting and communicating with people. I also embrace unique challenges and working collaboratively
Architectural Design Intern | Field Services Manager
Edwards Building Envelope Consultants
3 internships from Dec. 2021 - Sep. 2024 ( 1 year exp. )
• Worked on high-rise and mid-rise construction projects
• Proficient in building envelope systems, including walls, roofs, foundations, and fenestration systems
• Evaluated architectural drawings for performance Managed projects, ensuring they meet requirements, budgets, and deadlines
• Presented training material to contractors
Architectural Design Intern
Harth Design | Build May 2022 - Aug. 2022 | Dec. 2022 - Jan. 2023 ( 6 months exp. )
• Design development of high-end residences
• Present designs to clients
• Extensive code evaluation and permit prep-submission Site survey / Documentation / prepare as-built drawings for hand-off to production team
• Brief production team at design/production hand-off
HVAC Project Foreman
Good’s Plumbing, Heating, and A/C March 2014 - Jan. 2021 ( 7 years exp. )
• Learned effective communication
• Successfully work under pressure
• Solve unforeseen challenges
• Extensive knowledge of high-end custom home construction and operation.
Extensive problem-solving skills.
• Extensive hands-on knowledge of construction.
• Read drawings, spec sheets, apply for permits, maintain documentation for specific projects.
B.S. Architectural Design
Temple University | May ‘24
M. Arch
Temple University | Aug. ‘25
I have a passion for design, construction, and finding creative ways to fulfill clients’ needs. I love communicating and getting to know people, learning new things, and I find great satisfaction in designing spaces that beautifully fit a client’s needs. When not working or studying, I enjoy spending time outside biking, hiking, kayaking, running, walking, playing volleyball, and spending time with family.
Mixed-Use | Transitional Housing & Health Services
Location: Philadelphia, PA
Arch. 8011 | Professors Na Wei & Ulysses sean Vance Fall ‘24
In collaboration with: Britney Sciarillo
Josh Fekete
Jared Lista
Studio Goal
Can Architecture help solve social issues? This studio focused on researching endemic issues in Philadelphia, PA, and using acupuncture architecture methods to help solve these issues.
Our team identified the drug epidemic of Philadelphia, noting that individuals have a 90% relapse rate after 1 year, but less than 10% of relapse after 5 years. This mixed-use project seeks to create a semi short term community-style living situation on the 2nd5th floors and a commercial floor where residents and thecommunity have access to professional rehabilitation resources.
For our construction method we decided to use a modular system that can be built offsite with high(er) precision. By using modular construction, our project could save 40% on construction costs while keeping onsite construction to a minimum and saving significant time as compared to non-modular projects.
Project Location: Philadelphia, PA



Research
Drug use by country
Relapse Rates by Time
Research

Significant reduction in relapse over time
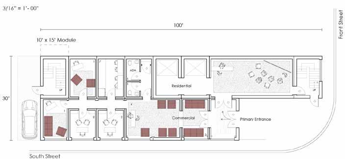
Modular Assembly
Module Assembly Egress and Elevator Cores built on site 10’x15’ Modules get craned into place


10’x15’ Module Constructed off site in climate and quality controlled environment
Commercial Floor Plan Modules arranged in plan

Facade

Facade Type Concept
4 styles, arranged to suit program and aesthetic
Facade Types
Arranged and assembled on modules as specified

Facade Application
4 styles, arranged to suit program and aesthetic


Physical Model
1/2” = 1’ Model of a portion of the building
Constructed to explore relationships and constructability


Elevation
4 Facade types create interest and style


Full Scale Physical Model Material and assembly exploration using construction materials true to design

Physical Model
South St. Elevation 1/2” = 1’
Physical Model
Front St. Elevation 1/2” = 1’

FIFTH LEVEL
FOURTH LEVEL
THIRD LEVEL
Elevation
Front st. elevation

SECOND LEVEL
Municipal Library
Location: Philadelphia, PA
Arch. 3232 | Professor Chris McAdams Spring ‘23
Studio Goal
Can Architecture help revive community

creating a public library in Philadelphia, PA that speaks to the history of the city while bringing space into a central focal point for the community
As technology develops, bringing alternate reality (AR) and artificial intelligence (AI) to the forefront of discussion, can we use these tools in our design to create a space that the public has access to? In developing this design, grasshopper was used to create parametric shapes, leading to the geometric patterning on the facade, and alternate reality visualization tools were used to help us walk through the design as if it were built.









Massing Exploration
Multiple scale models were used to explore physical design options
West Elevation
20th St elevation

NORTHWEST PERSPECTIVE

Street Model
NORTHWEST PERSPECTIVE
A street model was used to understand the relationship of the new building to existing structures
NORTHWEST PERSPECTIVE
NORTH PERSPECTIVE CONCEPT SKETCH

NORTH PERSPECTIVE CONCEPT SKETCH

North Elevation Walnut Street Elevation

4th Floor Plan Plan, with red circle depicting location of the special moment shown below

Special Moments, 4th floor Architecture should be exciting and fresh. Elements like this create focal points and areas of congregation


3rd Floor Perspective
The space was designed to be bright and cheerful, while making sure to provide some protection from UV
3rd Floor Plan
Different levels create playfulness and interest
The Noble | 200 Spring Garden
Place
Philadelphia, PA
Year 2024
Architect
Handel Architects
Team
Building Envelope
Consultants
Role
Field Services Manager


The Noble is a 13-story, L-shaped residential tower located at the southern edge of Philadelphia’s Northern Liberties neighborhood. The project is directly adjacent to SEPTA’s Spring Garden Station and serves as the gateway of an emerging district connecting the Northern Liberties and Old City neighborhoods.
The Noble is the first phase of what will eventually be a four parcel, mixeduse, pedestrian centric development. The building includes 360 apartments over structured parking and approximately 25,000 sq. ft. of retail. An activated ground level experience includes a pedestrian-friendly, tree-lined public plaza, and a two-story flagship fitness club.
The building features hand-laid brick on both the street and courtyard facades. The street facing façade curves gently at the corner and is composed of gray brick, referencing the warehouses in the surrounding context. Recessed, darker brick divides the vertical piers and defines each window bay. The top two stories form the building’s crown, which are paired with a dramatic cornice to create the building’s signature on the skyline. - Handel Architects LLP
Journal Squared
Place
Jersey City, NJ
Year
2024
Architect
Handel Architects
Team
Building Envelope
Consultants
Role
Field Services Manager


Journal Squared is a new 2.3 million sq.ft. mixed-use development that is designed to be the linchpin in the redevelopment of Journal Square. The project dramatically transforms the traditional back door of the Journal Square PATH station into a new front door with a sweeping pedestrian plaza for community events, pedestrian connections from the surrounding community, 36,000 sq. ft. of retail, and a redesigned Magnolia Avenue into a new public plaza and shared street.
The three-tower project creates a vertical urban village, offering 1,840 rental apartments and 100,000 square feet of amenities distributed across an interconnected 8th-floor podium that links all three buildings, fostering a sense of community between towers. Amenities include a gym, yoga room, kids’ room, library, screening room, WiFi lounge, sundeck, and outdoor pool. A Sky Lounge on the 53rd floor of Tower 1 offers all residents a communal dining table, projector screen, and seating areas surrounded by panoramic views of Manhattan and Jersey City.. - Handel Architects LLP
Place
Lower Gwynedd, PA
Year
2024 (built) Team
Harth Design | Build Role
Design Intern
Floor Plan Concept layout
Front Elevation
Conceptual elevation study
Electrical Floor Plan
Electrical layout for permitting
Place Upper Gwynedd, PA
Year
2024 (built)
Team
Harth Design | Build Role
Design Intern
Riser Diagram
Plumbing riser diagram for permitting
THANK YOU
