Junseok ( Jun ) Lee
Bio
Education
2024 - Pres.
2020 - 2024
2023
Experience
05/23 - 08/23
04/22 - 02/23
08/21 - 12/21
Involvement
2022 - 2024
2020 - 2024
Skills Advanced
Jun.Lee@yale.edu
512 757 9544
New Haven, CT
Passionate about architectural visualization, leveraging a foundation in photography to enhance rendering techniques, composition, and storytelling.
Yale School of Architecture
Master of Architecture ( M.Arch I )
Texas A&M College of Architecture
Bachelor of Environmental Design, Architectural Studies
Dean’s List Recipient
Barcelona Architecture Center Study Abroad
Intern - HKS.Inc - LINE
Dallas, TX
Constructed two physical models for client viewing
Attended site visits and educational events based in and around the office
Photographer - Texas A&M College of Architecture College Station, TX
Photographed events and everyday happenings at the Langford Architecture
Intern - Endeavr Institute College Station, TX
Designed iterations for the Endeavr Institute warehouse and dormitory
NOMAS - Nation Organization of Minority Architecture Students Member, Vice President
AIAS - American Institute of Architecture Students
Member, AXIOM Editor, Mentor, Freedom By Design Member
Rhino 3D, Cinema 4D / Corona, Photoshop, Illustrator
Intermediate Enscape, Indesign, Lightroom Classic
Basic Grasshopper, Revit
English - Native, Korean - Basic
Awards
2022, 2023, 2024 Published work on AXIOM publication
2022
First Place Finish // Harold L. Adams ICU Design Charrette
2022 Runner up // Texas A&M COA Gonfalon Design Competition
2021
Best Designer in Studio Award
Line-Up
Semester Fall 2024, Core 1
Critic Nicholas McDermott
Softwares Rhino 3d, Illustrator, Cinema 4d w/ Corona, Photoshop
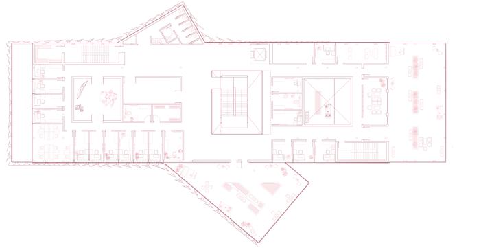
Line-Up is an environmental education center at the Yale farm. This proposal is a continuation of a semester long exploration of the line as a device of space making. Starting by studying the abstract works of Lygia Pape and David Hockney as a departure point, the design for Line-Up materializes the form of a line as a central operative core.



The focus of this project is the interior core. This core runs through the length of the building and serves as the circulation, utility, structure, and the programmatic catalyst.




The core in this section is a brick oven. The brick oven serves pizza for community events to the right in the section and is a space heater for the greenhouse on the left.


The core in this section is a kitchen and a root cellar. The root cellar keeps fresh fruits and vegetables for the farmers market to the left and the kitchen above.



This continuous section brings back the building back into the initial concept of the line.



Collective Central
Semester Spring 2024
Critic Peter Massin
Collaboration Ekaansh Kalra
Contribution Research, Design, Drawings, Render, Models
Softwares Rhino 3d, Illustrator, Cinema 4d + Corona, Photoshop
Collective Central is a train station proposal on the Texas A&M campus. Along being a hub for the railroad network, the station is also a geothermal power plant. This combination of rail resources, water, and agriculture invites recreational and education programs.









The chunk studies explore specific relationships within Collective Central. For example, the second study explores how the water from the cooling tower feeds into the greenhouse and the community pool.



Aggieland Visitor Center
Semester Fall 2023
Critic Marcel Erminy
Collaboration Fatima Castro
Contribution Research, Design, Drawings, Renders, Model
Softwares Rhino 3d, Illustrator, Cinema 4d w/ Corona, Photoshop
This proposal for the Aggieland Visitor Center pushes the structural capabilities of the cantilever. The 70 foot cantilever creates elevated spaces above and shaded greenspace below.










six35
Semester Fall 2022
Critic Richard Gelles
Collaboration Ryan Hartfiel
Contributions Research, Design, Drawings, Rendering Post Production
Softwares Rhino 3d, Illustrator, Cinema 4d w/ Corona, Photoshop
Sixth Street and Interstate 35 are arguably Austin’s heaviest foot and motor traffic infrastructure respectively. Currently in this intersection, I-35 dominates the site and leaves the human movement in a lower priority in safety, and comfortability. “six35” is a mixed-use “bridge” over and under I-35 to create a barrier between the motor traffic and the foot traffic. With six35, we aimed to create a balanced relationship between both mediums of movement.








So,
What Happens Under I-35?
Underneath I-35 is the extension of the activated 6th street. Businesses, light and people activate the space to create a sense of safety to those who pass through or stay.


Model Making




Misc. Renderings


Photography



