Garven’s porfolio

Page 1

PORTFOLIO

Apply for a Master's Degree from University of Edinburgh

Jiawen CUI

Breath of the Deep Sea

_ Seeking a new way of living under the sea.

Today, when ecological damage is increasing, the rise in sea level caused by global warming is gradually reducing the land environment for human habitation, so that people can only abandon their original homes and keep moving to higher ground.

Due to the low topography of the Netherlands, sea level rise will have a great impact on the way of life of people in the Netherlands, where buildings that float on the sea have already been realised. The design envisages that in a few hundred years, part of the land will have been covered by the sea, and in the case of a reduction of land, will people be able to seek a new way of life, living in the shallow sea and no longer affected by the sea on the living place.

General Situation Location

A survey of flooding in the Netherlands over the last years and a local development of the situation in the Netherlands. It investigates how the Netherlands has responded to flooding policies over the years and, based on the results, effectively raises questions about new ways of responding to natural disasters over time, and what new impacts sea level rise will have on people's lives, and predicts the migration of fish habitats.

Over time, the impact of rising sea levels has forced people to change their original locations or build dams to "save" the land they live on.

Wadden Sea

De Afsluitdijk

Room for the River Programme

The river courses were widened and deepened.

Inside the dikes, space was created to allow controlled flooding of the rivers in exceptional cases.

PREDICT Topographic Population AMSTERDAMN 855,896 531,935 638,751 ROTTERDAM DEN HAAG
Schagen Alkmaar Medemblik Hoorn Enkhuizen IJsselmeer Katelmeer Field Markermeer Three-spined sticklebacks smelts glass eels shad sea lamprey flounder Industry GDP Rate Population 19,000 18,000 17,000 16,000 15,000 2015201620172018201920202021
The St. Elizabeth’s flood in 1421 had a huge impact on western Holland. The dikes and polders had to be partly reconstructed. In this way, lakes could be pumped dry and rainwater was drained from low-lying areas. From 1932 and dams off the Zuiderzee from the sea. Thus, a large lake in the heart of the Netherlands was created. The water changed from salty into fresh. St. Elizabeth's Flood Expansion of the Use of Windmills

During the Industrial Revolution, architecture also saw the

After World War II, structuralist architecture emerged in the Netherlands. Sea

Design intention

The origin of species came from the sea and developed gradually from a single cell.

Urban Growth Line

Additional main roads former secondary road

Additional secondary roads

Former main road Levee line

Residence

agro-industrial

Traffic Devices point

The undersea and land cities are connected here as a hub, and other cities have sprung up based on the development of the three locations.

Factory
Number of inhabitants: 147,590 Number of inhabitants: 77,725 Number of inhabitants: 94,853 Number of inhabitants: 41,500 Number of inhabitants: 72,725 Number of inhabitants: 32,780 Capital of the Netherlands Development of the city from this centre. Number of inhabitants: 741,636
Alkmaar Krommenie Haarlem Hoorn
Amsterdam
early
originated from the land of rivers, lakes
seas,
"Architecture is a history book written
stone"
been kicked off since then.
Medemblik
Anna Paulowna
The
civilization of mankind
and
and
in
has
new building forms, materials,
construction.
emergence of many
and methods of
rising
opted for floating building
utilise
space above the water
reduce
pressure on land-based volumetrics.
live.
levels are
and the Netherlands has
forms that
the
and
the
Perhaps in the future, when land is further diminished, people will continue to explore the sea for places to
Industrial Revolution Modern architecture Floating building Traffic Devices Oxygen generating air mould Urban Growth Early civilization Origin of Life Undersea city Support Residence Industry Service Agriculture Function Reorganisation Entrances Deformity In series connection Insertion Break Connectivity Oxygen Generation Connection

Oxygen generating air mould

Top: support structure Vertical transport

Media: air purification

Bottom: Oxygen production

Traffic devices

It is shown how transport is carried out at different depths, including two of the modes, one of which is pipeline transport and the other is capsule transport.

A

Cabin:Transport Hub

Tube:High-Speed

Solving the problem of human's inability to survive underwater, showing the oxygen supply system of the underwater city, the system is roughly divided into three layers, the top layer is the support of the entire air mould support, down to the second layer and the bottom layer is the main part of the oxygen production.

Round cabin: mode
Sea Route
of transport
major
serves
a meeting point for traffic, similar to a station.
corridors as major transport. Shows how traffic is carried out at different depths.
transport hub that
as
High-speed
Restaurant Bank Post Office Shop Bus Station Apartment Church Library School Hospital Theater Industry Let me help you. like to relax in the park. I'm getting used to living here. Take a walk in the park. heard they just moved in next door. Work! Nice day! Take a picture. Harry!
time to go home! Residence Transport & Agriculture
It's

LIVE IN THE MOON RICE CAKE

_

The nostalgia hidden in the streets and alleys of old Changsha

Changsha Old Street is not only the witness of history, but also the inheritance of culture, and it is also the lingering nostalgia of people.

Nostalgic, ordinary but able to awaken memories from the five senses. A bowl of fragrant rice noodles, four balls of soft, sweet and sticky ric a few slices of stinky tofu, shadow puppetry in Taiping Old Street...

This design introduces the familiar old Changsha nursery rhymes, combined with snacks, Hunan embroidery, shadow puppets, etc., to design with the representative elements of old Changsha. From the perspective of returnees, perceive architectural emotions, evoke childhood memories of old Changsha, and ease homesickness.

Introduction

“Moon rice cake, there is a grandfather in its stomach, the grandfather is out to buy vegetables, and the grandmother is in its stomach. The grandmother is out to embroider, embroider rice cake."—— This is a nursery rhyme that Changsha people are familiar with. The “Moon rice cake" in the lyrics is also a famous traditional s nack in Changsha.

In this design, people can “live" in the belly of Moon rice cake, as described in nursery rhymes, and feel the traditional culture of Changsha. Whether it is the elderly, children, people returning home or tourists, they can all feel this nostalgia.

LOCATION

Many young people leave their hometown. Traditional Changsha delicacies become one of the sustenance of people who leave home.

Fewer traditional buildings and more nostalgia.

Culture symbol

Site photo

The site is located beside Taiping Old Street in Changsha, next to the famous former residence of Jia Yi and some residential buildings. For now it's empty.

Surrounding crowd analysis

Shadow play Embroidery Traditional snacks: moon rice cake Using food as a clue, Connecting Memories of Changsha People. Urban renewal speed is getting faster and faster.
Site
Background

Sketch Massing

Southeast facade A-A Section
Function
Activities Traditional snacks: moon rice cake Live in the moon rice cake A public space 2 A A 4 1 3 1. The
Theater 2. Snack shop 3. Reading space 4. Shadow Play Gallery
and
Sunken
1. Site selection
3. Site reconstruction 5. Frame rise 2. Path design 4. Shape generation 6. Embroidery intervention Snack shopthe taste of old Changsha
100M 40
Ladder and eaves - childhood games Shadow play gallery - fun of shadow

Material and texture

Explosion diagram Visual
Wooden frame Hunan embroidery cloth Wooden support Moon Veranda Hunan embroidery cloth Hunan embroidery cloth texture Hunan embroidery cloth texture Walnut wood The Sunken Theater Reading space Waning moon Embroidery cloth shade Moon on the wall Shadow play

Land of Peach Blossoms

_ Science and Technology Park Design

The project intends to create a "paradise" for today's researchers and innovators, a place where they can calmly study and research, using the connection of stairs and ramps to allow people to roam around the building and experience the atmosphere of the park. At the same time, the design of the central green space scene and the green roof as the background, to provide people in the visual comfort and enjoyment. Considering the energy consumption problem of the Science Park, a series of energy-saving designs were incorporated into the design with the concept of "green" to create a beautiful park and reduce energy consumption at the same time.

Location

Site and surrounding information

Design intention

Tao Yuanming, a poet of the Eastern Jin Dynasty, cuts in from the perspective of a fisherman in Land of Peach Blossoms, and takes us into a paradise without war. In today's rapid development, I hope that after wandering in architecture, I hope to enter another piece of quiet and pure land dedicated to technological innovation, which can also be called Peach Blossom Spring.

Introduction

The project is located in Heshan District, Yiyang City, Hunan Province, the base of the north and south side of the district, surrounded by residential areas for the most part. The south side is Hunan City College, and the east side is adjacent to Yiyang Medical College, which is an excellent object for the service population and is conducive to the creation of a first-class science and technology innovation park.

SITE

Crowd type Age level Office staff 16~25 youth: study 26~65 middle-aged: work, service 65+ the elderly: Nearby residents Business customer Students and teachers Surrounding residents Crowd
50% 70% support 40% support 80% support 60% support
composition
want to be able to produce an want to have an academic seminar. We want afternoon tea. A quiet and comfortable research environment. We want research sites.
1 2 3 4
Main user intention survey
CHINA HUNAN YIYANG CITY HESHAN

Site Planning

Landscape Design

AXO
1. Main entrance 1. Volume rise 4. Regional division 4. Distortion 2. Set site entrance 2. Place the courtyard 5. Set site entrance 5. Green implant 3. Open and gather 3. Introduce traffic 6. Greening 6. Contact the whole
Massing
Create a large area of communication and sharing space for pedestrians and people in the park. Increase the richness of the facade, and at the same time conceal energy-saving technology to achieve low carbon. Connect the secondfloor platform to create a double first floor, lengthen the tour route for people to experience the scenery of the central green space. It echoes with the central green space, and increases the ecological green space in the courtyard as a background. Central green space: Verticalgreening: Green roof:
trail: Academic communication center 1 1 2 2 3 3 4 4 5 5 High-tech R&D center Information display center Headquarters technology building Science and technology service center 10361㎡ 4-7F H=34.8m 8371㎡ 5F H=26.1m 23427㎡ 16F H=63.9m 8389㎡ 3F H=15.7m 24539㎡ 24F H=99.9M
Roaming

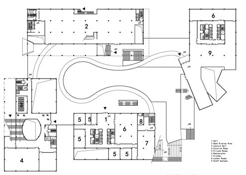
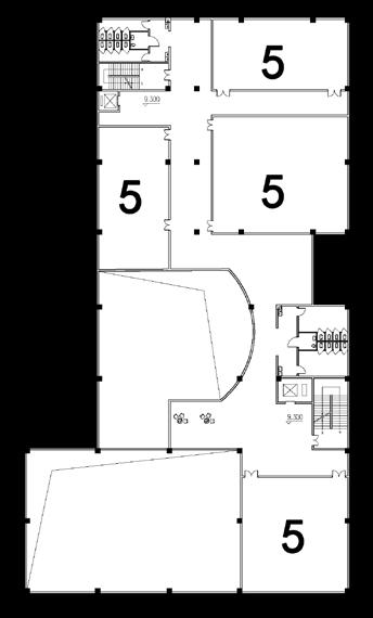
Rendering Floor plans

Three floors and above

Academic communication center entrance Outdoor footpath on the second floor Information display center entrance 1 Meeting Room 2 Exhibition Area 3 R&D Department 4 Office Area 5 Lecture Hall Academic communication center High-tech R&D center Headquarters technology building General layout Ground floor plan First floor plan Science and technology service center 1 Hall 2 Open Display Area 3 Lecture Hall 4 Storage Rooms 5 Cafes 6 Exchange Area 7 Stores 8 Reception Room 9 Management Area 10 Rest Area 11 Service Desk 13 Kitchen 14 Locker Room 15 Equipment Room 16 Security Room 17 Fire Control Room 1 Hall 2 Open Display Area 3 Lecture Hall 4 Function Room 5 Private Rooms 6 Restaurants 7 Kitchen 8 Locker Rooms 9 Staff Canteen

Energy Consumption

Survey

In order to gain a better understanding of the energy consumption of the Science and Technology Innovation Park, a forensic investigation was carried out on the history of the park, energy choices, etc., in order to control the building energy-saving measures.

Energy saving strategy design

Photovoltaic glass is used on the top of the tower to convert light and heat energy into electricity.

A rainwater collection system is installed on the roof of the podium to reduce energy consumption and operating costs.

Using exhaust heat to heat the fresh air saves energy consumption of the refrigeration equipment.

Use recycled materials to reduce pollution and make full use of limited energy.

Avoid heat loss by using good heat preservation and storage system to reduce the energy consumption of airconditioning and refrigeration.

High-rise buildings allow low-temperature, dry air to be drawn from above, saving energy for airconditioning and refrigeration.

Lowering the temperature of the façade reduces energy consumption and improves landscaping and air quality.

Office building energy type and energy system supply relationship
of energy use in buildings (percentage) Statistics
the energy consumption of buildings with different functional types PHOTOVOLTAIC GLASS RAINWATER COLLECTION HEAT RECOVERY SYSTEM RECYCLEDMATERIALS HIGH PERFORMANCE FACADE HIGH ALTITUDE WIND ROOF GREENING PROCESS maximum value average value median value Finance/IT/MediaGeneral officeHybrid functions and others Statistics on building energy consumption
different exterior window types maximum value average value median value Hollow double/ triple glazing Single window/ double window Other Past Now Future HVAC Others Power Illuminating
Proportion
on
by

Turn static files into dynamic content formats.

Create a flipbook
Issuu converts static files into: digital portfolios, online yearbooks, online catalogs, digital photo albums and more. Sign up and create your flipbook.