Portfolio_juno zhu_Harvard GSD

Page 1


SELECTED WORKS

HARVARD

RE-READING

A NEW PARADIGM: OBSOLETE INFRASTRUCTURE AS ELEVATED CIVIC GROUND

A COMMON FRAMEWORK : HOUSING TECTONICS TO URBAN MORPHOLOGY

A SUBTERRANEAN DISTILLERY REACTIVATES URBAN VOID

A TRANSFORMATION : OFFICE BLOCK TO MIXED-USE URBAN CONNECTORS

A SOCIAL CONDENSER : CATALYTIC INTERVENTION FOR URBAN COMMONS

A MEMORY FIELD : LABYRINTHINE SPACES OF PERCEPTION

AN ADAPTIVE INTERIOR : HISTORICAL TO CONTEMPORARY MUTATION

A CURATED MULTI-SCALAR PROFESSIONAL ARCHIVE

Architecture exists in the measured balance between nothing and presence -- where nothingness manifests as the space between defined elements, the space where humans stand and where light, air, and volume are held. In context of extreme topography, a segment of elevated railway— once part of a continuous infrastructure network that negotiated elevation differences—now stands isolated and obsolete. This fragment hovers in a liminal state between earth and sky, between past function and future potential, between absence and magnetic presence.

THE WEIGHT OF NOTHING

CHONGQING · CHINA · 2025

This thesis proposes an architectural intervention that inverts conventional structural hierarchies. By establishing primary structural elements from above, the design creates a levitated mass that appears to float over the railway platform. This approach liberates the spaces below from the rhythm of existing supports while creating a powerful void that spans across the original infrastructure. The void becomes not an absence but a vessel—a civic space framed by the weight above and the historical foundation below.

The selected site—an abandoned railway corridor suspended between mountainous terrain and dense urban development—embodies the railway’s capacity to distribute loads uniformly creates a unique opportunity: the existing structure can serve as a new datum that structure’s constraints while benefiting from its structural capacity.

Types
New Ground:
Conceptual
Context

the potential for infrastructural transformation. Built in the 1960s with robust masonry trestles prioritizing durability over efficiency, liberates any intervention above from the fixed rhythm below, allowing architecture to operate independently of the original infra-

Conceptual Structure Model
Contextual Massing

The archive program reinforces this gesture of levitation. Weighty collections anchor themselves strategically within the thickness of the structure, while the horizontality sacred to the context manifests through a series of gentle ramps that interweave spaces without division. These ramping surfaces negotiate between levels while preserving the openness of the void, creating a fluid experience where visitors navigate between density and openness, between weight and weightlessness.

In cities where stable ground is scarce, these elevated thresholds transform from disconnected fragments into new civic terrain. By reconceiving infrastructure not as a utilitarian conduit but as a cultural repository, this intervention explores the essential tension between anchoring and ascending—where the gravitational anchoring of knowledge creates the necessary counterbalance for the ethereal quality of light and space flowing through the void below.

This intervention in Alameda’s Enterprise District synthesizes architectural autonomy with urban coherence, manifesting as a nuanced critique of archipelagic urbanism. Centered on Fumihiko Maki’s “city room” paradigm, the scheme orchestrates a deliberate tension between the district’s emerging Central Business District and its residential fabric.

ARCHITECTURE OR THE CITY

· CA · 2024

The project’s spatial strategy responds to Alameda’s acute housing imperatives while transcending mere programmatic resolution. Through careful modulation of density—from low-rise peripheries to concentrated cores—the intervention establishes a new urban dialectic, where landscape serves not as residual space but as a defining urban armature. This reframes the traditional typology of CBD, proposing a more interconnected urban landscape.

ALAMEDA

This artificial landscape transforms fluidly between recreation, parking, and commercial uses, embodying District’s integration of living and working spaces.

The Transit-Oriented Development layers a raised ground plane beneath a permeable canopy of residential units, connected by vertical cores that serve both housing and mixed-use programs.

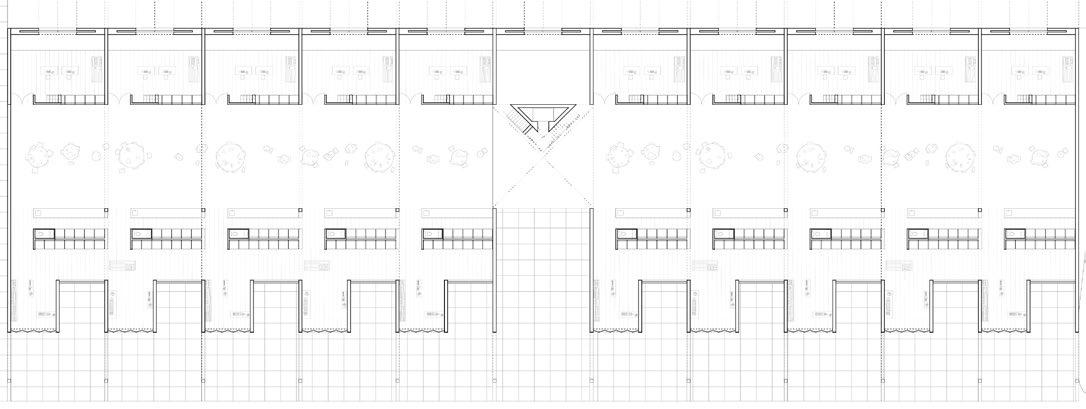
Contemporary urban morphology presents architecture as fragmented islands rather than coherent wholes—a condition examined through Tafuri’s reading of Campo Marzio as competing monuments and Rossi’s analogical city of fragmentary elements. The Alameda Enterprise District project emerges at this theoretical intersection, seeking to transcend architectural archipelagos through Maki’s “city room” concept. Rather than accepting the conventional CBD’s dispersed towers and diminished urban life, the project introduces a metaplot framework that weaves together housing, infrastructure, and landscape. This manifests as a choreography of scales: from intimate dwellings to civic towers, unified by public rooms that mediate density gradients. The structural strategy employs a Vierendeel truss system that elevates residential masses while creating an activated ground plane—a negotiated interface where program flows freely between recreational, commercial, and infrastructural uses. This porous organization, served by precise vertical cores, enables systematic growth while maintaining ground porosity. The result transcends mere housing provision, offering a broader critique of contemporary urbanization that favors structured fluidity over spatial atomization.

Ground floor plan

The project employs a sophisticated Vierendeel truss system that elevates the residential mass, simultaneously maximizing ground porosity and providing flood resilience. This structural framework, integrated with a skip-stop circulation scheme, creates an efficient living apparatus served by dual vertical cores that connect to four primary corridors, providing access to all units and shared spaces. The system’s modularity and structural logic suggests a metabolic structure—responding to changing urban needs through systematic growth and adaptation.through systematic growth and adaptation.

The skip-stop circulation system, anchored by two primary vertical cores serving four main corridors, creates an efficient framework that transforms circulation into elevated streets in the air. These corridors, integrated within the Vierendeel truss structure, offer unobstructed views into the central courtyard and outward to the city skyline. Each residential unit benefits from the systematic arrangement, enabling cross-ventilation through dual exposures while the alternating floor levels maximize spatial efficiency. This configuration not only economizes vertical circulation but creates a dynamic living environment where residents experience continuous visual connections to both communal spaces and urban vistas, fostering a sense of openness and spatial fluidity throughout the housing complex. The resulting architecture achieves a delicate balance between efficiency and experiential richness, where the technical logic of the skip-stop system generates not just circulation but a three-dimensional social landscape animated by light, air, and views.

The skip-stop system enhances sectional quality by alternating floor levels, creating a dynamic vertical rhythm. This arrangement maximizes spatial efficiency, enables cross-ventilation through dual exposures, and integrates elevated corridors that function as “streets in the air.” The result is a layered, three-dimensional experience with unobstructed views, natural light, and airflow, fostering openness and visual connectivity throughout the building.

The residential unit captures villa-like qualities through a thoughtful progression of spaces: from a luminous entry vestibule with kitchen and service core to dramatic double-height living areas for both leisure and shared work. Natural light, cross-ventilation, and flexible partitions create an autonomous living experience that elevates typical apartment dwelling into a more fluid, collaborative environment.

The central courtyard emerges as a vertical social condenser, visible and accessible from multiple levels through the skipstop circulation system. This multi-level void creates a dynamic interplay of views and connections, where residents experience the courtyard differently as they move through the building’s elevated streets and shared spaces. As building volumes extend and connect to one another, they generate extraordinary opportunities for elevated communal amenities—suspended swimming pools, sky gardens, and gathering spaces that float above the city. These interconnected moments transform the traditional courtyard typology into a three-dimensional social landscape, where the boundary between building and void becomes a rich territory for community interaction and elevated public life.

The Vierendeel truss system becomes a defining architectural element that enables three distinct facade treatments. These facade variations articulate the building’s internal logic while optimizing light, ventilation, and views. The primary facade emphasizes the structural grid’s monumentality, while secondary treatments adapt to internal spatial arrangements and environmental needs. This tripartite approach creates a legible architectural language where the structural framework, internal organization, and environmental response are synthesized into a coherent expression that transcends mere functionality.

At the intersection of Lanesville Terrace and Arboretum Road is an empty lot covered in old tires, gravel, asphalt, and litter, but was once intended for concentrated economic growth. The surrounding districts are picturesque, and the project aims to transform the site into an urban village that respects the site’s distillery history. The design includes five interconnected volumes and a shared common ground to foster movement and harmony between machinery and human occupancy.

INTEGRATE : DISTILLERY

BOSTON · MA · 2022

A field condition is a formal or spatial matrix capable of unifying diverse elements while respecting their identity, defined by local connections and key concepts of interval, repetition, and seriality. The entrance of the building provides a dynamic and engaging space that reflects the natural context with a mix of soil, stones, and wood. The use of locally sourced materials highlights sustainable design practices and reinforces the connection between the built environment and the landscape.

Tunnel connecting to the arboretum
Site Drawing: Porosity
Site Model: There was a factory / Now there are mountains and rivers, Nothing

This post-industrial landscape exists in limbo, neither fully industrial nor completely transitioned to the service economy that has taken root elsewhere. The design proposal seeks to bridge this divide, transforming the site into an architectural micro-village nestled within the forest. Drawing inspiration from both the natural and built environment, the scheme creates a deliberate transition between the urban fabric and the adjacent arboretum. Like the Talking Heads lyrics suggest, where industry once dominated, nature begins to reclaim its space—not through abandonment, but through intentional design that honors both the site’s heritage and its future potential.

Nothing but Flowers

The distillery’s entrance unfolds as a choreographed sequence of spaces, where raw earth, quarried stone, and timber create a sensory dialogue between architecture and landscape. This material palette deliberately echoes the site’s post-industrial character while pointing toward its regenerative future. At the threshold between urban fabric and forest, the entrance sequence serves as a transitional space where the industrial heritage of Lanesville Terrace begins to dissolve into the natural context of the arboretum. Local craftsmen’s handiwork is evident in the thoughtful detailing – weathered steel plates reminiscent of abandoned machinery are reimagined as sculptural elements, while reclaimed materials from the site are carefully integrated into new architectural features. Using materials sourced from the region, the design not only celebrates local craftsmanship and embodies sustainable principles but also tells the story of transformation:the architecture gradually refines and elevates its raw ingredients, transforming the remnants of industry into a place of craft and contemplation.

Descending into the subterranean tasting room, visitors enter a realm where bourbon’s aging process is embodied in architectural form. The barrel-vaulted ceiling creates a timeless sanctuary, while strategic lighting casts dramatic shadows across textured stone walls, drawing people deeper into the space. Clay vessels line the corridor, their rhythmic placement guiding movement while echoing bourbon’s earthen origins.

The polished concrete floor mirrors both artificial and natural light, creating an almost mystical atmosphere that suggests the presence of water – bourbon’s crucial ingredient. This underground sanctuary, with its cool air and perfect acoustics, transforms the tasting experience into a multi-sensory journey through bourbon’s craft and heritage, where every architectural element tells the story of time, patience, and transformation.

Housing design embodies the intricate layers of urban complexity, operating simultaneously at individual and collective scales, spatial and infrastructural dimensions, and as both discrete units and interconnected systems. As architecture navigates these multiple scales, it reveals society’s core values and aspirations, offering a unique opportunity to envision future urban possibilities while mediating the complex forces that shape our cities.

RELATE

CHELSEA · MA · 2023

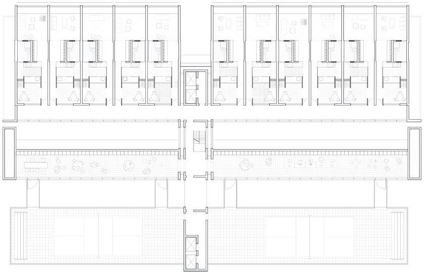
At the heart of this proposal lies a reimagined suburban office complex that serves as a transitional zone between two contrasting urban fabrics: an industrial, large-scale commercial district and an intimate neighborhood of dense residential units and family businesses. The Tobin Bridge acts as a visual thread, weaving together these disparate urban scales and connecting the industrial landscape with the small-scale commercial corridor.

This project reimagines an existing office complex in Chelsea, MA as a shared living environment, transforming it into a social forum between low-rise industrial and dense residential zones. The design balances collective experience with individual autonomy, creating a new model of public housing that bridges the site’s contrasting urban contexts. Ground Plan: The outdoor

space of the park, public amentities, workshop and commercial corridor takes on the life of the neighborhood

The central service core orchestrates the living space through a pinwheel arrangement, where four distinct zones radiate from a compact ‘machine for living’ that houses essential utilities. Each surrounding space maintains its identity through subtle architectural cues – changes in floor materiality, lighting conditions, and spatial proportions – while remaining functionally ambiguous. Built-in elements like window seating, storage walls, fold-down surfaces, and sliding panels enable residents to modify these zones (day, night, work, and quiet) according to their needs, while the absence of conventional doors creates a continuous spatial experience where activities naturally flow and overlap.

100 Everett

The design transforms the existing structure hybrid living-working environment that responds context. The project introduces a ‘make + create concept where shared workshop spaces and ual work zones coexist with living quarters positioned above. A central service core containing kitchen bathrooms divides the living spaces without traditional doors, creating flexible rooms that adapt to residents’ needs. This innovative layout allows inhabitants directly above their workspaces while maintaining building’s role as a bridge between contrasting scales.

Living Element Catalogue

into a responds to its create + sell’ individpositioned kitchen and traditional residents’ inhabitants to live maintaining the contrasting urban

The exisitng office spaces functions as a permeable maker space that extends Chelsea’s commercial vitality inward, featuring flexible workshops and retail areas with storefront visibility. Adaptable infrastructure –movable partitions, exposed utilities, and modular systems – allows artisans to customize their work environments while maintaining visual connections to both street life and fellow creators, fostering a dynamic marketplace that celebrates local craft and entrepreneurial spirit.

The living unit revolves around a central service core that divides the space into four fluid zones, each defined by subtle shifts in height, materials, and built-in elements rather than walls. This doorless arrangement, with its adjustable screens and strategic storage, enables residents to adapt their living environment while maintaining spatial continuity.

The building transforms into a hybrid civic-residential complex where public amenities and living spaces coexist vertically. The ground level houses community programs – sports facilities, a library, and gathering spaces – while residential units are elevated above, creating an urban arrangement where daily life flows seamlessly between public engagement and private dwelling. This layered organization promotes a new model of communal living

This organization responds to the building’s civic nature by creating micro-communities within each floor – shared cooking and dining spaces flow into individual living areas, while quiet zones for work or rest are tucked away from the more active social spaces. The material palette shifts from robust, communal surfaces near shared zones to warmer, more tactile finishes in private areas, reinforcing the spatial hierarchy while maintaining visual continuity throughout.

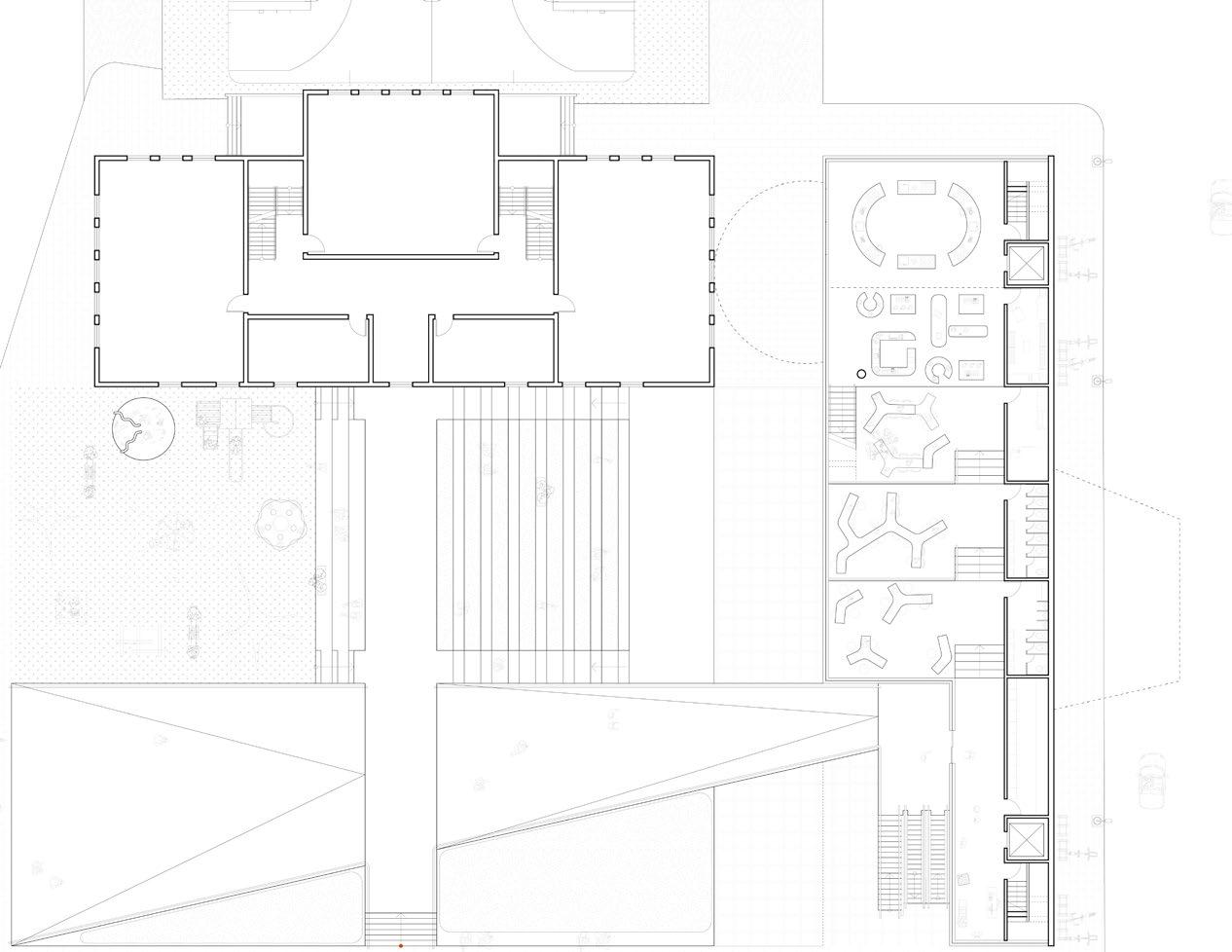
In Charlestown, a historic Boston neighborhood grappling with gentrification and community fragmentation, this project proposes a contemporary People’s Palace as a social catalyst. Drawing inspiration from Leonidov’s vision of “social condensers,” the design reimagines the traditional community center as a dynamic vertical hub that weaves together diverse neighborhood constituencies through innovative programming and spatial arrangements.

PEOPLE’S PALACE BOSTON, MA, 2022

The building functions as an urban platform where public amenities and collective spaces are orchestrated through both spontaneous access and digital scheduling. Its vertical organization responds to site constraints while addressing questions of context, program, and structure. People’s Palace becomes an architectural expression of social infrastructure, where the movement of bodies through space and the interaction of different user groups creates a new type of civic architecture that responds to contemporary urban needs.

Hayes Square in Charlestown stands at a critical juncture, the site’s physical and social context becomes inseparable from the architectural intervention. The building responds to and shapes its surroundings – from the existing structures and demographic patterns to the area’s impending residential evolution – creating a reciprocal relationship between architecture and community. The square’s position as a historic nexus of civic life informs the building’s role as both anchor and catalyst: its massing responds to the surrounding row houses and commercial structures while introducing a new vertical rhythm that signals urban change, its ground floor permeability invites neighborhood flow and its programming reflects the diverse needs of both long-time residents and newcomers.

The People’s Palace in Charlestown emerges as a critical response to urban fragmentation, where historic fabric meets contemporary pressures of gentrification. Rather than mimicking the grand utopian gestures of historical precedents, this intervention proposes a more nuanced, scale-appropriate solution that carefully weaves into the neighborhood’s social and physical fabric. The design recognizes that contemporary civic architecture must balance ambitious social goals with pragmatic urban realities. The multi-story structure functions as a social infrastructure, where carefully orchestrated programs respond to diverse community needs: spaces for cultural exchange coexist with practical amenities, while flexible gathering areas adapt to evolving neighborhood dynamics. This vertical organization allows the building to serve as both landmark and mediator – marking its civic presence while creating intimate spaces that encourage community interaction.

By precisely calibrating relationships between programs and their connection to the urban context, the project reimagines the People’s Palace not as a monumental gesture, but as an accessible framework for community resilience and social cohesion. The architecture becomes a prototype for how civic institutions can evolve in the face of 21st-century challenges, demonstrating how thoughtful programming and spatial organization can create meaningful public space without resorting to the oversized ambitions of past models. This approach acknowledges that effective social infrastructure often emerges from careful attention to human scale, local context, and the specific needs of diverse user groups rather than grand architectural gestures.

The evolution of the People’s Palace concept reflects a fundamental shift in architecture’s relationship to social transformation. Where early modernists envisioned architecture as a revolutionary force manufacturing new social relations through grand gestures, our contemporary understanding embraces a more nuanced role. The Charlestown intervention suggests that meaningful social infrastructure emerges not from architectural determinism, but from spaces that enable organic community evolution. This philosophical recalibration positions architecture as mediator rather than determinant – creating frameworks where multiple interpretations of community can coexist and evolve. By rejecting utopian certainty in favor of measured intervention, this approach acknowledges the delicate balance between architectural ambition and social reality, between catalyzing change and allowing communities to shape their own transformations.

Inherently, vision appears incomplete and fragmented, much like memories. The explicit or implicit description of fragmented memories such as scale, objects, vision, and sensual experiences serve as a way to guide our intuitive perception of spaces. The memoir depicts a seemingly endless and disoriented spaces that are connected by a set of stairs meandering through a series of rooms that are constituted by walls and openings.

Baizo House TUNIS, 2023

This project is conceptualizing a series of identical rooms within the nature, creating an immersive field which blends the outside and in. Conceptually, the building is transformed into a terraced slope, resembling the picturesque reconstruction of mountains. Placing a series of 15’x20’ rooms on a 3x5 grid, allows the construction of a maze-like space, where the specificity of each space is defined by the content but not the continent. The labyrinthine perception arises here by means of a strict repetition of rationality and modularity.

Stairs

For me, Sainte-Monique is all about the stairs!

....the stairs leading back to the second floor with an intermediate landing with a window looking out to sea.

On all landings, these openings brought in light from outside. That’s why, even when we were inside the house, we always had the impression of being in communication with the universe and immensity

The wall ... It was a very soft turquoise blue,

A wall that receives the golden light of a setting sun is not the same as the much harsher morning light.

a pink wall and a very pretty, pale grey one: dove grey

Walls

Rooms

...I woke up in a room flooded with sunlight, a room that had walls of an absolutely indescribable pink.

...the dining room, a very large room that opened out onto the terrace and the view

...the kitchen was a very small room...but it had a view!

12 m², the size of a bedroom

Within each room, walls act as living membranes between inside and out, creating identical vessels that come alive through the stories they contain. Like siblings sharing the same DNA but expressing different souls, these uniform spaces reveal their unique character through the objects and moments they shelter. Rather than imposing itself upon the land, the building follows the earth’s own rhythm, transforming into terraced slopes that echo the ancient gesture of mountains.

Each five-foot level change creates a delicate dance between privacy and openness - what serves as a door at one level becomes a window at another, offering glimpses between spaces while preserving their intimacy. As the rooms step down towards nature, they stretch longer, reaching towards the forest. Though the roof height remains constant, the spaces beneath evolve: light filters differently, sounds carry uniquely, and our senses tune to subtler frequencies. It’s a journey where architecture becomes increasingly quiet, letting nature’s voice grow stronger.

Drawing inspiration from Charles Gwathmey’s groundbreaking 1967 Residence and Studio, where pure geometric forms were sculpted into living spaces that defied traditional housing conventions, our design embraces a similar boldness of vision. Like its predecessor, which daringly elevated public spaces to the middle level with private areas above, our home becomes a habitable sculpture nestled into three acres of sloping woodland.

Re-Reading Interior

East Hampton, 2024

Collaborative concept; Independent execution

This reimagining of Gwathmey’s principles speaks to our client’s creative spirit as a fashion industry veteran. The southwestern orientation bathes the geometric interiors in natural light, while the woodland setting provides both privacy and inspiration. Here, the manipulation of form and space creates a sanctuary that honors both Gwathmey’s architectural legacy and our client’s sophisticated understanding of how design shapes daily life.

Before: Living & Kitchen

This gem unfolds within a modest 1,200-square-foot footprint, embracing both privacy and nature. The composition emerges as a dance between forms: a rectangular main volume intersects with a cylindrical kitchen, each shape engaging with the other in a gesture that speaks to Gwathmey’s original resourcefulness in creating richness within constraints. The heart of the home reveals itself in the two-story living and dining space, where a soaring glass façade frames the outdoor terrace. Here, the chimney rises as a sculptural anchor, while the spiral staircase winds through the space like a piece of jewelry. Built-in cabinetry and carefully chosen furniture echo Gwathmey’s attention to detail, creating a fluid environment where kitchen and living spaces flow together. The second level opens to bay views, while the interlocking volumes below play with light and shadow, solid and void – a contemporary interpretation that preserves the essential expression.

Guest Room & Study

The cylindrical volume, originally conceived as troom, transforms into a light-filled sanctuary mirrors its owner’s journey from runway to board room. For our client, a former model who now new talents through her agency, this space becomes more than just an office – it’s a carefully choreo graphed setting where fashion, business, and history intertwine. Generous windows capture breezes and views, while a custom hanging system follows the room’s gentle arc, displaying carefully rated pieces like an art installation. The space both function and poetry – curved rails float along walls, their brass finish catching afternoon light, furniture can be easily rearranged to transition focused work sessions to intimate industry gatherings. The sculptural spiral staircase – takes on new ing here, its skeletal form becoming an impromptu runway. The space transforms into a theater of moments: models practicing their walks, confidential portfolio reviews, or casual gatherings with industry friends. In this thoughtful adaptation of Gwathmey’s vision, the interior becomes both stage and sanctuary.

Before: Guest Room

as a guessanctuary that boardnow guides becomes choreopersonal capture natural system carefully cuspace honors along the light, while transition from gatherings. new meanimpromptu of fashion confidential industry Gwathmey’s sanctuary.

During my internship at Meier Partners, I delved deep into the iterative design process, where crafting study models became a vital tool for exploring spatial relationships and testing design concepts. Working alongside experienced architects, I learned the critical importance of precision in architectural drawings - each line and detail contributing to the broader narrative of a space. This hands-on experience taught me that successful architecture emerges from rigorous exploration and meticulous documentation.

Meier Partners INTERNSHIP, 2022

The opportunity to lead material studies and manage the model shop profoundly shaped my understanding of how design ideas materialize. This experience reinforced my belief in the power of tangible, three-dimensional exploration in architectural design, while developing my ability to work efficiently within project timelines and collaborate effectively across teams.

Massing Model
Schemetic Design Study Model
Schemetic Design Study Model
Interior Design
Massing Model

At WRA, I focused on designing a performing arts complex encompassing a 2,600-seat concert hall, 1,200-seat multipurpose music hall, and Black Box Theater. By combining parametric tools with physical modeling, I contributed to design solutions across multiple scales - from the overall form to intricate details of cantilevered seating and wall cladding systems. Each iteration required careful consideration of both aesthetic and functional requirements.

William Rawn Associates INTERNSHIP, 2024

Leading the material studies and technical development pushed my understanding of construction methods and architectural detailing. Through systematic prototyping and documentation, I explored solutions that would serve both the acoustic and visual goals of these performance spaces. This process taught me to balance digital precision with practical constructability, while maintaining design integrity at every scale.

Turn static files into dynamic content formats.

Create a flipbook
Issuu converts static files into: digital portfolios, online yearbooks, online catalogs, digital photo albums and more. Sign up and create your flipbook.
Portfolio_juno zhu_Harvard GSD by Juno Zhu - Issuu