Interior Design Portfolio

Page 1

Meghan Jungles Design Portfolio

The College of DuPage

Interior Design Portfolio, Spring 2023

All noted scaled drawings are not to scale; however, represent industry-standard scale.

RESIDENTIAL DESIGN

The Stewart Residence- Main Floor

The Stewarts wish to remodel their main floor living spaces. They clients would like to have a defined foyer, living room, dining room and wanted to have a bonus room space.

Design Objectives

- Aging in Place

- Provide cohesive circulation

- A place for artwork display

- Custom architectural features

Accomplishments

- Low pile area rugs and large walkways

- Open floor plan with east access route

- Custom art room with niche displays

- Custom glass grid wall and recessed wood clad walls

Design Features

- Balance- Repetition of circulation paths

- Texture- Combining different materials and colors

- Unity- Cohesivity of design style and current trends

Finishes and Materials

1. Existing parquet flooring

2. Concrete slab Shelving

3. Havwood- Medio plank cladding

4. Annie Selke- jute area rug

5. Kravet- Chenille Cream upholstery

6. Brass metal

RESIDENTIAL DESIGN
3-Point Perspective View Floor Plan - 1/8”=1’0” Produced in Autodesk AutoCAD and Sketchup with V-Ray. Enhanced with Adobe Photoshop
1 2 3 4 6
1. Livex Lighting- Meridian Chandelier 2. Anteriors- Hogan Console
1 2 3 4 5
3. Palcek- Delmar Sofa 4. Anteriors- Reese Coffee Table 5. Bashian Area Rug
5
Vignette

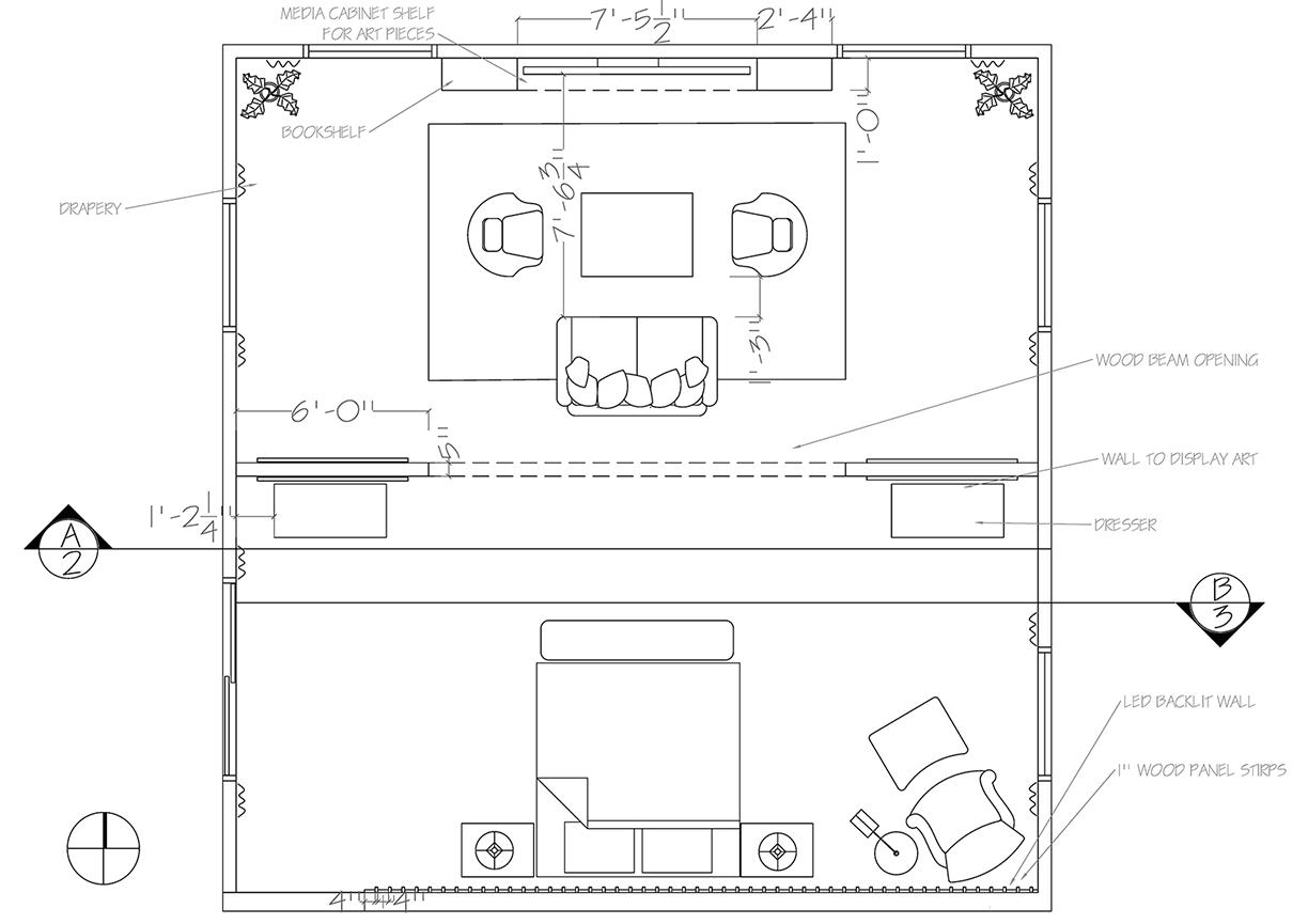
RESIDENTIAL DESIGN

The Stewart Residence- Bedroom

The Stewarts wanted to create space within space for their primary bedroom, with a contemporary design style. They wanted to add a living area adjacent to their sleeping area and to create a cohesive and multi-purpose space.

Design Objectives

- Separate sleeping and living area

- ADA accessible clearances

- Layered lighting

- Privacy

- Acoustics

Accomplishments

- Cased opening to living space

- Art display with lighting

- Custom built entertainment center

- Wood slat wall with backlit illumination

Design Features

- Rich saturated classic colors

- Low pile rugs

- Ample lighting

- Soft materials for acoustics and sound absorption

- Textures and patterns for visual differentiation

- Air purifying and anti-microbial paint

2.

3.

4.

Fixtures & Finishes

1.

Produced in Autodesk AutoCAD and Sketchup with V-Ray. Enhanced with Adobe Photoshop Entertainment Wall Elevation Sketch Floor Plan 1/2”=1’-0” Armstrong Slat Wall- Warm Oak Circa Lighting- Prescott Chandelier Arteriors Jobe Dresser- Smoke Kravet Boarding Pass Noir- Velvet Bedding 5. Sherwin Williams- Moscow Midnight Paint 6. Kravet Devereaux Sconce- Black and Brass
RESIDENTIAL DESIGN
Bed Elevation 1/2”=1’-0”

RESIDENTIAL DESIGN

Historic Brownstone

The Adkins want to update their 1888 Brownstone home. The client would like to highlight the ornate wood moldings and retain the original hardwood flooring while creating a better-functioning space.

Design Objectives

- Separate public and private space

- Keep existing windows

- Highlight mouldings

- Add historic inspired details

- Open up space

Accomplishments

- Hierarchy of spaces

- Dentil moulding throughout home

- Original hardwood floors

- Coffered and tray ceilings

- Ceiling medallions

Design Features

- Maintaining historic details

- Use of rich colors and materials

- Interest pieces in each room creating focal points

Design Considerations

- Traditional style fixtures with a modern touch

- Rich but neutral color palette

- Detailed crown moulding in all rooms

- Velvet upholstered furniture

- Layered color and textures

- Highlighting proportion and scale of tall rooms

- Contrast of light and dark colors and materials

RESIDENTIAL DESIGN
Produced in Autodesk AutoCAD and Sketchup with V-Ray. Enhanced with Adobe Photoshop

RETAIL DESIGN

Koas’ Corner

Koas’ Corner is a retail space in a suburban downtown focusing on pet necessities and luxury items. This space offers ample circulation and a simplistic design.

Demographic Study

Our target market demographic consists of families in a suburban area. Emphasizing the importance of pet satisfaction in the family. The convenience of a luxury shop right in the heart of town. We also offer a specialty training services for busy families.

Branding

- Simplicity

- Streamlined

- Upscale

- Biodegradable packaging

- Brand recognition

Elevations

Design Features

- Flooring materials to ground areas

- ADA accessible merchandise

- Logo branding wall

- Specialty service designation space

RETAIL
Produced in Autodesk AutoCAD and Sketchup with V-Ray. Enhanced with Adobe Photoshop
DESIGN
Full set available upon request

RETAIL DESIGN

Koas’ Corner

A. Lightology Octo Pendant

B. Circa Lighting Eugene Large Pendant

C. Lightology Adjustable Track Head A

LIGHTING & MATERIALS FIXTURE SELECTIONS

1. Opto Basket With Dividers

2. Opto Edge Collection 2 Module High Gondola

3. Opto Edge Collection Square Table Set

4. Opto 1 ½” Thick Metal Shelf

5. Opto Edge Collection Post Wall System

6. Grand and Benedicts Dog Mannequins

RETAIL DESIGN
Produced in Autodesk AutoCAD and Sketchup with V-Ray. Enhanced with Adobe Photoshop 1. Armstrong VinylFriendship Oak Amber 2. Armstrong Medintone FlooringLittle Black Book 3. Armstrong Woodworks Grille Ceiling 4. Armstrong Slip Resistant Flooring- Cloudy 5. Smartturf Smart Pet Plus
1 2 3 4 5 6
6. Arto Thin Glazed Brick
1 2 3 4 5 6
B C

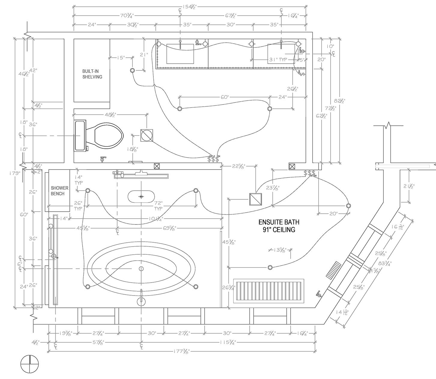
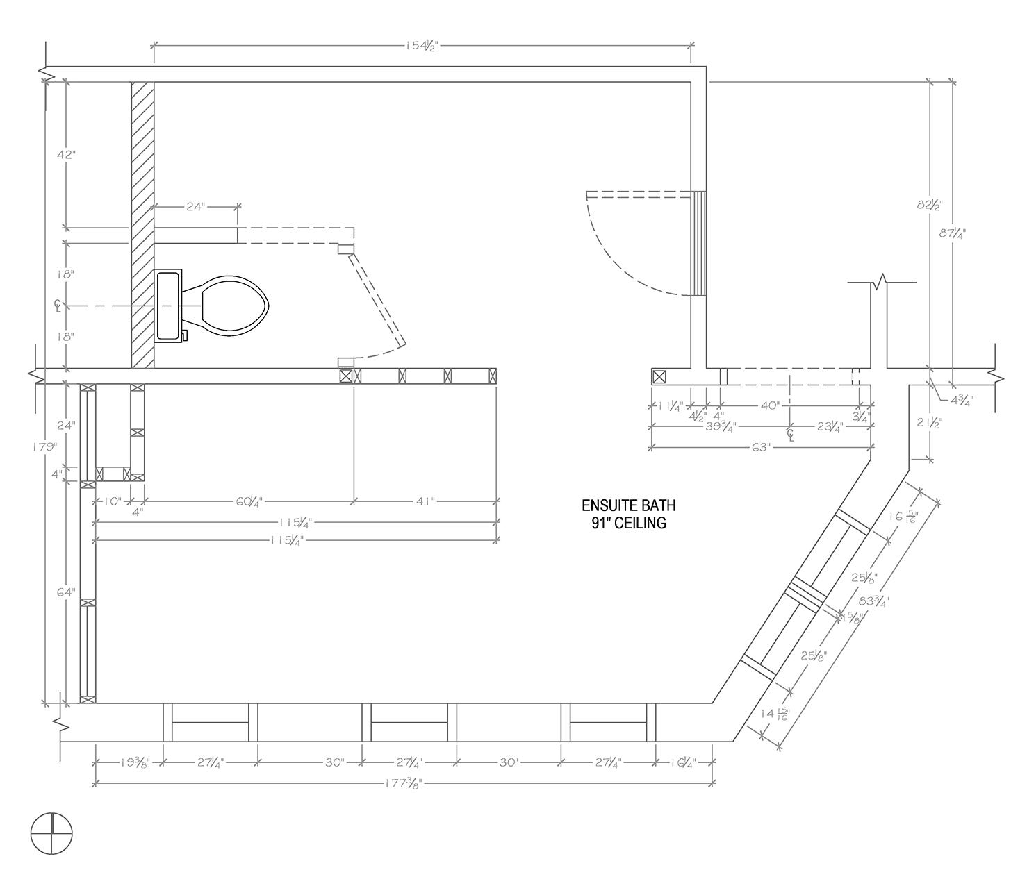
KITCHEN & BATH DESIGN

NKBA Bath Remodel- Collaborative Project

The NKBA Student Design competition required a kitchen and primary bath remodel. In order to accommodate their busy lifestyle, the Johnsons requested separate vanities and a high-end custom design.

Design Objectives

- High-end feel

- Mixing metals

- Large shower

- Escape from busy life

Accomplishments

- Zero entry wet room

- Brass and black metals

- Calming spa-like color palette

Design Features

- Glass grid shower wall

- Mosaic tile floor

- Dual shower niches

- Built in beauty vanity

- Separate sinks

1/2”=1’-0” 1/2”=1’-0”
Produced in Autodesk AutoCAD and Sketchup with V-Ray. Enhanced with Adobe Photoshop
Drawing credit to Kelsey O’Mahoney

KITCHEN & BATH DESIGN

NKBA Kitchen Remodel

The NKBA Student Design competition required a kitchen and primary bath remodel. The Johnsons wanted to display art and maintain a transitional style. They also wanted an area for their kids to be able to do their homework and a place for quick meals.

Design Objectives

- High-end feel

- Mixing metals

- Homework station

- Neutral color palette

Accomplishments

- Desk work space

- Classic colors and style

- Quality appliances

Design Features

- Butlers pantry

- Mosaic backsplash tile

- Large window above sink

- Breakfast nook

3- Point Perspective

KITCHEN & BATH
Produced in Autodesk AutoCAD and Sketchup with V-Ray. Enhanced with Adobe Photoshop Sub- Zero Wolf 36” Classic French Door Refrigerator/ Freezer Sub Zero Wolf 36” Gas Range Wolf Cabinetry Darmouth 5- piece classic Cabinet Sub Zero Wolf 34” Pro HoodLiner 22” Depth 400+ CFM Delta 27” Undermount Single Bowl Stainlesssteal Sink Delta Single Handle Pull Down Faucet With Touch Technology
Full set available upon request

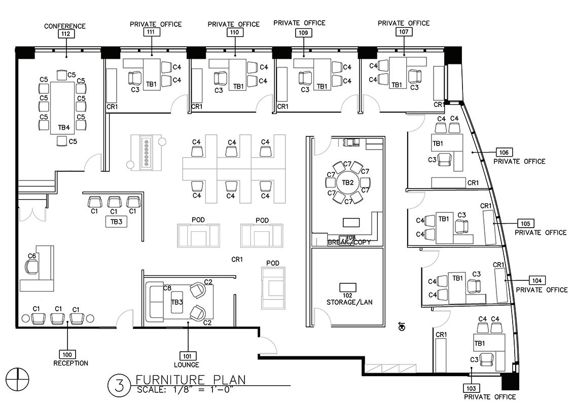
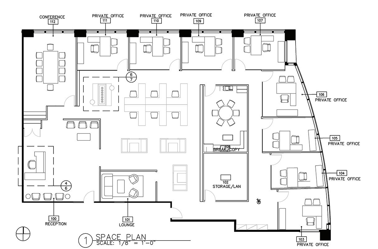
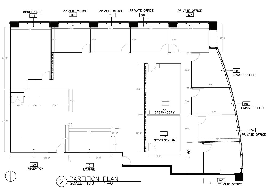
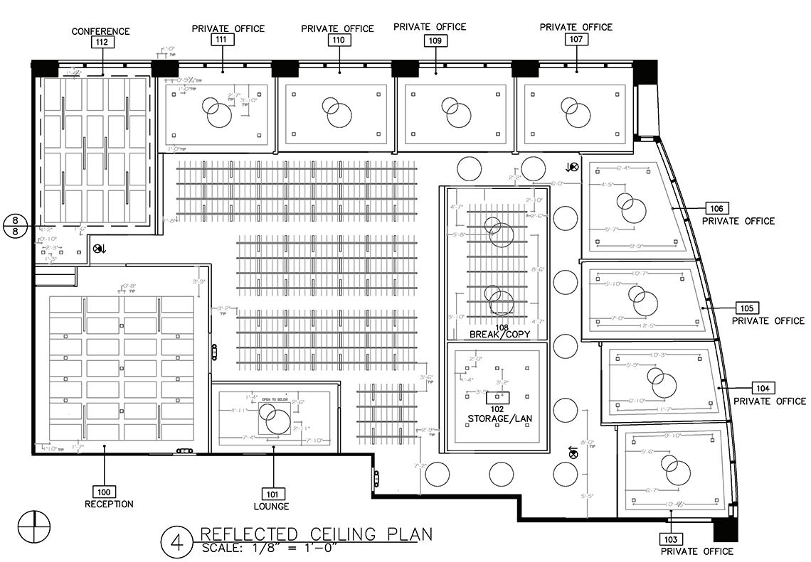
OFFICE DESIGN

Thrive Advertising

The objective was to design an office space for an advertising company. With several requirements from the client such as a reception space, a large conference room, a small conference room, 8 private offices, 6 workstations, and a break/copy room.

Design Objectives

- Wayfinding

- Daylighting

- Office equality

- Public vs. Private spaces

Accomplishments

- Full height glass walls

- Flooring differentiation

- Office square footage

- Conference rooms located near reception

Design Features

- Biophilia/moss wall

- Acoustic wall panels

- Fluted glass office walls

- custom reception desk

- Custom banquette seating

Produced in Autodesk AutoCAD and Sketchup with V-Ray. Enhanced with Adobe Photoshop

OFFICE DESIGN

Meghan Jungles Design Portfolio The College of DuPage

BIO

Meghan Jungles is a recent Interior Design program graduate from the College of DuPage. She is passionate about design and has a great set of technical skills. She enjoys the drafting and modeling process of design and takes pride in all her work. She enjoys working with Autodesk AutoCAD and Sketchup, as well as Adobe Photoshop and InDesign. She is eager to get into the field and believes her years in the service industry will greatly benefit her, providing excellent customer service to clients in a creative work environment.

Megjungles@gmail.com

Issuu.com/Junglesm

www.linkedin.com/in/meghanjungles

CONTACT
331-262-0694

Turn static files into dynamic content formats.

Create a flipbook
Issuu converts static files into: digital portfolios, online yearbooks, online catalogs, digital photo albums and more. Sign up and create your flipbook.
Interior Design Portfolio by Meghan Jungles - Issuu