
PORTFOLIO
s e l e c t e d w o r k s

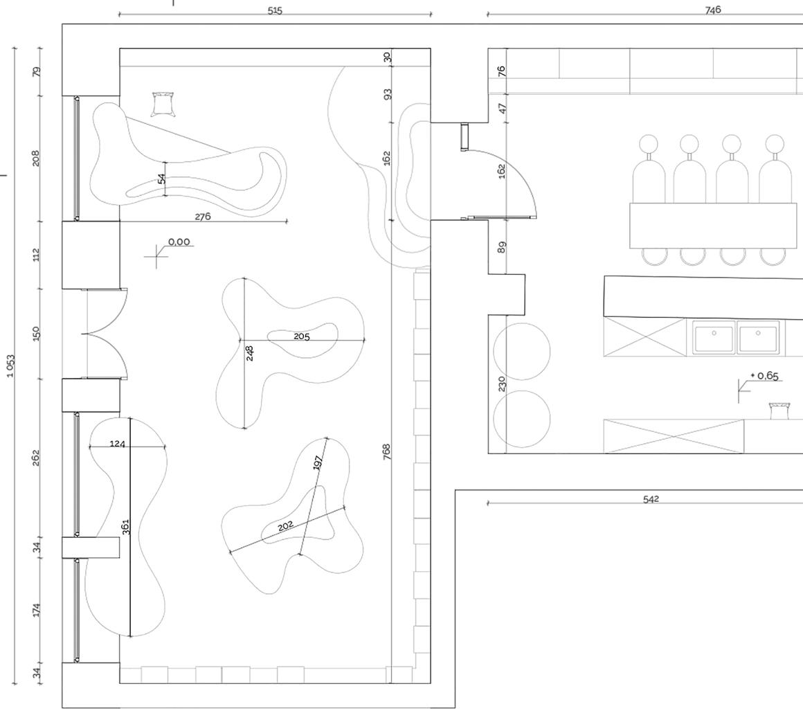
The aim of the assignment was to arrange the ground floor of a building at Ujazdowskie Avenue in Warsaw, the total area of which was just under 100 square metres. The main idea behind the project was to create a creative space with a shop offering ceramic products and weekend workshops in this craft for children and adults.


01. CERAMIC STUDIO
The inspiration for the design was primarily clay itself and its plastic ‚possibilities’. For this reason, the design is based on display elements and a shop counter with rounded shapes. The central point here is the display wall behind the counter, with recesses of also rounded forms. The shelving next to the wall is designed with a simple grid, so that it contrasts with the rest of the space. The colours and materials also refer to the ceramic raw material.



under construction, freelance project for EUROSAP Sp. z o.o. / 2025





Bringing in deep, rich red adds a bold but cozy energy to the space. It creates contrast and depth without overpowering the room, especially when it's layered thoughtfully. A few well-placed pops of color like this can completely shift the mood. Sometimes it only takes small accents to make the whole design feel more intentional and full of character.























