portfolio - arquitetura. 2023.

Page 1

arquiteturaeartes architectureandarts

port fo lio

juliarosa cunha

2 0 2 3

juliarosapiresdacunha 24/07/2002,19anos indaiatuba-sp,campinas-sp email:juliarosac02@gmail.com +55(19)99343-9682 www.linkedin.com/in/julia-rosa-cunha https://issuu.com/juliarosacunha/docs/cv_portfolio_-_julia_rosa

formaçãoacadêmica/educationalbackground colégioobjetivoindaiatuba ensinoprimário,fundamentalemédio primary,middleandhighschool

2003-2019 pontifíciauniversitáriacatólicade campinas-puccampinas faculdadedearquiteturaeurbanismo universityofarchitectureandurban studies-puccampinas

2020-2024 emprogresso 7ºsemestre cursodeintroduçãoaoautocad cursoonlinedaplataformadomestika.org 2021 formaçãoextracurricular/extracurricularactivities cursodeintroduçãoaosketchup cursoonlinedaplataformadomestika.org 2021 cursodephotoshopccparaarquitetura cursoonlinedaplataformaudemy.com 2021

softwares/softwares autodeskautocad avançado sketchup avançado

2020-atual

experiênciauniversitária/universityexperience membrodaatléticadafau-puccamp partedocomitêgeralediretoradeartesemarketing memberofgeneralcommittee,artandmarketingdirector offau-puccampathleticorganization

2021-2022

curriculumvitae cursodeintroduçãoaorevit cursoonlinedaplataformadomestika.org 2021 monitoriadedesenhobnafaculdade escolhidapelaprofessoraresponsáveldamatéria estágiodearquiteturaeprojetosdeinteriores escritóriodiegodecarvalhoarquitetura-1ªsemestrede2022 escritórioTAOSarquitetos-2ªsemestrede2022

pacoteadobe avançado arcgispro básico

layout intermediário v-ray intermediário

autodeskrevit intermediário pacoteoffice avançado

enscape avançado

lumion iniciante _experiênciaemprojetosdeinteriores,projetos executivos,modelagem,fotografiaerenders _experiência em design de marcas, logos e produtos, gestão de redes sociais e produção deconteúdoparaarquitetura _experiência em prefeituras e organização de documentos _experiência em desenho técnico e fácil adaptaçãoanovosprogramaseaprendizados.

idiomas/languages portugues línguanativa portuguese nativelanguage inglês fluente english fluent espanhol básico spanish basic francês iniciante french learning

2
currículo
2 0 2 3
3

04| 2 0 2 3 05

|

quadra urbana - complexo samaúma

centro de educação e formação complementar - escola salvador bove

4
01| 03| 02|
habitação-casacubo índice summary
uso misto - complexo embaúba para o bairro chácara da barra em campinas sala de concerto salvador boveprojeto de restauro e património cultural

casacubo

a casa cubo é uma residência estudantil universitáriade125m2,sendoumacasacom programa mínimo dividido em dois andares, que partiu da proposta de trazer retângulos encaixados e formas irregulares que movimentam e contrastam com o terreno planoesimples.

projetoautoral

primeiro trabalho do primeiro semestre da faculdade na matéria deprojetoA square house is a 125m2 university student residence, with a minimum program divided intotwofloors,basedontheproposaltobring embedded rectangles and irregular shapes thatmoveandcontrastwiththeterrain.

first project of the first semester of college in thesubjectofprojectA

casa
5
cubo squarehouse
01|
6

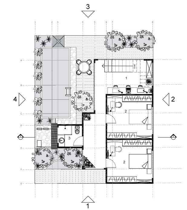
legenda 1.elevaçãonorte 2.elevaçãoleste 3.elevaçãosul 4.elevaçãooeste detalhes a.clarabóias b.caixad'água c.calha d.caixade maquinas

1.halldeentrada 2.saladeestar 3.cozinha 4.lavanderia 5.varal 6.saladetv 7.lavabo 8.piscina 9.casademáquinas

plantabaixa|cobertura escala1:100

plantabaixa|térreo escala1:100

1.áreade estudosaberta 2.quarta 3.banheiro cortea escala1:100

plantabaixa|1pavimento escala1:100

casacubo square
7
house

elevaçãonorte

elevaçãoleste elevaçãosul elevaçãooeste

8
2 0 2 3
casacubo squarehouse 9
10 2 0 2 3

complexoembaúba embaúbacomplex

complexoembaúba

o complexo embaúba projeta-se para suprir asnecessidadeslocaisemunicipais,alémde subverter a ideia de um lote fechado e privado, valorizando o espaço público. para isso realizou-se uma análise da região do bairrochácaradabarraondepercebeu-seum potencial de crescimento populacional e uma demanda de comércios de base como padarias e farmácias. assim, o complexo se distingue em dois usos, o habitacional e o comercial.

otérreo,paramelhorinteragircomacidade, recebe os comércios, serviços e atividades culturais e uma grande praça em meio a densamalhaurbana,compondoopartidodo projeto. o edifício se conforma nos recuos metaforizandoumabraçonessapraçaquese constituinocentrodolote.

the embaúba complex is designed to meet local and municipal needs, in addition to subvertingtheideaofaclosedandprivatelot, enhancing the public space. for this, an analysisoftheregionofthechacaradabarra neighborhood was carried out, where a potential for population growth and a demandforbasicbusinessessuchasbakeries and pharmacies was perceived. thus, the complex is distinguished in two uses, residentialandcommercial.

the ground floor, to better interact with the city, receives trade and services and cultural activitiesandalargesquareamidstthedense urban fabric, making up the project's party. the building conforms to the setbacks, metaphorizinganembraceinthissquarethat constitutesthecenterofthelot.

equipe beatrizmunhozferreira brenorotundarobraga guilhermemouramassucato isabelasaidmigueldasilvafalco juliarosapiresdacunha

trabalho do terceiro semestre da faculdade na matéria de projetoD

projectofthethirdsemesterof collegeinthesubjectofproject D

11
02|
12 2 0 2 3

complexoembaúba embaúbacomplex

plantabaixa|implantação escala1:1000

plantabaixa|térreo escala1:1000

plantabaixa|garagem escala1:1000

cortebbʼ escala1:500

plantabaixa|tipologias escala1:1000

plantabaixa|tipologias escala1:1000

corteaaʼ escala1:500

corteccʼ escala1:500

13

corteddʼ escala1:500

elevaçãonorte escala1:500

elevaçãoleste escala1:500

elevaçãosul elevaçãooeste

14
corteeeʼ escala1:500 2 0 2 3

quadraurbanasamaúma urbanblocksamaúma

quadraurbanasamaúma

o projeto para a nova quadra urbana do jardim garcia em campinas, chamado pela equipe de projeto samaúma, tem como principalpontoasconexõesentreasquadras. foram determinados fluxos de ligação entre elas, que proporcionam uma sensação de “caminhos” e “passeios”. além disso, esses fluxos foram pensados na praticidade de locomoção dos moradores das quadras que são divididas pelo córrego. também foi utilizado a topografia a favor do projeto, tendo foco principal nas três quadras selecionadasqueforamprojetadascommais detalhes.

programasutilizados

equipe beatrizmunhozferreira brenorotundarobraga danielsodrépascoal isabelasaidmigueldasilvafalco juliarosapiresdacunha

the project for the new urban block in jardim garcia in campinas, called samaúma by the project team, has as its main point the connections between the blocks. link flows were determined between them, which provide a feeling of “paths” and “walks”. in addition, these flows were designed for the convenienceoflocomotionforresidentsofthe blocks that are divided by the river stream. topography was also used in favor of the project, with the main focus on the three selectedblocksthatweredesignedwithmore details.

trabalho do quarto semestre da faculdade na matériadeprojetoC

project of the third semester of college in the subjectofpaisagismB

15
03|
16 1 3 2 4 5 6 7 8 9 10 11 12 13 14 15 16 H’
e
2 0 2 3
legenda: uso misto - habitacional
servicos/comércio usoresidencial usoinstitucional áreasverdes

quadraurbanasamaúma urbanblocksamaúma

plantabaixaimplantação |esc.1:1000

plantabaixa térreo|esc.1:1000

plantabaixa primeiroandar|esc.1:1000

0 5 10 0 5 10 corteCCʼ|esc.1:1000

CorteFFʼ|Quadra3 crecheinfantil

0 5 10

0 5 10

plantabaixa pavimentostipo|esc.1:1000 0 5 10 corteIIʼ|esc.1:1000 corteGGʼ|esc.1:1000 0 5 10 0 5 10

corteHHʼ|esc.1:1000 0 5 10

17
18 2 0 2 3

saladeconcerto salvadorbove

oprojetoderestauraçãodoedifíciohistóricoda antiga estação ferroviária de campinas - prédio da rotunda - contará com um anexo prismático cujousoserádestinadoàumasaladeconcerto. oedifícioreceberáaindaumaescolademúsica interligando os usos. o partido foi baseado nas radiais formadas a partir do centro da rotunda, seguindo uma malha radial e consequentemente a formação dos espaços através de um único ponto em comum. há um eixo que é orientado pelo centro da rotunda e segue até o final do complexo, definindo as praçaseáreasverdes. o nome salvador bove, é dedicado ao maestro salvador bove, o primeiro regente da orquestra sinfônica de campinas, inaugurada em 15 de novembrode1929.

the restoration project of the historic building of the former train station in campinas - the roundabout building - will have a prismatic annex whose use will be used as a concert hall. the building will also receive a music school connecting the uses. the design was basedontheradialsformedfromthecenterof the roundabout, following a radial mesh and consequentlytheformationofspacesthrough asinglepointincommon.thereisanaxisthat is oriented by the center of the roundabout and goes to the end of the complex, defining thesquaresandgreenareas. the name salvador bove, is dedicated to maestro salvador bove, the first conductor of the campinas symphony orchestra, inauguratedonnovember15,1929.

programasutilizados equipe brenorotundarobraga danielsodrépascoal isabelasaidmigueldasilvafalco juliarosapiresdacunha

trabalho do quinto semestre da faculdade na matéria de projeto frestauro e patrimonio cultural

fifth semester college work in the subject of project frestoration and cultural heritage

19
saladeconcertosalvadorbove salvadorboveconcerthall
04|

arelaçãoentreosedifíciosérealizadaatravésdas rampasqueconectamoprédiohistóricoda rotundacomasaladeconcerto.talrampa,com inclinaçãode5%,proporcionaumasensaçãode passeioaopercorrer-lá,incorporandoamesmano projeto,nãoapenascomoumarotanecessária.o anexoimplantadoédestacadodoedifício histórico,possuindoumvão,demodoque estabeleçaumadistinçãoentreoedifício pré-existenteeoquefoiimplementado.

maqueteeletrônica materialidade oanexoprincipal-saladeconcerto-será elaboradoporconcretobrancoemsuafachada externa,contandocomlajeimpermeabilizada aliadaaumisolantetérmicoacústico.os conjuntosdasrampasserãodecobogósdetijolos intercaladoscomfechamentosdevidro temperadode20mm.

20
2 0 2 3

saladeconcertosalvadorbove salvadorboveconcerthall

plantabaixa|implantação esc.1:1000

o edifício da rotunda será destinado para a escola de música, entrada e parte da estruturadasaladeconcerto,comoofoyer. arotundacontarácomoficina/luthier;salade aulapráticaeteórica;saladeaulaprática;sala deestudo;saladepianodecorda;mezanino/ área de permanência e descanso; sanitários; armazém; organização interna da escola de música;café/lanchonete;organizaçãointerna dasalaebilheteria;foyer. aconexãoentrearotundaeasaladeconcerto

sedáporumblocodevidrotemperadoqueé conectado com duas passarelas (com estruturadeaçoevidrotemperado20mm)nas laterais,queligamasaladeconcerto.

a relação entre o antigo e o novo é estabelecidaatravésdaspassarelas,poisasala de concerto não encosta no edifício histórico, se baseando no nosso partido de enaltecer a rotundaparaalémdonovoanexo.

a sala de concerto possui 4 camarins; 1 foyer; área de antecâmara; depósito; estrutura acústica (devido ao tempo de reverberação); 717assentos.

plantabaixa|térreo esc.1:1000

plantabaixa|subsolo esc.1:1000

21

cortea esc.1:1000

corteb esc.1:1000

cortec esc.1:1000

elevaçãoleste esc.1:1000

elevaçãooeste esc.1:1000

elevaçãonorte esc.1:100

elevaçãosul esc.1:100

2 0 2 3
23
saladeconcertosalvadorbove salvadorboveconcerthall
24 2 0 2 3

centrodeeducaçãoeformaçãocomplementarsalvadorbove salvadorbovecomplementaryeducationandtrainingcenter

centrodeeducaçãoe formaçãocomplementar salvadorbove

ocentrodeeducaçãoeformaçãocomplementar salvadorboveéformadopordoispavilhões,que se encontram perpendicularmente, e formam pátios internos e externos, abrigando todas as atividades para dar suporte aos integrantes. assim,foramcriadosdoiseixos,oestudantil,que serácompostoporestudantesdaquelaregião,e o de conexão, que conecta a avenida andrade neves com a rua lidgerwood, no centro de campinas. ocentroatenderádiversosestudantes,destinada desdeensinoprimárioaomédio,principalmente para alunos da escola orozimbo maia, que fica localizada na mesma rua (300 metros de distância apenas). além disso, há um potencial detransporte,poisficalocalizadoemumaregião onde passam as principais avenidas e tem potencialização ferroviária, por estar ao lado da fepasa.

salvador bove complementary education and trainingcenterismadeupoftwopavilions,which meet perpendicularly, and form internal and external courtyards, housing all activities to support members. thus, two axes were created, the student axis, which will be made up of students from that region, and the connection axis, which connects andrade neves avenue with lidgerwood street , in the campinas downtown center.

the school will serve several students, from primary to secondary education, mainly for studentsfromtheorozimbomaiaschool,whichis located on the same street (only 300 meters away).inaddition,thereistransportpotential,as it is located in a region where the main avenues pass and has railway potential, as it is next to fepasa.

programasutilizados equipe brenorotundarobraga isabelasaidmigueldasilvafalco juliarosapiresdacunha

trabalho do sexto semestre da faculdade na matériadeprojetoe

sixthsemestercollegework inthesubjectofprojecte

25
05|

onomedoprojetoédedicadoaomaestro salvadorbove,oprimeiroregentedaorquestra sinfônicadecampinas,inauguradaem15de novembrode1929,cujasaladeconcertoeescola demúsicafoiprojetadanamatériadeprojetoF pelonossomesmogrupo.

maqueteeletrônica

materialidade éformadoporum“L”emmeionívelqueabrigaseupátio interno.possuiumeixoprincipalqueatravessatransversalmente todaaquadra,com110metrosdeextensão. oprojetopossui1.609metrosdeáreacobertaesuaestruturaé deconcretoarmadomoldadoinloco,compilaresdeperfil 20x40evãode5a12,30metros.

26
2 0 2 3

centrodeeducaçãoeformaçãocomplementarsalvadorbove salvadorbovecomplementaryeducationandtrainingcenter

esc.1:250

plantabaixa|térreo esc.1:250

plantabaixa|pavimentosuperior esc.1:250

27

corted esc.1:250

elevaçãofrontal esc.1:250

elevaçãocontrafrontal esc.1:250

elevaçãolateraldireita esc.1:250

elevaçãolateraldireita esc.1:250

28 2 0 2 3
29
centrodeeducaçãoeformaçãocomplementarsalvadorbove salvadorbovecomplementaryeducationandtrainingcenter
30 2 0 2 3

email:juliarosac02@gmail.com +55(19)99343-9682

juliarosa cunha

2 0 2 3

Turn static files into dynamic content formats.

Create a flipbook
Issuu converts static files into: digital portfolios, online yearbooks, online catalogs, digital photo albums and more. Sign up and create your flipbook.
portfolio - arquitetura. 2023. by Júlia Rosa - Issuu