Portafolio. Julián Suescún

Page 1

PORTAFOLIO DE ARQUITECTURA

JULIÁN ALONSO SUESCÚN GARCÍA

“No puedes poner algo en un lugar simplemente. Tienes que absorber lo que ves a tu alrededor, qué existe en la tierra y luego usar ese conocimiento junto con el pensamiento contemporáneo para interpretar lo que ves.”

Tadao Ando

PORTAFOLIO DE ARQUITECTURA

JULIÁN ALONSO SUESCÚN GARCÍA

ARQUITECTO

Julian Alonso Suescun Garcia, se define propiamente como estudiante de Arquitectura de la Universidad Nacional de Colombia, quien decanta interés por la música, el voleibol y el mattepainting, al igual que por los métodos constructivos y los medios de representación gráfica desarrollado aplicados a través de procesos de diseño, ilustración, ambientación y dibujo desde las asignaturas teóricas y prácticas de la Universidad, además de una aplicación en concursos y proyectos de diseño con enfoque en arquitectura y urbanismos externos a la academia.

En el desarrollo profesional se encuentra medido por diferentes herramientas digitales y análogas, principalmente enfocadas al área de dibujo, posee conocimientos de herramientas tales como AutoCad, Revit, Shetchup, Photoshop, V-Ray , Indesing e Illustrator. Por otro lado, muestra aptitudes dentro de su desarrollo personal de compañerismo, responsabilidad, puntualidad, amabilidad, respeto y con una alta disposición a fomentar procesos integrales en pro a los objetivos definidos.

CONTACTO

Español, Inglés (Básico)

+57 3004749024

jusuescung@unal.edu.co / julian.s.g@hotmail.es

@julian_suescun Medellín , Colombia

EDUCACIÓN

• Pre grado en Arquitectura

Universidad Nacional de Colombia (2018-Actualidad). Avance 82,6%

• Bachiller académico con énfasis en informática

Colegio VID. Obra de la Congregación Mariana (2017)

EXPERIENCIA ACADÉMICA O INVESTIGATIVA

• Semillero de estudios espaciales

Universidad Nacional de Colombia (2022-Actualidad). Investigación - Matríz tipológica de la vivienda de interés social, cultural, rural en Colombia.

• SAG (Sistema de gestión Académica) Práctica académica especial

Universidad Nacional de Colombia (2022). Aplicación de protocolos BIM en Modelado de Edificaciones Fase II-III.

• Práctica académica especial

Universidad Nacional de Colombia (2022-01). Hábitat - Complejidad - Interdisciplinar. Diseño de intervención del hábitat como enfoque complejo y pedagógico. Investigación, acercamiento y propuesta a el caso de Santa Elena - Parque Arví. Barrio El faro.

EXPERIENCIA LABORAL

• Estudiante auxiliar

Universidad Nacional de Colombia (2022-Actualidad). Escuela de hábitat.

• Diseño arquitectónico

Diseño de vivienda rural y urbana (Actualidad).

• Estudiante auxiliar ISVIMED

Dibujo de planimetría de vivienda de interés social (Actualidad).

• Nebulosa Taller de Diseño

Diseño de mobiliario / Planimetría de mobiliario / Levantamientos

• El Taller de Arquitectos

Dibujo de planimetria arquitectónica y detalle para museo del canal de Panamá/ Representación gráfica en concurso privado.

• Concursos

Diseño y representación gráfica Kaira Looro/ Representación gráfica paisajes del agua, Rionegro.

HABILIDADES

Office Sketchup 3DMAX Revit V-Ray Indesing AutoCAd Photoshop Illustrator

CONTE NIDO

Casa de Niños (Baghere, África).

Centro Comunitario y Deportivo (Barrio Andalucía, Medellín)

CSH Colombia. (Puerto Carreño, Colombia)

Bloque Cohabitar. (Barrio Alejandro Echavarría, Medellín)

Unidad Biotecnológica. Universidad de Antioquia (Barrio Sevilla, Medellín)

Bloque M3. Protocolos BIM (Universidad Nacional, Medellín)

01 03 05 02
04 06
CONCURSOS PROYECTOS ACADÉMICOS

CASA DE NIÑOS

Baghere, África

Año

Tipo Autores Software

2022

Concurso público Kaira Looro para estudiantes y arquitectos jóvenes

Sobre el Proyecto

Bajo la premisa del Objetivo de Desarrollo Sostenible “Hambre Cero al 2030”, nos propusimos crear una arquitectura que brinde una experiencia sanadora a través de un camino, no solo físico, sino también mental y espiritual que traiga bienestar a sus habitantes y les permite estar en contacto permanente con el entorno natural y, al mismo tiempo, que su arquitectura inspirada en el legado cultural de Senegal, brinda espacios dinámicos en los que las familias locales disfrutan de un lugar de encuentro social que se enfoca en la prevención de la desnutrición en la niñez.

Para lograrlo, se propone inicialmente una serie de volúmenes en torno a un patio que funciona como una extensión natural del espacio exterior, que aglutina actividades lúdicas y culturales, el recorrido inicia con un área de recepción en la que se desarrollan actividades administrativas y de encuentro comunitario, seguido de un espacio de aprendizaje y finalmente, el área de reconocimiento médico y recepción que conecta visualmente con el bosque de Balmadou.

Valentina Cuartas, Jhon Florez, Felipe Gómez, María Fernanda Osorio, Julián Suescún
01
AutoCAD + Sketchup + V-Ray + Photoshop
1

CASA DE NIÑOS

Baghere, África

2
Planta General Isométrico Sección Transversal
3
Sección Longitudinal Render Interior Render Exterior Render Exterior Render Exterior

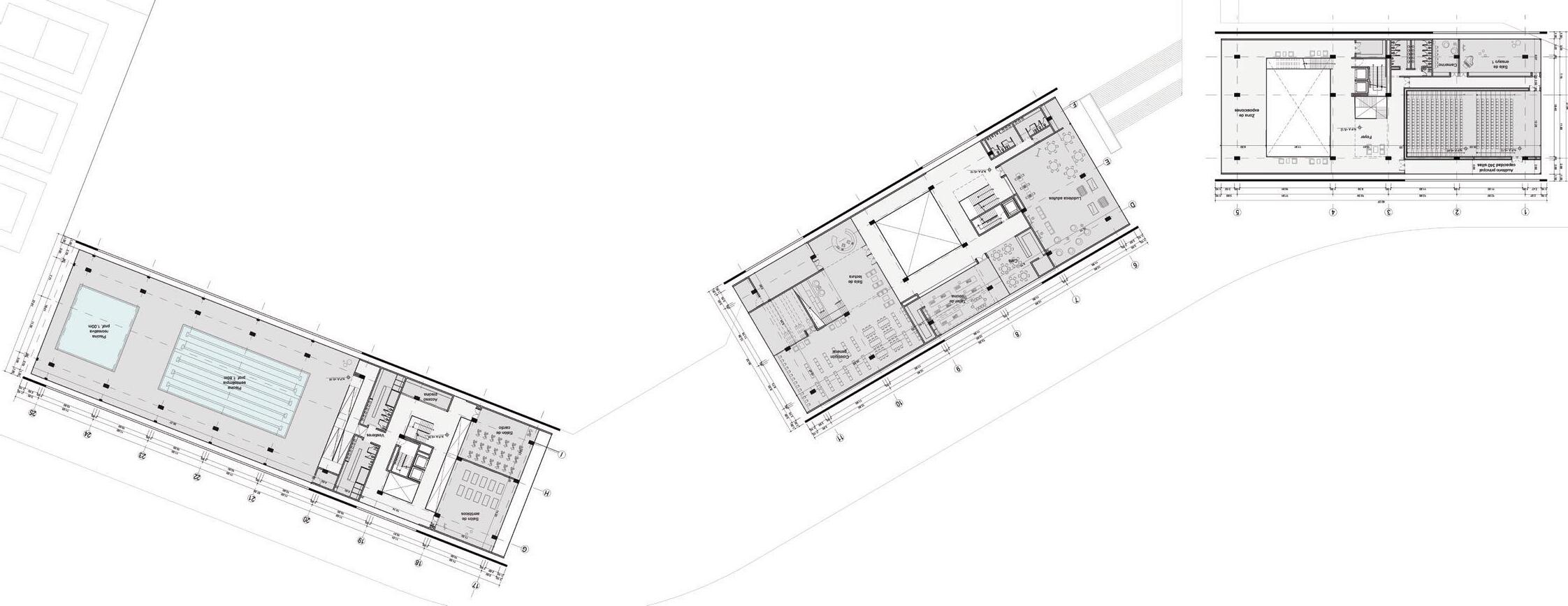
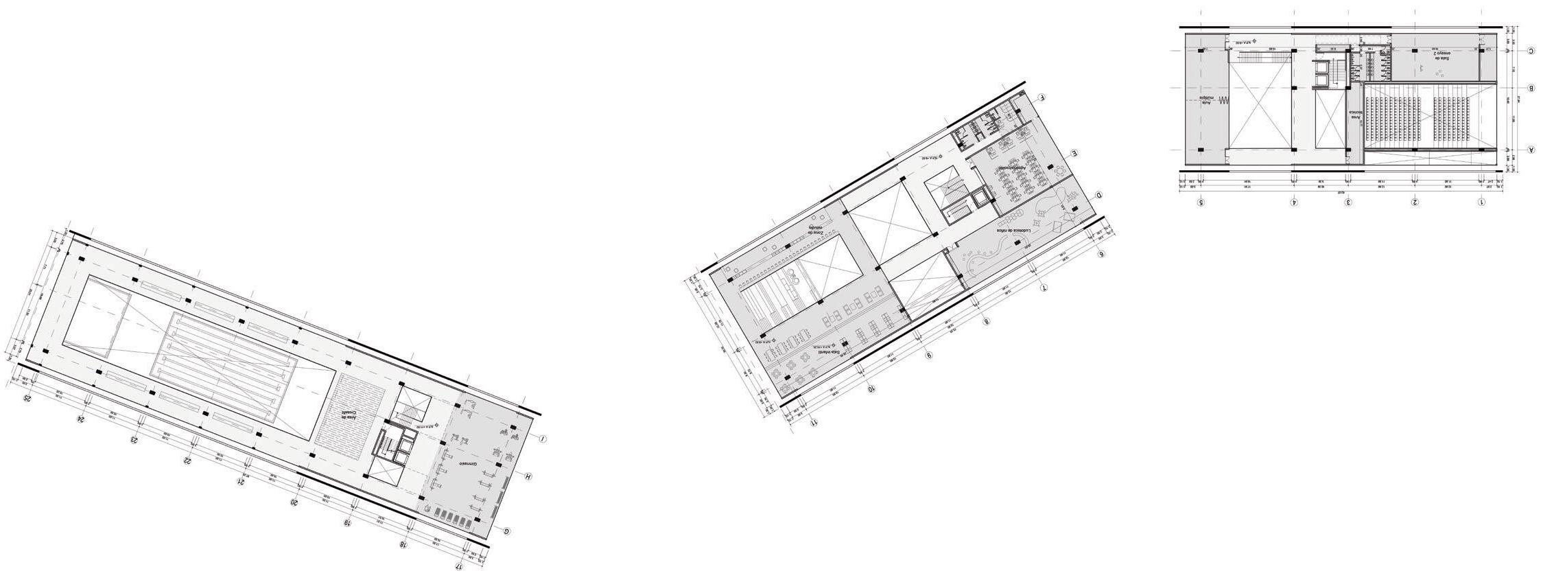
CENTRO COMUNITARIO Y DEPORTIVO

Andalucía, Medellín, Colombia

2022

Tipo

Proyecto académico. Edificio público. Taller de proyectos VII

Autores Software

Sobre el Proyecto

El proyecto se encuentra ubicado en la margen oriental del río Medellín, al sur de la estación Acevedo del metro. Se plantea como un proyecto urbano que busca integrar ambas orillas del río y servir como lugar de encuentro para los habitantes del norte de Medellín. La idea principal es aprovechar la pendiente del terreno para crear una cinta semisoterrada que conecta tres bloques con enfoques distintos en cuanto a lo comunitario, formativo y deportivo. A pesar de sus diferencias, mantienen un lenguaje común en respuesta al contexto, reinterpretando la fachada con placas de concreto y vanos en los puntos que se relacionan con el paisaje exterior.

Daniel Fernando Grajales Vanegas, Julián Alonso Suescún García
02
AutoCAD + Sketchup + V-Ray + Lumion + Photoshop
Año
5

CENTRO COMUNITARIO Y DEPORTIVO

Andalucía, Medellín, Colombia

6
Planta Urbana
7
Planta Nivel -1 Fachada Frontal

CENTRO COMUNITARIO Y DEPORTIVO

Andalucía, Medellín, Colombia

8
1
2
Planta Nivel
Planta Nivel
9 Planta Nivel 3
Render Interior Piscina Render Interior Galería Render Exterior Render Exterior Cancha

CENTRO COMUNITARIO Y DEPORTIVO

Andalucía, Medellín, Colombia

Sección Longitudinal Edificio Cultural

Sección Longitudinal Edificio Deportivo

10
11 Corte Por Fachada Edificio Deportivo

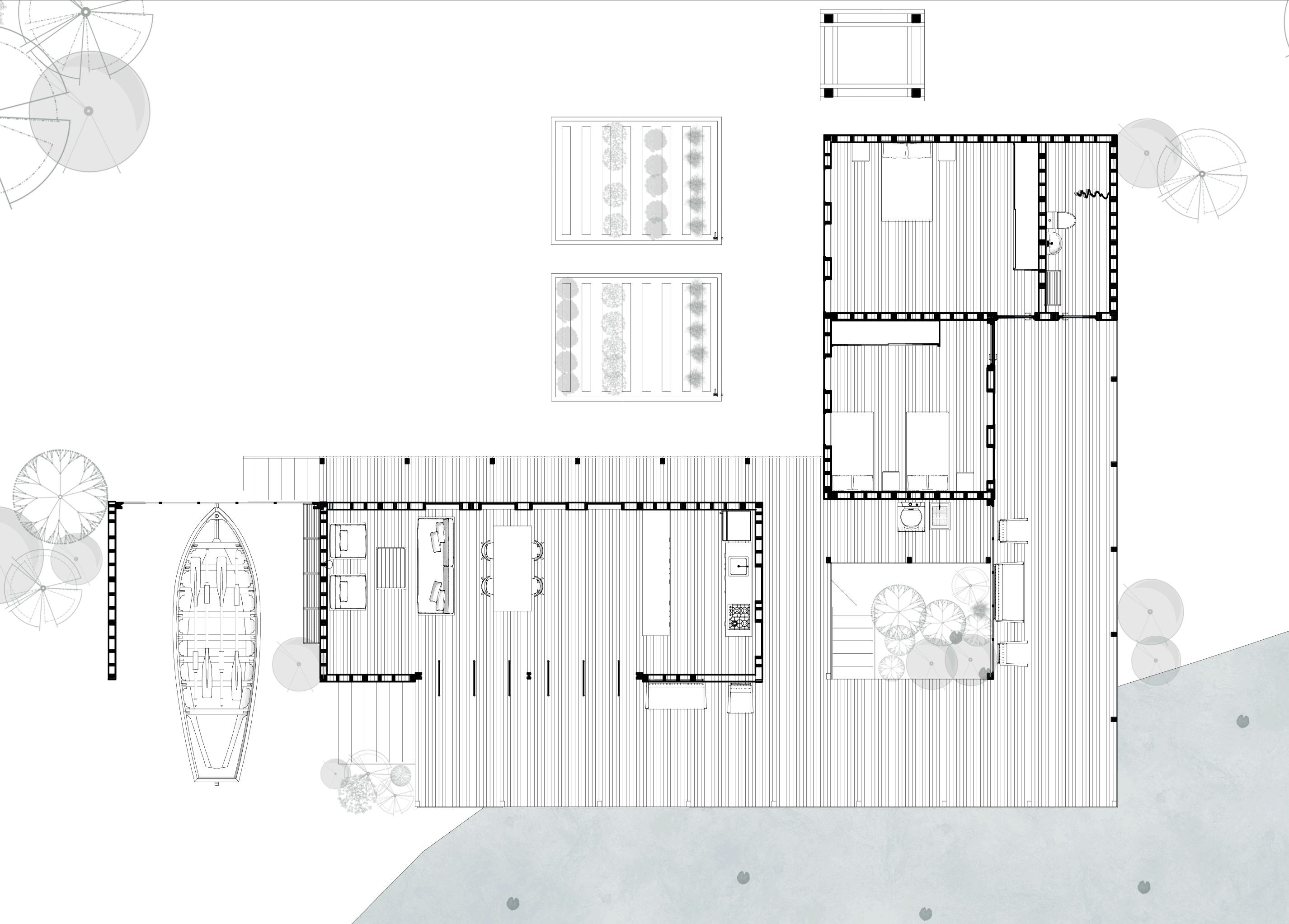
CSH COLOMBIA. VIVIENDA PESQUERA

Puerto Carreño, Vichada, Colombia

Año

Tipo Autor Software

2022

Proyecto académico. Vivienda rural pesquera. Énfasis en arquitectura moderna.

Julián Alonso Suescún García

AutoCAD + Sketchup + V-Ray + Photoshop

Sobre el Proyecto

Bajo la premisa del Objetivo de Desarrollo Sostenible “Hambre Cero al 2030”, nos propusimos crear una arquitectura que brinde una experiencia sanadora a través de un camino, no solo físico, sino también mental y espiritual que traiga bienestar a sus habitantes y les permite estar en contacto permanente con el entorno natural y, al mismo tiempo, que su arquitectura inspirada en el legado cultural de Senegal, brinda espacios dinámicos en los que las familias locales disfrutan de un lugar de encuentro social que se enfoca en la prevención de la desnutrición en la niñez.

Para lograrlo, se propone inicialmente una serie de volúmenes en torno a un patio que funciona como una extensión natural del espacio exterior, que aglutina actividades lúdicas y culturales, el recorrido inicia con un área de recepción en la que se desarrollan actividades administrativas y de encuentro comunitario, seguido de un espacio de aprendizaje y finalmente, el área de reconocimiento médico y recepción que conecta visualmente con el bosque de Balmadou.

03
13

CSH COLOMBIA. VIVIENDA PESQUERA

Puerto Carreño, Vichada, Colombia

ÁREA PRODUCTIVA AGRÍCOLA

TALLER- GARAJE

SALA - COMEDOR - COCINA

HABITACIÓN BAÑO

HABITACIÓN

ÁREA PRODUCTIVA PESQUERA

JARDÍN DE HORTALIZAS

Planta General

14

Sección Longitudinal

Sección Transversal

15
Fachada Frontal

CSH COLOMBIA. VIVIENDA PESQUERA

Puerto Carreño, Vichada, Colombia

Imaginario Exterior Huertas

Planta General

Imaginario Exterior Zona Pesquera

Planta General

16
17
Fachada Posterior Fachada Lateral Derecha Fachada Lateral Izquierda

BLOQUE COHABITAR

Alejandro Echavarría, Medellín, Colombia

Año

Tipo Autores Software

2022

Proyecto académico. Edificio residencial - Vivienda colectiva. Taller de proyectos VIII

Sobre el Proyecto

El proyecto Cohabitar busca integrarse de manera armónica en el territorio en el que se ubica, tomando en cuenta la morfología y topografía específicas del sector. Se pretende una conexión directa con el entorno, tanto desde el punto de vista ambiental como cultural y social, así como con los medios de transporte disponibles. La manzana cuenta con dos edificaciones de bloque compacto, con amplios espacios públicos que permiten la conexión entre ellas y su integración con el sector.

De esta manera, se propone una concepción del territorio en la que se destaca la morfología de la manzana y su relación con el entorno. Se busca crear nuevos espacios para la población flotante y permanente, que logren corresponder al momento contemporáneo manteniendo la comunidad actual y permitiendo la integración de una nueva comunidad en la zona. Para ello, se han diseñado siete tipologías de módulos habitacionales con espacios flexibles que fomenten la interacción entre los habitantes. Se utiliza una materialidad neutra con materiales locales, predominando el ladrillo oscuro en la fachada y la madera y el concreto en el interior para crear una atmósfera cálida y pura, y se incorporan muebles fijos y flexibles para adaptarse a las necesidades específicas de cada habitante.

Juan Felipe Gómez Giraldo ,Julián Alonso Suescún García
04
AutoCAD + Sketchup + V-Ray + Photoshop
19

BLOQUE COHABITAR

Alejandro Echavarría, Medellín, Colombia

20
Planta Urbana

Render Exterior

Sección Transversal

Render Exterior

Render Exterior

Render Exterior Terraza

Sección Longitudinal

21

BLOQUE COHABITAR

Alejandro Echavarría, Medellín, Colombia

Planta Nivel 1

22
Sección Urbana Longitudinal Sección Urbana Transversal

Render Interior Apt Tipo E

Render Interior Apt Tipo C

Planta Nivel Social

Render Interior Apt Tipo E

Render Interior Apt Tipo E

Planta Nivel Terraza

23
Planta Típica

BLOQUE COHABITAR

Alejandro Echavarría, Medellín, Colombia

24
Render Exterior Vista Área Isométrico Corte Por Fachada
25 Corte Por Fachada

UNIDAD BIOTECNOLOGÍA UDEA

Sevilla, Medellín, Colombia

Año

Tipo Autores Software

2022

Proyecto académico. Urbanismo sostenible /Edificio residencial sostenible. Taller de proyectos VI

Julián Alonso Suescún García, Gabriel Jaime Zapata Restrepo

AutoCAD + Revit + Sketchup + V-Ray + Photoshop

Sobre el Proyecto

La unidad biotecnológica de la universidad de Antioquia, conforme a los lineamientos de la propuesta urbana, se compone de un programa nutrido de vivienda, laboratorios y talleres que se articulan al espacio público mediante el comercio y un recorrido museográfico que se abre hacia el parque de la innovación.

El primer piso se hace permeable para desembocar en un patio que estructura el proyecto desde adentro con sus estancias adaptadas a la pendiente y a la flexibilidad de usos y un recorrido en rampa que determina la llegada a un invernadero que funge como espacio de ocio y espacio de insumos para la unidad biotecnológica.

En los niveles superiores de vivienda se establece una relación visual directa con el parque por medio de zonas sociales abiertas totalmente a una o dos alturas que permiten la iluminación y la ventilación de las circulaciones de la torre de vivienda.

05
27

UNIDAD BIOTECNOLOGÍA UDEA

Sevilla, Medellín, Colombia

28
Planta Urbana

Sección Urbana Longitudinal Sección Urbana Transversal

29
Fachada Frontal

UNIDAD BIOTECNOLOGÍA UDEA

Sevilla, Medellín, Colombia

Sección Longitudinal

Fachada Lateral Derecha

30
31
Fachada Posterior Fachada Lateral Izquierda

UNIDAD BIOTECNOLOGÍA UDEA

Sevilla, Medellín, Colombia

32
Planta Típica Apt Docentes Planta Típica Apt Estudiantes Planta Nivel 4 Terraza Laboratorios Planta Nivel 3 Laboratorios
33
Planta Nivel 12 Isométrico General Planta Terraza Render Interior Laboratorios Render Interior Zona Social Render Exterior Terraza

Bloque M3 Facultad de Minas, Medellín, Colombia

2022

Tipo

Proyecto académico. Sistema de gestión académica. Aplicación de protocolos BIM

Autores Software

Revit

Sobre el Proyecto

Bajo la premisa del Objetivo de Desarrollo Sostenible “Hambre Cero al 2030”, nos propusimos crear una arquitectura que brinde una experiencia sanadora a través de un camino, no solo físico, sino también mental y espiritual que traiga bienestar a sus habitantes y les permite estar en contacto permanente con el entorno natural y, al mismo tiempo, que su arquitectura inspirada en el legado cultural de Senegal, brinda espacios dinámicos en los que las familias locales disfrutan de un lugar de encuentro social que se enfoca en la prevención de la desnutrición en la niñez.

Para lograrlo, se propone inicialmente una serie de volúmenes en torno a un patio que funciona como una extensión natural del espacio exterior, que aglutina actividades lúdicas y culturales, el recorrido inicia con un área de recepción en la que se desarrollan actividades administrativas y de encuentro comunitario, seguido de un espacio de aprendizaje y finalmente, el área de reconocimiento médico y recepción que conecta visualmente con el bosque de Balmadou.

06
Año
35

Bloque M3

Facultad de Minas, Medellín, Colombia

36
1
2
Planta Nivel
Planta Nivel
37 Explotado General

Bloque M3

Facultad de Minas, Medellín, Colombia

38
Isométrico MEP Eléctico
39 Isométrico
Hidrosanitario
MEP
Portafolio Completo Drive Instragram
Copyright © 2023. Julián Alonso Suescún García. Todos los derechos reservados Julián Suescún G. +57 3004749024 jusuescung@unal.edu.co
PORTAFOLIO DE ARQUITECTURA

Turn static files into dynamic content formats.

Create a flipbook
Issuu converts static files into: digital portfolios, online yearbooks, online catalogs, digital photo albums and more. Sign up and create your flipbook.