Portafolio de arquitectura

Page 1

1 Portafolio Arquitectura: de 2022 Juliana Burgos Ospina

Juliana Andrea Burgos Ospina. Arquitecta interesada en el diseño, teoría y construcción de la Arquitectura y urbanismo, partiendo desde una mirada critica e integral. Consciente de la responsabilidad social de la disciplina, del impacto de esta en la sociedad y del marco ético como el deber ser profesional.

2
Cv Formación Arquitectura, Universidad Pontificia Bolivariana 2021 - Diplomado en Arquitectura interior, Sociedad Colombiana de Arquitectos, regional Antioquia, 2021 - Asistencia técnica en procesos constructivos SENA 2015 - Asistencia técnica en acabados SENA 2015 Media técnica en electrónica Colegio Monseñor Alfonso Uribe Jaramillo, 2013 Información - Correo electrónico: juliburgos1811@gmail.com - Teléfono: + 57 3168206468 - Sitio Web: https://julianaburgos0.wordpress.com Habilidades Programas digitales Autocad Arcgis Revit Sketchup Photoshop Ilustrator Indesign Lumion V-ray Fotografía Digital Análoga Habilidades constructivas Manejo de herramientas básicas para construcción

Experiencia académica

- Auxiliar de investigación en el semillero de urbanismo Universidad Pontificia Bolivariana SIUR 2017- 2019

- Póster de investigación en el 4to Foro de responsabilidad social universitaria Universidad Católica de Manizales y la Universidad Pontificia Bolivariana, Manizales 2018

- Monitor de Taller de proyectos I de arquitectura, Universidad Pontificia Bolivariana 2019

Póster de investigación y co-organizadora del 5to Foro de responsabilidad social universitaria, Universidad Pontificia Bolivariana - Medellín 2019

Participación como expositora en la Semana Centenaria de la Sociedad Colombiana de Arquitectos regional Antioquia, Medellín 2019

- Participación en taller de diseño y construcción Urbanautas, dirigido por Ruta 4 en San Isidro, Puerto Caldas, Risaralda 2019

- Integrante del Colectivo de Estudiantes de la Sociedad Colombiana de arquitectos CESCA regional Antioquia 2019

- Ponente en el IV Seminario internacional de procesos urbanos informales, Universidad Nacional de Colombia, Bogotá 2019

- Co-organizadora del XVIII Taller Social Latinoamericano, Tejiendo Paisajes, Manizales, Colombia 2022

Ponente del proyecto XVIII Taller Social Latinoamericano, tejiendo Paisajes en la XXVIII Bienal Colombiana de Arquitectura y Urbanismo, Bucaramanga, Colombia 2022

Participación en el pabellón; De lo estético lo fenomenológico y lo ético, de CESCA junto a Taller de Tierra, en la XXVIII Bienal Colombiana de Arquitectura y Urbanismo, Bucaramanga, Colombia 2022

Experiencia laboral

Co-fundadora de Rurban-Lab, fundación de arquitectura 2019

Arquitecta junior en DH Visual 2021

Arquitecta en Coonvite cooperativa de arquitectura 2021-2022

3

Concursos y reconocimientos

- Pontente en el IV Seminario internacional de procesos urbanos informales, Habitar el sur global con justicia territorial de la Universidad Nacional de Colombia en 2019

- Participación en el Hult prize (etapa 2), con el proyecto Escuelas de construcción sostenible junto a la fundación Rurban - Lab, 2019-2020

Mención de honor en el premio Corona pro hábitat 2022 junto a Coonvite por el proyecto centro comunitario indigena; Guanga, centro para encuentros ancestrales en Sibundoy, Putumayo, Colombia, 2022

Reconocimiento en la convocatoria buenas prácticas Carlos Pellegrino por el proyecto XVIII Taller Social Latinoamericano, tejiendo Paisajes en el Tercer Simposio LALI, 2022

4
5
6
Contenido

XVIII Taller Social Latinoamericano Tejiendo Paisajes, Manizales 2022

Pabellón Cesca

De Lo estético lo fenomenológico y lo ético, 2022

Guanga, centro para encuentros ancestrales, Sibundoy, Putumayo 2022

Co - creación parque del rió norte, hacia un urbanismo reparador, Medellín 2021

Participación en taller Urbanautas de Ruta 4, San Isidro, Puerto caldas, Pereira 2019

Conexión Vallejuelos, Medellín 2019

Habitar el territorio, Itagüi 2018-2019

Epicentro, centro de intercambios urbanos 2018

1 2 3 4 5 6 7 8

7
Fotografía tomada por el equipo audiovisual TSL

XVIII Taller Social Latinoamericano:

Tejiendo Paisajes, Manizales 2022

Participantes

Organizadores: CLEA Y CESCA

Comité organizador: Elizabeth Gómez Martínez, Susana Quevedo, Liseth Ramirez , Juliana Burgos Ospina

Comunidades: Comunativa (San José), Cultura Viva (Bajo Andes) y Junta de acción comunal (Manzanares)

Talleristas: La cabina de la curiosidad (Ecuador), Ruta 4 (Colombia), República Portatíl (Chile), Bicistema (Colombia), Lucía Garzón (Colombia) y Coonvite (Colombia)

Para el XVIII taller social latinoamericano realizado en la ciudad de Manizales, colombia. Se propuso el tema de tejer paisajes en 3 comunidades: el barrio San José, el barrio Bajo Andes y la vereda Manzanares.

Por 15 dias junto a cada comunidad, el grupo de talleristas, delegados y demás participantes. se llevaron a cabo 3 intervenciones con el objetivo de tejer y re-tejer, el territorio; construirlo, confirmarlo, producirlo, enlazarlo, desde los fenómenos en los qué se materializan expresiones históricas y culturales1 paisajes, partiendo desde 3 situaciones socio-espaciales particulares en la ciudad.

1-Tejer fisuras históricas en San José como punto de quiebre de un momento histórico y e transformación de la ciudad. en este taller se construyo el Salón Apu Kumandai y una serie de intervenciones en el parque Urbitante.

2- Tejer fronteras en Bajo Andes entre la ciudad planificada contemporánea y la ciudad autoproducida. En este taller se planteo en varias etapas el Bio parque para la niñez-

3- Tejer territorios en Manzanares entre límites centro y periferia que expresan la sectorización socio espacial de la ciudad. En este taller se realizó el mejoramiento de la caseta comunal partiendo de la premisa de la Unidad común.

Nota Archdaily: https://acortar.link/McSpAJ

9

1
10
San José
11
12
Bajo Andes Manzanares

Pabellón CESCA

Participantes

Equipo organizador: CESCA Nacional (Colectivo de estudiantes de la sociedad colombiana de arquitectos, Colombia)

Aliados: Taller de Tierra

Aporte: Construcción pabellón, redacción, edición y diagramación del manifiesto: De lo estético, lo fenomenológico y lo ético

Para la XXVIII Bienal Colombiana de Arquitectura y Urbanismo llevada a cabo en la ciudad de Bucaramanga, Colombia. El colectivo de estudiantes CESCA junto a Taller de Tierra; pensaron, construyeron y ensamblaron un pabellón, con la intención de hablar de esa otra arquitectura representando la idea de proyectar desde el bienestar.

Para la construcción del pabellón se uso la madera, la tierra, el fique, la guadua; técnicas artesanales que representaron la necesidad de retomarlas en la arquitectura contemporánea. Para su construcción, participaron estudiantes de distintas regiones del país, lo cual permitió tener un acercamiento a dichas técnicas constructivas por medio del aprendizaje in situ.

Como estrategia para unir las ideas proyectadas, se escribió un manifiesto que permitió enlazarlo todo y expresara la voz del colectivo.

Enlace manifiesto:

https://issuu.com/cesca-sca/docs/de_lo_est_tico_lo_fenomenol_gico_y_lo_tico-_comp

15 2
De lo estético lo fenomenológico y lo ético, 2022
16
17
Imagen tomada de Coonvite cooperativa de arquitectura

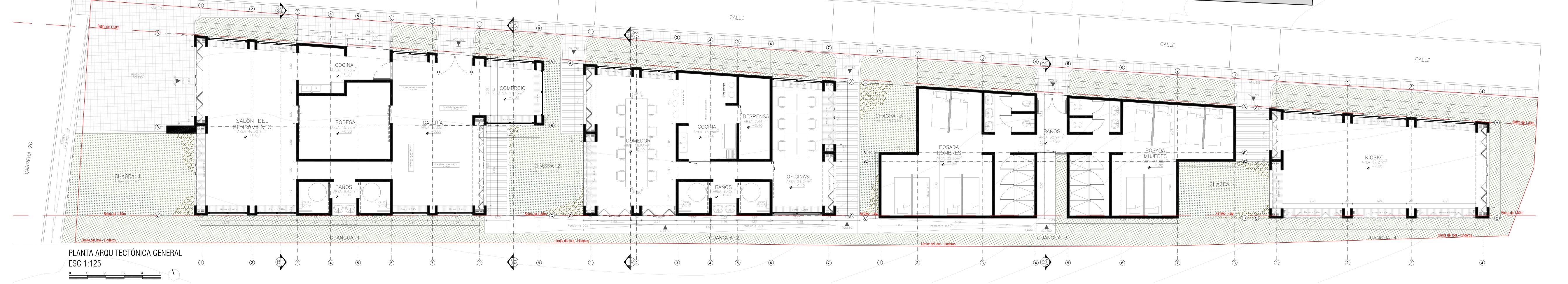
Guanga, Centro para encuentros ancestrales, Sibundoy, Putumayo 2022

Oficina: Coonvite cooperativa de arquitectura

Equipo: Juan Miguel Durán, Sara Londoño Palacio, Kelly Rodriguez Acevedo, Maryelín Botero Ocampo, Mario Ramirez y Juliana Burgos

Aporte: Modelado 3D y desarrollo planimétrico

El centro comunitario indígena; Guanga centro para encuentros ancestrales. Es un equipamiento el cual desarrolla por medio de un sistema progresivo constructivo (premisa concurso) las diferentes necesidades espaciales de la comunidad indígena Sol de los pastos. Para ello cada módulo de salones se dispone de una losa sobre pilotes con un núcleo de servicios, un cerramiento de muros en mampostería recubiertos de tierra para conservar la temperatura y una estructura en madera para la cubierta; la cual permite tener un ingreso de luz por medio de un gran tragaluz.

Como premisa espacial del proyecto, se parte de albergar las Chagras (formas de cultivos indígenas) y los 4 módulos que disponen el equipamiento; el salón del pensamiento, en el cual se llevarían acabo las actividades de la comunidad, el salón comedor, el área de posada para las personas de la comunidad que visitaran el centro poblado y el kiosco, un espacio para realizar fiestas.

3
20
21

Co-creación:

22
Parques del Río Norte Desde un Urbanismo Reparador 2021 Portada libro, tomada de Coonvite cooperativa de arquitectura

Co - creación Parque del Rió Norte, hacia un urbanismo reparador, Medellín 2021

Oficina: Coonvite cooperativa de arquitectura

Encargo: Cauce Arquitectura del paisaje

Equipo: Orlando Vázquez, Juan Miguel Duran, Nataly Pabón, Juliana Burgos y Cristian Ríos (Cauce)

Aporte: Redacción, edición, ilustración y diagramación

Partiendo de la experiencia previa de diseño realizada en el proyecto de espacio público parques del Río Medellín, centro. En el que se evidenciaron carencias en el proceso participativo con la comunidad, lo cual trajo malestar y una gran sería de controversias en el momento que se ejecutó dicho proyecto.

Por lo anterior CAUCE la oficina diseñadora de parques del río norte, junto a la oficina Coonvite cooperativa de arquitectura, como estrategia participativa de diseño, crearon una conversación de ciudad, en la cual se invitaron a diversos actores; comunidad institucional, de experto, académica ,y de líderes sociales. Para comentar, reflexionar y crear memoria respeto a los aspectos particulares de diseño para dicho territorio.

Dichas memorias y proceso se recopila en el libro Co-creacion Parques del Río Norte desde un urbanismo reparador.

Libro versión digital:

https://issuu.com/co-creacion/docs/co_-_creaci_n_parques_del_r_o_norte_-_desde_un_urb

23
4
Imagen tomada de Ruta 4 arquitectura

Participación en taller Urbanautas de Ruta 4, San Isidro, Puerto caldas, Pereira 2019

Oficina: Ruta 4

Aporte: Participación en el taller; Maquina del paisaje.

La oficina de arquitectura ruta 4, realizó en el año 2019 el taller práctico URBNAUTAS en la comunidad de San Isidro. Participaron varias oficinas de arquitectura como: Natura Futura (Ecuador) , Aqualta (Paraguay),OSA (Colombia) y LARVA (Colombia).

Se realizaron dos talleres Arboiris y La máquina de paisaje.

La maquina del paisaje: partió de la necesidad de tener un espacio junto al árbol del abuelo, donde los niños y niñas pudieran jugar y tener un espacio seguro para tener conversaciones con psicología para comentar asunto personales.

Este espacio construido en guadua, permite tener dos actividades al tiempo, al tener dos niveles, en el primer nivel es posible jugar y tener una relación con el árbol del abuelo (Símbolo del lugar) y en el segundo, es posible ver el paisaje lejano, el sol, la luna y las estrellas, en donde se vuelve ameno conversar.

25 5
26
27
Imagen propia

Conexión Vallejuelos, Medellin 2019

Participantes

Organizador: Semillero de urbanismo SIUR, Universidad Pontificia Bolivariana

Aliados: Ruta 4, Fundación Saciar, Templo comedor y comunidad de Vallejuelos

Desde el semillero de urbanismo SIUR de la Universidad Pontificia Bolivariana, como actividad del 5to foro de responsabilidad social universitaria de arquitectura, se realizaron unas sería de intervenciones llamada Conexión vallejuelos. En la cual junto a la niñez que asistía al templo comedor (Fundación Saciar), los vecinos y los asistentes del foro. Por medio de una estrategia de señalética pintada en distintos lugares del barrio con frases como : ¿Por aquí a donde llego?, ¡ Que lindo te vez vallejuelos!, ! Que hubo vecino! Se busco crear conciencia para una mejor apropiación del territorio.

Ademas junto a la niñez se desarrolló el taller de MOTI; una iguana que hacia referencia a la quebrada La Iguana, la fuente hidria que pasa por vallejuelos.La cual fue pintada por distintos lugares del barrio para recordar la importancia de la quebrada.

Este proceso comunitario se expuso en el IV Seminario internacional de procesos urbanos informales, Habitar el sur global con justicia territorial de la Universidad Nacional de Colombia en 201.9

Memoria ponencia:

https://issuu.com/julianaburgos2/docs/dialogos_intergeneracionales_en_vallejue

29 6
30

Casa de la señora Marleni

Casa de la señora Rosalba

Casa del señor francisco

Casa de la señora Lupe

Por : Juliana Burgos Ospina Estudiante de arquitectura .

MAPA VALLEJUELOS
Metro cable Calle del medio Templo comedor Puente a las margaritas La cancha El colegio El parque Lugar del sancocho Casa de Matias Casa de Casa de a señora Rubiela Casa de la señora Lúz
Collague fuente propia

Habitar el territorio, Itagüi 2018-2019

Participantes

Etapa investigación: Verónica Pérez, Aranxa Cardona, Alejandra Jaramillo, Diana Vallejo, Juliana Burgos Ospina

Etapa proyecto arquitectónico : Juliana Burgos Ospina

El proyecto Habitar el territorio, es la culminación del trabajo de grado académico (PDT Mejoramiento integral de barrios) etapa de investigación desarrollada en el taller de proyectos 10 de la Universidad Pontificia Bolivariana.

La etapa de investigación planteo el modelo urbano de el asentamiento poblado rural El porvenir Itagüi, desde la perspectiva del mejoramiento integral de barrios. Para lo cual se propuso la convergencia entre bolsas articuladoras sociales y franjas contenedoras de bordes naturales en un asentamiento dual de transición.

Memoria proyecto de investigación:

https://issuu.com/julianaburgos2/docs/monografia-final__1

En la etapa de proyecto arquitectónico, desde la escala de actuación urbanista (UAU 6) de 1.4 Ha y partiendo de la premisa de Habitar el Territorio, se propuso como estrategia urbana, un circuito programático el cual se retro alimenta y funciona por medio de 3 estrategias: aprender para proteger, conectar para visibilizar y cooperar para reconocer, esto con el fin de mejorar la calidad de vida de sus habitantes en relación lo natural, lo domestico y lo público.

Se proyectaron redes de senderos peatonales, espacio público, dos equipamientos (Reciclateca y Bioteca) y 3 tipologías de vivienda (rurbana, productiva y la progresiva)

33
7

Esquemas urbanos

Productiva

Progresiva

Rurbana

Tipologías de vivienda

34
35
Isométrico urbano Maqueta equipamiento Reciclateca
36 Heidegger.M CONSTRUIR | HABITAR | PENSAR La cuaternidad El cielo Divino La tierra Los mortales Habitar 1951 Cosas que son lugares Se convierte el lugar en un espacio “ ” Construir desde el habitar y pensar para el habitar = Macro Intermedio Interior y Exterior nvertidos o mezc ados - Escala - Materia Arquitectura intermedia De adentro a afuera / De afuera a adentro Naturaleza -------------- Arquitectura Lugar Produce Fujimoto. S = Es residir en las cosas junto a Contrucciones de relaciones determinado según de referencia (físicas, demográficas, biológicas,económicas ) y que lo articulan, desencadenando procesos simultáneos de Recuperado de diccionario de Arquitectura avanzada editorial Metapoli 1994 relación SOCIAL ESPACIAL
Espacial CARACTERÍSTICAS DEL TERRITORIO Ladrillera el ajizal Pequeños cultivos Taller de confecciones Gentrificación Organizaciones Comunitarias Contaminación quebrada Mal manejo de residuos 1 lugar de reciclaje Salas SolarespúblicasPatios Escalonamiento Pasajes Tiendas de barrio Carpinterías Peluquerías Retroalimentación nóicatnemilaorteR óicatnemilaorteR n E.público Equipamientos Vivienda E.público Micro Molar se cruza con lo molecular Deseo del campo social Diferencias sociales Guattari.F Rolnik.S 2006 = Política a pequeña escala Rol minoritario de un grupo de personas satu Quo OJO de poder formal e informal de los lugares Micro Molar se cruza con lo molecular Diferencias sociales Rolnik.S = minor tario de de Quo de Maqueta urbana UAU Esquema idea
Espacial

Planta propuesta de Mejoramiento integral de barrios

MODELO DE OCUPACIÓN 3D

Isométrico propuesta Mejoramiento integral de barrios

37
PDT - MBI El Porvenir 120 FORM
Collague fuente propia

Epicentro, centro de intercambios urbanos 2018

Taller de proyectos 8, Universidad Pontificia Bolivariana

En el taller 8 de arquitectura de la universidad pontificia bolivariana, se planteó como tema del taller académico, el edificio híbrido en el centro de Medellín.

Partiendo de los principios del edificio híbrido, el cual busca combinar usos en un edificio denso dentro de un fragmento de una ciudad. Se propone el centro de intercambios urbanos, este edificio pretende conectar las actividades comerciales del centro de Medellín, la vivienda en altura, el patrimonio y el cine.

Programa: Cinemateca (Fachada patrimonial), Auditorio, vivienda en altura, espacios comerciales y plaza urbana.

39
8
40
Planta primer piso Maqueta
41
42

La arquitectura no comienza en el primer trazo de una línea en un papel, sino que inicia conversando con el otro, dialogando, intercambiando pensamientos, ideas, anécdotas; Quizá ese debe de ser nuestro primer paso al momento de proyectar, romper esa barrera que nos ponemos entre nosotros y darnos cuenta que desde el diálogo se empieza a construir la arquitectura.

43

Turn static files into dynamic content formats.

Create a flipbook
Issuu converts static files into: digital portfolios, online yearbooks, online catalogs, digital photo albums and more. Sign up and create your flipbook.