PORTFOLIO
inż. arch. Julia Kóska
2019 - 2024



![]()
inż. arch. Julia Kóska
2019 - 2024



Nazywam się Julia Kóska i obecnie jestem w trakcie studiów magisterskich II stopnia Architektury na Politechnice Śląskiej w Gliwicach. Od najmłodszych lat zajmowałam się artystyczną działalnością, taką jak rysunek, ceramika, czy rzeźba, a architektura stała się nie tylko dziedziną kariery, w której chciałabym odnieść sukces, lecz także moją pasją, z której czerpię wiele satysfakcji w procesie kreatywnym. Od początku przygody z architekturą interesowało mnie najbardziej rozwijanie wyobraźni przestrzennej i projektowanie w 3D, dlatego nieustannie próbuję pogłębiać wiedzę w tym zakresie i szkolić się, aby tworzyć fotorealistyczne wizualizacje. Inspirację do projektowania czerpię z otaczającego mnie piękna, dlatego uwielbiam podróżować, obserwować architekturę i sztukę oraz poszerzać horyzonty o nowe rozwiązania. Moje priorytety projektowe to przede wszystkim: minimalizm, funkcjonalność oraz spójność z naturą.
CZĘŚĆ I (SZKOLENIA I KURSY)
1 SZKOLENIE TWORZENIA FOTOREALISTYCZNYCH WIZUALIZACJI ARCHITEKTONICZNYCH | VIZACADEMY | 2023
CZĘŚĆ II (PRACA ZAWODOWA)
1. PROJEKT ORAZ WIZUALIZACJE NOCNE HALI Z BIUROWCEM
2. PRZEBUDOWA OŚRODKA WYPOCZYNKOWEGO, DĄBKI
3. PROJEKT WNĘTRZA WILLI MODERNISTYCZNEJ, KATOWICE
4. PROJEKT WNĘTRZA DOMU W BOLECHOWICACH
5. DODATKOWE PROJEKTY
CZĘŚĆ III (PROJEKTY STUDENCKIE I KONKURSY)
Jedną z wizualizacji wykonanych podczas szkolenia było odwzorowanie fotografii restauracji z Łodzi. W ramach kursu nauczyłam się jak modelować, tworzyć materiały od podstaw (m in welur, drewno, płytki ceramiczne, cegła), wprowadzać oświetlenie sztuczne i naturalne, jak optymalizować sceny oraz elementów kompozycji, kadru i postprodukcji.
Szkolenie trwało od 30 10 2023 do 20 12 2023 r i dało mi świetny merytoryczny wstęp do umiejętności tworzenia wizualizacji, który chciałabym kontynuować.




Fazę koncepcyjną projektu hali z biurowcem w Czechowicach-Dziedzicach rozpoczęłam w 2023 roku w firmie Inbud od inwentaryzacji terenu po starym tartaku, objętego ochroną konserwatorską Następnie po wytycznych konserwatorskich zaprojektowałam biurowiec nawiązujący do modernistycznych budynków wokół. Zaprojektowana została również hala wielofunkcyjna dla małych przedsiębiorstw pod wynajem, dostosowana także dla osób niepełnosprawnych Rok później, zostałam poproszona o stworzenie wizualizacji projektu w celach marketingowych, aby otrzymać dotacje unijne Po konsultacjach z inwestorem oraz burmistrzem Czechowic-Dziedzic, proces przebiegł pomyślnie, a teren dawnego tartaku zostanie zrewitalizowany.

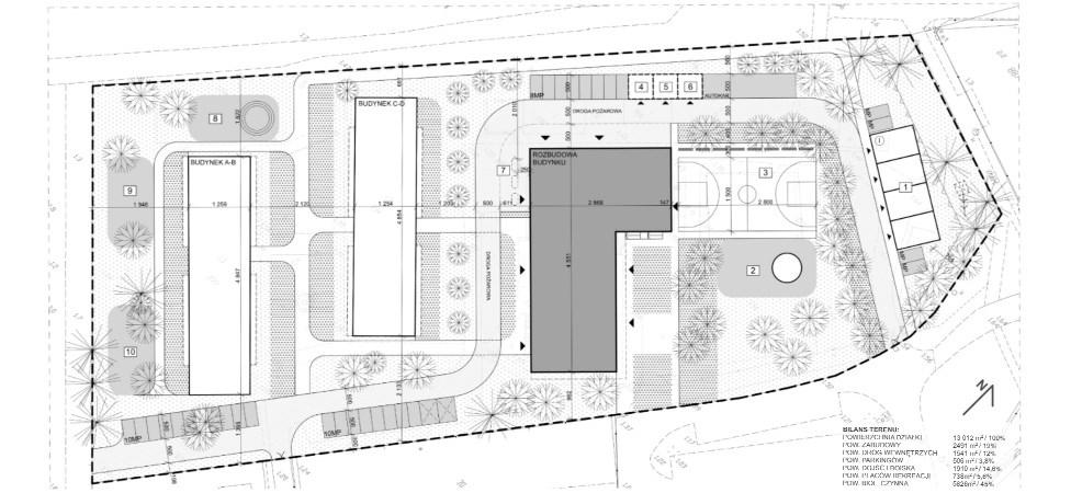
Tematem opracowania to istniejący ośrodek wypoczynkowy OW Carbo położony nad jeziorem Bukowo w woj. zachodniopomorskim. Jest to kompleks składający się z dwóch budynków hotelowych oraz budynku administracyjnogastronomicznego, nad którego koncepcją pracowałam Z uwagi na swoje lata, ośrodek wymaga gruntownego remontu Przygotowane zostały dwie koncepcje, całkowicie nowego budynku w miejscu istniejącego oraz rozbudowy obiektu. Inwestorzy zdecydowali się na rozbudowę budynku poprzez powiększenie zaplecza gastronomicznego oraz sali jadalnianej (dzięki przeszklonej oranżerii), a także dodaniu funkcji noclegowej na kondygnacji +1 Zmiana materiałów elewacyjnych dodała obiektowi nowoczesnego charakteru, przy zachowaniu spójności z otaczającą go naturą. Projekt realizowany w zespole 4 osobowym.




Tematem opracowania jest willa modernistyczna z lat 30. XX w znajdująca się w Katowicach przy ul. Mazowieckiej. Inwestor zgłosił się w celu zaprojektowania nowego układu funkcjonalnego wnętrza, zachowując jego dawny klimat Charakterystyczne ściany prowadzone po łuku, zostały powielone również wewnątrz. Zastosowano wysokiej klasy materiały, włoski marmur, drewno tropikalne, czy mikrocement.. W hallu wyeksponowano kolekcję obrazów klienta, zastosowano drzwi z ryflowanego szkła czy nowoczesną interpretacje witrażu przy klatce schodowej Poziom -1 willi zagospodarowany został na przestrzeń z saunami, Poziom 0 to część dzienna z salonem, kuchnią, Poziom +1 to część sypialna z dużą garderobą oraz pokojami gościnnymi, za to Poziom +2 to przeszklony wykusz przekształcony na siłownię. Projekt opracowywany był w zespole 3 osobowym w pracowni k3xmore










Projekt wnętrza domu jednorodzinnego dla rodziny 4 osobowej Klienci zakupili dom od dewelopera, który nie spełniał do końca ich oczekiwań pod względem zagospodarowania przestrzeni, dlatego przeanalizowany został nowy układ funkcjonalny wnętrza z uwzględnieniem nowych potrzeb użytkowników domu. Parter to kuchnia z salonem, pokój biurowy oraz mała łazienka dla gości, za to piętro to sypialnia z garderobą i łazienką master oraz dwie sypialnie dziecięce z łazienką, i pralnia. Inspiracją do stworzenia wystroju domu było zamiłowanie klientów do ciemnych oraz przytulnych wnętrz. Zastosowano m.in. spieki kwarcowe, laminaty z ciemnego drewna, mikrocement oraz dużo szkła. Neutralne kolory tworzą spójną całość Projekt realizowany w zespole 3 osobowym w pracowni k3xmore

Od początku studiów jestem aktywna jako grafik 3D i w wolnym czasie realizuje zlecenia na wizualizacje dla deweloperów, wizualizacje produktowe oraz modelowanie i wizualizacje wnętrz. Każdy z tych projektów dał mi cenne doświadczenie, możliwość szlifowania umiejętności w programach oraz pracy z klientem. W ramach zleceń realizowałam m.in. Dom jednorodzinny w Krakowie, wizualizacje dla salonu meblowego z ich produktami, wnętrza mieszkań w Zakopanem, czy pokoje dziecięce.







Tematem projektu było stworzenie kompleksowego obiektu centrum badań molekularnych, w którego skład wchodzą biblioteka, kawiarnia, laboratoria, biura oraz hala do celów badawczych. Obiekt to prosta bryła w monochromatycznej bieli i drewnie. Część elewacji pokryta została blachą perforowaną, dodającą walor lekkości i ażurowości Wnętrze za to wykonane jest głównie z naturalnych materiałów, w tym drewna, aby nadać przytulności i ciepła tej przestrzeni. W bibliotece centralnym punktem stają się drewniane schody pełniące funkcje zarówno komunikacyjną jak i wypoczynkową. Obiekt zlokalizowany jest na działce w dzielnicy akademickiej przy Politechnice Śląskiej w Gliwicach i zakłada dobre skomunikowanie piesze zarówno z akademikami, jak i wydziałami uczelni, czy Parkiem Chrobrego.





STRUKTURY USŁUGOWOKOMUNIKACYJNEJ W OPARCIU O OBIEKTY PAROWOZOWNI
Projekt realizowany w 4 osobowym zespole we współpracy z PKP. Założenie struktury usługowo-komunikacyjnej w formie zielonej kładki ułatwiającej dostęp dla ludzi z różnych części Katowic Koncepcja zakłada obiekty biurowe, gastronomie, część muzealną, warsztatową oraz tereny rekreacyjne i sportowe. Założenie to opiera się na zrewitalizowaniu opuszczonej Parowozowni w centrum Katowic i stworzenie nowego atrakcyjnego punktu na mapie miasta Część elewacji starego budynku zaproponowano aby uzupełnić szklanymi cegłami Zabytkowe prowadnice wykorzystano aby postawić scenę czy stare wagony dla części muzealnej. Podporami i trzonami kładki są jednocześnie obiektu biurowe z usługami. Kładka zakłada tereny zielone, rekreacyjne i sportowe.

Temat realizowany w ramach projektu Power P4S Koncepcja modułowej kabiny dla rybaków, w której mogą znaleźć chwile wytchnienia i ochronę przed ciężkimi warunkami atmosferycznymi. Wnętrze zostało zaprojektowane w sposób kompaktowy i funkcjonalny. Wewnątrz znajduje się kominek, hamaki , toaleta i aneks kuchenny. Zaproponowano dwa rodzaje kabin: na platformie pływającej oraz na palach na zalewowym terenie






PRZYPAŁACOWEGO W IWANO-FRANKIWSKU NA UKRAINIE
Koncepcja zagospodarowania terenu przy Pałacu Potockich w Iwano-Frankiwsku zakłada stworzenie zróżnicowanej przestrzeni o symbolicznym znaczeniu Zaprojektowano labirynty w zbożu, bramy wykonane ze słomy, naprowadzające na wejście do poszczególnych części pałacu i imitujące te oryginalne, modułowe meble miejskie wykonane ze słomy, scenę symbolizującą dom, czy lampy z motywem ptaków jako dążenia do wolności Ciekawym elementem przestrzeni jest również mur z siatki do wyszywania z włóczki by zaangażować przechodniów do wspólnych interakcji.

5 CENTRUM LECZENIA TRAUM ORAZ REHABILITACJI, POLAŃCZYK ZDRÓJ NAD JEZIOREM SOLIŃSKIM
Temat realizowany w ramach projektu inżynierskiego. Jest to projekt koncepcyjny obiektu użyteczności publicznej zlokalizowany nad Jeziorem Solińskim Budynek zawiera różnorodne sale terapeutyczne oraz rehabilitacyjne, zielone atrium wewnątrz, strefę noclegową dla pacjentów oraz funkcje dodatkowe, jak kawiarnia, czytelnia czy basen. Projekt zakłada dostępność dla ludzi niepełnosprawnych oraz zawiera przestrzenie mające na celu redukcję stresu Z uwagi na wymagające potrzeby osób z zaburzeniami psychicznymi, zaproponowano przestrzenie zarówno prywatne, terapeutyczne, jak i do integracji w większych grupach.









6 HOTEL & SPA, GLIWICE
KONCEPCJA Z WYKORZYSTANIEM CERAMIKI W PROJEKTACH ARCHITEKTONICZNYCH OBIEKTÓW WIELOFUNKCYJNYCH.
Główną ideą projektu było dopasowanie do długiej oraz wąskiej działki budowlanej poprzez zaprojektowanie konstrukcji złożonej z nieregularnie rozmieszczonych sześciennych modułów, połączonych pełnym naturalnego światła, długim i zaokrąglonym szklanym korytarzem Elewacja budynków wykonana jest z trzech różnych rodzajów cegieł. Budynek składa się z 30 pokoi hotelowych, sali konferencyjnej, restauracji, SPA & WELLNESS. Lokalizacja to śródmieście Gliwic, blisko centrum, więc byłaby to dobra opcja dla podróży służbowych, ale także dla osób, które chcą wziąć udział w niektórych wydarzeniach organizowanych na stadionie Arena znajdującym się po drugiej stronie ulicy. Hotel znajduje się również blisko terenów rekreacyjnych parku. Projekt realizowany w zespole 2 os. (udział 50 %)





Głównym założeniem tego projektu było stworzenie atrakcyjnej przestrzeni do życia w częściowo zdegradowanym terenie kopalni na obrzeżach Krakowa (Zesławice), składającej się z różnego rodzaju budynków (jednorodzinnych, szeregowych lub wielorodzinnych), które wtapiają się w otoczenie, spore różnice w wysokości terenu oraz już istniejącą zabudowę, tworząc harmonijną całość. Projekt obejmuje również rozwiązania błękitno-zielonej architektury, zbiorniki retencyjne, uporządkowaną zieleń oraz stworzenie ciągów pieszych łączących lokalne centra wraz z terenami rekreacyjnymi Praca w zespole 8-os












8 KONKURS NA PARK KIESZONKOWY, GLIWICE
Przedmiotem konkursu był program funkcjonalno-przestrzenny oraz koncepcja urbanistycznoarchitektoniczna zagospodarowania terenu parku kieszonkowego W trzyosobowym gronie stworzyliśmy projekt o okrągłym kształcie składający się z kilku przestrzeni, takich jak: plac zabaw, food truck, strefa chilloutu z hamakami czy tężnia solankowa. Centralną część stanowi drewniany pawilon, w którym można zorganizować warsztaty edukacyjne dla dzieci, kino plenerowe lub scenę na kameralne imprezy Ławka w kształcie fali opływająca centralną część inspirowana jest przepływem wody, który jest głównym tematem pracy sponsora konkursu PWiK. Organiczne kształty dobrze komponują się z otaczającym środowiskiem naturalnym tworząc harmonijną i przyjemną przestrzeń do spędzania czasu. Nasza praca została opublikowana w opracowaniu ,,Park kieszonkowy w Gliwicach Studium możliwości dla centrum edukacji odpowiedzialności społecznej, edukacji ekologicznej i kulturalnej” Projekt realizowany w 3-osobowym zespole (udział w pracy 33%).




