Julia Wennerholm 2024 Portfolio

Page 1


“I am my body”, Gabriel Marcel claims, but “I am the space, where I am” declares the poet Noel Arnaud.

The biomimetic principles shaping the building’s structural support, materiality, and water collection system demonstrate sustainable architecture and honor the turtle shell’s timeless efficacy.

The biomimetic principles shaping the building’s structural support, materiality, and water collection system demonstrate sustainable architecture and honor the turtle shell’s timeless efficacy.

The biomimetic principles shaping the building’s structural support, materiality, and water collection system demonstrate sustainable architecture and honor the turtle shell’s timeless efficacy.

By emulating the turtle’s ingenious natural engineering, the SHELL-ter integrates form and function.

By emulating the turtle’s ingenious natural engineering, the SHELL-ter integrates form and function.

By emulating the turtle’s ingenious natural engineering, the integrates form and function.

Just as the turtle survives by synergizing shell strength and water proficiency, the SHELL-ter leverages these adaptations to foster rainwater remediation.

Just as the turtle shell’s scutes are arranged in interlocking hexagons and pentagons to allow flexibility, the SHELL-ter’s roof comprises translucent recyclable polycarbonate modules in these shapes.

Rainwater flows down the roof modules into the building’s petal-shaped collectors, initiating the first phase of remediation.

BOTANICA COMMONS

Speculating on the Spec-House

Instructor // Andrew Bruno Date // Summer 2023

Commons Botanica is a communal housing space that celebrates the symbiotic relationship between nature and privacy and community. The heart of the commons lies in its four interconnected units, united by central porches that serve as botanical spaces. Every so often the garden is open to visitors and the homeowners open their doors to host and display their gardens. As inhabitants embrace their private living spaces, they are also offered the opportunity to cultivate a sense of community within the serene embrace of the garden porches. Here, neighbors can gather, share stories, and forge deep connections amidst the beauty of nature. The sprawling roofs and porch covers offer ample shade.

The initial form displayed by the footprint of the house creates a hidden orthogonal rigidity within the scattered rooms. The space converges in on itself as the room creates more intimacy on the porches by inching closer to its counterpart side as the make your way to the back of the building. The gable trusses extend beyond the roofline at parts where the initially collaged footprint has not been extruded upwards to still imply those spaces.

Each of the two structures contain 2 dwellings that fit 2-4 residents. The Botanical spaces form a private community that unifies the residents in a shared peaceful space. the space is obsured.

5 private residences + cafe and community garden

Multi generation housing + Gallery

4 private dwellings + botanical gardens

Site // Sweetwater Creek, Georgia

The sections above emphasize the steep slope of the site and how the subterainian architecture responds to it. The section in the middle highlight the tunnes with light wells.

The light penetrating the tunels above bring light back into the undergroud space that lacks the lux featured above ground.

1

7

Various light devices include lightwells in the tunnels, auditorium and outdoor studio, as well as spinning largescale blinds in the indoor studio that adjust according to daytime cofortability.

The site has a historic structure that was constructed in 1849 mill for production of clothing and other materials before it burned down. I aimed to comlpement rather than overshadow the mill.

MULBERRY FISH-FARM

Eco-Industrial Park

Traditionally, mulberry tree fish-farm systems have been located in China and Japan. The system works in a closed loop system to reuse waste and produce products such as, mulberries, fish, and silk. Various other poducts are then sent to neighboring industries in the eco-industial park suck as the silk to crafts and produce to food processing. The fish ponds saturate and fertilize the soil of the nearby mulberry trees. Due to the variety of fish and mulberry trees species that can possibly work within the system, an application of the system in the Fata Burnu village in Darfur is plausible. The shapes of the ponds derrived from the parks shared parti lines spreading across the village. The trees then wrap around the ponds and neighboring industries.

The Fishpond’s visitor center acts as a learning and exhibition space for people to come in and learn about the farm. Its form derives from the circular vernacular villager huts and the hard-lined Japanese farmhouses to marry the two design cultures. The building itself contains temporary food storage and aspace for the silkworrms to eats the mulberry leaves to begin their process of becoming cocoons on large bamboo disks. There is also a classroom space as well as a mulberry tea cafe and exhibition space/gift shop for visitors to experience to by-broducts of the farm.

The various stages of the

The three primary aspects of the closed loop cylce are the mulberry tree, fish, and silkwoms. Each stop in the cylce benifits the next and each of the three aspects output goods.

The Mulberry farn is part of a larger eco-industrial park where each industry in the park work symbioticly to output resources. The neighboring industries are water, carfts, and food proccessing.

Location // Fata Burnu, Darfur, Sudan

The studio utilized a 3-d clay printing robotic arm to physically recreate the parti lines used to divide up the industries in the park. We used sand, flour, and other items study the lanscape and form possibilities for our individual nodes.

3D Printed Clay Study Model
Mulberry Trees

CATALAN VAULTS

Barcelona Study Abroad

Date // Summer 2022

Site // Jardins de Sebastia Gasch, Barcelona, Spain

The city of Barcelona is one for the people. The Eixample, Catalan for ‘’expansion’ or ‘Expansion District’’, is a district of Barcelona between the old city (Ciutat Vella) and what were once surrounding small towns, constructed in the 19th and early 20th centuries. The original envisioned expansion had courtyard park spaces surrounded by building which made up each block of the district. It was meant to make the city freeflowing and built for a human scale and give residents greenspaces to enjoy. Most of these interior spaces were filled up with arking lots and other buildings making disregarding the city planner’s original intent. A gutting proccess in the 80s began to empty these spaces and fill them with green spaces and other programtic areas for people to flow in and out of. This studio attempted to fill specific block with these space using the planners original intent. We were given the Jardins de Sebastia Gasch which is located near the busy mainstreet of Placa Espanya and bust sports stadium. We enjoyed the pre-existing conditions of a changing in elevation in the space and a quiet garden-like atmosphere. Therefore, We did not want to change too much of the space but wanted to accent it to only make it more successful. We introduced a Calatan vault roof shading system to aid in protecting inhabitants from the intense sunlight. We also indroduced seating stairs and sand pits to accent the pre-existing elevation change seen on the site. This project aimed to pay attention and respect to what already existed such as how the catalan roofs introduced follow the peculiar lines created from the gutting proccess.

Tile Pattern Above

Tile Pattern Below

Bricked Ramp

Remove the tile on smaller ramp and relaying as red brick pattern of bottom room

Stepped Sand Pit Seating

The stepped seating creates new rooms within the rooms divided by the elevation change.

Defining Walls

(With structural columns highlighted)

Catalan Arched Canopy

Catalan arches to enclose space and stretch rooms.

The black and white images dispay the gutting process of the 80 empty these interior spaces to make way for gardens. Following this removal the Jardins de Sebastia Gasch was introduces which contains a

teenagers would hang

and socialize in. We did not want to obstruct or deter the pre-existing inhabitants.

The black and white images dispay the gutting process of the 80 empty these interior spaces to make way for gardens. Following this removal the Jardins de Sebastia Gasch was introduces which contains a child space in the lower elevation where many teenagers would hang out and socialize in. We did not want to obstruct or deter the pre-existing inhabitants.

Tile Pattern Below

The black and white images dispay the gutting process of the 80s the attempted to empty these interior spaces to make way for gardens. Following this removal the Jardins de Sebastia Gasch was introduces which contains a childrens park and quieter space in the lower elevation where many teenagers would hang out and socialize in. We did not want to obstruct or deter the pre-existing inhabitants.

observed hanging laundry and sitting on these balconies.

Surrounding the park above is a neighborhood of balconies of apartments. People can be observed hanging laundry and sitting on these balconies.

Surrounding the park above is a neighborhood of balconies of apartments. People can be observed hanging laundry and sitting on these balconies.

FITTING + MISFITTING

Deep Decoration Studio

Instructor // James Park

Partner // Cayleigh Nicholson

Date // Fall 2021

Site // San Francisco, California

Our building aimed to create a space focused on craft and creation on a human scale in a post-industrialized age as well as connect designers to the process The workshop spaces not only provide a space for individuals to work but also to meditate on the temporal aspects of materials, how objects rot or grow in different the future and past of human making.

This includes new research into natural materials such as mycellium blocks and algae as well as studying older methods of natural making processes, such as also emphasize ethical creation through awareness in where these materials have come from and how we can reconnect modernity to material literacy through of local materials and resources. The public examples of metalwork, echoes of shipbuilding industry and infastructure all easily acecessed from our site on the for our program.

THE HOMELIKE CITY

RESEARCH ASSISTANT FOR EXHIBITION BY ANDREW BRUNO

Date // Spring 2024

As my curiosity deepened regarding how living space defines behavior, I was asked by my professor, Andrew Bruno, to assist in his research exhibition expanding on his Studio premise. We combed databases for unutilized government-owned plots around the city and intervened with rudimentary experimental housing propositions.

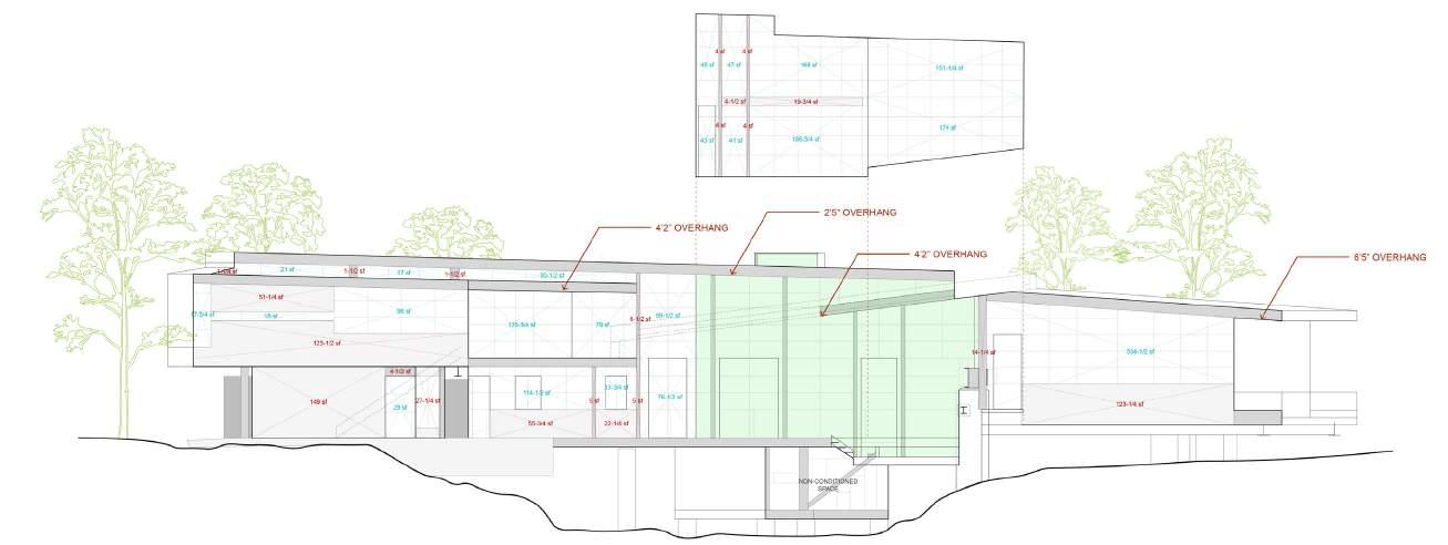
- CRAVEY HOUSE

Date // Spring 2023 - Fall 2024

APRENTICING UNDER CARLOS TARDIO + MARY CLAIRE DEREUIL

I began apprenticing under local architectural partners Carlos Tardio and Mary Claire Dereuil assisting in the site analysis, design process, and fabrication of alternative housing structures. Their practice scours the city for cheap, unwanted land and then transforms discarded materials into site-responsive dwellings.

Spring 2023

This series was made after reading some of Kafka’s writings. I hoped to emulate the feelings I had while reading his work

notes and sketchbooks, diagrams and

Turn static files into dynamic content formats.

Create a flipbook
Issuu converts static files into: digital portfolios, online yearbooks, online catalogs, digital photo albums and more. Sign up and create your flipbook.
Julia Wennerholm 2024 Portfolio by jujuwenner - Issuu