

PORTAFOLIO

JUAN FELIPE VÁSQUEZ ACOSTA
Arquitecto
Universidad Nacional de Colombia Medellín – Colombia
jfvarquitectura@gmail.com (+37) 305 264 58 35

@j_felipe_v
@jfv_arquitectura
PERFIL PROFESIONAL
Hola, soy Arquitecto de la Universidad Nacional de Colombia Durante mis estudios me enfoque hacia la arquitectura institucional, comercial y de vivienda, abordando además los problemas constructivos y de interiorismo asociados a dichas arquitecturas Me he desempeñado satisfactoriamente en la conceptualización, diseño, elaboración de planimetrías, maquetas y modelado digital de espacios arquitectónicos.
Actualmente estoy mejorando mis habilidades BIM mediante el software Revit Juntamente, con los modelos realizados, estoy fortaleciendo mis habilidades de visualización arquitectónica renderizando en Vray
Me integro, reconozco y respeto los desarrollos realizados de y con otras personas. Empatizo y parto de la mesura para relacionarme con los demás, generando vínculos amigables Gestiono mis motivaciones para llevar a buen termino lo que me interesa, me oriento hacia el proceso y el detalle
FORMACIÓN ACADEMICA
Arquitecto Universidad Nacional de Colombia. 2024.
Secundaria y media académica Colegio Federico Ozanam
CURSOS Y ÉNFASIS
Taller de Innovación y Design thinking en concurso “Innovate” de EPM. EPM. Versión 2017 y 2019.
Énfasis en arquitectura de la vivienda
Universidad Nacional de Colombia. 2022.
Énfasis en modelación y tecnología BIM
Universidad Nacional de Colombia. 2023.
HABILIDADES Y SOFTWARE
1 2 3 4 5 AUTOCAD
1 2 3 4 5 REVIT
1 2 3 4 5 SKETCHUP
1 2 3 4 5 PHOTOSHOP
1 2 3 4 5 ILUSTRATOR 1 2 3 4 5 VRAY
1 2 3 4 5 OFFICE
1 2 3 4 5 TRABAJO EN EQUIPO
IDIOMAS
ESPAÑOL. Nativo.
INGLES A2 - B1. Nivel medio bajo.
INTERESES DISCIPLINARES
BIM, construcción (obra), diseño de arquitectura institucional, comercial y vivienda, interiorismo Me gusta seguir estudiando a partir del análisis con dibujo a mano
INTERESES PERSONALES
Repostería, novela histórica, biografías, podcast, cine, documentales, conciertos y viajar.
EXPERIENCIA
Propuesta de anteproyecto para hostal en Isla Tintipan
Cliente: Andrés Botero Acosta.
Funciones: conceptualización, diseño, planimetría, modelado y visualización
Logros: desarrollo disciplinar de la madera como material de diseño y construcción Primer proyecto pensado y diseñado en madera y para zona costera.
Periodo: Octubre 1 – Diciembre 29 de 2021
Referencia: (+57) 316 368 1662 (Andrés Botero Acosta)
Proyecto no ejecutado
Diseño Bar Retro 80s “Licors and Bar Las Vegas”
Coordinador: Ing Juan Manuel Acosta
Funciones: levantamiento arquitectónico, diseño, planimetría arquitectónica y constructiva, modelado y visualización
Logros: Abstracción y adaptación de un estilo de época Desarrollo de habilidad en selección, curado y costeo de materiales de acabados arquitectónicos
Periodo: Marzo 12 – Marzo 28 de 2023
Referencia: (+57) 310 544 5654 (Ing Juan Manuel Acosta)
Proyecto ejecutado
Reforma Casa Robledo La Campiña
Coordinador: Ing Juan Manuel Acosta
Funciones: levantamiento arquitectónico, diseño y modelado de idea básica.
Logros: replantear tipología y capacidad de una unidad arquitectónica existente
Periodo: Abril 19 – Abril 22 de 2023
Referencia: (+57) 310 544 5654 (Ing Juan Manuel Acosta)
Proyecto ejecutado.
Diseño “Billar Las Vegas”
Coordinador: Ing Juan Manuel Acosta
Funciones: levantamiento arquitectónico, diseño, planimetría, modelado y visualización
Logros: replantear circulación vertical y composición espacial de un edificio existente de tres niveles
Conceptualizar espacio para el juego y el ocio
Periodo: Octubre 24 – Diciembre 4 de 2023
Referencia: (+57) 310 544 5654 (Ing Juan Manuel Acosta)
Proyecto no ejecutado
Practicas profesionales en la Gobernación de Antioquia. Reforma y Adecuación Oficina de Pasaportes del Departamento de Antioquia.
Tutor/Jefe: Alejandro Del valle Acosta.
Funciones: levantamiento arquitectónico, diseño, dibujo y modelado arquitectónico de oficinas
Logros: entendimiento y aplicación de protocolos institucionales para el diseño de oficinas y zonas comunes en edificio institucional Aumentar capacidad de atención la Oficina de Pasaportes a través de optimización del espacio y administración de materiales existentes
Periodo: Febrero 1 – Junio 30 de 2024
Referencia: (+57) 305 433 2161 (Alejandro Del valle)
PROYECTOS SELECCIONADOS
PROYECTOS ACADEMICOS
ARQUITECTURA DE LA VIVIENDA
Vivienda colectiva. Coyuntura residencial de Miraflores Proyectos 8
La casa como episteme de la arquitectura Proyectos 3
ARQUITECTURA DEL EDIFICIO PÚBLICO
Sede Instituto Goethe Proyectos 9
PROYECTOS PARTICULARES
ARQUITECTURA TURISTICA
Hostal Tintipan Anteproyecto de cabañas y muelle
INTERIORISMO
Bar Retro 80s “Licors and Bar Las Vegas” Abstracción y adaptación de un estilo de época
Billar Las Vegas Conceptualizar espacio para el juego y el ocio
REFORMA Y ADECUACIÓN
Casa Robledo La Campiña Reforma y ampliación
PROYECTOS ACADEMICOS
VIVIENDA COLECTIVA. COYUNTURA RESIDENCIAL
DE MIRAFLORES
PROYECTOS 8
Profesores: Nathalie Montoya e Iván Forgioni (2022 - 2)
Proyectista: Juan Felipe Vásquez Acosta

Descripción
En el barrio Miraflores de Medellín se plantea para una manzana de carácter residencial, una estrategia coyuntural de cuatro proyectos que atienden distintos modos de ejecución En un principio, en los extremos norte y sur se evidencia un remate de calle que permite crecer en altura y generar torres mirador, aprovechando a su vez la privilegiada altura del barrio en relación con el valle la ciudad Luego, se reflexiona sobre el espacio residencial y colectivo, partiendo de dos sensibilidades: el reconocimiento de lo existente y su asimilación Se conserva un sector de manzana para crear un plan de intervención progresivo que permita leer y adecuar las dinámicas del barrio por parte de los edificios nuevos, y a su vez, el barrio comprender la llegada de la inevitable densidad Por otro lado, se plantean edificaciones de baja altura en relación con la carrera (sentido norte-sur), al ser la manzana mas longitudinal, mostrando así una vocación hacia la forma de "cinta" Lo anterior se conjura en un patio lineal que se crea en el centro de manzana a partir de retiros obligatorios, y con el emplazamiento de los tres proyectos, generando un primer piso continuo y en relación con la ciudad
Localización:

Conceptualización y programa: Densificar Asimilar Reconocer Convivir










Tipologías de vivienda

Carrera 27
Carrera 27 a Planta
Dúplex
Dúplex



Planta sótano. Nivel -1 Planta plataforma. Nivel 2
Render exterior fachada frontal

Dúplex A
Apartamento A
Apartamento B
Apartamento C

D
Dúplex A
Apartamento A
Dúplex B
Dúplex C
Apartamento

Apartamento E
Apartamento A
Dúplex B
Dúplex C


Sección longitudinal



Planta Apartamento A
Sección Apartamento A



Planta Dúplex C
Sección Dúplex C
Render interior Nivel 2 Dúplex C
Render interior Nivel 1 Dúplex C




Maqueta
Render exterior fachada posterior
LA CASA COMO EPISTEME DE LA ARQUITECTURA
PROYECTOS 3
Profesores: David Seba, Marco Aurelio Montes y Luis Alfonso Escobar (2018- 2) Proyectistas: Andrés Ortiz Castañeda, Hernán Alonso García y Juan Felipe Vásquez Acosta

Conceptualización

Extrudir parcela
Localización

Dividir y optimizar

Descripción
En el barrio Naranjal de Medellín, lugar urbano problematizado por su contexto histórico hasta la actualidad, se plantea la proyectación de un grupo de dos viviendas para dos hogares pequeños
Dos equipos de parejas diseñan dos viviendas en una sola parcela Hay 4 parcelas escogidas, dependiendo de los análisis realizados y la sensibilidad frente al lugar, se asigna una parcela a cada equipo de parejas
Las parcelas son reales, con tamaño real basado en el plano catastral de Medellín El lugar es plano, con medianerías bajas, situación social y económica compleja con muchos habitantes de calle recicladores y algunos mecánicos Sin embargo, existe un plan de renovación urbana, y la casa, se presenta como opción a este cambio gradual


Composición perfil urbano

Individualizar


Estereotomía
Casa oblicua Casa del escultor


Variaciones en la tipología de patio


Planta Nivel 1
Planta Nivel 2


Planta Nivel 3
Planta Cubierta






Sección longitudinal. Casa oblicua
Sección longitudinal. Casa oblicua
Render interior Casa Oblicua
Render interior Casa del Escultor



Axonometría explotada
Maqueta
SEDE INSTITUTO GOETHE
PROYECTOS 9
Profesores: Luis Guillermo Hernández y Eleazar Gómez (2023 - 1)
Proyectista: Juan Felipe Vásquez Acosta

Descripción
En el barrio Nutibara de Medellín, con un tejido urbano consolidado, próximo al Cerro tutelar Nutibara, se escoge un emplazamiento entre ocho alternativas para desarrollar propuestas de carácter cívico capaces de congregar comunidades urbanas a través de programas educativos, culturales y recreativos
La experimentación, composición y consolidación se debe lograr a partir de cinco estrategias: inserción como transformaciones aditivas a las arquitecturas urbanas existentes, moldear el suelo y el subsuelo buscando continuidades entre los espacios urbanos y los espacios interiores, moldear secuencias espaciales interiores, intervenir con una actitud de construcción de paisaje, proponer y resolver retos estructurales que concreten valores espaciales
Se propone una sede para el Instituto Goethe que aporte al desarrollo de la cultura alemana en Medellín Como el emplazamiento es pequeño, la propuesta busca unas proporciones que se ajusten a la normativa en relación a la altura, al paisaje respetando las formas preexistentes y la apertura urbana programando el primer nivel con espacios de reunión y exposición
Localización


Barrio Nutibara

Reconocimiento de existencia

Definición espacio disponible

Aprovechamiento del subsuelo

Programación y horadación subsuelo

Retiros y lectura de vecinos

Liberación de terraza

Desarrollo del programa
Conceptualización

Axonometría general Programa

Circulación vertical


Planta sótano. Nivel



Sección longitudinal
Sección transversal
Planta Nivel 1




Planta Nivel 2
Planta Nivel 3
Planta Nivel 5



Sección fugada longitudinal
Molde del espacio

Fragmento sección detalle. Sótano, Nivel 1 y Nivel

Fragmento sección detalle. Nivel 3, 4 y 5

Revestimiento
Estructura metálica

Patio posterior
Núcleo servidor
Núcleo servido
Núcleos unidos

Primer piso
Subsuelo
Base estructural

Axonometría despiece del proyecto
Maqueta
PROYECTOS PARTICULARES
HOSTAL TINTIPAN
ANTEPROYECTO DE CABAÑAS Y MUELLE
2021
Proyectista: Juan Felipe Vásquez Acosta

Descripción
En el mar Caribe colombiano, departamento de Sucre, Golfo de Morrosquillo, se encuentra el archipiélago San Bernardo que cuenta con las Islas Múcura, Tintipan, Ceycen, Palma y el Islote Santa Cruz El proyecto se ubica en la zona manglar de Tintipan, en el Oeste de la isla
Se pide para la propuesta un hostal compuesto por un muelle de llegada con recepción, cabañas individuales dotadas cada una de baño y jacuzzi y zona de servicios con restaurante, todo esto unido por un pasaje general El lugar se ubica cerca a un pequeño espacio litoral, donde el mangle no crece, la profundidad es poca, no obstante, las embarcaciones no encallan y se puede llegar a cada baña en lancha
Se busca en la cabaña un escalonamiento que permita pasar del espacio húmedo al seco, comenzando con el muelle privado de cada cabaña, pasando por el jacuzzi, luego por el porche y la ultima estancia la cama Por otro lado, en la entrada, el baño permite un control de la suciedad de la arena y la condición húmeda antes de entrar al espacio de la cama La cabaña esta pensada para dos personas en una cama grande, o cuatro, en camarotes
Golfo de Morrosquillo. Archipiélago de San Bernardo.

Localización

Isla Tintipan

Sitio del proyecto en la isla


Planta general del proyecto
Planta típica cabaña


Sección fugada
Render interior cabaña


Render exterior distribución cabañas
BAR RETRO 80S “LICORS AND BAR LAS VEGAS”
ABSTRACCIÓN Y ADAPTACIÓN DE UN ESTILO DE ÉPOCA
2023
Proyectista: Juan Felipe Vásquez Acosta y Juan Manuel Acosta Urán

Descripción
En el barrio Santander de Medellín se solicita el diseño de un bar inspirado en los años 80, sin ser figurativo, pero aludiendo a características estéticas de la época Pensado para colocar música romántica de aquellos años, se busca un lugar acogedor, distintivo de los demás bares o establecimientos cercanos, que llame la atención
El espacio es un local rectangular en esquina con dos accesos, dos baños, una barra general y mesas para el servicio Un aspecto de diseño determinante es una columna que se encuentra en la mitad del local, en la que se realiza un tratamiento de acabado con el fin de convertirla en un elemento protagonista
La iluminación se escoge cálida pensando en estancias mas intimas, evitando así la luz blanca reveladora Algunos elementos de uso mas contemporáneo, como los listones de pvc, se escogen buscando una pertinencia y proyección del uso del bar en el tiempo



Sección longitudinal local
Render exterior acceso
Detalle axonometría mueble para licores

sección longitudinal barra y cocina
Detalle axonometría barra y cocina
sección transversal barra y cocina
Detalle sección longitudinal mueble para licores
Detalle sección transversal mueble inferior para licores
Detalle
Detalle

Render interior mueble para licores

Render interior materialidad e iluminación

Fotografía de espacio terminado. Mueble y barra para licores



Fotografía de espacio terminado. Acabados
Fotografía de espacio terminado. Acabados
Fotografía de espacio terminado. Acabados
BILLAR LAS VEGAS
CONCEPTUALIZAR ESPACIO PARA EL JUEGO Y EL OCIO
2023
Proyectista: Juan Felipe Vásquez Acosta y Juan Manuel Acosta Urán

Descripción
En el barrio Santander de Medellín, luego de que el diseño del sitio “Licors and bar Las Vegas” fuera un éxito en el sector, los socios que establecieron dicho bar quisieron mejorar un billar que ya tenian, pero, cuyos acabados interiores no eran los mejores
Decidieron reformarlo completamente, y además, añadieron nuevos espacios para el ocio Solicitaron un diseño inspirado en el estilo clásico de los billares europeos, no obstante, que se mostrara también moderno
El billar se ubica en el tercer nivel de una construcción en esquina La forma del espacio es irregular: un pabellón largo hacia una medianería, y un salón grande hacia la esquina Dada la altura del lugar, la barra y mostrador son colocados junto a la ventana que da a la fachada, buscando visibilidad y mostrarle al publico el carácter comercial del sitio En el salón se disponen las mesas de billar francés, y en el pabellón, dos mesas de billar pool y mesas de juego Algunas distribuciones las establecido irremediablemente el cliente
La iluminación se escoge cálida, sin embargo, no muy llamativa, buscando el carácter de un lugar sereno, abierto a un publico de ocio exclusivamente adulto

Planta arquitectónica

Render axonometría general

Render interior pabellón


Render interior barra
Render interior salón
CASA ROBLEDO LA CAMPIÑA
REFORMA Y AMPLIACIÓN
2023
Proyectistas: Juan Felipe Vásquez Acosta y Juan Manuel Acosta Urán.

Axonometría edificación existente
Descripción
En el barrio Robledo, sector La Campiña, un propietario de las típicas casas de interés social que se construyeron en los años noventa, quiere construir el tercer piso e individualizar cada piso como un apartamento Para ello, se replantea la ubicación y forma de las escaleras y se formula una distribución opcional del interior
La forma geométrica es un rectángulo, su estructura se compone de mampostería estructural y losa maciza Tiene algunos tabiques interiores, lo que facilita su redistribución, y un patio trasero que se conserva hasta el ultimo nivel para garantizar ventilación


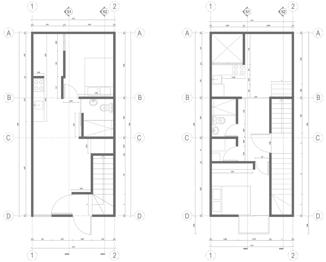
Planta nivel 1 existente
Planta nivel 2 existente

Axonometría edificación propuesta
Sección longitudinal existente
Sección transversal existente




Planta nivel 1 propuesta
Planta nivel 2 propuesta
Planta nivel 3 propuesta
Sección longitudinal propuesta
Sección longitudinal propuesta




Fotografía de espacio terminado. Nivel 2 acabados
Fotografía de espacio terminado. Nivel 1 cocina
Fotografía de espacio terminado. Nivel 1 acceso
Fotografía de espacio terminado. Escaleras