
Kyle Chiang
SELECTED WORKS
SYRACUSE UNIVERSITY SCHOOL OF ARCHITECTURE
Bachelor of Architecture Class of 2026 Kyle Chiang
M: +1 (303) 921-0885
E: juinkyechiang@gmail.com





![]()

Kyle Chiang
SYRACUSE UNIVERSITY SCHOOL OF ARCHITECTURE
Bachelor of Architecture Class of 2026 Kyle Chiang
M: +1 (303) 921-0885
E: juinkyechiang@gmail.com





Integrated Design Studio Prize for Overall Design and Systems Integration
PROGRAM
SITE
Higher Education Ceramics Studios, Exhibition Spaces, and Laboratories Syracuse, NY
INSTRUCTOR
Elizabeth Kamell
COLLABORATOR
Ayrton (AJ) Laucks
PROJECT DATE
Spring 2025
PRODUCTION SETTING
Fourth-Year Integrated Design Studio
PRODUCTION TOOLS
V-Ray, Rhino 7, Adobe Illustrator, Photoshop, Mixed Media Physical Models
Among timber and bio-based materials, terra cotta exhibits some of the lowest embodied carbon for construction purposes. Proposed as an expansion of Syracuse University’s Comstock Art Facility for the ceramic arts program, this project both architecturalizes the ceramic-making process and re-imagines the material’s architectural applications to enhance thermal performance.
The project is divided into two volumes, a Bar and a Wall. Using a box truss to span from hill to road, the Bar is a manifestation of the ceramic-making process from earth to world. Facing the primary road, the Wall becomes a statement for ceramics, dedicated to the display of both individual art pieces and the facade of the Wall itself.
In addition to clay, the project is designed around the flow of air, heat, and water in the forms of a double-skin facade, geothermal looping system, and rainwater collection to produce building performance.
































Two intersecting volumes were chosen as the massing concept to redefine the existing building’s relationship with the greater campus. One tall volume presents itself as the new face of the Comstock Arts Facility, while one long volume gestures out into the road, creating a unique precinct for the ceramic arts department.
Massing studies were conducted to find optimal proportions that accommodated both programmatic and egress demands. In the final concept model, red acrylic represents vertical circulation.

Exploded Facade and Structural Systems

RIGHT The Crossing, where the Wall catches the Bar, is the project’s location of greatest tectonic complexity, as the ceramic curtain wall system negotiates with the steel and glass truss volume.
LEFT Circulation of materials, resources, finished pieces, and human occupants intersect here, giving rise to a monumental stair that provides public access to all stories from the belowgrade parking entry.
Public Circulation
Private Circulation







LEFT Alongside open work space, the process Bar features climatically isolated spaces to accommodate the various stages of ceramic art production from clay mixing to glazing to polishing, which are arranged linearly from the site’s hill to road. Based on the seated positions of the artists, floor-based geothermal radiant loops efficiently heat and cool the spaces.
CENTER Reaching temperatures of up to 3270°F, heat from the kilns is redirected through the cavity of the Wall’s double-skin facade to induce stack ventilation in the summer and insulation in the winter. Heat is directed through copper pipes clad with terra cotta pieces, utilizing the thermal resistance capacities of both materials.
BOTTOM The detail section cut across the entire width of the process Bar reveals the passive design and systems integrations outlooks of the project, as a combination of natural and active ventilation offer thermal comfort and proper exhaust of toxic gases associated with activities such as glazing.


Railing-Integrated Return Air Ductwork

Seating-Integrated Exhaust for Glazing Studios

Fresh Air Intake through Double-Skin Facade with Radiant Floor Heating




Individual Rod Failure Requiring Replacement





PROGRAM
Single-Person Microhome
SITE
Model for Various Site Applications
ADVISOR
Daekwon Park
PROJECT DATE
Summer 2024
COLLABORATORS
Ayrton Laucks, Peiyu Luo, Yifan Shen
PRODUCTION SETTING
Buildner Microhome Competition with MATR Lab Faculty Research Team
PRODUCTION TOOLS
Grasshopper, Lumion, V-Ray, Rhino 7, Adobe Illustrator, Adobe Photoshop
Life-Frame is designed as a sustainable microhome that suits the daily living functions and sustenance requirements of a single resident. Equipped with heat storage, rainwater collection, and composting facilities, Life-Frame presents itself as a model for offgrid living that can be applied to a variety of sites.
The microhome’s construction is composed of a CNC-milled construction plywood frame filled in with insulative mycelium blocks and enclosed by plastic shrinkwrap that creates a greenhouse environment. Outside of the frame, the mycelium blocks double as vegetable planters that can be maintained and interchanged based on solar orientation and agricultural season. Assembled in a sliding, eggcrate manner, the plywood waffle structure can be built efficiently and economically.
Designed as one step in the team’s broader research into mycelium as a renewable construction material, Life-Frame has been passed off to another production team for scaled prototyping exploring mycelium’s properties when executed at the building scale.








Rendered with V-Ray, the exploded axonometric reveals the microhome’s tectonic components.






The section perspective demonstrates the project’s light approach to the existing ground, in which the footprint consists solely of a shrinkwrap attachment pipe and concrete deck blocks.


The plan perspective illustrates the single resident’s movements and tasks conducted throughout the day, showing how a small structure can accommodate a large variety of programmatic needs.

Collaged with Photoshop, the unrolled elevation conveys the project’s adaptation to solar orientation, showing a transition of insertion block type from glazing and solid mycelium on the north to planter blocks on the south.
PROGRAM
Affordable Multi-Family Residential High-Rise
SITE
Queens, NY
SUPERVISORS
Dário Brito (principal) Kate Kyoungeun Ann Brito
COLLABORATORS
Lopita Das (advisor), Mwanzaa Brown, Min Cui
PROJECT DATE
Summer 2024
PRODUCTION SETTING
Perkins Eastman Summer Internship
PRODUCTION TOOLS
Revit, Enscape, Rhino 7, Affinity Suite
Staffed on a project with a one-year production timeline between schematic design and construction documentation, I joined the interiors team of a 29-story residential tower composed entirely of affordable units.
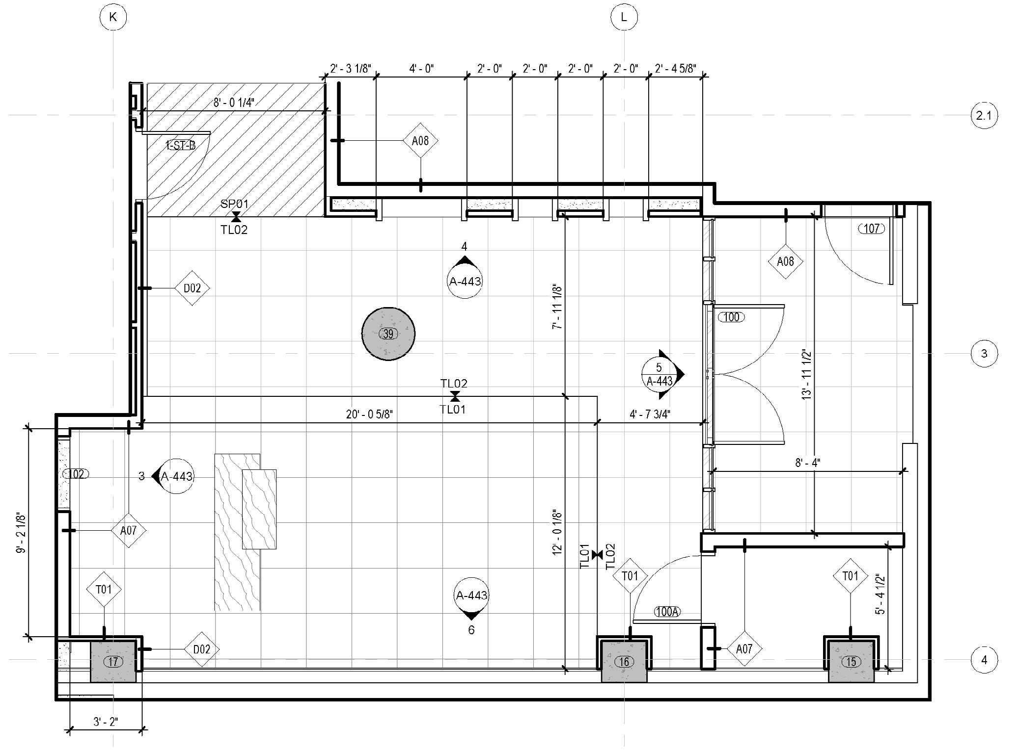
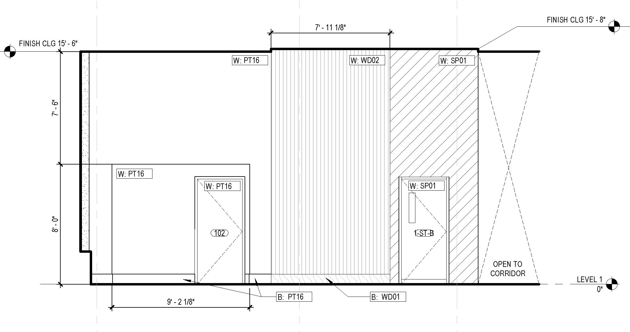
Entering the project during design development, my role consisted of digitally modeling interiors for amenity spaces, units, and common areas such as elevator lobbies and corridors, based on consistent coordination with those working on the tower core and shell. Along with material selections and Revit plan diagrams, views were rendered with Enscape to compose a 40-page interior design package submitted to the client in conclusion of the design development phase.
Progressing into construction documentation, translation of design into Revit involved production of enlarged floor plans, interior elevations, and a material key schedule. Included here is my documentation of the lobby, ground floor lounge, mail room, and children’s playroom.



















PROGRAM
Adaptive Reuse Multi-Family Residential High-Rise
SITE
Midtown, NY
INSTRUCTOR
Laura Salazar-Altobelli
PROJECT DATE
Fall 2023
COLLABORATOR
Individual Project
PRODUCTION SETTING
Third-Year Urban Housing Studio
PRODUCTION TOOLS
Rhino 7, Illustrator, Photoshop, Physical Models (Basswood, Museum Board, Paint, Laser Cutter)
Coupled with a pressing demand for housing in New York City, postpandemic commercial vacancy welcomes office-to-housing adaptive reuse as a promising solution. Warehouse for Living turns to post2020 lifestyles— marked by the infiltration of digital communication and resulting sedentary habits —as the subject of critique. Convenient access to material goods, enabled by the triumphant growth of online retail, brings about a blasé consumerism that exists without the need to travel outside the home
The conversion of 650 Fifth Avenue speculates on a future in which the demand for both commercial and brick-and-mortar retail space becomes obsolete, while recognizing a continuous need for affordable housing. One-click transactions through Amazon and doorstep delivery demonstrate relentless reliance on convenience, presenting critical uncertainties surrounding community interaction and our connections to the physical world. Through integrating the technology and aesthetics of the distribution warehouse into housing, the project posits material objects as the focal point of producing new interpersonal connections.


TOP RIGHT
Repositioning the tower involves reconstruction of the enclosure, featuring curtain walls that display its inner machinery to the urban surroundings.
BOTTOM RIGHT
Attached to existing structure, the overhead conveyor belt forms the genesis of the project.
LEFT Each dot on this QGIS map represents a vacant storefront in New York City. Retail vacancy becomes prevalent in areas such as SoHo and the project’s site, Midtown.
Source: NYC Open Data (2025)









SUPERVISORS
Valeria Herrera
Aurélie Frolet
Molly Hunker
Nathan Williams
Luca Ponsi
Dário Brito
Kimberlee Boonbanjerdsri
COLLABORATOR
Individual Work
PROJECT DATE
Fall 2021 to Fall 2024
PRODUCTION SETTING
Academic Studios + Representation Courses, Survey of Italian Architecture Course, and Perkins Eastman Summer Internship
PRODUCTION TOOLS
Midjourney, Hand-Drawing, Rhino 7, Illustrator, Photoshop, Physical Models (Basswood, CNC Mill, MDF, Laser Cutter, Landscaping, Plaster, Concrete)
This body of work consists of individual acts of production across representation, survey, and studio courses, in addition to professional internship experience, demonstrating mapping, diagramming, hand-drawing, model-making, and digital visualization competencies that transfer to a variety of project demands.
These exercises serve to refine technical skills, facilitate careful observation of surroundings, develop strategic material utilization, and put forth convincing concepts through visual clarity.


Resulting from continuous coursework requiring handdrawing through graphite, ink, and charcoal, the skill has been utilized to observe and analyze the built environment, exercise composition sensibilities, and quickly represent design concepts.













Produced within a second-year studio focused on landscape, ground, and ecology, these drawings combine raster and vector-based methods with strategic color schemes to communicate dynamic forces and trends that shape natural and built environments.
A combination of GIS/Illustrator vector work with Photoshop brushes and collaging, this series of maps reveals local conditions to the site of Sarasota, as well as the physical forces that shape the dynamic form of New Zealand’s Rakaia River.



TOP LEFT Photographed in an outdoor garden, this 1:200 model involves a two-step casted base with plaster and concrete that carries a timber structure, vineyard, and amphitheater set among informal vegetation.
BOTTOM LEFT Rising out of a CNC-milled MDF base, this basswood model displays both machine-cut and hand-cut pieces that compose a stilted and louvered civic center.
TOP RIGHT A stilted timber boathouse and spectator stand is represented in this 1/8” = 1’ scale basswood model which uses polycarbonate to show enclosure and 3D-printed cylinders to represent pontoons that facilitate a floating structure after sea levels rise.
BOTTOM RIGHT Assembled using 3D-printed and laser-cut components, a set of hyperergonomic chairs represent our contemporary, plugged-in living conditions.
A diverse approach is taken to physical modeling, employing a combination of analog tectonic methods, casting, and automated fabrication, as well as varying levels of abstraction, to communicate project narratives, tectonic assemblies, material effects, and spatial characteristics.





Drawing from a curious attitude and familiarity with upcoming tools and software, Midjourney was used to produce narrative visuals for a hospitality master plan competition during my internship with Perkins Eastman.
RIGHT Final images result from an iterative process of feeding and adjusting prompts alongside input images to achieve specific results, in this case the experience of waking up to elephants bathing in a creek.




Kyle Chiang
SYRACUSE UNIVERSITY SCHOOL OF ARCHITECTURE
Bachelor of Architecture Class of 2026
M: +1 (303) 921-0885
E: juinkyechiang@gmail.com