Skip to main content

ARCH. PORTFOLIO - Juan D. Farelo

Page 1


PORTFOLIO

Hola! Soy Juan David Farelo Hernandez

Soy arquitecto con énfasis en BIM, con experiencia en presupuesto, control y programación de obra. También he realizado varios trabajos como dibujante y modelador 3D, por lo que utilizo herramientas digitales como Revit, AutoCAD, SketchUp, entre otras. Puedo desempeñar roles como Residente de Obra o cualquier puesto relacionado con la aplicación de la metodología BIM, ya sea en lo arquitectónico, estructural o MEP, con el objetivo de seguir aprendiendo y convertirme en Gestor de Proyectos a mediano plazo. Cuento con un buen nivel de inglés, que se suma a mi lengua nativa, el español. Además, tengo un fuerte interés investigativo en estudios urbanos y patrimonio cultural.

Me caracterizo por ser responsable, puntual y comprometido con la calidad en cada tarea. Estoy altamente motivado para contribuir a proyectos innovadores, sustentables y eficientes, manejando adecuadamente las relaciones interpersonales. Soy capaz de trabajar en equipo y poseo habilidades resolutivas que me permiten enfrentar nuevos retos y aportar valor en todas las tareas que me sean asignadas.

CONTACTO

+57 3184210469

juandfarelo@outlook.com jfarelo@unal.edu.co

https://linkedin.com/in/juandfarelo

https://linktr.ee/juandfarelo

IDIOMAS

• Español nativo

• Ingles nivel B2

Matricula Profesional N°: A261582024-1007848149

Portfolio / 2025

EDUCACIÓN

Arquitecto

Universidad Nacional de Colombia –

Sede Medellín | 2019 / 2024

Bachiller Académico Bilingüe

Colegio Bilingüe de Cartagena | 2005 / 2018

CURSOS / DIPLOMADOS

Administración de Proyectos de Construcción

• Costos y Presupuestos para Edificaciones

• Microsoft Project: Aplicación en la Programación de Obras

SENA | Diciembre 2024 / Marzo 2025

Comenzando como Coordinador BIM

LinkedIn Learning | Diciembre 2024

Microsoft Excel - Desde Básico hasta Avanzado con Especializaciones

U CAMPUS ACADEMY | Mayo 2024

EXPERIENCIA LABORAL

Arquitecto Dibujante y Modelador 3D

Upwork – Freelance

Descripción:

Octubre 2024Presente

Remoto

Arquitecto freelance con el objetivo de crear planos detallados y modelos 3D. Proporcionando soluciones eficientes y precisas que responden a las necesidades del cliente, garantizando la entrega de proyectos dentro de los plazos establecidos y con altos estándares de calidad.

Funciones:

• Elaboré planos arquitectónicos y detalles constructivos en AutoCAD, optimizando en gran medida los tiempos de entrega.

• Desarrollé modelos 3D a través de software como Revit y SketchUp.

• Coordiné proyectos directamente con el cliente logrando una tasa de satisfacción bastante alta.

Becario

Universidad Nacional de Colombia – Sede Medellín

Descripción:

Febrero 2023Junio 2023

Medellín, Colombia

Becario con la función de apoyar como monitor a las actividades de docencia de la asignatura de Proyectos III de la Escuela de Arquitectura adscrita a la Facultad de Arquitectura de la Universidad Nacional de Colombia Sede Medellín.

Funciones:

• Atendí y seguí las solicitudes de los estudiantes hacia docentes y directivos.

• Reduje el tiempo de espera de los estudiantes en procesos académicos.

• Colaboré en la creación de material para conferencias.

• Mantuve el orden en la toma de calificaciones y optimicé la gestión de actividades con Excel.

Curriculum Vitae

HABILIDADES

• Gestion de obras de construccion

• BIM | CAD

• Gestion de proyectos

• Trabajo en equipo SOFTWARES

• Revit

• AutoCAD

• SketchUp

• Microsoft Project

• Microsoft Excel

• Navisworks

• Archicad

• Civil 3D

• Renderizado

EXPERIENCIA LABORAL

Modelador BIM

Universidad Nacional de Colombia – Sede Medellín

Descripción:

Agosto 2022Diciembre 2022

Medellín, Colombia

Modelador BIM bajo la modalidad de Practica Académica Especial (PAE) sobre Aplicación de protocolos BIM en modelado de edificaciones (modelado arquitectónico y estructural) por parte del Sistema de Administración y Gestión de la Infraestructura (SAG) adscrito a la Dirección de Sostenibilidad y Gestión Logística de la Universidad Nacional de Colombia Sede Medellín.

Funciones:

• Recopilé información sobre el edificio a modelar.

• Realicé el modelo 3D bajo el protocolo BIM en la herramienta Revit.

• Documenté el resultado a través de la planimetría.

• Tuve un buen manejo de las herramientas digitales usadas que me permitió cumplir con mis deberes en la mitad del tiempo que el promedio.

• Photoshop

• Illustrator

Portfolio / Juan D. Farelo

Museo Interactivo Automotriz La Bayadera

Proyecto Academico Medellin, Colombia

01. 03. 02. 04.

Edificio Convergencia Intergeneracional

Proyecto Academico Medellin, Colombia

Casa Cultural Los Jagüeyes

Restauracion Patrimonial Cartagena, Colombia

14 UNAL Sede Medellin

BIM Medellin, Colombia

Bloque
Modelado

Selected Works (2020 - 2024)

Complejo Hibrido Bicentenario

Proyecto Academico Medellin, Colombia

Complejo Cultural El Volador

Proyecto Academico Medellin, Colombia

05. 06. 07. 08.

Conceptos Urbanos en la Contemporaneidad

Serie de Analisís Academico

Extras

Dibujos e Ilustraciones (realizadas de forma analoga y digital)

Proyecto academico organizado por la Facultad de Arquitectura de la Universidad Nacional de Colombia - Sede Medellin.

Museo Interactivo Automotriz

La Bayadera

Proyectos 6

Año: 2022

Tipo: Urbano-arquitectonico

Ubicacion: Barrio Calle Nueva, Medellin, Colombia

Proyecto realizado en colaboracion con Alejandro Restrepo (edificio), y de otros colegas (campus) bajo el nombre de D’Construir Arquitectos.

Revit - Renderizado (Vray) - Photoshop

Vista Exterior

UBICACION en el campus

Museo Interactivo Automotriz La Bayadera / Selected Works

ABSTRACT

Museo Interactivo Automotriz La Bayadera se encuentra en el costado sur del campus propuesto, en un punto de mucha importancia al articular el Parque de la 33 con el interior del campus. Se busca potenciar la actividad económica principal del sector, que es todo lo relacionado con lo automotriz, a través de talleres bien programados que permitan darle continuidad a esa actividad marcada, pero con espacios aptos y dotados de la tecnología necesaria para que se realice de forma eficaz y sostenible. También se complementa el programa y se busca generar un impacto a nivel metropolitano con un museo interactivo donde el usuario tendrá la oportunidad de ponerse a la vanguardia con las tecnologías más recientes de lo automotriz de una forma didáctica sin necesidad de estar relacionado con el tema.

Dossier Final Edificio: https://bit.ly/3AU6cFf

Dossier Final Campus: https://bit.ly/3V2MpKN

Antes del proyecto urbano... ...despues del proyecto urbano

CAMPUS CALLE NUEVA

Museo Interactivo Automotriz La Bayadera / Selected Works

En cuanto a la envolvente del edificio se hace uso de distintas configuraciones de acuerdo a la orientación e incidencia del sol:

1. Uso de vegetación tipo enredadera que cubre gran parte de esa fachada y así controlar la radiación y ademas oxigenar el interior de los espacios.

2. Se disponen balcones abiertos con gestos hacia el parque los cuales solo poseen como elementos de control de la radiación unos pequeños jardines en sus bordes.

3. En la plataforma se hace uso de listones de madera acompañados de enredaderas en las tres fachadas visibles, dotando así al equipamiento y demás programa no solo de un control para la radiación sino también de un lenguaje diferencial con respecto a la torre.

PROGRAMA

ESTRUCTURA CIRCULACIONES

PLANTA NIVEL 1 PLANTA NIVEL 2

SECCION LONGITUDINAL (A - A’)

Museo Interactivo Automotriz La Bayadera / Selected Works

FACHADA ESTE
FACHADA SUR

Edificio Convergencia Intergeneracional

Proyecto academico organizado por la Facultad de Arquitectura de la Universidad Nacional de Colombia - Sede Medellin.

Proyectos 8

Año: 2024

Tipo: Residencial

Ubicacion: Barrio Villatina, Medellin, Colombia

Proyecto realizado en colaboracion con Luisa Mesa

Revit - AutoCAD - SketchUp - Photoshop

Vista Exterior

Edificio Convergencia Intergeneracional / Selected Works

ABSTRACT

Generar un recorrido que conecte la quebrada Santa Helena con la Estación Oriente del Sistema Metro y a su vez con el paradero de buses alimentadores, potenciando así los espacios públicos existentes y a su vez redensificando con vivienda propuesta en niveles superiores para recuperar aquellas que fueron demolidas para darle paso a la estación. Se adecuan espacios destinados a personas de las distintas edades para que beneficien tanto a los habitantes del proyecto, como del sector, generando así una Convergencia Intergeneracional.

Plancha Final: https://bit.ly/3YnE0Cm

Dossier Tipos de Modulos: https://bit.ly/4hlm9F2

Maqueta

NORMATIVA

1.

habitacional

Edificio Convergencia Intergeneracional / Selected Works

ESQUEMAS

Se tomo la normativa de la supermanzana completa para tomar la decision de reponer todas las viviendas demolidas para la contruccion de la estacion del metro, y de esa forma redensificar el sector sin irrumpir de forma brusca en las preexistencias.

Densidad
Indice de ocupacion
Alturas
Parqueaderos 5. Espacio Publico

PLANTA NIVEL 1-2

PLANTA NIVEL 3

DETALLE SECCION

Y MATERIALES

Edificio Convergencia Intergeneracional / Selected Works

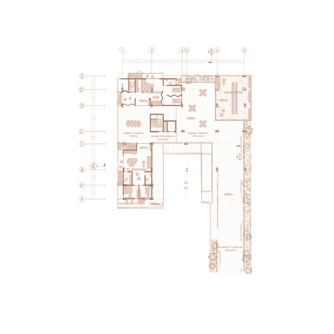
MODULOS

Isometrico

Planta

Isometrico

Planta

Edificio Convergencia Intergeneracional / Selected Works

MODULOS

Isometrico

Planta

Casa Cultural Los Jagüeyes

Proyecto academico-investigativo de restauracion patrimonial organizado por la Universidad Jorge Tadeo Lozano - Seccional del Caribe.

Proyectos de Arquitectura y Patrimonio Construido

Año: 2023

Tipo: Restauracion Patrimonial Ubicacion: Barrio San Diego, Cartagena, Colombia

AutoCAD - SketchUp - Photoshop

Maqueta

Imaginarios

Casa Cultural Los Jagüeyes / Selected Works

ABSTRACT

Casa Cultural Los Jagüeyes nace como un homenaje al viejo San Diego; un barrio amenazado por la gentrificación donde esta casa es un refugio que mantiene viva la esencia de la ciudad. Este oasis cultural da vida al pasado a través de artesanías, teatro, música y dulces tipicos. Ofrece un recorrido gratuito para explorar exposiciones en el patio central y degustar dulces, o un recorrido pago que guía a los visitantes por todo un viaje a actividades propias de la ciudad a través de exposiciones y talleres.

Plancha Final: https://bit.ly/4eXN9sj

Documento Completo: https://bit.ly/4febnyi

Portfolio / 2025

HISTORIA PREDIAL

VALORACION DEL INMUEBLE

A lo largo de su historia el inmueble fue victima de algunas modificaciones que afectaron su valor patrimonial, tales como:

1. Alteraciones en la estructura de la cubierta

2. Adición de un balcón interior

3. Cambios en la distribución de espacios en el tras-patio

4. Reubicación y diseño de los baños

5. Presencia de tribunas interiores que han alterado la disposición del patio central

PROGRAMA

1. Se propone un nivel -1 donde funcionarían cuartos técnicos.

2. Se recupera la morfologia del traspatio original de la casa, accion con la que se aplicaria la Carta de Venecia, por traer de vuelta elementos caracteristicos del inmueble.

3. Se genera una division de recorrido gratuido y pago en prmer nivel a traves de unas jardineras y espejo de agua.

Casa Cultural Los Jagüeyes / Selected Works

CRITERIOS DE INTERVENCION Y DISEÑO

ARQUITECTONICO

4. Se toma una perspectiva restauradora de intervención reversible en algunos espacios como lo es la Sala de Exposiciones a través de muros falsos en madera, y en el Aula Múltiple del salón principal a través de muros retráctiles.

5. Aplicando la teoria de la restauracion de Camilo Boito, todos los agregados contemporaneos estan en materiales visiblemente diferentes a los originales de la casa, en este caso el uso del vidrio y el aluminio en el ascensor y en la cabina aislante de ruido del Co-Working. Ademas tambien de la cubierta en madera y metal de la Terraza Social en el altillo.

6. Se recupera el faldón de la cubierta, acción con la que se aplica lo expuesto en la Carta de Venecia recuperando elementos característicos del inmueble.

BLOQUE 14

UNAL SEDE MEDELLIN

Modelo realizado siguiendo la metodologia BIM como parte de una de las practicas academicas realizadas, con el fin de lograr tener todo el campus universitario modelado y sistematizado gracias al BIM.

PAE - Aplicacion de BIM en modelado de edificaciones

Año: 2022

Tipo: Practica Academica Especial Ubicacion: UNALmed Campus El Volador, Medellin, Colombia

Revit - AutoCAD

Bloque 14 UNAL Sede Medellin / Selected Works

ABSTRACT

Se hizo un barrido a la planimetria existente del bloque de manera que se pudiera depurar archivos repetidos o innecesarios, para posteriormente ir a revisar fisicamente si toda la informacion estaba bien y actualizada, y asi poder iniciar a modelar en Revit basado en los planos existentes. Con el modelo resultante se puede llevar un control del estado fisico tecnico de todos los elementos del bloque, asi como de la disponibilidad de los espacios gracias a las plantas de Facility Management, quedando como resultado final el modelo del bloque que sera anexado a un modelo general de todo el Campus El Volador de la Universidad Nacional de Colombia Sede Medellin.

Documento Completo: http://bit.ly/41xwt6X

FACILITY MANAGEMENT

Planta Nivel 1
Planta Nivel 2
Planta Nivel 3

MODELOS

Modelo Estructural

Complejo Hibrido

Bicentenario

Proyecto academico organizado por la Facultad de Arquitectura de la Universidad Nacional de Colombia - Sede Medellin.

Proyectos 5

Año: 2022

Tipo: Urbano-arquitectonico

Ubicacion: Barrio Boston, Medellin, Colombia

Proyecto realizado en colaboracion con Alejandro Restrepo

AutoCAD - SketchUp - Renderizado (Vray) - Photoshop

Complejo Hibrido Bicentenario / Selected Works

Imaginarios

ABSTRACT

Complejo Hibrido Bicentenario tiene como objetivo cualificar los espacios libres a través de zócalos urbanos que conecten el espacio público con equipamientos clave. Se acondicionan las dinámicas del sector mediante puntos de concentración que fomentan la interacción social. La circulación entre los dos bloques se relaciona estrechamente con la Estación Bicentenario del Tranvía, integrando espacios a diferentes niveles. Desde la estación, se accede a una plaza soterrada que conduce al bloque norte y se asciende a través de escaleras hacia espacios públicos en altura. Estas conexiones enriquecen la experiencia urbana, promoviendo una comunidad más integrada y accesible.

• Plancha Final: https://bit.ly/4eRCNdA

Se utilizan 3 sistemas estructurales diferentes:

ESTRUCTURA CIRCULACIONES PROGRAMA

Existe una conexion entre los dos bloques y la estacion Tricentenario pero ademas de eso en cuanto a lo publico ocurre algo muy interesante al conectar distintos niveles como espacio publico.

Complejo Hibrido Bicentenario / Selected Works

Complejo

Complejo Cultural El Volador

Proyecto academico organizado por la Facultad de Arquitectura de la Universidad Nacional de Colombia - Sede Medellin.

Proyectos 6

Año: 2023

Tipo: Equipamiento

Ubicacion: UNALmed Campus El Volador, Medellin, Colombia

Proyecto realizado en colaboracion con Felipe Batista

Revit - AutoCAD - Renderizado (Enscape) - Photoshop

Imaginarios

Complejo Cultural El Volador / Selected Works

ABSTRACT

Complejo Cultural El Volador busca conectar el campus El Volador de la Universidad Nacional con la zona norte de la ciudad, aprovechando su ubicación estratégica entre la carrera 65 y la calle 67. La iniciativa se centra en revitalizar un área descuidada, promoviendo actividades culturales como danza, música y teatro, además de ofrecer espacios deportivos, una biblioteca y un auditorio para 200 personas. Se espera que estas mejoras fomenten el esparcimiento y el intercambio cultural en un entorno natural, con áreas cubiertas por árboles.

Plancha Final: https://bit.ly/3AfJVBx Documento Completo: https://bit.ly/3C1xidR

Campus antes del proyecto...

...y despues del proyecto

PLANTA GENERAL

Maqueta

CIRCULACIONES

PROGRAMA

Complejo Cultural El Volador / Selected Works

ESTRUCTURA

FUGADA por el auditorio (B - B´)

PLANTA NIVEL 1 (Acceso desde el campus)
PLANTA NIVEL 2 (Acceso

Complejo Cultural El Volador / Selected Works

PLANTA NIVEL 3

Conceptos Urbanos en la Contemporaneidad

Serie de analisis a nivel urbano realizados bajo el marco del Enfasis en Proyectacion Urbanistica ofertado en la Facultad de Arquitectura de la Universidad Nacional de Colombia - Sede Medellin

Año: 2022

Tipo: Urbano

Actividades realizadas en colaboracion con Camilo Jurko, Diego Velastegui y Cristian Rojas

SketchUp - Photoshop - Illustrator

Documento Completo: https://bit.ly/3AaNg4S

Problematicas Urbanas en la Contemporaneidad / Selected Works

LO PÚBLICO, LO POLÍTICO

Se propone un espacio urbano en Ciudad del Río, detrás del MAMM, que carece de simbolismo y no cumple con su diseño original, creando un vacío de actividad. Con acceso reducido y una morfología de supermanzanas, este lugar tiende a lo privado, limitando su exposición y destacando solo estructuras monolíticas que no logran una buena articulación urbana. El espacio se ha vuelto apolítico, evidenciando privatización y dificultades de acceso, lo que reemplaza la noción de lo público. Esta sectorización de usos debilita las dinámicas comunitarias y los vacíos dificultan la conexión entre los espacios públicos.

A partir de las dinámicas del sector, se proponen roles operativos para fortalecer la pluralidad y la diversidad, recuperando lo político en el espacio urbano. Se sugiere crear porosidad en las áreas circundantes para contrarrestar la privatización y permitir la coexistencia de nuevos usos. Además, se plantea reciclar una estructura industrial del área para fomentar la diferenciación y la rearticulación funcional. El objetivo es reconfigurar el espacio público a través de las tensiones generadas por estos nuevos usos y las propuestas arquitectónicas.

ESCALAR, AESCALAR

Se parte del principio de que la contemporaneidad utiliza la a-escalaridad como lógica configuracional y operativa para un proyecto. En este enfoque, la escala se disuelve en un proceso espacial, lo que lleva a una desvalorización de la estructura física y a la pérdida de nociones de tiempo y distancia. Esto resulta en un encogimiento del espacio geográfico en el que se habita.

La supresión dimensional se produce al eliminar las estructuras escalantes de la urbanidad tradicional, utilizando un “solvente” que disuelve la forma física de lo urbano y distiende su estructura. Esto se logra a través de elementos interrelacionados que generan un superorden basado en la oblicuidad, permitiendo distorsionar e interpretar distancias de manera más dinámica. Este enfoque ofrece una forma más eficiente de recorrer el territorio, en contraste con la retícula ortogonal tradicional, que limita la circulación a una idea compositiva en lugar de responder a necesidades sistémicas.

Problematicas Urbanas en la Contemporaneidad / Selected Works

HÍBRIDOS

Se contextualiza el centro de Medellín como el área de estudio y proyección debido a su complejidad, delimitando el borde interno (eje Bolívar) para implementar un dispositivo de hibridación. Se propone insertar un dispositivo en un edificio singular, como las estaciones del metro, para recuperar la actividad urbana que el viaducto del metro opacó en la calle Bolívar. Este nuevo elemento de infraestructura en el espacio público se considera un punto de partida para generar una unidad ambiental que medie entre la necesidad metropolitana de movilidad y una vida urbana compleja.

Se complejiza la intervención mediante un dispositivo de agenciamiento. Al adoptar un enfoque tipológico en lugar de funcional, el mestizaje se convierte en la estrategia operativa elegida, buscando una dinámica que enriquezca la forma urbana en sus aspectos estructurales, configuracionales y composicionales. Las operaciones formales incluyen interconexión, adyacencia, solapamiento y oblicuidad, creando un dispositivo de intermedialidad. Este se compone de volúmenes de actividad diversa que se integran tanto sobre el viaducto del metro como en las estructuras adyacentes, alterando la composición programática de estas últimas. Así, la infraestructura y la arquitectura en torno al eje de Bolívar trabajan en conjunto para generar nuevas dinámicas y actividades urbanas.

EXTRAS (Dibujos e Ilustraciones)

TINTA CHINA

Serie de dibujos e ilustraciones realizados de forma digital y analoga usando distintas tecnicas.

Todos estos fueron realizados bajo un marco tanto academico, laboral, o como simple pasatiempo.

Casa de Huespedes - Rogelio SalmonaCartagena (2021)

Biblioteca Virgilio Barco - Rogelio SalmonaBogota (2021)

Unas Escaleras (2021)
Unas Casas (2021)

DIGITAL

Extras (Dibujos e Ilustraciones) / Selected Works

BOLIGRAFO

Arco del Triunfo (2020)

Opera de Sydney (2020)

Representacion grafica de la Casa Leme Realizado con SketchUp y Photoshop

MARCADORES Y ACUARELAS

Prueba Fachada 1 (2021)

Prueba Fachada

2 (2021)

Prueba Iglesia (2021)

Ruta N - Medellin (2020)

Biblioteca UdA (2020)

Juan D. Farelo Selected Works 2020 - 2024

Turn static files into dynamic content formats.

Create a flipbook
ARCH. PORTFOLIO - Juan D. Farelo by Juan D. Farelo - Issuu