Contenido




M I C
Trabajo en conjunto con direccion de obra publica de Alta Gracia , en un lote con gran pendiente hacia el valle.
PLa volumetria e implantacion surgen de dos conceptos claves .
La topografia , esta idea de mantener una escala baja (como gran parte de Alta Graci)
y la de que la morfologia sea una misma con el paisaje , abriendose al valle, para asi poder contemplar en su totalidad la naturaleza que el mismo sitio brindaba.






















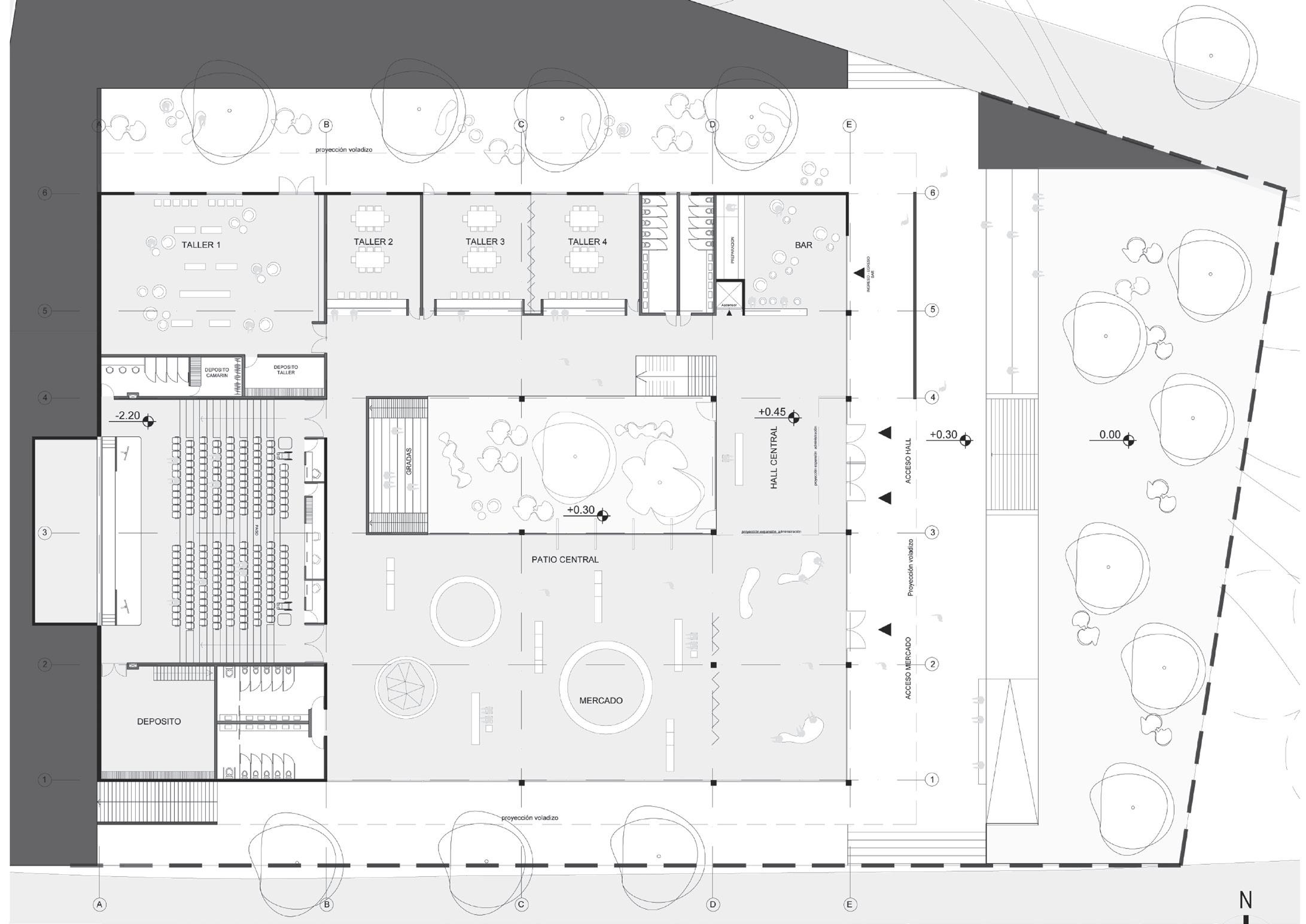
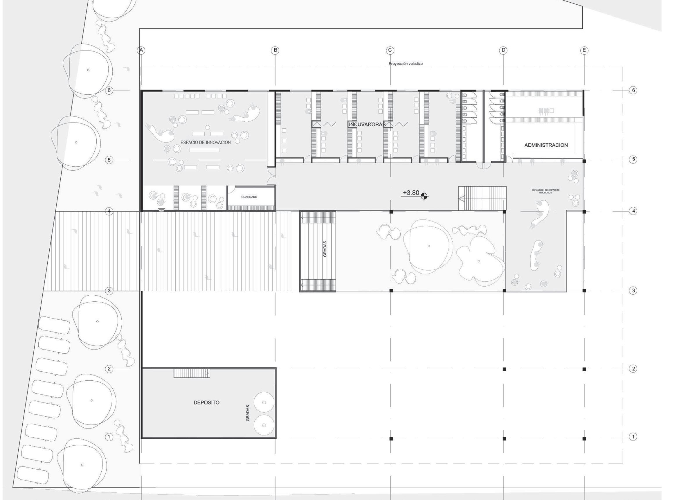
VIVIENDA COLECTIVA
Se constituye como una pieza clave que funciona como nexo entre dos ejes verdes , haciendo uso de la topografia existente entre-el pasaje- en el nivel mas bajo y blvd las heras-el nivel mas alto , definiendo la ocupacion en dos bloques , uno superior y aereo que forma el espacio residencial y otro inferior que propone una mixtura de usos , contribuyendo al espacio publico.
Una fachada formada por una piel continua que envuelve el objeto arquitectonico , la cual enfatiza mediante perforaciones en la misma el perfil urbano , las dobles alturas y los cambios programaticos.





DISEÑO DE PARQUE URBANO

Trabajo de Morfologia III , una propuesta de parque lineal sobre el Rio Suquia . La propuesta forma parte de la entrega final del proyecto de Morfologia
SECCION A-A ESC 1.200

SECCION B-B ESC 1.200


















































Gracias !
JUAN CRUZ LONDERO
ESTUDIANTE DE ARQUITECTURA