Portafolio Profesional Juan Pablo Barreto

Page 1

Proyectos Profesionales • Vivienda Asequible Tlajomulco Proyectos Académicos • Hotel Koch • Piso Franco • Omalí Thalassa • Mercado Sector 1 • Viviendas Asequibles Sector 1 • Piazza Cairoli, Velletri • Plaza Montenegro Proyecto IED Madrid • STØRM 1 2 3 4 5 6 7 8 9
Tabla de Contenidos

Proyectos Profesionales

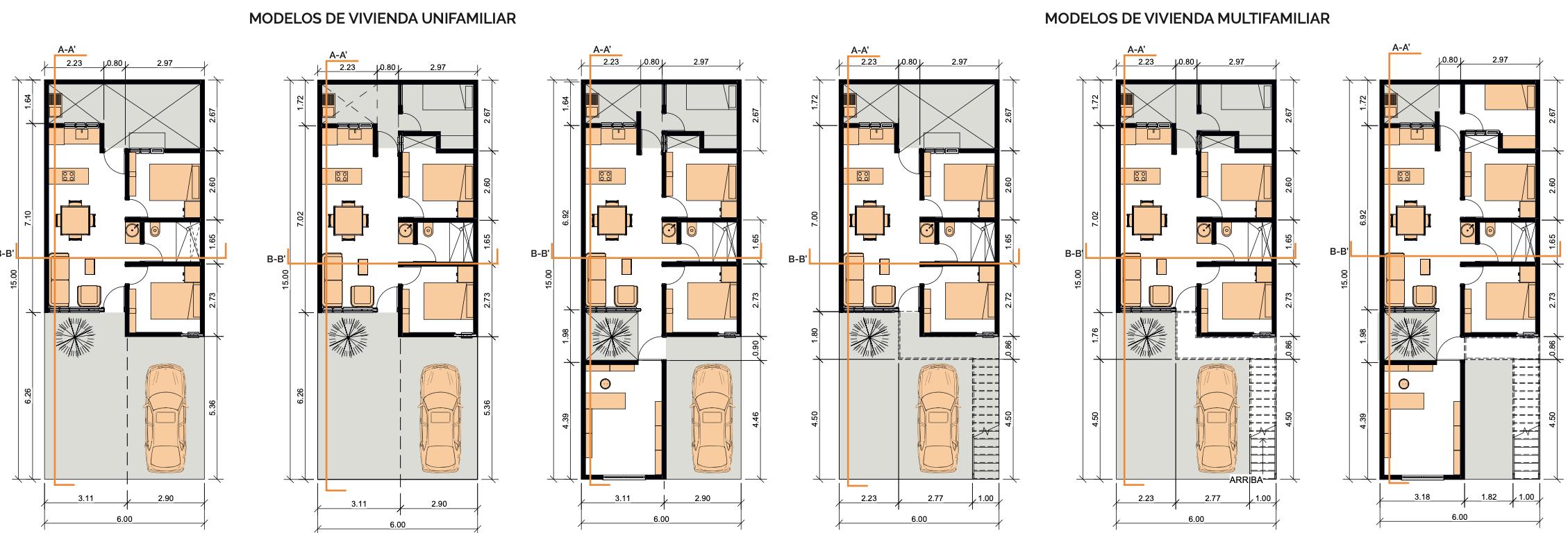
VIVIENDA ASEQUIBLE TLAJOMULCO

Proyecto profesional en Tlajomulco de Zúñiga, México, en colaboración con la arquitecta Jessica Lau Velázquez, el cual trataba de lograr renovar viviendas existentes, asi como realizar una distribución interior de los espacios reducidos, de manera en la que, a pesar de tener espacios pequeños, se logren espacios dignos para que los usuarios se puedan desenvolver sanamente.

Planta Baja Planta Alta Isométrico Explotado Planta Baja Isométrico Explotado

Proyectos Académicos

HOTEL KOCH

Proyecto académico de 4to semestre, en conjunto con dos compañeros de la carrera de arquitectura, buscando generar un proyecto de uso mixto, con un bar, un spa y un hotel en el mismo predio.

Queremos lograr una separación entre ambos usos, pero teniendo ambas ideas en un mismo proyecto en conjunto, por lo mismo, decidimos hacer uso de muros bajos, elementos naturales, vidrios, y materiales aptos para lograr una unión entre ambos proyectos.

Vista Interior Spa Fachada Posterior Hotel Fachada Frontal Hotel

PISO FRANCO

Proyecto académico de 5to semestre, en conjunto con compañeros de la carrera; contamos con un proyecto de uso mixto, que cuenta con un mercado en la primera planta, y módulos de vivienda en las siguientes, que, además cuenta con una planta destinada únicamente a áreas comunes que van a generar un sentido de convivencia entre los usuarios de los departamentos, asi como reduciendo costos de vivienda para asi poder hacerla mas asequible.

Buscamos hacer un proyecto asequible, pero sin dejar de lado el diseño arquitectónico, y la estética.

Omalí Thalassa

Proyecto académico en conjunto con compañeros de la carrera en 5to semestre, en el cual formamos un restaurante - bar, situado en la isla de Mikonos , Grecia; pensado para personas jóvenes de 20 a 40 años de edad.

Este proyecto está pensado basándonos en lo que ocurre en la isla. El diseño de este sitio va de la mano con los bellos paisajes que son un foco principal para atraer clientes, quisimos que la atmósfera trasmitiera una sensación de calidez y relajación al escuchar el sonido de las olas. Los materiales y la colorimetría están pensados para que se adapten al clima y a los colores naturales de la playa que tenemos al frente.

Vista Interior restaurante Vista Interior Baños Fachada frontal restaurante

MERCADO SECTOR 1

El mercado es la primera parte de un proyecto académico que realice con un compañero de 5to semestre, y buscamos ofrecer lenguaje arquitectónico sencillo que, a través de una sola materialidad y elementos de transparencia, delimiten los espacios hasta que empatice con el contexto y a la vez no se convierta en una caja negra.

Isométrico Mercado Vista Entrada Principal Vista interior Planta Alta

VIVIENDAS ASEQUIBLES SECTOR 1

La segunda parte de este proyecto, constaba de módulos de vivienda que tuvieran la posibilidad de ampliarse en caso de que el usuario asi lo necesitara. Sigue siendo en conjunto, y los espacios modulares tienen la capacidad de variar a través del uso de muros tapones, celosías y una retícula estructural que hace que sean fácil de modificar para el usuario.

Vista fachada frontal de viviendas

PIAZZA CAIROLI, VELLETRI

“Piazza de la due Fontaine”

Proyecto académico de 6to semestre, realizado en equipo, en el cuál se toma una plaza en Italia, y se realiza una renovación completa del espacio, dando protagonismo al peatón y creando espacios importantes de convivencia para los usuarios.

Dando lugares para sentarse a los usuarios de la plaza, y asi dar un espacio de calidad.

Planta Piazza Cairoli Nueva

PLAZA MONTENEGRO

Proyecto académico realizado de manera individual para la materia de Espacio Público y Paisaje, en el cual se realiza una intervención de una plaza de Guadalajara, buscando generar ejes claros de circulación, asi como experiencias agradables para los usuarios de la plaza

Planta Plaza Montenegro

Proyecto IED Madrid

Proyecto de diplomado de Decoración

Estilismo de Interiores Avanzado, llamado STØRM, el cual busca generar un restaurante de cocina fría de mar, junto con cocteleria autor Este es un proyecto integral, ya que genero el diseño del espacio, asi como toda identidad corporativa de la marca.

Isométrico Restaurante STØRM
Planta Restaurante STØRM

CATALOGO DE MATERIALES CON GRÁFICOS

VISTAS INTERIORES PROYECTO TERMINADO

“La arquitectura es una expresión de valores”
-Norman Foster

Turn static files into dynamic content formats.

Create a flipbook
Issuu converts static files into: digital portfolios, online yearbooks, online catalogs, digital photo albums and more. Sign up and create your flipbook.
Portafolio Profesional Juan Pablo Barreto by juan.barreto - Issuu