APOYO AREA DISEÑO INTEGRAL CONSTRUCCIONES S.A.S

Page 1

C o n s t r u c c i o n e s s. a. s. ∫ntegral APOYO AL AREA DE DISENO EN LA EMPRESA INTEGRAL CONSTRUCCIONES S.A.S POPAYAN 2.022 Cristian David Sarmiento Rivera

INTRODUCCION

LOCALIZACION

ELEMENTOS QUE COMPONEN EL SISTEMA PREFABRICADO MODULAR

PLANIMETRIA QUE SE REQUIERE EN EL SISTEMA PREFABRICADO

ETAPAS DE CONSTRUCCION DEL SISTEMA

PRESUPUESTOS Y CANTIDADES DE OBRA

CUADRO COMPARATIVO

VIVIENDA EN SISTEMA PREFABRICADO

VIVIENDA EN SISTEMA TRADICIONAL

VIVIENDA SISTEMA BIOCLIMATICO

Cristian David Sarmiento Rivera Contenido: 01 02 03 04 05 06 07 08 09 RESENA HISTORICA

.
1

INTRODUCCION

La demanda de vivienda, el trascurrir del tiempo y el desarrollo de nuevas tecnologIas, han generado una gran variedad de sistemas constructivos, cada uno con caracterIsticas particulares, dentro de estas formas de construccion encontramos el sistema prefabricado; podrIamos pensar que es un sistema actual, pero la historia de este sistema viene desde hace tiempo atras, el cual se ha transformado en una buena alternativa practica y rapida para suplir la demanda de vivienda, ademas de convertirse en una forma innovadora de construccion.

Cristian David Sarmiento Rivera
2

LOCALIZACION

POPAYAN Cristian David Sarmiento Rivera
CAUCA COLOMBIA
3

RESENA HISTORICA

Ha comienzos del 1800 se conoce que comenzo la produccion de viviendas prefabricadas de madera (Nordicas), pero a una escala artesanal.Las primeras casas levantadas con componentes modulares se empezaron a vender en 1837 entre los inmigrantes en Australia. Todas las casas se construian en el taller de carpinteria, y no se requeria trabajo de obra, maas alla de unos cimientos sencillos. Las viviendas que llegaban por tren a California durante la fiebre del oro de mediados del XIX o los primeros edificios en las colonias inglesas son otrosejemplos tempranos de esta manera de montar casas.

4

La materialidad empleado por en sus viviendas es el siguiente:

Concreto en losa de cimentacion de 3000 psi de resistencia.

Perfiles de acero galvanizado (aleacion de acero y zinc), el espesor varia entre los 0,5mm (para elementos no estructurales) y los 0,85mm y 1,5mm (para elementos estructurales)

Placas de concreto de 3000 psi de alta resistencia.

Marcos de puertas y ventanas metalicas Estructura de cubierta en tubo rectangular de 3” x 1 ½” calibre 18.

Laminas de Fibrocemento marca Colombit, tamano segun diseno arquitectonico.

Cristian David Sarmiento Rivera
8-8 0.97 cm x 0.97 cm 6-8 0.72 cm x 0.97 cm -8 0. 8 cm x 0.97 cm 2-8 0.2 cm x 0.97 cm 2-80.2 cm x 0.97cm x 8cm Placas de concreto de 3000 PSI Medidas y nomenclatura estandar Perfileria en acero galvanizado Materiales para Cubierta rectangular de 3 x 1 1 2 SOLERA 5
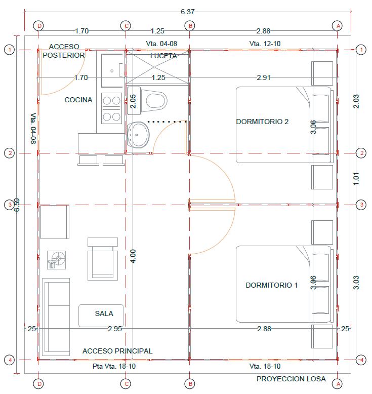
Planimetria Arquitectonica Planimetria Perfileria Cristian David Sarmiento Rivera
6
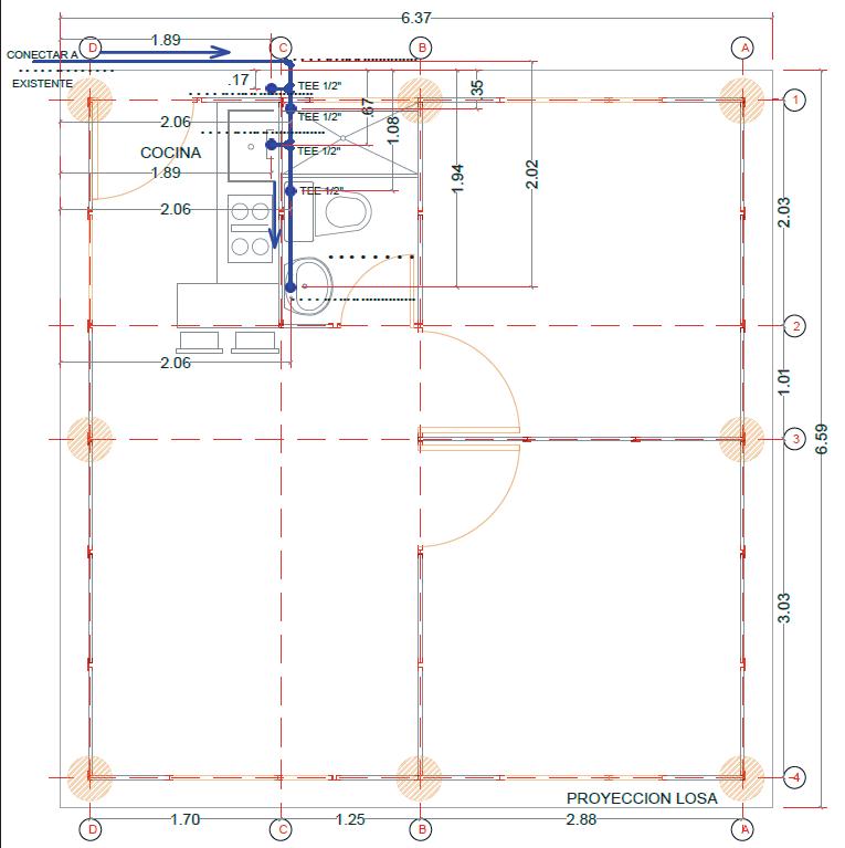
Planimetria Hidrosanitaria Planimetria Hidraulica Cristian David Sarmiento Rivera
7

Planimetria Estructura de Cubierta

Planimetria de Cubierta

Cristian David Sarmiento Rivera
8

Planimetria Alzados “ Fachadas”

Esta planimetria debe entregarse en 5 dias habiles ya que al ser viviendas que se entregan en 30 dias, todos los procesos deben tardarel menor tiempo posible.

Vienda sistema prefabricado obra gris Cristian David Sarmiento Rivera TIEMPOS DE ENTREGA
9

CALCULO DE CANTIDADES

1. Se debe multiplicar los m2 x el espesor de la losa lo cual nos da como resultado los m3 totales.

2. Se debe multiplicar los m2 x el espesor de la losa lo cual nos da como resultado los m3 totales.

3. Se debe multiplicar cada uno de estos valores por los m3 totales lo cual nos daran las cantidades que se necesitan para fundir una losa

1. deben sacar los metros lineales de tuberia hidroSesanitaria dividirlo entre 6 que es la longitud en la que viene la tuberia esto nos dara la cantidad de tubos que se deben comprar para la fundicion de la losa

2. Contar los accesorios que se deben utilizar para la conexion de la tuberia como lo son TEE YEE CODOS TAPONES BUJES SIFONES

Cristian David Sarmiento Rivera
Tabla Calculo Concreto 3.000 PSI Ejemplo Calculo Concreto 3.000 PS para Iosa de 42 Ejemplo Calculo Tuberia Hidrosanitaria
10

realiza tomando el plano de plaquetas y contar las diferentes tipos de plaquetas con sus respectivas medidas y asi poder totalizar el numero exacto de las que se requieran para el posterior armado e instalacion de la vivienda.

Cristian David Sarmiento

Se
Rivera CALCULO DE CANTIDADES Ejemplo Calculo Plaquetas de concreto de 300 PSI Ejemplo Calculo Perfileria metalica de acero galvanizado Se debe tomar el plano de perfileria y contar los diferentes tipos de Perfiles con sus respectivas alturas las cuales van desde la altura 20 2. hasta altura 32 3.8 4 4 11 4

PREFABRICADO

Losa de cimentacionDescapote y nivelacion del terreno

Retirar la capa vegetal que pueda debilitar la placa base.

Si el terreno esta en pendiente se debe excavar hasta lograr tener el terreno apto para realizar la losa de cimentacion

NOTA: la nivelacion debe ser en tierra amarilla

La cimentacion depende de la dimension total de la vivienda ya que si esta es menos a los 70 m2 la losa de cimentacion tendra un espesor de 8cm y si la vivienda supera los 70m2 tendra un espesor de 10 cm con una viga de amarre perimetral dentro de la cual va embebida la ducteria hidrosanitaria.

Cristian David Sarmiento Rivera
ETAPAS CONSTRUCTIVAS DEL SISTEMA
12

PROCESO DE ARMADO E INSTALACION DEL SISTEMA PREFABRICADO

Despues del fraguado y curado de la losa aproximadamente 15 a 20 dias se procede a realizar el armado de la vivienda en el cual las placas de concreto se ensamblan con un sistema de perfiles en acero galvanizados los cuales deben ir anclados cada 3 metros. Se emplean amarres verticales y horizontales para garantizar un buen comportamiento sismo resistentes

ESTRUCTURA DE CUBIERTA

Armados los muros se procede a colocar la estructura de cubierta en tubo de 3” x ½” rectangular para que las tejas de fibrocemento descansen sobre esta estructura.

En algunas ocasiones se deben realizar cerchas planas para mejorar la estructura de la cubierta.

Cristian David Sarmiento Rivera Anclaje cada 3m 20 cm profundidad Cercha metalica plana
13

INSTALACIONES ELECTRICAS Y SELLAMIENTO

DE UNIONES “ JUNTAS”

Concluido el armado de la vivienda se procede a realizar las instalaciones electricas las cuales van incrustadas sobre el perfil K, lo cual da un mejor acabado en el sistema. Se deben realizar un sellamiento de juntas ya que esto ayuda a que no se filtre el agua en las juntas de las plaquetas, y evita que se salgan grietas en el proceso de acabados

PROCESO DE ACABADOS

Los acabados, son similares a los de cualquier otra vivienda de sistema tradicional, en los interiores se debe estucar y pintar las superficies los pisos van en ceramica y los cielo rasos en PVC a gusto de los propietarios

CARACTERISTICAS

Se construye por modulos en un taller o fabrica. se transporta al terreno donde se realiza u instalacion.

TIEMPO DE EJECUCION

Los tiempos se reducen en un 50% ya que una vivienda modular en 3 meses puede estar construida y lista para habitar Los costos se reducen en un 50% ya que sus materiales de construccion son mas economicos y livianos.

COSTOS

ESTRUCTURA

Su estructura es en tuvo rectangular de 3x1 2” permite edificaciones hasta de 2 pisos. Cumple con la norma NSR10

PROCESO CONSTRUCTIVO

Todo el proceso constructivo esta controlado lo que genera menos desperdicio e imprevistos la hora de la ejecucion de la obra.

ACUSTICA 44

Al ser muros de cm su termoacustica es minima la cual se mitiga haciendo sus muros mas altos (altura inicial 2. ).

SISTEMA

Proceso constructivo menos controlado por lo que se le debe sacar imprevistos

genera mas desperdicios a la hora de la ejecucion de la obra.

ACUSTICA

termoacustica

espesor y acabados de sus muros.

Cristian David Sarmiento Rivera 15 CUADRO COMPARATIVO SISTEMA

TRADICIONAL Y PREFABRICADO Planimetria Estructura de Cubierta 01 04 02 03 CARACTERISTICAS TIEMPO DE EJECUCION ESTRUCTURA COSTOS 05 PROCESO CONSTRUCTIVO Sistema constructivo mas usado basa su Exito en la solidez se construye en el sitio Los tiempos de ejecucion mas largo debido al proceso constructivo de estas viviendas Su costo es mas elevado por la diversidad de materiales que se deben emplear para estas construcciones Su estructura es muy diversa porticos (vigas y columnas) mamposteria estructural permite construcciones de varios pisos. Cumple con la norma nsr10 06 TERMO
se
Mejor
por el
02 03 01
04
05
06
TERMO
4
PREFABRICADO SISTEMA TRADICIONAL

PREFABRICADA

Estrategias

Las estrategias bioclimaticas son aquellas que en la arquitectura se disenan para el rendimiento del clima y las condiciones de todo su entorno, con un inico fin, y es conseguir un estado de confort con una temperatura adecuada a su interior. Captar radiacion solar directa de la tarde para conservar el calor en las noches. Ganancia de radiacion solar directa de la mañana. Aprovechamiento de las visuales y la topografia.

En este grafico muestra lo que se ha evidenciado en los resultados de las condiciones anteriormente mencionadas y asi mostrar los tres conceptos que se quieren implementar en la vivienda CONSERVAR, GANAR Y CAPTAR

La orientacion de las fachadas mas largas es de oeste a este para que tomen mayor parte de la radiacion solar, reduciendo las fachadas de norte y sur.

16 Orientacion vivienda segun estrategias

VIVIENDA BIOCLIMATICA
C o n s t r u c c i o n e s s. a. s. ∫ntegral

Turn static files into dynamic content formats.

Create a flipbook
Issuu converts static files into: digital portfolios, online yearbooks, online catalogs, digital photo albums and more. Sign up and create your flipbook.