J'shon Scott 2nd Year Portfolio

Page 1


Architecture Portfolio

Pre-Architect Year 2

J’shon Scott

Greetings, I’m J’shon Scott, a third-year architecture student dedicated to improving my design and technical skills every day. This portfolio highlights my growth, creativity, and passion for architecture.

cal Skills

Table Of Contents

Tallahassee Skate

Park

Year 2 Semester 2.

#4-9

Step Pavilion Year 1

Year 1 Semester 2.

#10-15

Shipping Research

Year 2 Semester 1. #16-21

Tallahassee Skate Park

This project reimagines an underutilized urban alleyway near the State Capitol in Downtown Tallahassee as a vibrant Third Space a public skate park designed to foster informal gathering, recreation, and community con-nection. Focused on activating overlooked urban space, the design offers a mix of open and enclosed areas, creating a momentary escape from the city while encouraging social interaction. The skate park serves not only as a recreational zone but also as a platform for youth expression, community engagement, and urban revitalization through citizendriven design.

Area Render

Model Context

The project is located at 112 E Jefferson Street in Downtown Tallahassee. The s narrow footprint posed a design challenge, which guided the creation of a linear skate park layout. Despite the limited space, the design activates the area and offers a unique public

Plans

Level 2-3

Level two is dedicated to a graffiti art studio, fostering creative expression and community engagement. The third level functions as a viewing and meeting lounge for park sponsors, offering a vantage point to observe the activity and usage of the skate environment below. Together, these spaces create a multilayered experience that blends art, movement, and urban culture.

Level 1

The first level houses a dedicated skate shop, providing visitors with essential gear, board components, and accessories. This ground-floor retail space not only supports the needs of skaters but also activates the street edge, creating an inviting entry point that connects the building to the surrounding urban fabric.

Structure

Inspired by the street skating culture of New York City, this design integrates urban skate elements directly into the architecture. Clean, modern lines combine with ramps, ledges, and terraces to create a building that functions as both a dynamic public space and a skateable environment. The result is a structure that embodies movement, creativity, and community.

East Elevation

South Elevation

Area Usage

The sectional drawings and renderings illustrate the dynamic interaction between the skate park and the building’s vertical surfaces. They demonstrate how the walls, ramps, and integrated features are actively engaged by skaters, highlighting the seamless fusion of architecture and recreational use.

Step Pavilion

The design objective was to thoughtfully integrate elements of African American dance culture into the architectural language of the space. Through dynamic forms, rhythmic spatial sequences, and areas that evoke movement and community gathering, the project aims to celebrate cultural expression while creating a built environment that honors tradition, identity, and creativity.

Code Planes

Dance Parts

The original architectural components were thoughtfully reinterpreted and remodeled to align with my personal expression of dance. By analyzing the movement, rhythm, and flow inherent in my dance style, I reshaped the given pieces to reflect a spatial choreographytransforming static forms into dynamic gestures that embody motion, emotion, and cultural narrative.

Pavilions 90-axonometric

Concepts

The initial model was developed as a conceptual foundation, after which we were tasked with designing a walkway that seamlessly integrated with its existing form. This challenge encouraged a thoughtful exploration of spatial flow, scale, and user interaction, resulting in a pathway that not only complements the model but also enhances its experiential qualities.

Area Render

Concepts

The objective of this project was to create a simple and functional home using a preexisting structural frame for researchers studying the natural environment. Shipping containers were chosen as the primary material due to their strength, modularity, and adaptability. Their sustainable nature and low environmental impact made them an ideal solution for a compact, ecofriendly dwelling.

Sketches/Collage
Model Photo
Model Photo

Roof Plan

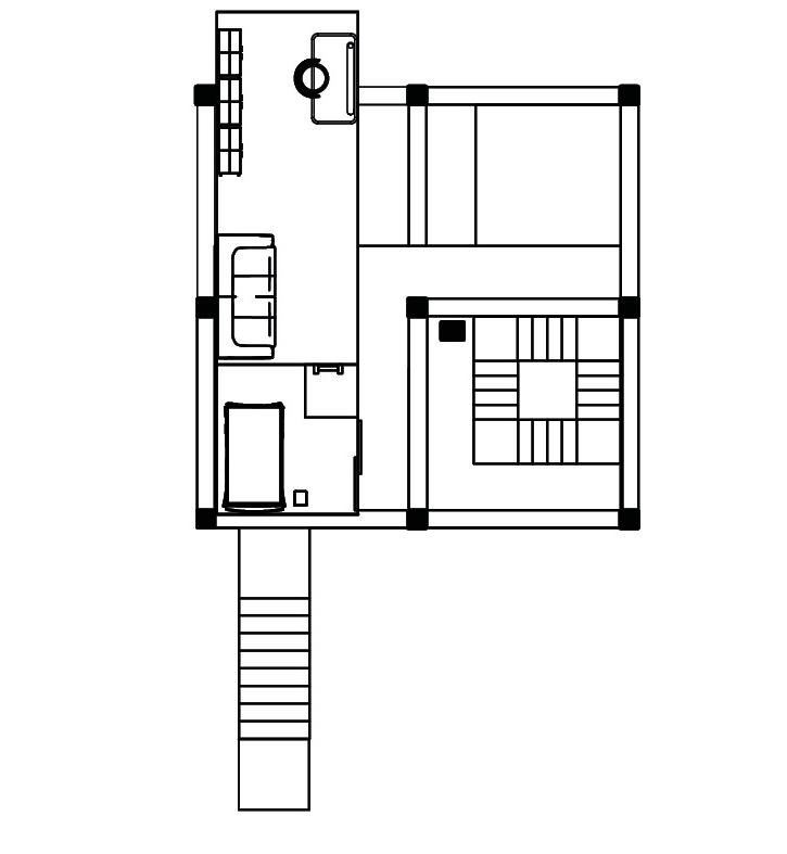
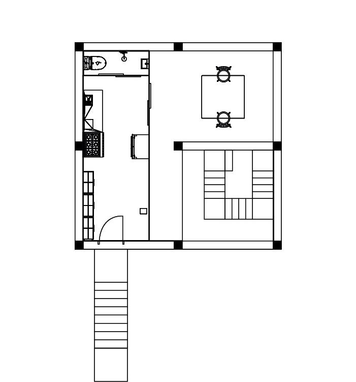
Second Floor

First Floor

Structure

The structure features two screened outdoor areas on the ground level, designed for uninter-rupted connection with nature while providing protection from insects. The first floor accommodates the research area, kitchen, and bathroom, with an open layout that facilitates seam-less transitions between indoor and outdoor spaces for fieldwork and study. The second floor houses a living room with an open visual connection to the kitchen below, while the bedroom occupies a compact, elevated container accessible by climbing. A projecting window nook in the bedroom offers a contemplative perch with panoramic views of the surrounding forest.

Section

Elevations

Structure

The structure is composed of a steel frame system integrated with repurposed shipping container units. Each container was carefully cut, modified, and welded together to form a cohesive and functional architectural layout. This method allowed for efficient construction, structural durability, and a distinct industrial aesthetic that aligns with sustainable design principles.

Model Render 1
Model Render 2

Bed Room Render

Turn static files into dynamic content formats.

Create a flipbook
Issuu converts static files into: digital portfolios, online yearbooks, online catalogs, digital photo albums and more. Sign up and create your flipbook.