Arch. Msc. Juan Pablo Velasco Perez
Construction Portfolio

![]()

Sibate - Cundinamarca - Colombia
Electrical design and networks draft - Technical coordination between architecture and engineering
+20 projects in Bogota
Technical coordination and design of plumbing, electrical and structure with architectue
Residential, commercial and comunal equipment
Electical design and calculations, licensing for construction and approval.
Landscaping and architectural design, BIM modeling and plan production for licensing
Sibate - Cundinamarca - Colombia
Electrical design and networks draft - Technical coordination between architecture and engineering




+20 projects in Bogota
Technical coordination and design of plumbing, electrical and structure with architectue


ARCHITECTURAL AND TECHNICAL DESIGN

TECHNICAL DESIGN FLOOR PLAN




Electical design and calculations, licensing for construction and approval.


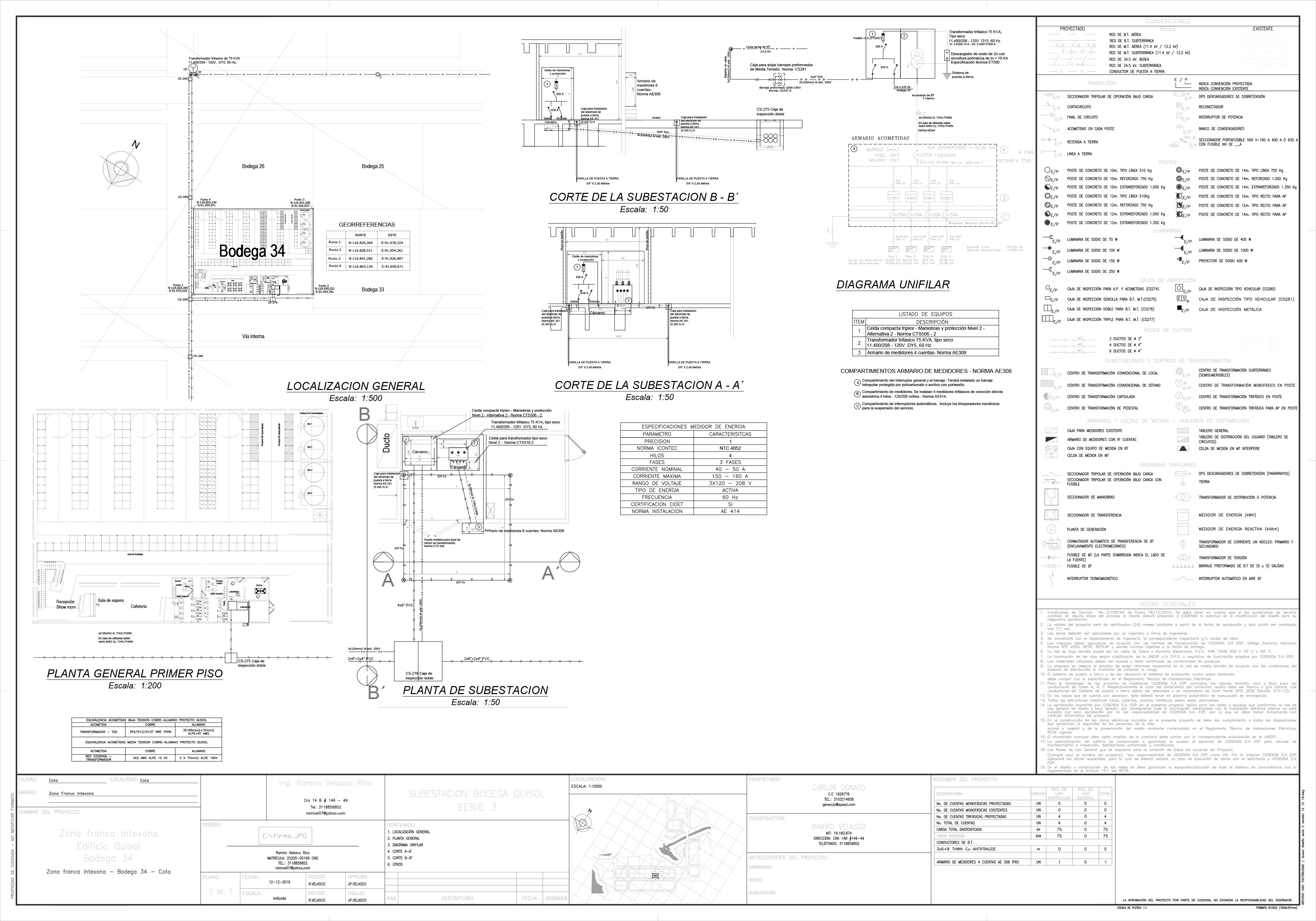
ELECTRICAL DESIGN AND LICENSING FOR A WAREHOUSE


ELECTRICAL LIGHTING AND NETWORK DESIGN FOR A STORE

ELECTRICAL LIGHTING AND NETWORK DESIGN FOR A HOUSE
Landscaping and architectural design, BIM modeling and plan production for licensing




