2025_JiaJoyHu_DesignWorkSamples

Page 1


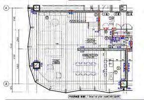
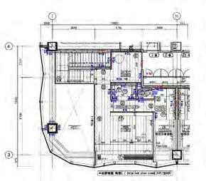
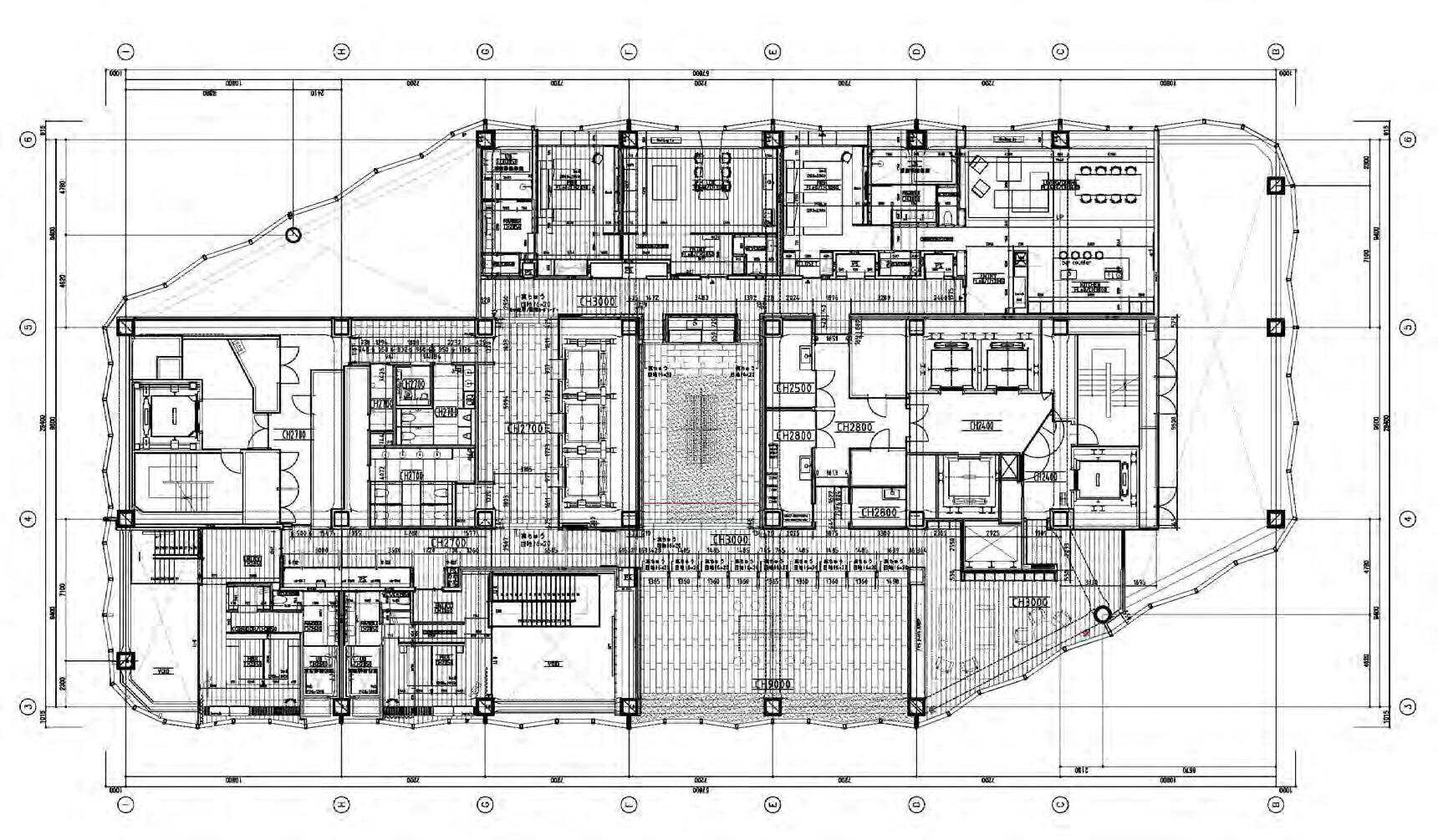
01. THIRD SPACES - HIGH END VC/TECH OFFICE

Location: Burlingame, California

Project Type: High end VC office TI (Tenant Improvement)

Phase: All Phases of Design through Construction, Complete

Role: Lead Project Architect + Designer Area: 4500 sf

This high end VC office reflects the post-pandemic phenomenon of “third spaces”. This project combines aspects of coffee shops, lobbies, and social clubs, acknowledging that people want to be in community, building social networks and in spaces that are flexible, comfortable, and offering moments of privacy. The design contains a mixture of spaces for private conversations and social areas for serendipitous interactions and centers around the central jewel conference room as the feature in the space.

02. SANWA HANGZHOU RETAIL SHOWROOM

Location: Hangzhou, China

Project Type: Interior Commercial Retail Fit-out

Phase: Concept, SD, DD, Constructed

Role: Co-Project Manager at Keiji Ashizawa Design Area: 500 sq meters

This showroom is based on the concept of a frame within frame. This frame system creates flexible modules which can be reconfigured to show different scenes that showcase the whole range of Sanwa Company’s kitchen and bath products. The intention was to create a showroom that not only displays the products, but showcases new lifestyle possibilities to the Chinese market by introducing Japanese simplicity. The timeline for this project was extremely accelerated, with me and my colleague having to go through schematic design through finished construction in only 6 months.

Location: Nanyang Technical University, Singapore

Project Type: Largest Mass Timber Building in Asia Green Mark Platinum (Zero Energy) – the highest award issued by the Building and Construction Authority of Singapore Phase: 100% SD / 50% Design Development Handoff

Role: Project Team Member at Toyo Ito & Associates, Architects Area: 40,000 sq meters (220 m long, 6 storeys high)

Toyo Ito & Associates, Architects won the international competition to design a new, all-timber business school in Singapore for Nanyang Technical University, called Academic Building South. With a gross floor area of 40,000 sqm, this new business school is a single-building solution that promotes harmony and interaction between faculty, undergraduate and post-graduate students.

The design is centered around the central, collaborative axis. This linear axis becomes the new third space, a place for unexpected encounters and exchanges away from structured and programmed classrooms and offices. On the 1-3F, the main axis manifests as the “continuous assembly”: doubleheight, informal lounge spaces, and on the 4-6F, this central axis then becomes the “sky forest”, in the form of outdoor green terraces.

The building is constructed of a modular timber post and beam system, its uniform, non-hierarchical deep structure allows program to be flexibly fit within the modules, and also allows for adaptability. The entire building is laid out on a radius so that its slightly curved form embraces visitors, creating a welcoming gateway to the rest of the campus and the nearby Yunnan Garden.

Ground Floor Plan

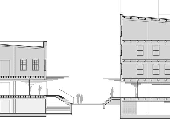
Location: Shinjuku, Tokyo, Japan

Project Type: Luxury Hotel Interior + Restaurant

Phase: Design Development

Role: Designer at Keiji Ashizawa Design Co. Ltd Area: 3000 sq meters

Inspired by the grand architecture of Milan and the restrained, simple and timeless aesthetics of the old Tokyo, Tokyu Milan is a hotel that is conceptually a fusion of the two metropolises. Both cities carry a strong architectural tradition characterized by their columns, rhythms, layers of spaces and a richness of materials.

The ambition is to create a united space with a new expression grounded in the two strong legacies of these two cultures. Implementing colonnades, wooden panels and marble walls washed with light will be of main focus. An evolving change of materials throughout the space will define the different areas and bring out the most delicate details of good craftmanship.

Skygarden
Sunset Lounge
Room D Bedroom

06. MARBELLA TOWNHOUSES SECTOR

Location: Marbella, Costa del Sol, Spain

Project Type: Urban Resort Townhouses

Phase: 100% Schematic Design

Role: Project Team Member at Meier Partners Architects Area: 1Br: 110sqm, 2 BR: 130 sqm, 3BR:165 sqm (32 units Total)

The new Four Seasons Marbella Resort sits on the coast of the Mediterranean Sea and the design of the masterplan responds to its unique seaside location. The shield exercise was to get a DD pricing set ready for a typical connected hotel unit (2 units) which included coordination with local engineers, a selected interior designer and landscape architect.

07. JESOLO LIDO DESIGN DISTRICT - THE BEACH RESIDENCES

Location: Jesolo Lido, Italy

Project Type: Luxury Condominium

Phase: 100% Design Development

Role: Project Team Member at Meier Partners Architects Area: 15,000 sq meters (10 storeys high)

Stelladelmar Real Estate SRL commissioned Richard Meier & Partners Architects LLP to design two luxury residential condominiums within a new large building development that includes residences in Jesolo Lido, Italy. Jesolo is located along the Adriatic coast of Italy, 40 minutes north of Venice. The design for the buildings utilize the clear and iconic visual vocabulary of Meier Partners Architects: transparency, capacious volumes of space, a sensitivity to the movement of natural light throughout the day, and sumptuous yet elemental materials.

The Beach Residences with 45 units are arranged along a north-south oriented circulation spine creating an east garden with the entrance space /drop off and the main west garden with landscaped pool areas. The spine connects the south and the north building creating the horizontal and vertical circulation with one fire stair and two banks of elevators.

Identical in height to The Beach Houses, the building has ten floors. Importance was given that all units are facing the west garden providing privacy and views to the sea.

08. DETROIT CORE CITY CREATIVE INDUSTRIES MASTERPLAN

Location: Detroit, USA

Project Type: Urban City Block Redevelopment

(Architectural + Landscape)

Phase: Concept Design (Phase 1)

Role: Core Team Member at Kengo Kuma and Associates

Area: 13,600 sq meters (146,520 SF) : Courtyard, 2 Historic Buildings, 3 New Buildings, Parking Lot

Core team member at KKAA for invited masterplan visioning process for revitalization and redesigning a city block in Core City of Detroit, Michigan, a part of town punctuated by vacancies. The site centers around the courtyard landscape behind two historic buildings, and our idea was to develop a connective network around this catalytic public space. The final interventions are sitespecific and carefully consider the existing Detroit community in how the buildings can reflect and fit into the cultural landscape of the city while creating new centers of activity in anticipation of future development.

Courtyard and Historic Building
Phase 1 Sites
Newly Designed Central Courtyard Space
New Woodshop Building

Key to the revitalization of the area was the entrance “gap” between the two main historic buildings, which needed a historically sensitive, yet distinctly new architectural intervention to draw people into the new public courtyard.

In addition to the courtyard site, we redesigned two large vacant lots near the site as a “car centric drive-in experience” as well as a “drifting” Japanese dry raked garden parking lot.

Drive-In Experiential Movie + Dining
“Drifting” Karesansui Parking Lot Concept
Historic Building Entry to Courtyard
New Two-story Entry Addition to Courtyard

09. THE URBAN SIEVE - A NEW PALAVA CITY OUTSIDE MUMBAI

Location: Palava City, Mumbai, India

Studio: Harvard GSD Option Studio - Spring 2017

Project Type: Urban/Landscape Design

Professor: Christopher C.M. Lee Area: 35.3 Hectacres

Award: Featured in Harvard GSD Platform 10 exhibit

To encourage a new type of knowledge-based live and work urban environment, we are proposing the concept of an urban sieve. This urban sieve’s deep structure functions in a bilateral manner to organize movement. The deep structure that divides the space of economics (the housing units) imprints itself on the ground floor as a flexible, colonnaded corridor.

The openness of the ground plane allows people and landscape to filter through. This creates programmatic clarity and continuity in the eastwest direction while allowing for a diversity of landscape experiences moving east to west.

Our “urban sieve” intends to be an intentionally low-rise scheme that disperses the campus across the city within three strips of program on the ground floor: incubator, social/commercial and classroom. Ultimately, the open ground floor plan is meant to encourage the metropolitan condition of chance encounters and unpredictable convergences, onditions necessary for innovation and creativity to occur.

Nala Hydrotype Deep Stepwell Hydrotype
1:1000 Model
Overall Site Plan
Ground Floor Plan around Nala Hydrotype

Turn static files into dynamic content formats.

Create a flipbook
Issuu converts static files into: digital portfolios, online yearbooks, online catalogs, digital photo albums and more. Sign up and create your flipbook.
2025_JiaJoyHu_DesignWorkSamples by Joy Hu - Issuu