Joy Maher Portfolio 2023

Page 1

Joy Samuel Labib Maher

Architecture Portfolio 2023

1

SELECTED COMPETITION

2 3 PROFESIONAL EXPERIENCE

- SELECTED DESIGN AND CONSTRUCTION PROJECTS

- SELECTED ACADEMIC WORK

STUDENT PROJECTS

// CONTENT

WOMEN’S HOUSE

KAIRA LOORO COMPETITION, SENEGAL

THE AIM OF THE COMPETITION IS TO DESIGN A WOMEN’S HOUSE THAT AIMS TO PROMOTE GENDER EQUALITY AS A KEY FACTOR IN RURAL DEVELOPMENT. THE BUILDING HAS TO BE A SPACE DEDICATED TO HOSTING EDUCATION AND RAISING AWARENESS. THE CONCEPT OF THE “WOMEN’S HOUSE” IS TO EMPHASIZE THE ROLE OF THE WOMEN IN SENEGAL IN ORDER TO MAKE IT MORE VISIBLE AND APPRECIATED BY THE SOCIETY. THIS WAS DONE THROUGH A CLEAR SPATIAL ORGANIZATION WHICH HAS SOLID MASSES SURROUNDING A CENTRAL MODULAR DIALOGUE SPACE. THIS OUTDOOR BAMBOO STRUCTURE ACCOMMODATES MANY FUNCTIONS SUCH AS WATER HARVESTING FROM THE HUMID AIR, SHELVES FOR PROPOSED EXHIBITIONS, SEATING, KIDS AREA, SHADING FABRIC AND IT SUPPORTS THE BUILDINGS’ ROOFS. ALL THE USED MATERIALS IN THE PROJECT ARE NATURAL OR RECYCLED AND AROUND 90% OF THE CONSTRUCTION PROCESS CAN BE COMPLETED BY LOCAL WOMEN VILLAGERS WHICH WILL CREATE A SENSE OF PARTICIPATION AND BELONGING TO THE BUILDING.

KAIRA
MODULAR DIALOGUE 1 5 4 CONSTRUCTION BUILDING CONCEPT CLIMATE DIAGRAM (1x1x1 METER) x136 MODULE KAIRA
MODULAR DIALOGUE 1 2 5 CONSTRUCTION BUILDING CONCEPT CLIMATE DIAGRAM 1x1 x136 KAIRA LOORO WOMEN MODULAR DIALOGUE TOWARDS THE SCHOOLS 1 3 BUILDING CONCEPT
LOORO WOMEN’S HOUSE
LOORO WOMEN HOUSE
BUILDING CONCEPT CLIMATE DIAGRAM (1x1x1 METER) x136 MODULE CONSTRUCTION PROCESS CLIMATIC CONCEPT DESIGN CONCEPT KAIRA LOORO WOMEN’S MODULAR DIALOGUE TOWARDS THE SCHOOLS FABRIC SEATINGS 1 2 3 CONSTRUCTION BUILDING CONCEPT
KAIRA LOORO WOMEN’S HOUSE MODULAR DIALOGUE
TOILET MAIN HALL HALL 1 HALL 2
TOWARDS THE SCHOOLS FABRIC
FABRIC TENT EXHIBITION
WATER HARVESTING 1 2 3 5 4 CONSTRUCTION
HALL 3
SEATINGS
SHELVES

TOWARDS THE SCHOOLS

TOILET

FABRIC SEATINGS

MAIN HALL

FABRIC SEATINGS

FABRIC TENT

POSTERS/ PORTRAITS

POSTERS/ PORTRAITS

ADMIN EXHIBITION

EXHIBITION SHELVES

EXHIBITION SHELVES

WATER HARVESTING PLAN

WATER HARVESTING PLAN

ALIGNED TO MAIN STREET

0 1 2 4
SECTION CONSTRUCTION
HALL 1 HALL 2
0 1 2 4
HALL 3
SECTION
TOILET EXHIBITION HALL 3 0 1 2 4 ALIGNED TO MAIN STREET EXHIBITION SHELVES WATER HARVESTING TOILET WATER HARVESTING 5 CLIMATE DIAGRAM

PROFESSIONAL EXPERIENCE

- SELECTED DESIGN AND CONSTRUCTION PROJECTS

BEIT RANDA | NEW CAIRO

VILLA 5 | MOUNTAIN VIEW 1 2

LANDSCAPE DESIGN & CONSTRUCTION

BEIT RANDA | NEW CAIRO | UNDER CONSTRUCTION

STUDIO 39 | KORBA | 2019

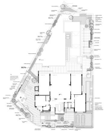
THIS PROJECT IS A LANDSCAPE PROJECT FOR A LUXURY VILLA IN NEW CAIRO. THIS PROJECT STARTED BY CONCEPTUAL DRAWINGS, MOOD BOARDS TILL REACHING THE CONSTRUCTION DRAWINGS LANDSCAPE PACKAGE. THIS PROJECT IS NOW UNDER CONSTRUCTION. THE LANDSCAPE PACKAGE INCLUDED HARDSCAPE PLANS, SOFTSCAPE PLANS, GRADINGS PLANS, STAKING PLANS, LIGHTING PLANS AND DETAILS.

CONCEPT PHASE LAYOUT PLAN PLANTATION PLAN
HARDSCAPE PLAN

LANDSCAPE CONSTRUCTION VILLA 5 | MOUNTAIN VIEW 1 |NEW CAIRO

STUDIO 39 | KORBA | 2019

THIS PROJECT IS A LANDSCAPE PROJECT FOR A LUXURY VILLA IN NEW CAIRO. THIS PROJECT STARTED BY CONCEPTUAL DRAWINGS TILL REACHING THE CONSTRUCTION DRAWINGS LANDSCAPE PACKAGE. THIS PROJECT IS NOW UNDER CONSTRUCTION. THE LANDSCAPE PACKAGE INCLUDED HARDSCAPE PLANS, SOFTSCAPE PLANS, GRADINGS PLANS, STAKING PLANS, LIGHTING PLANS AND DETAILS.

PHOTO FROM CONSTRUCTION SITE HARDSCAPE PLAN
COLLAGE
SUNKEN DETAIL SECTION DETAILS

PROFESSIONAL EXPERIENCE - SELECTED ACADEMIC WORK

LIBRCITY| BACHELOR THESIS (BERLIN)

POROSCITY | DESIGN STUDIO IV (BERLIN)

SOLAR RADIATION ANALYSIS | CADCAM III

MODULAR PAVILION | CADCAM IV

UNPLUGGED MATTER | ROBOTICS IN ARCHITECTURE

2

LIBRICITY: LIBRARY AS AN URBAN ACTION

BACHELOR THESIS

GIU Berlin | Architecture and Urban Design Program | Spring Semester 2022

Supervisors: Prof. Dr. David Calas | TA. Joy Samuel

SINCE THE LAST DECADES AND ESPECIALLY DURING THE PANDEMIC, LIBRARIES ARE UNDERGOING SIGNIFICANT CHANGES. LIBRARIES HAVE BEEN REINVENTING THEMSELVES SINCE THE INVENTION OF THE WWW, THE EMERGING OF THE SMARTPHONES AND UBIQUITOUS CONNECTIVITY, PUTTING ACCESS TO INFORMATION IN NEARLY EVERYONE’S HANDS. THE LIBRARY IS NO LONGER ONLY A REPOSITORY OR HOUSE WHERE TO READ BOOKS BUT A STRUCTURE OF URBAN RELATIONS THAT HAVE MORPHED INTO FULL-SERVICE COMMUNITY CENTRES WHICH AIM TO MEET A WIDE VARIETY OF CIVIC AND SOCIAL NEEDS. THEREFORE, LIBRARIES ARE NO LONGER JUST PLACES FOR BORROWING OR READING BOOKS. THEY NEED TO BECOME ARENAS OF A NEW TYPE OF KNOWLEDGE- GATHERING IN OUR URBAN FABRIC REGARDING A CHALLENGING FUTURE.

THE BACHELOR-THESIS-PROPOSAL ENCOUNTERS THE LIBRARY AS AN URBAN ACTOR, AS AN ARENA OF OUR DIGITAL AGE OF MAKING AND CODING. THIS TRIGGERS A COMPLETE RETHINKING PROCESS HOW LIBRARIES OF THE NEAR FUTURE SHOULD WORK. AN ARCHITECTURAL INVESTIGATION THAT PUSHES BOUNDARIES OF PRESENT MINDSETS BY ADOPTING A CHANGED FORMAL AND FUNCTIONAL EXPRESSION. THE GENERAL BACHELOR THESIS FRAMING IS ACCOMPANIED BY URBAN CONSIDERATIONS HOW SUCH PUBLIC BUILDINGS CAN SET OFF AN INCLUSIVE URBANITY PROCESS.

MAIN PLAN CONCEPT Student:
Mohamed Hossam

POROSCITY: HOUSING LIFE AND DIVERSITY DESIGN

STUDIO IV

GIU Berlin | Architecture and Urban Design Program | Spring Semester 2022

Supervisors: Prof. Dr. David Calas | TA. Joy Samuel | TA. Hassan Hussin

KREUZBERG, THE WORLD-FAMOUS DISTRICT NEAR BERLIN MITTE, IS KNOWN FOR ITS DIVERSE FORMS OF URBAN LIVING. ONCE ONE OF THE POOREST AREAS OF WEST-BERLIN, SURROUNDED FROM THREE SIDES BY THE WALL, THE DISTRICT SOON BECAME A GENTRIFIED AREA AFTER THE GERMAN REUNIFICATION IN THE 90IES. TODAY KREUZBERG CAN BE SEEN AS A INTERESTING URBAN STUDY FIELD, WHERE ALTERNATIVE LIFESTYLES ADJOIN WITH LUXURY APARTMENTS, POORER LIVING CONDITIONS CLASH WITH EXUBERANT REAL ESTATE INVESTMENTS AND WHERE SUBCULTURE MOVEMENTS RAISE “RIGHT TO THE CITY!” DEMANDS. THIS ENCOUNTER TRIGGERS QUESTIONS, ASKING HOW ARCHITECTURE CAN PICK-UP THE ROLE AS MEDIATOR. DESIGN STUDIO IV ENCOUNTERS THE WORDPLAY POROSCITY BY INTERTWINING THE WORD POROSITY AND CITY. WHILE THE TERM POROSITY REFERS TO THE CONNECTION BETWEEN INSIDE AND OUTSIDE, CITY IMPLIES TO THE DIVERSE ENVIRONMENT OF HUMAN AND NONHUMAN BEINGS IN THE URBAN REALM. THEREFORE, POROSCITY SUMS UP THE ENDEAVOURS WHICH WILL BE ENCOUNTERED DURING DESIGN STUDIO IV. ENCOUNTERS, WHICH RESULT IN AN EXPERIENCE OF SPACE BY CONNECTING DIFFERENT FORMS OF HOUSING WITH A DIVERSITY OF ACTIVITIES AND OPEN FUNCTIONS.

Students: Arwa Alaa Eldin | Habiba Maher | Leen Hussam
AXONOMETRIC MAIN PLAN GERMAN INTERNATIONAL UNIVERSITY BERLIN | ARCHITECTURE AND URBAN DESIGN | SS 2022 | ARCH602 DSIV | PORO CITY | PROF. DR. DAVID CALAS | MSC. HASSAN HUSSIN | MSC. JOY SAMUEL GROUP 02 | Arwa Alaa Eldin | Habiba Maher | Leen Hussam Section A.A on heSpree ound ket rban FabriC Ground Floor plan 1.200 SCALE GERMAN INTERNATIONAL UNIVERSITY BERLIN | ARCHITECTURE AND URBAN DESIGN | SS 2022 | ARCH602 DSIV | POROSCITY | PROF. DR. DAVID CALAS | MSC. HASSAN HUSSIN | MSC. JOY SAMUEL GROUP 02 | Arwa Alaa Eldin | Habiba Maher | Leen Hussam seCtion 1.200 SCALE Section A.A Restaurants and Ca es on heSpree Chldren P ayg ound Exh b on Informa Ma ket urban FabriC SPREE

SOLAR RADIATION ANAYSIS

CADCAM IV | GRASSHOPPER | LADYBUG

Supervisor: Dr. Maha El Gewely | TA. Joy Maher

RHINO MODELS FOR THE PAVILION USING ONE REPETITIVE MODULE

1:10 PHYSICAL MDF WOOD MODELS USING LASER MACHINES TO TEST THE CONNECTIONS AND THE FORM

CNC MACHINES FOR THE 1:1 PLYWOOD PAVILLION MODULES

INSTALLATION DAY WITH ALL THE STUDENTS

ROBOTICS in EARTH

UNPLUGGED MATTER ELECTIVE

Architecture and Urban Design Program | Building Technology Sub-Department | Spring Semester 2020

Supervisors: Assoc. Prof. Christian Schmitt | Dr. Federico Garrido | TA. Joy Samuel

INTERDISCIPLINARY RESEARCH APPROACH FOR UPGRADING THE ASSEMBLY PROCESS OF THE MUD BRICK WALLS IN ORDER TO CHANGE THE SOCIAL PERCEPTION OF MUD BRICK AS A “POOR MATERIAL”. THIS WORKSHOP WAS A COLLABORATION BETWEEN TWO ELECTIVE SEMINARS: UNPLUGGED MATTER and ROBOTICS IN ARCHITECTURE. THE ASSEMBLY WAS POSSIBLE BY THE USE OF MIXED REALITY TECHNOLOGY (MICROSOFT HOLOLENS) LINKING BOTH COURSES IN A COOPERATION ABOUT HANDMADE PRODUCTION AND DIGITALGUIDED ASSEMBLY.

RESEARCHER/ STUDENT PROJECTS

URBAN ALLOY _ CULTURAL COMPLEX | METZINGEN

MINI SCHOOL | ASHARQIA GOVERNORATE

STITCHING THE CITY | CAIRO

3

URBAN ALLOY_CULTURAL COMPLEX BACHELOR PROJECT | STUTTGART UNIVERSITY | GERMANY

Städtebau-Institut | Universität Stuttgart | Germany | Semester VII | 2018

Supervisors: Prof. Dr. Helmut Bott

THIS PROJECT IS AN URBAN INTERVENTION IN THE OUTLET CITY, METZINGEN, GERMANY. FOUR MONTH BACHELOR PROJECT IN STUTTGART UNIVERSITY. THE BUILDING ARCHITECTURE SCALE PHASE CAME AFTER AN URBAN DESIGN GROUP PHASE. THE BUILDING HAS A SCULPTURAL FORM TO FORM A LANDMARK AT THE ENTRANCE OF THE OUTLET CITY. THE FORM IS INSPIRED FROM THE SHAPE AND THE MEASUREMENTS OF THE SURROUNDING BUILDINGS AND WAS DEVELOPED THROUGH A SERIES OF WORKING MODELS. THE CIRCULATION TAKES THE VISITOR FROM THE ENTRANCE PASSING THROUGH THE ENTIRE BUILDING FUNCTIONS IN ONE DIRECTION RESPECTIVELY.

PLAN
MASTER
EXPLODED ISOMETRIC NORTH EAST ELEVATION 17.00 12.00 11.00 +8.00 5.00 1.80 0.45 +/- 0.00 B B A STORAGE KIDSAREA LAYOUT PLAN

CULTURAL CENTER

EXTERIOR SHOT ELEVATION 1:100 ELEVATION SECTION
SECTION MODEL | SCALE 1:100

MINI SCHOOL

Design Studio VI | Semester IX | 2018

Supervisors: Assoc. Prof. Urs Walter

THIS PROJECT DEVELOPED A NEW SCHOOL TYPOLOGY ON THE NATIONAL LEVEL: MINI-SCHOOL BLOCKS AS PART OF URBAN CAMPUS AREA IT IS A COMMUNICATION WITH GOPA CONSULTANTS AND GAEB. THE DESIGN IS BASED ON THE CLUSTER ORGANIZATION IDEA WHERE EACH TWO CLASSES HAVE A SHARED SPACE FOR ADDITIONAL ACTIVITIES. THE BUILDING IS MODULAR BECAUSE IT IS BASED ON A SIMPLE COMPOSITION CONNECTED BY A STAIRCASE AND AN INVITING OUTDOOR GROUND FLOOR. THIS MAKES THE IDEA FLEXIBLE TO ADAPT TO EVEN SMALLER LAND PLOTS. BUILDING LEVELS ARE ARRANGED IN SPLIT LEVEL TO ALLOW MORE CONNECTION BETWEEN DIFFERENT AGE GROUPS.

URBAN SCALE PLANS PASSIVE COOLING
PHYSICAL MODEL 1:50
PLAN
SECTION

STITCHING THE CITY

Design Studio V | Semester VII | 2017

Supervisor: Prof. Dr. Rita Pinto de Freitas

THIS PROJECT IS AN URBAN INTERVENTION IN A VERY VITAL AREA IN THE HEART OF CAIRO. IT CONSIDERS CONNECTING CAIRO UNIVERSITY WITH SEVERAL URBAN POCKETS AND UNUSED PARKS FOR A SPECIAL PEDESTRIANS EXPERIENCE IN THE HEART OF THE CITY AND TAKING INTO ACCOUNT THE CIRCULAR ECONOMY AS AN IMPORTANT FACTOR FOR SUSTAINABILITY.

ZOOM OUT MAP
MAIN NODES MAP
email mobile Thank You! joysmaher@gmail.com +201225858485

Turn static files into dynamic content formats.

Create a flipbook
Issuu converts static files into: digital portfolios, online yearbooks, online catalogs, digital photo albums and more. Sign up and create your flipbook.
Joy Maher Portfolio 2023 by Joy Samuel Maher - Issuu