Joy Oh Portfolio

Page 1


oh

SELECTED WORKS

WORKPLACE DESIGN Salesforce Tower

RESIDENTIAL DESIGN Ricardo Residence

RESIDENTIAL DESIGN Arcadia Residence

WORKPLACE DESIGN

Salesforce Tower

Salesforce Tower epitomizes a revolutionary approach to workspace design, placing the well-being of its occupants at the forefront. Its LEED Core and Shell Certified Platinum status, coupled with innovative features such as outdoor-fresh air intakes and ample natural light, create an environment of openness and vitality.

Location: San Francisco, CA

Total Area: 16,000 + SF

Property Type: Commercial

INSPIRATIONS: The design philosophy takes a holistic approach that reaches beyond individual office spaces, providing a unique chance to unify communities through the integration of nature, Ohana values, and sustainability.

Departing from traditional corporate norms, the tower embraces a startup ethos, fostering collaboration, sustainability, and employee wellness through thoughtful design elements like clear sightlines, open floor plans, nature-inspired elements, sustainable materials, social lounges, mindfulness areas, and residential-inspired finishes, embodying the Ohana values.

4

CUSTOM MILLWORKS

Console Table | Credenza | Coffee Table

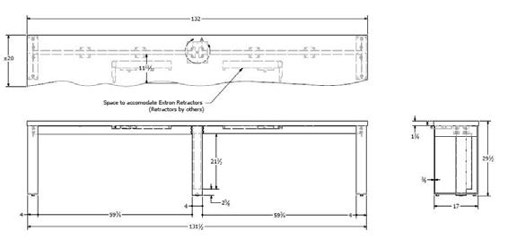
The Aloha conference room stands as a true embodiment of Salesforce’s core values, seamlessly intertwining the celebration of its cherished culture with the unification of their Ohana community. Designed to foster connection and collaboration, this space serves as a hub for creative thinking and teamwork. At its center lies a large U-shaped modular sofa, encircling laptop tables shaped like surfboards equipped with power and AV connections, facilitating seamless collaboration during team meetings. Complementing this setup is a live edge console table with power outlets, providing additional seating for up to four individuals and ensuring accessibility for all technological needs.

1- Live Edge Console Table

2- AV + Recycling Credenza

The credenza integrates into the space with its oak wood finish, serving as a multifunctional hub for storing tech equipment while doubling as a discreet recycling bin, embodying both functionality and sustainability in one sleek design.

A custom live edge console table, stretching 132” in length and crafted from locally sourced wood, seamlessly integrates nature into the space while

SOCIAL LOUNGE

The social lounge area, encompassing the kitchen, dining room, and living room spaces on each floor of the workspace, is designed to foster community engagement with an abundance of natural light.

This versatile space serves multiple functions, including grabbing a snack, taking a break, or meeting with colleagues, promoting interaction and collaboration across the office. Custom furniture supports these activities, such as a flexible bar-height table with an arc shape that allows use from both sides, perfect for eating or working on a laptop. Additionally, round tables are designed to encourage engagement and conversation, making them ideal for socializing during breaks.

Custom Table |Custom Console | Furniture

MATERIALS + FINISHES

1 Shaw Hopsitality (Print on 42 oz weave texture)

2 Seat: Anthracite Grey Base: Powder coated Black

3 Lacquered Walnut

4 Solid Rustic Oak Wood

5 Designtex- Adler- Tomato

6 Repurposed Redwood or Douglas Fir 7 Designtex- Lambert Latte 8 Cypress Tufted Lounge Chair-COM 9 Designtex- Adler- Daffodil

RESIDENTIAL DESIGN

Ricardo Residence

This project involved the renovation of a quaint family home for a growing family of four, focusing on the kitchen, living room, and main suite. The kitchen was redesigned for more space and functionality, catering to their love for cooking and hosting. The living room was transformed into a cozy space for the family to read and spend quality time together, while the main suite became a tranquil retreat, offering a peaceful escape that complemented their busy and active lifestyle.

Location: Piedmont, CA

Total Area: 2,164 + SF

Property Type: Residential

INSPIRATIONS: Inspired by the clients’ bold, eccentric style, the design incorporated fun patterns and pops of color, while balancing a calm, inviting atmosphere to create a warm, functional home that feels both lively and serene.

TIMELESS BOLD
SERENE NATURAL

The kitchen and dining room were opened up to create an inviting space for hosting family events, with the dining room featuring a cozy reading nook, a fireplace lounge, and ample storage that blends seamlessly into the layout. The main suite was redesigned to serve as a retreat, offering a peaceful escape.

KITCHEN + DINING

The project features fully customized millwork for all cabinetry, including an L-shaped countertop that connects to the dining area in an open concept, perfect for the clients, who are avid cooks and frequently host family events. Ample storage is seamlessly integrated throughout the space to accommodate their equipment, while a mini bar, open and blended into the design, offers additional storage without disrupting the layout, enhancing both functionality and style.

Custom Cabinetry |Glass Shelf | Dining Bench

MATERIALS + FINISHES

1

Visual Comfort- Liam Sconce 2 Hudson Valley-Sphere No.11
Iron Abode- Riviera Unit
IRG-Midnight Crystal Quartzite
Oak Wood Panel
Ladd Knob- Aged Brass
Ladd Drawer Pull- Aged Brass
Perrin & Rowe- U.4551HT
BM-In the Midnight Hour

1 Fabricut-Neighbor Muslin 2 Leighon Linear Chandelier

3 BM-Alabaster

Nuevo Montana Dining Table

Morentz- Pamplona Dining Chair

DINING

| ELEVATIONS

KITCHEN-OVEN WALL

RANGE WALL

COUNTERTOP ISLAND FRONT

LIVING

The client, an avid reader, wanted to create a sanctuary or reading nook in the living room where they could relax and get lost in stories, while also ensuring the space remained functional for family gatherings, occasional movie nights, and their cherished tradition of placing the Christmas tree by the fireplace.

The design strikes a balance by incorporating cozy reading corners, comfortable seating, and flexible layout options, making the living room ideal for both quiet moments and lively family activities, with a fireplace that becomes a central feature for holiday traditions.

Custom Daybed with Storage | Fireplace Area | Shelf

NOOK + FIREPLACE LOUNGE

The living space is divided into two distinct areas: a reading nook/TV sofa and a fireplace lounge, each serving as a flexible zone to adapt to the family’s diverse needs. The layout is designed to support the family’s lifestyle, ensuring a smooth flow between reading, watching TV, and family gatherings. The client didn’t want the TV to be the main focus, as they don’t watch a lot of movies, but it still blends seamlessly next to the reading nook. The recessed wall creates a cozy reading nook, offering a peaceful retreat within the open living space, complete with ample storage for books and vinyl records, blending functionality with relaxation. On the other side, a semi-separated lounge area is designed for cozy gatherings and, most importantly, to accommodate the Christmas tree during the holidays. This flexible living area effortlessly adapts to the family’s diverse needs, ensuring it functions perfectly for every occasion.

A- Daybed + Storage

The recessed wall is transformed into a reading nook, framed by woodpaneling. It serves as a daybed with storage for vinyl records, featuring corner shelving for books and a speaker.

B- Wood Shelf + Mantel

The wood shelf and mantel are crafted from the same oak wood paneling, matching the custom millwork throughout the living space for a cohesive, unified look.

C- Foyer Cabinet

The foyer cabinet is designed to store the client’s specific items, such as coats and shoes, helping to keep the space tidy while seamlessly matching the overall aesthetic.

LIVING ROOM-READING NOOK

LIVING ROOM-ENTRY

LIVING ROOM- FIREPLACE WALL
LIVING ROOM- TV WALL

MAIN SUITE | BATHROOM

Reeded Vanity | Shower Bench | Waterfall Tub

The main bathroom, though compact, is designed to feel cozy and functional while meeting all the client’s needs. It includes a dual vanity, a tub, a shower, and a water closet, creating a spa-like retreat within the limited space.

Custom

MATERIALS + FINISHES

1 BM-Seedling Paint

2 IRG-Calacatta Monet

3 Clayton Ceiling Mounted Mirrror 4 VC-Selecta Long Sconce

VC- Bryant Sconce

Calfaucet-MIramar

MAIN BATHROOM | ELEVATIONS

MAIN SUITE | BEDROOM

The room creates a dark, romantic retreat that feels cozy and intimate, providing a space for the client to unwind and relax. Midnight blue walls add depth and sophistication, while the canopy bed brings a touch of grandeur and classic elegance.

The moody atmosphere is designed to evoke calm and serenity, enhancing the client’s sleep experience. A full-size dresser, used as a side table, meets the client’s storage needs while maintaining the room’s luxurious, cohesive aesthetic. This blend of bold aesthetic, comfort, and practicality makes the space both beautiful and functional.

Custom Reeded Vanity | Shower Bench | Waterfall Tub

MATERIALS + FINISHES

1

3

French Canopy-King Size
2 Solana Wall Sconce
Soho Home- Warwick Drawer
4 BM-Marine Blue 5 Loloi Rug- AMM-01

RESIDENTIAL DESIGN

Arcadia Residence

Perched in the picturesque hills of Oakland, this 2800 square foot mid-century modern home provides a cozy haven for a young couple and their furry companion. Seamlessly blending modernity with ease, the renovation project reflects a contemporary aesthetic while retaining the home’s inherent warmth.

Location: Oakland, CA

Total Area: 2,800 + SF

Property Type: Single Family Home

INSPIRATIONS: Drawing inspiration from modern design principles, the renovation of this mid-century modern home embraces elements of warmth and tranquility, creating a youthful and vibrant atmosphere. Infused with quirky touches, the space reflects the homeowners’ playful spirit, resulting in a harmonious blend of contemporary style.

MODERN WARM TRANQUIL QUIRKY

This floor features an open concept that complements the modern style of the house, with the kitchen seamlessly opening to both the dining and living areas. The design preserves the aesthetic flow of the home while adding warmth through the use of natural wood for custom builtins. The goal was to ensure the expansive space feels inviting and functional, blending the dining, living, and kitchen areas into a cohesive, unified environment.

KITCHEN | RENDERING

Island Countertop | Appliance Garage | Cabinetry

The custom built-ins and kitchen island countertop are finished with rich walnut wood panels, creating a seamless modern look that flows throughout the space. The walnut is paired with sleek white quartzite countertops, balancing warmth and elegance, while fun patterned ceramic tiles add a playful touch to the design.

KITCHEN | ELEVATIONS

REF.| SINK | RANGE WALL

KITCHEN-
KITCHEN-PATIO WALL
KTICHEN -APPLIANCE GARAGE | ISLAND COUNTERTOP FRONT
KTICHEN- ISLAND COUNTERTOP BACK

Turn static files into dynamic content formats.

Create a flipbook
Issuu converts static files into: digital portfolios, online yearbooks, online catalogs, digital photo albums and more. Sign up and create your flipbook.