PORTAFOLIO - Joselyn Garcia

Page 1

PROYECTO VITIVINÍCOLA

NAZCA
CORTES 07
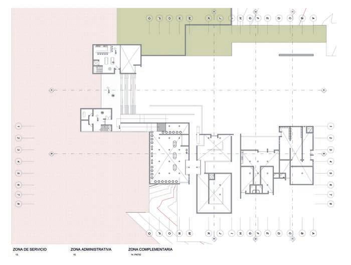
NIVEL -06 NIVEL -05 PLANTA 08
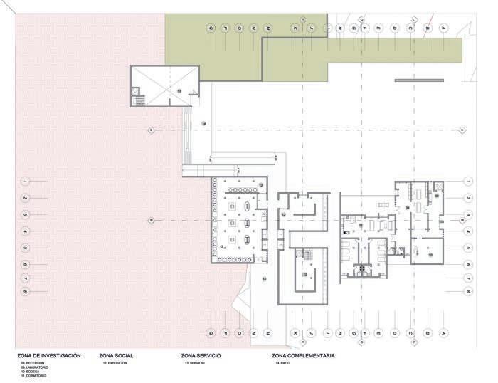
NIVEL -04 NIVEL -03 PLANTA 09
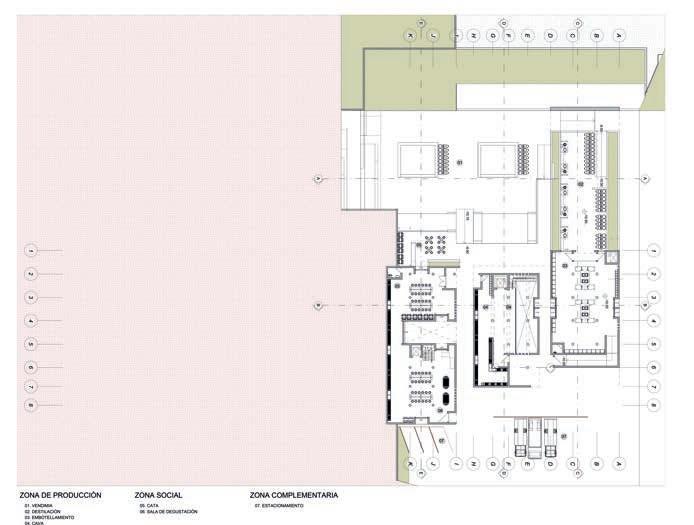
NIVEL -02 NIVEL -01 PLANTA 10
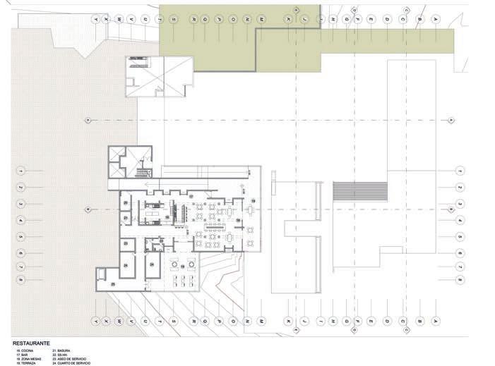
NIVEL 00 PLANTA 11
PROYECTO 12
13

QATUN QUCHA TALASOTERAPIA

MORRO SOLAR

16
NIVEL -01 NIVEL 01 PLANTA 17
NIVEL 02 PLOT PLAN PLANTA 18
CORTES 19
DETALLE 20
DETALLE DE AMBIENTE

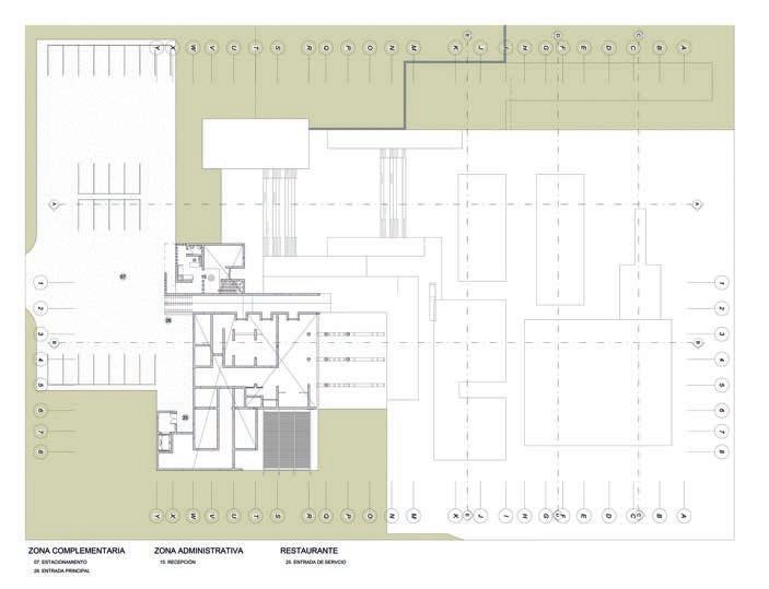
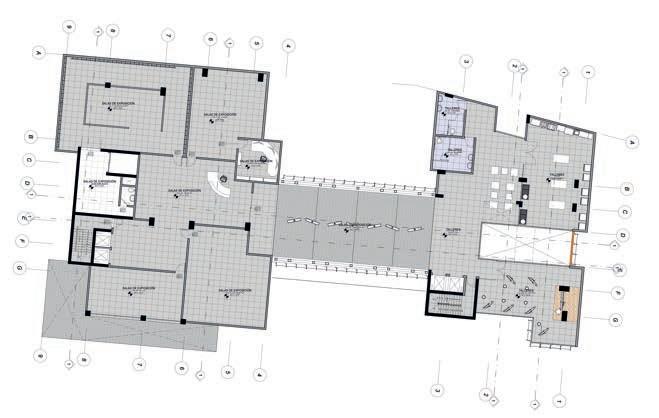
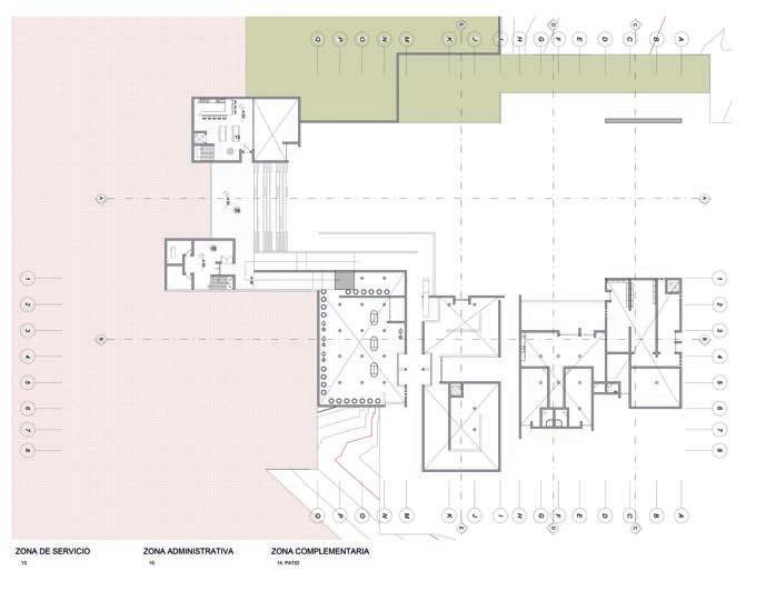
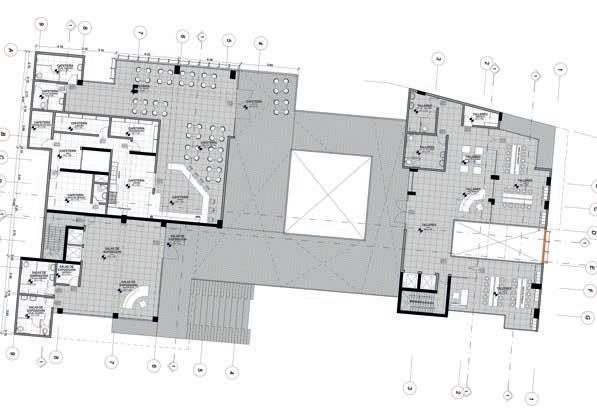
MUSEO SENSORIAL

24

BOSQUE EL OLIVAR

26
ESTACIONAMIENTO NIVEL 01 PLANTA 27
NIVEL 02 NIVEL 03 NIVEL 04 PLANTA 28
NIVEL 05 TECHO DETALLE 3D PLANTA 29
CORTE A-A’ CORTE B-B’ CORTE 30
CORTE C-C’ CORTE D-D’ CORTE 31
CORTE E-E’ CORTE F-F’ CORTE 32
CORTE 33
CORTE G-G’ CORTE H-H’
DETALLE 01 DETALLE 02 DETALLE 34
MOODBOARD 39
PLANTA 40
CORTES 41
ACABADOS 42
DETALLE 43
DETALLE 44

Turn static files into dynamic content formats.

Create a flipbook
Issuu converts static files into: digital portfolios, online yearbooks, online catalogs, digital photo albums and more. Sign up and create your flipbook.
PORTAFOLIO - Joselyn Garcia by JOSELYN ALESSANDRA GARCIA CANDIA - Issuu