Capstone Research-Problems in Book Retail

Page 1

Navigating the Decline
Physical
CONTENTS 3 ···································································································· Logic/Argumentation 4 ····································································································
for Decline 5-6 ································································································
Retail 7-8 ································································································ Publishing Industry 9-10 ······························································································
AND Genres 11-12 ···························································································· Environmental Impact 13 ·································································································· Financial AND Cultural Importance 14 ·································································································· SWOT Analysis 15-16 ···························································································· Design Implications 17-18 ···························································································· Sources 19-28 ···························································································· Case Study
of
Books, the Rise of E-Books, & the Challenges Facing Bookstores Everywhere
Reasons
Book
Marketing

RISE OF E-BOOKS/READERS

Decline in print book sales

Bookstores are losing business

The book buying industry is undergoing significant changes as evidenced by the sales trends of different book formats. A decline of 4.5% in total U.S. book sales from 2021-2022, together with a 6.5% decrease in print book sales, indicates changing reader preferences. Notably, hardcover books saw a substantial 10.5% drop, while paperback sales experienced a milder decline of 2.4%.

Eventual decline of publishing industry

Marketing digital books/ reading material

Belief

Loss

Literature

$54,000,000 THIS DECLINE IN SALES RESULTED IN A LOSS OF IN REVENUE

Amidst these changes, the rise of e-books is underway. Responsible for 34% of book sales in 2023, 3 in 10 Americans are now favoring e-books over print. E-book sales reached a record high of $1.91 billion in 2022, and this number is projected to grow. By 2027, e-books will account for just under 20% of global book sales. Additionally, audiobooks are projected to grow by 27% in the next five years. However, the appeal of purchasing physical books can be restored through younger readers.

that e-readers are better for the environment
& educational material purchased online
of community and culture brought by bookstores
Reasons for Decline in Print Book Sales 3 4

BOOK RETAILERS ARE LOSING BUSINESS

22.3% DECLINE IN B&N SALES IN 2021

In 2012, there were 16,819 independent and chain bookstores operational in the U.S. As of 2020, there are only 10,800.

6,000+

BOOKSTORES CLOSED IN 8 YEARS

The Future of Reading Retail

Book retail is undergoing a significant transformation marked by a notable decline in the number of bookstores. Between 2012 and 2017, the industry witnessed a 12% decrease in the total number of bookstores.

Barnes & Noble holds the title of the largest bookstore chain in the U.S. generating an annual revenue of $3.6 billion, with 627 locations across the country. However, the challenges in the industry are evident as shown by Barnes & Noble experiencing a significant decline in sales in 2021.

This challenging time for the bookstore industry also resulted in a 5.5% drop in bookstore employee wages.

6
5

THE PUBLISHING INDUSTRY

The book publishing industry (most notably the “Big 5”, the largest trade book publishing companies), is struggling with the challenges posed by the decline in print book sales. As of 2022, the U.S. book publishing industry employed 72,008 individuals. However, “E-books have made it easier for authors to self-publish their books. With e-books, authors can publish and distribute their books without the help of a traditional publisher.”

So, what does this mean for these companies and their employees?

How might the increase in digitally published book sales impact these larger publishing companies and the diversity initiatives they have implemented? Could this shift potentially lead to the phasing out of such initiatives, and if so, what implications might this have on job opportunities for diverse individuals within the industry?

8 7

During the pandemic, the discovery of new books was made increasingly more difficult as publishers struggled to find ways to bring new titles to the attention of readers. Authors turned to effective marketing strategies, leveraging social media to engage with their target communities.

Share of TikTok users reading more books because of #BookTok in 2023, by state

On the social media app TikTok, #BookTok exponentially increased the number of books read by users. 80% of users in Maine engaged with BookTok said they were reading more because of the recommendations brought about by the hashtag.

ETING

MARK

Many self-published authors are writing within fantasy and romance genres, and are targeted specifically to niche groups of readers. A much fewer number of books published are nonfiction. In 2021, adult fiction sales increased by 25.5%.

However, many of these titles are by independent authors & are published digitally. Out of the 4 million titles published in 2021, over 57% were self-published.

9 10

Manufacturing a single e-reader,

produces 65 lbs of CO2

An 8GB Kindle can hold up to 3,000 books. However, avid readers only finish about 12 books in a year. An e-reader must be replaced every 3 years on average.

consumes 100 kilowatt hours of electricity

For reference, you could charge a Nissan Leaf electric car 2.5 times with the same amount of energy. You could also run your refrigerator for two whole months.

Manufacturing a single e-reader extracts 33 pounds of minerals including copper, silicon, and lithium. These rare earth materials are non-renewable, toxic, and are “[often] mined [unethically] in underpriviliged, war-torn countries”.

Chile, Argentina,China, Austtralia

en·vi·ron·men·tal im·pact

USA, Chile, Democratic Republic of the Congo, Russia

Brazil, Norway, Russia, China

Lithium Silicon Copper
11 12

FINANCIAL & CULTURAL IMPORTANCE

38% of college students are in debt

$1,240 on textbooks over four years yet they must spend

For students burdened by the high costs of textbooks, the existence of used bookstores with communal educational resources could be a gamechanger. Access to affordable textbooks and other educational material encourages students to prioritize their education, and allows then to do this without financial burden.

Bookstores play a vital role in fostering culture and community, and developing local identity and intellectual growth. By choosing to buy from independent and chain bookstores, readers contribute to the sustainability of these businesses, support an environment that thrives on diversity and community engagement, while combatting the influence of large corporations.

Strengths Weaknesses

Physical books offer a tactile and sensory experience that e-books cannot replicate.

Nostalgia and sentimental value is associated with physical books.

Exclusive content (limited editions, signed copies, etc.) are only available in print.

Bookstores create a community around physical books.

Physical books often involve higher production and distribution costs.

Physical books are constrained by geographical availability.

In a digital age, it is impractical to integrate technology within physical books.

Opportunities

Creating/nurturing spaces that cater to book readers and buyers who support book retailers.

Collaborating with local businesses or community spaces to create unique book-buying experiences.

Offering subscription services for curated book selections.

Rise and convenience of E-Books.

Bookstores cannot compete with online retailers which dominate the book market.

Changing consumer behavior, preference for digital content or online shopping.

Threats Internal Negatives Positives External
14 13

DESIGN IMPLICATIONS

Creating an inviting atmosphere: Design the bookstore to provide a warm and inviting atmosphere. Incorporate comfortable seating areas, cozy reading nooks, and ambient lighting. This can encourage customers to spend more time browsing physical books.

Café/coffee shop

Incorporate green spaces and/or gardens

Reading lounges

Art installations

Curated sections & selections: Organize books thematically and create curated sections to guide customers with varied interests. This adds a personal touch to the shopping experience and makes it easier for customers to discover new titles.

Interactive displays

Flexible store layouts/multi-functional spaces: Design flexible spaces that can accommodate various activities such as book clubs, author readings, workshops, and community events. Having adaptable spaces allows the bookstore or library to serve multiple purposes.

Collaboration spaces

Private work desks/seating

Focus on sustainability: Emphasize the sustainability of physical books over digital alternatives. Use eco-friendly materials in the store design, promote recycled paper, and highlight the environmental benefits of traditional books.

16 15

Sources

- https://www.oedb.org/ilibrarian/12-stats-on-the-state-of-bookstores-in-america-today/#:~:text=1%20Today%2C%20there%20are%20around%2010%2C800%20bookstores%20in,1%2C900%20between%202002%20and%202011.%20...%20More%20items

- https://gitnux.org/book-sales-statistics/#:~:text=By%202023%2C%20global%20trade%20book%20sales%20revenue%20is,book%20sales%20and%20the%20potential%20for%20future%20growth.

- https://www.anthropocenemagazine.org/2020/08/the-environmental-footprint-of-paper-vs-electronic-books/

- https://publishers.org/news/aap-statshot-annual-report-publishing-revenues-totaled-28-10-billion-for-2022/

- https://www.publishersweekly.com/pw/by-topic/industry-news/financial-reporting/article/91245-print-book-sales-fell-6-5-in-2022.html#:~:text=Jan%2006%2C%202023-,After%20two%20years%20of%20surprisingly%20strong%20sales%20during%20the%20pandemic,from%20843.1%20million%20in%202021

- https://scanse.io/blog/ebooks-vs-printed-books-statistics-sales-trends/#:~:text=Ebooks%20have%20been%20growing%20globally%20by%203.52%25%20annually,over%2017.27%25%20of%20global%20book%20sales.%20source%3A%20Wordsrated.com

- https://www.trvst.world/waste-recycling/can-you-recycle-old-books/#:~:text=Do%20you%20know%20that%20around%20320%20million%20books,0.4%25%20of%20total%20solid%20waste%20in%20landfills%201.

- https://wordsrated.com/book-sales-statistics/#:~:text=As%20of%202023%2C%20the%20global%20book%20publishing%20revenue,expected%20to%20grow%20to%20%24163.89%20billion%20by%202030.

- https://wordsrated.com/ebooks-sales-statistics/

- https://wordsrated.com/book-publishing-companies-statistics/

- https://wordsrated.com/bookstore-employee-statistics/

- https://www.zippia.com/advice/us-book-industry-statistics/

- https://www.tonerbuzz.com/blog/paper-books-vs-ebooks-statistics/

- https://www.tonerbuzz.com/blog/book-and-reading-statistics/

- https://www.tonerbuzz.com/blog/how-many-books-are-published-each-year/

- https://www.statista.com/topics/1474/e-books/#topicOverview

- https://www.statista.com/statistics/1398645/united-states-booktok/

- https://commercialwaste.trade/e-readers-vs-books-better-environment/

- https://www.bookwritingcube.com/the-significance-of-ebooks-in-book-publishing-industry/

- https://sites.lsa.umich.edu/mje/2021/04/01/the-future-of-print-books-and-bookstores/

- https://www.pewresearch.org/short-reads/2022/01/06/three-in-ten-americans-now-read-e-books/

- https://www.publishersweekly.com/pw/by-topic/industry-news/publisher-news/article/72889-ranking-america-s-largest-publishers.html

- https://theecoguide.org/books-vs-ebooks-protect-environment-simple-decision#:~:text=A%20single%20e-reader%E2%80%99s%20total%20carbon%20footprint%20is%20approximately,if%20those%20books%20had%20been%20read%20in%20print.

- https://www.wipo.int/export/sites/www/ipstats/en/docs/fbf-pre-release.pdf

- https://www.custommade.com/blog/e-readers-vs-print-books/

18 17

CASE STUDY

Fudan Jingshi Bookstore

affiliated to Fudan University Press

Location: Shanghai, China

Architects: SHUISHI

Year: 2020

Size: 12,270 sq. ft.

Floors: 2

“The first floor is mainly for exhibition, reading and book storage, as well as activities and water bar area.”

“At the southwest corner, there is a coffee bar. There are windows for external sales along the street, which also serves the activity area and the rest area on the south side.”

20 19
22 21

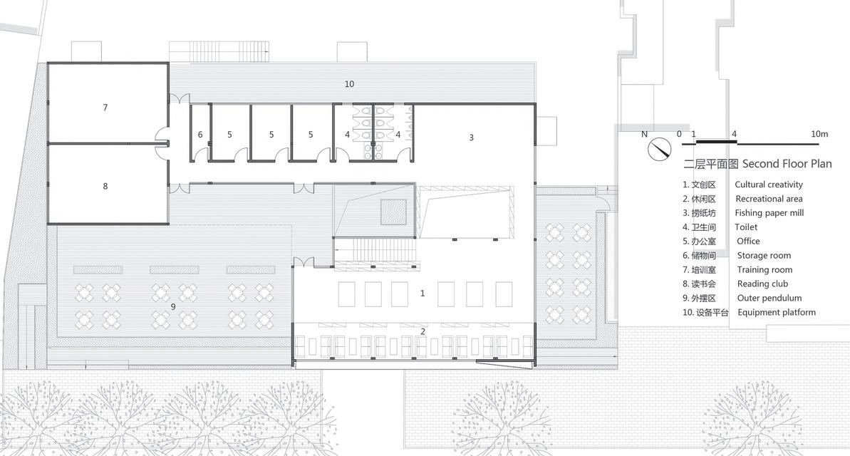
CASE STUDY

Fudan Jingshi Bookstore

affiliated to Fudan University Press

“The second floor is mainly for the display and sale of leisure and cultural and creative products, and can hold various special cultural exhibitions of bookplates, student works, and ancient prints etc.”

“The large terrace on the second floor serves as the outdoor extension of the indoor leisure and cultural and creative zone, which can meet needs of outdoor activities and exhibitions.”

open to below

24 23
26 25

North Section

South Section

Exploded Axonometric
28 27

Turn static files into dynamic content formats.

Create a flipbook
Issuu converts static files into: digital portfolios, online yearbooks, online catalogs, digital photo albums and more. Sign up and create your flipbook.
Capstone Research-Problems in Book Retail by josiepercy - Issuu