
2 0 2 5
Arq. Josibel Garces
![]()

2 0 2 5
Arq. Josibel Garces



“La arquitectura no solo define espacios sino que crea atmósferas donde la luz y la textura se encuentran para dar vida a la emoción del hogar”





Breve Descripción del Estado Actual. Generalidades
Ático en Madrid, orientación este.
Planta ático.
Año de construcción del edificio aprox 1900.
Instalaciones comunes de la finca ascensor, portero físico trasteros patios de instalaciones.
Estructura de muros de carga de ladrillo y entramado de madera.
Forjados de vigas de madera Interior de la vivienda:
Altura libre entre suelo terminado y forjado superior: 3.00m
Relleno de arena + mortero de nivelación + baldosa de terrazo: 15cm
Bajantes: a través del patio
Perfil del usuario.
Matrimonio de Javier (42 años, informático especializado en seguridad.) y Lourdes (43 años abogada) con dos hijos niño (6 años) y niña (9 años)
El piso objeto ha sido recientemente adquirido, y será su vivienda habitual.
Estética deseada
Estética moderna, pero cálida y hogareña Líneas rectas mucho blanco, con posibilidad de recuperar el ladrillo
original de alguna de las paredes Más amantes del diseño que de la decoración Uso de piezas exclusivas e icónicas combinadas de objetos recuperados y de mercadillo, junto a obras de arte contemporáneo.
Puede utilizarse algunas maderas recicladas trabajadas en bruto
Les gustan los metales, el hormigón, el microcemento y el vidrio, también el ladrillo.
Les gusta el papel pintado y los fotomurales
Les gusta la exposición de toda clase de cachivaches, pero uno a uno, sin acumulación
Les gusta la tendencia del reciclaje pero están hartos de los palets
Están de acuerdo en el uso de telas para crear un ambiente hogareño, así como para mejorar la acústica
Iluminación principalmente indirecta a base de lamparitas, de pie de mesa o colgantes, pero también iluminación técnica para iluminar correctamente los puntos de interés, obras de arte etc..
No les gusta nada el mueble colonial, ni el estilo rústico.
Perfil del usuario.
Matrimonio de Javier (42 años, informático especializado en seguridad.) y Lourdes (43 años abogada) con dos hijos niño (6 años) y niña (9 años)
El piso objeto ha sido recientemente adquirido, y será su vivienda habitual.
PLANTAACTUAL


Programa de Necesidades:
Espacios muy abiertos pero identificados - no todo junto, no todo diáfano
Salón
Zona de asientos con 6 / 8 plazas
Zona de TV y audio/video/videoconsola/multimedia
Mesa de centro que sirva también para cenar de forma desenfadada en familia viendo la tele
Zona de lectura/biblioteca/juego con los niños - área lúdica para disfrutar todos
Exposición de piezas recuperadas de mercadillos
Comedor
Para 6 personas cerca de la zona de cocina.
Almacenamiento de mantelería, vajilla y cristalería en el mismo comedor.
Cocina:
Con posibilidad de abrirla o cerrarla hacia el comedor.
Placa de 4 fuegos, inducción
Horno + Microondas en columna
Fregadero de 1 seno + escurridor
Encimera de preparación en isla o península


Dormitorio principal:
Con vestidor y baño completo:
Dispondrá de cama de 1500x2000, mesillas cómoda, y zona de trabajo (sólo para un portátil en un rincón)
Vestidor con todos los accesorios (2/3 para ella 1/3 para él). Espejos de cuerpo entero.
Baño con ducha sin bañera Inodoro en cabina. No bidet.
Otros baños y aseos:
Baño de planta (niños), con inodoro, lavabo y ducha.
Aseo en zona de día solo inodoro y lavabo. No más de 3 m2
2 Dormitorios de infantiles:
Niño con cama nido de 1900x900 y zona de juegos escritorio Color verde
Niña: con cama normal (no nido) de 1900x900 y mucho almacenamiento Escritorio espejo de cuerpo entero. Colores pastel y blanco. Le gusta el malva.
Cuarto de lavado:
Muy pequeño para lavadora y secadora cerca de la zona de noche y del baño principal. Puede contener también los productos y útiles de limpieza.
Partiendo de los requerimientos del cliente, así como también de sus gustos y preferencias se realizó una distribución arquitectónica que responde al usuario


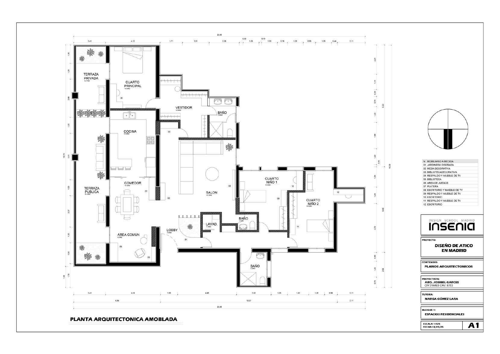
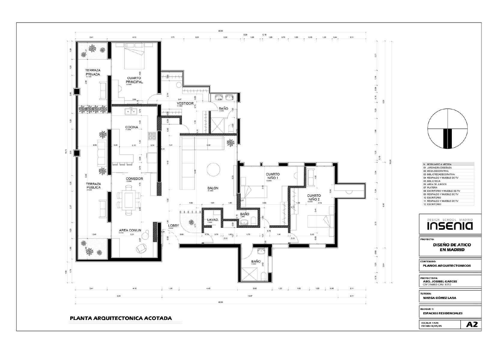
Tal como se observa contamos con un área de lobby tipo núcleo de distribución, que segmenta las áreas entre noche y día, ubicando hacia la derecha las habitaciones de los infantes y hacia la izquierda la sala, comedor y cocina para posteriormente toparse con la habitación principal yuxtapuesta en paralelo hacia las áreas de apoyo privadas.






















































































FORMACION:
2004 – 2017 U.E Colegio Adventista Maranatha
2017 – 2022 Universidad José Antonio Páez
2024- 2025 Insenia Design School Madrid (Actualidad)
PROYECTOS REALIZADOS:
·Diseño interior de Estudio de grabación para la cantante Venezolana Briella (2024)
·Diseño interior de vivienda en Miami, EEUU Habitaciones sala cocina comedor, lobby y oficina (2024)
·Diseño interior de tienda de ropa Dressllany Shop, Barquisimeto. (2024)
·Diseño de iglesia y Centro de influencia en Mérida, Venezuela. (2024)
·Diseño interior de consultorio odontológico en Quito Ecuador para Odontolaser (2024)
·Diseño de paisajismo y arquitectónico de plaza Agua de vida para Instituto Universitario Adventista de Venezuela, ubicado en Nirgua, Edo Yaracuy (2025)
·Diseño arquitectónico e interiorismo del Centro de formación clínica pastoral en Nirgua Edo. Yaracuy para Instituto Universitario Adventista de Venezuela (2025)