

REVITALIZING DHARASUR
TEMPLE COMPLEX
PUNE HAAT DESIGN








![]()


REVITALIZING DHARASUR
TEMPLE COMPLEX
PUNE HAAT DESIGN
































































Subdivision of Land
Factual Data
Location : Dandekar pool , minicipal colony , pune.
Area : 40.059 sq.m.

Typology : Urban Design

This is urbn design project where we designed subdividion of yhe land which is mainly divided into four parts :
1. Bunglow
2. Twin bunglow


3. Row houses
4. Apartments



3D VIEWS
VIEW 3 VIEWS
































































































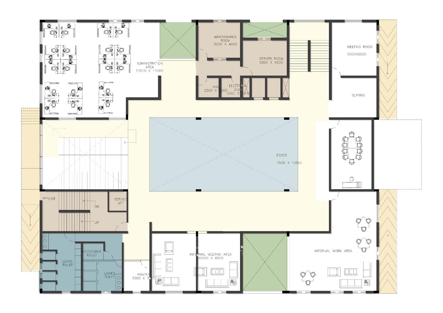
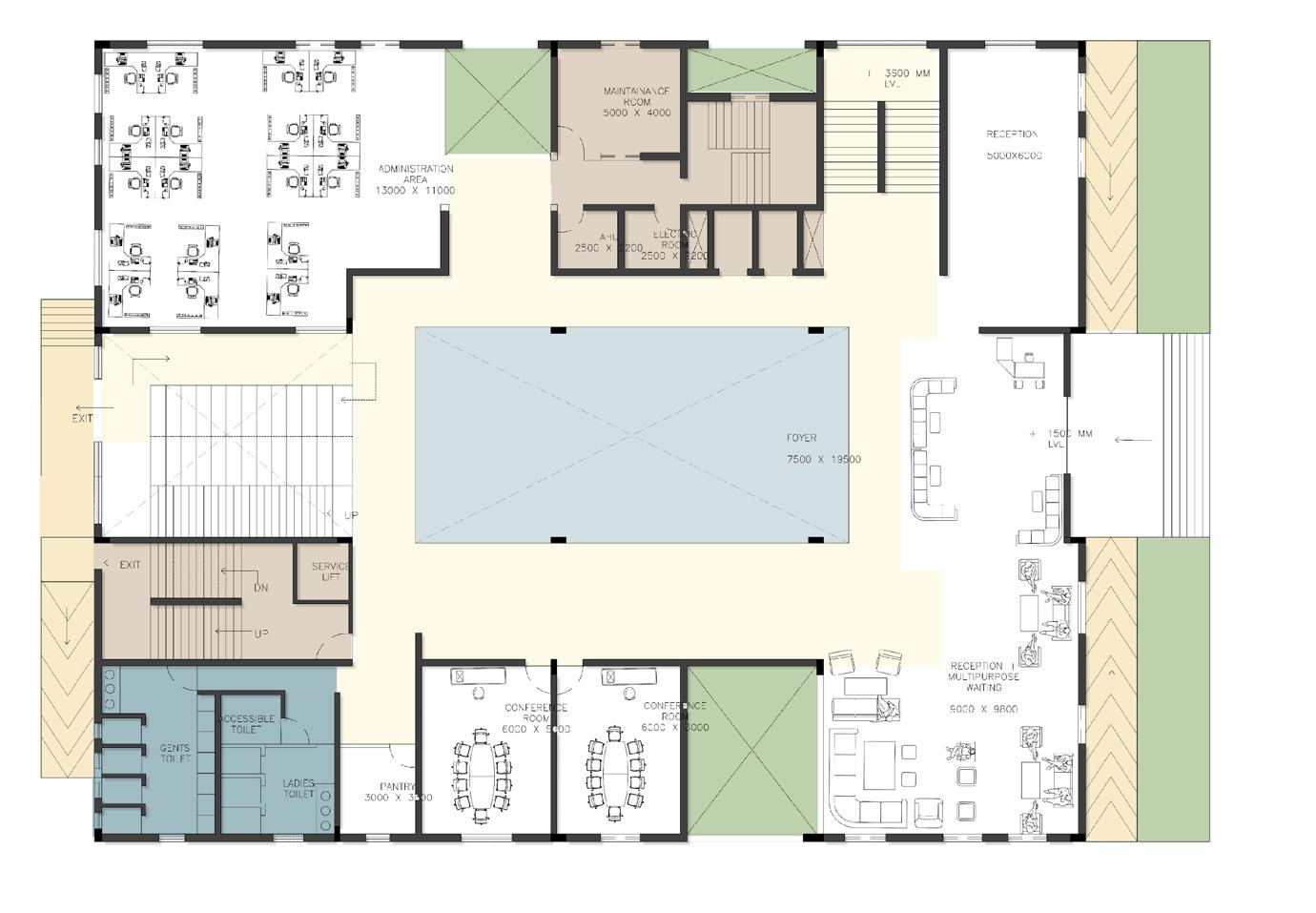
The Evolution : Cores Woekspaces

Connections
green pockets


Circulationn and Social Hub

Addding greeen pockets , courtyards primarily on E/W side along with cores
Carving out Atrium
similar colonnades walls are added on remaining facade tyo maintain the equality of building W
covering ythese courtyards and open spaces with jali walls , to take in air and cut the glare





































Client Name : Mr.Jeevan Jambhulkar
Project Name : Bungalow
Location : Pune, Maharashtra.












Renuka Bungalow , Prabhat Road
1. THIS DRAWING IS BASED ON INFORMATION RECEIVED FROM THE CLIENT.
2. FINAL DESIGNS MAY CHANGE AS PER LATEST ORIGINAL DOCUMENTS RECEIVED.
3. CHANGES IN D.C. RULES CIRCULARS DECLARED BY LOCAL AUTHORITY AS APPLICABLE.
4. REFER ONLY TO WRITTEN DIMENSION
5. IN CASE OF DISCREPANCY PLEASE VERIFY WITH ARCHITECT.


4.
3.





















1. THIS DRAWING IS BASED ON INFORMATION RECEIVED FROM THE CLIENT.
2. FINAL DESIGNS MAY CHANGE AS PER LATEST ORIGINAL DOCUMENTS RECEIVED.
3. CHANGES IN D.C. RULES CIRCULARS DECLARED BY LOCAL AUTHORITY AS APPLICABLE.
4. REFER ONLY TO WRITTEN DIMENSION
5. IN CASE OF DISCREPANCY PLEASE VERIFY WITH ARCHITECT.








































































3.
4.
5.

































5'7"X4'0''
BEDROOM 10'0"X11'0''

SIT-OUT 10'6"X5'


5'7"X4'0''


10'6"X11'0''





































BEDROOM 2 12'6"X11'0''

KAVDIKAR




































SIT-OUT






































ENTRANCE LOBBY 7'1"X3'11'' LIVING 10'6"X11'0'' KITCHEN + DINING 10'0"X11'2'' BEDROOM 1 10'0"X10'0''

KITCHEN + DINING 8'4"X11'2'' LIVING 10'6"X11'0'' KITCHEN + DINING 10'0"X11'2'' BEDROOM 1 10'0"X10'0'' BEDROOM 2 12'6"X11'0''



































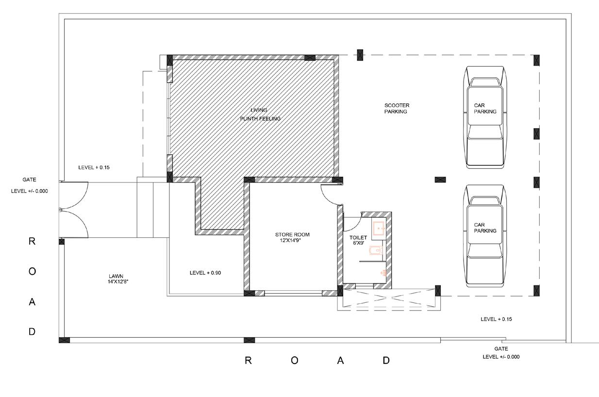
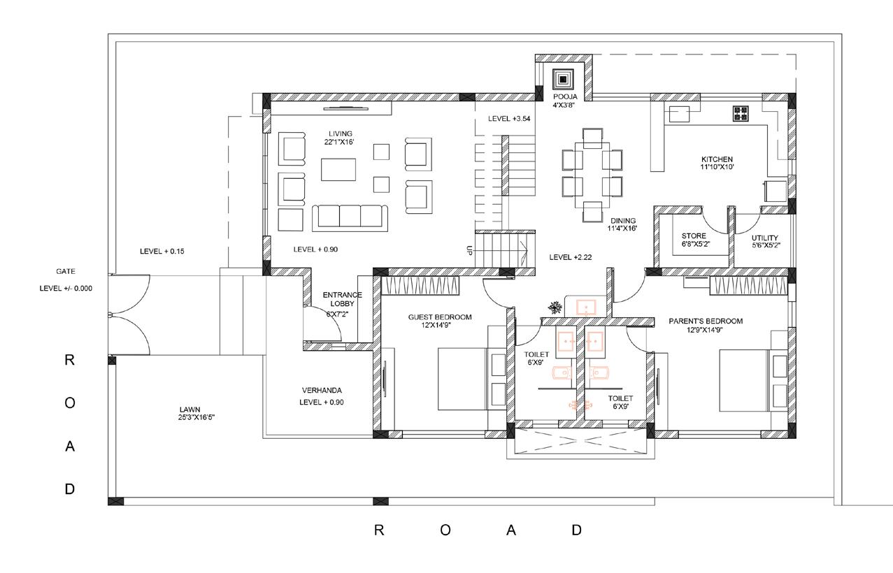
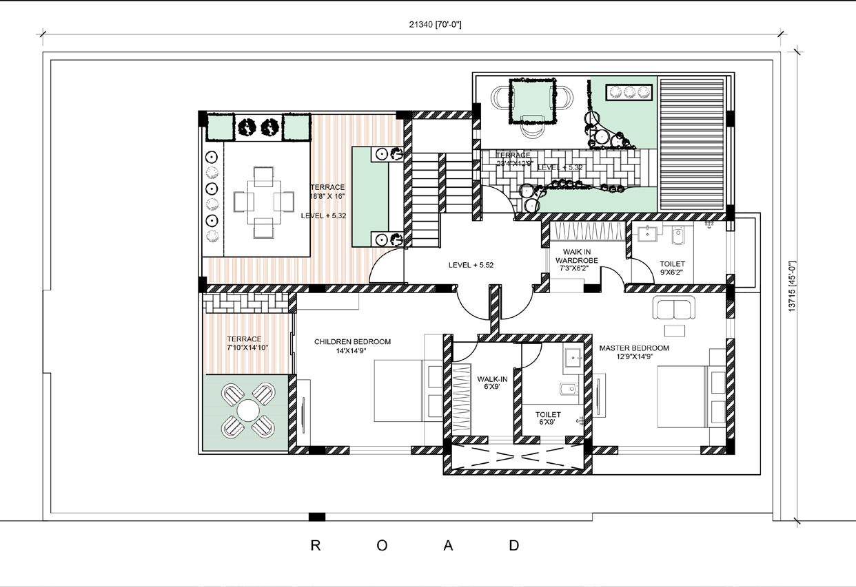
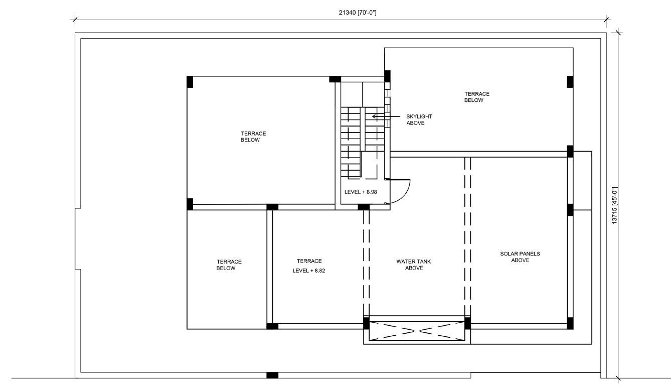
Client Name : Mr.Vivek Sharma
Project Name : Duplex Bungalow
Location : Kanpur , UP.





PROJECT 2
Client Name : Mr.Rajesh Jadhav
Project Name : ‘TULSI’ Restaurent
Location : Parbhani,Maharashta.
















Client Name : Mrs.Shilpa
Project Name : Bungalow
Location : Haridwar



THANK YOU
bnca.akanksha@gmail.com