

![]()



Soy un estudiante de la licenciatura de arquitectura en la Universidad la salle noroeste, donde siempre he puesto mi mayor esfuerzo, buscando siempre llenarme de conocimientos y superarme en todos los aspectos de mi vida.
Soy una persona proactiva, responsable y con facilidad para trabajar en equipo. Me considero una persona creativa con interés en seguir aprendiendo y desarrollarme profesionalmente.

+52 6471222005

Jose_galaz@outlook.com

Bacobampo, Etchojoa, Sonora, México.
Universidad la salle noroeste 2020 - actualmente
Carrera: Arquitectura
Semestre: 8°
Educacion media superior Plantel Cecyte, Bacobampo
2017 - 2020
Titulo técnico en Diseño Gráfico

ELIAZ CRUZ ARQUITECTOS
- Practicante en el area de diseño.
PYER CONSTRUCCIONES
- Practicante en el area de supervison de obras.
Empaquetamiento de bebidas en lata
- Ayudante en el manejo de maquinaria industrial.
- Encargado de limpieza.
- Acomodador de los productos empacados.
Sociedad Hermanos Galaz S.P.R de L.R
- Supervisión de empleados y maquinaria agricola.
- Manejo de maquinaria agricola.
PROGRAMAS
1

CASA MONOLITO
Proyecto academico - Casa habitación
2
CASA DE LA PRADERA
Proyecto academico- Casa habitación
3
MERCADO GASTRONOMICO NOROESTE
Proyecto academico - Comercio
4
RESTAURANTE “LA CASONA”
Proyecto academico - Comercio
La casa Monolito es un proyecto diseñado con sistemas bioclomaticos, buscando hacer un proyecto en el que se aprovechen al maximo el clima y el entorno con el fin de conseguir una situacion de confort térmico en su interior.





Están formados por redes de tuberías dispuestas en el subsuelo que se sirven de la inercia térmica para atemperar el aire que introducimos en la vivienda, reduciendo significativamente el salto térmico y por tanto la demanda energética.

En un espacio cerrado, el aire caliente tiende a situarse en la parte de arriba, y el frío en la de abajo. Si este espacio es amplio en altura, la diferencia de temperaturas entre la parte alta y la parte baja puede ser apreciable. Este fenómeno se denomina estratificación térmica. Dos habitaciones colocadas a diferentes alturas, pero comunicadas entre sí, participan de este fenómeno, y resultará en que la habitación alta esté siempre más cálida que la baja.







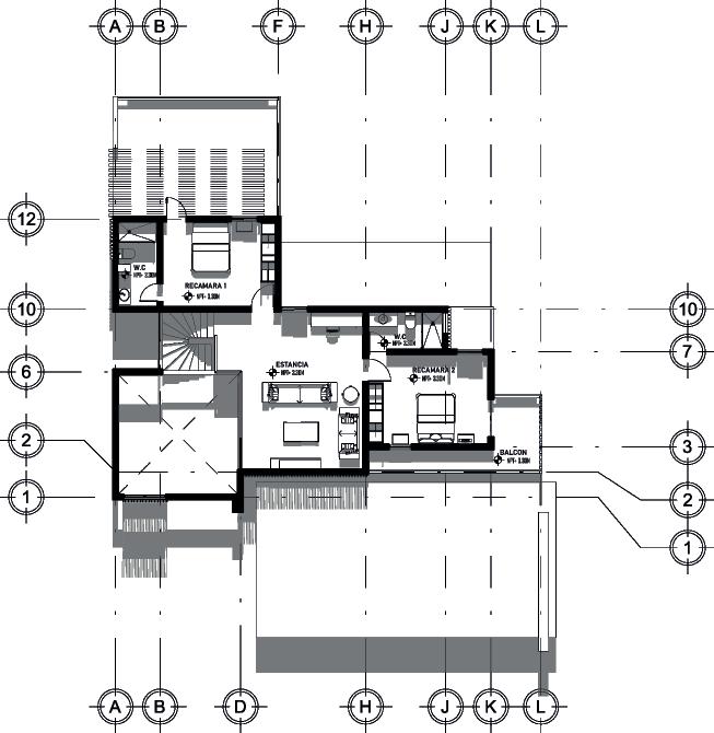
Diseño de casa habitación para el fraccionamiento campestre “Viñedos del Yaqui”.
Para este proyecto se se diseño una casa habitación de 2 plantas la cual cuenta con un terreno de 20m de frente por 30m de profundidad. Puesto que esta en un fraccionamiento estilo campestre donde hay una abundante vegetación se busco hacer un diseño y utilización de materiales que dieran sensaciones de un hogar integrado a la naturaleza con mucha ilumunacion natural y conectando los espacios interiores con los exteriores para generar sentimiento de tranquilidad y comodidad a los usuarios.














El objetivo es realizar un diseño arquitectonico, adaptando la edificación ya existente, por la Miguel Alemán, para poder brindarle un nuevo uso, en este caso será de un mercado gastronómico. por lo tanto, se le dára un uso comercial. El edificio a adaptar es de principios del siglo XX, po lo que tiene valor histórico y arquitectónico. Se buscará preservar y resaltar sus elementos originales como fahcadas, escaleras, herreria, etc.













El restaurante "La Casona" es un proyecto ubicado en Cócorit, Sonora, que tiene como objetivo preservar la arquitectura colonial característica de la región. Además, busca ofrecer un ambiente familiar y acogedor para los comensales que visiten este establecimiento.














