I N T R O
Actualmente curso el octavo semestre de la Licenciatura en Arquitectura en la Facultad del Hábitat de la Universidad Autónoma de San Luis Potosí. Este portafolio reúne una selección de proyectos académicos que reflejan mi crecimiento como diseñador y mi interés por generar propuestas funcionales, sensibles al contexto, con intención conceptual e innovadoras.
T a b l a d e C o n t e n i d o
04
05
Soy estudiante de 8º semestre de la carrera de Arquitectura en la Facultad del Hábitat de la UASLP. Me interesa mucho el diseño que conecta con la gente y el entorno. A lo largo de la carrera he trabajado en varios proyectos que me han ayudado a desarrollar habilidades tanto técnicas como creativas, desde el diseño de vivienda hasta propuestas de movilidad urbana.
Me considero una persona organizada, con iniciativa y con muchas ganas de seguir aprendiendo. Disfruto trabajar en equipo, resolver problemas y presentar mis ideas de forma clara y visual.
Aunque todavía no he trabajado formalmente en un despacho, he sido constante con mis estudios y eso me ha permitido obtener varios reconocimientos por mi desempeño académico. Actualmente estoy tomando un curso de Revit para fortalecer mi formación técnica y también curso una segunda carrera en línea en City University of Seattle relacionada con administración y negocios, ya que me interesa tener un perfil más completo y versátil.

S O B R E M I
C
José Fernando Álvarez Tostado Chanes
10 octubre 2002
San Luis Potosí, San Luis Potosí México
FORMACIÓN ACADÉMICA
Preparatoria
Tecnológico de Monterrey
2018 - 2021 I Promedio 8.2
Licenciatura de Arquitectura
Universidad Autónoma de San Luis Potosí
2021 - Actualidad I Promedio Hasta la Fecha 8 71
Bachelor in Arts of Management.
City University of Seattle
2024 - Actualidad I Modalidad en Línea
HABILIDADES TÉCNICAS
RECONOCIMIENTOS
Reconocimiento por haber obtenido el mejor promedio en Taller Síntesis
nivel IV
Reconocimiento por haber obtenido el mejor promedio en Taller Síntesis
nivel V
Reconocimiento por haber obtenido el mejor promedio en Taller Síntesis
nivel VI
Reconocimiento por haber obtenido el mejor promedio en Taller Síntesis
nivel VII
AutoCAD SketchUP Enscape
Revit (Curso en Progreso) Office. Lumion (Curso en Progreso
IDIOMAS
Español
Ingles B2
INFORMACIÓN ADICIONAL
Intercambio académico-cultural a Florencia, Italia (verano 2019): estancia de un mes para inmersión cultural, historia del arte y arquitectura italiana
Curso de Revit en Proceso






t o r r e d e D e p a r t a m e n t o s E s t a c i ó n M u l t i m o d a l Séptimo Semestre Séptimo Semestre
P A R Q U E B O T Á N I C O
“ E N D E M I A P O T O S Í N A ” S e x t o S e m e s t r e - C o n t e x t o

J A R D Í N
B O T Á N I C O
Proyecto desarrollado durante la primera unidad del sexto semestre de la carrera de Arquitectura
Consistió en el diseño de un jardín botánico especializado en plantas endémicas de San Luis Potosí, ubicado dentro del Parque Morales. El objetivo principal fue crear un espacio que, además de invitar a la convivencia y el esparcimiento, permitiera conocer y apreciar parte de la historia natural del estado.
El recorrido se diseñó para invitar a los visitantes a caminar por el espacio y detenerse a observar cada una de las especies vegetales. Entre los espacios que conforman el jardín se incluyen una cafetería, concebida como un lugar para trabajar, socializar o simplemente relajarse; una bodega para almacenamiento; un vivero destinado a la propagación y cuidado de plantas; sanitarios; y un anfiteatro al aire libre para la realización de eventos culturales, educativos o recreativos.
La distribución de estos elementos se planteó para complementar la experiencia del recorrido y ofrecer actividades que prolonguen la permanencia de los usuarios en el lugar.





La materialidad del proyecto refleja y celebra parte de la cultura de San Luis Potosí mediante la incorporación de materiales característicos del contexto local, como herrería negra, mosaico verde, arena, acero oxidado y hormigón modelado. Estos elementos se seleccionan por su valor estético, su conexión histórica y cultural, así como por su capacidad para generar un contraste visual que permite al conjunto destacar dentro de su entorno, manteniendo al mismo tiempo una relación armónica con el paisaje circundante.

La combinación de texturas y tonalidades se plantea para que el espacio resulte atractivo tanto para quienes recorren el interior del parque como para quienes lo observan desde el exterior, convirtiéndolo en un punto de encuentro y un referente visual para los habitantes de la zona.

La selección de la vegetación incorpora especies representativas de la región, priorizando aquellas que aportan identidad, resiliencia y valor ecológico al proyecto. Entre ellas se incluyen álamo blanco (Platanus mexicana), lantisco (Rhus pachyrrhachis), encino colorado (Quercus crassifolia), yuca (Yucca filifera) y nopal chamacuero (Opuntia tomentosa) La propuesta combina especies de follaje permanente, que mantienen su apariencia durante todo el año, con otras de carácter estacional, cuya transformación en color y textura permite que el parque evolucione visualmente con el paso de las estaciones.
Este planteamiento genera un equilibrio entre estabilidad y dinamismo, ofreciendo a los visitantes una experiencia sensorial en constante renovación, donde texturas, colores y sombras dialogan con el entorno y enriquecen la vivencia del espacio.




C A S A V I L L A O C U L T A S e x t o S e m e s t r e - C o n t e x t o

C A S A V I L L A
O C U L T A
El proyecto consiste en la construcción de una casa dentro de un fraccionamiento de golf en Los Cabos, Baja California Sur Uno de los principales retos es lograr que la vivienda se integre armónicamente con su entorno, evitando alterar o romper el contexto natural y arquitectónico en el que se ubica. El diseño busca respetar al máximo las características del lugar, manteniendo una relación equilibrada entre la construcción y el paisaje.

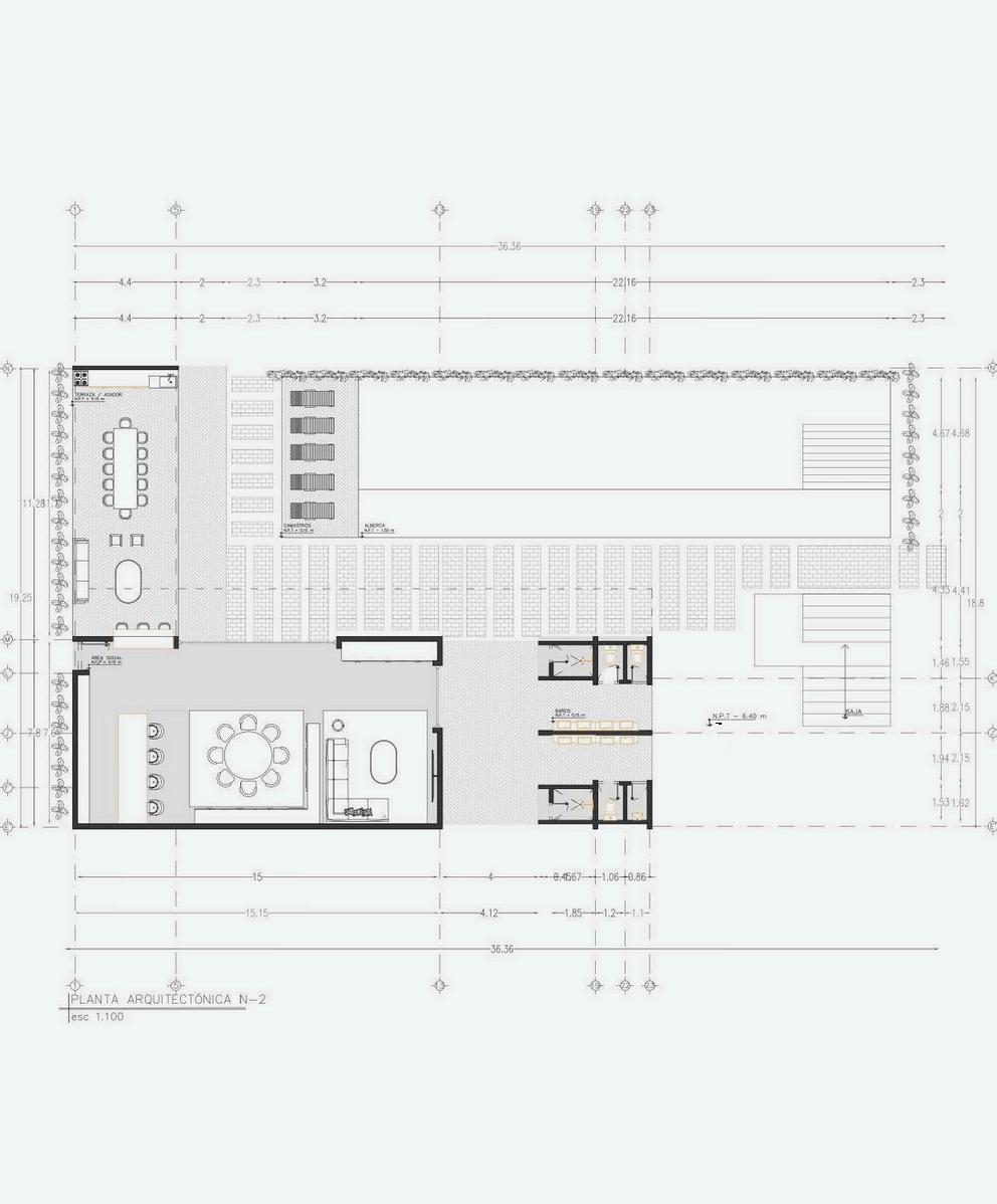
Uno de los principales retos del proyecto es trabajar con un terreno con una pendiente negativa de 15 metros, lo que implica diseñar la vivienda en armonía con la topografía para no interrumpir el contexto natural Una premisa fundamental es que todos los cuartos y áreas comunes cuenten con vista al mar Otra condición relevante consiste en que la casa pueda funcionar como un alojamiento tipo Airbnb, por lo que se plantea su desarrollo en sentido descendente
La planta principal integra las áreas comunes sala, cocina y comedor junto con un cuarto de visitas, de manera que, en caso de renta, solo se utilice este nivel, garantizando privacidad para el resto de la vivienda En el nivel N-2 se localizan los tres cuartos para los hijos, el dormitorio principal, una sala de televisión y una pequeña biblioteca
Un nivel más abajo, aproximadamente tres cuartos de nivel, se ubica un gimnasio, y finalmente, en el último nivel, se encuentra un bar con terraza, una pequeña cocineta, una alberca y el acceso directo a la playa La fachada principal se concibe como una casa de un solo piso, mientras que el resto del programa se desarrolla hacia abajo, con habitaciones parcialmente enterradas en el terreno, lo que favorece su integración con el entorno y mejora sus condiciones térmicas





En Villa Oculta, cada paso revela una nueva conexión con el mar y la naturaleza Desde su fachada discreta, la casa se integra al paisaje, ocultando una secuencia de espacios que descienden con el terreno.
Las áreas comunes se abren hacia amplias vistas del océano, mientras los dormitorios y zonas de recreación ofrecen privacidad y confort Con alberca, terraza y acceso directo a la playa, la experiencia fluye de la calma a la convivencia, siempre en armonía con el entorno






En lo que consta a cuanto a la estructura, se propuso que el proyecto tenga una cimentación corrida, con muros de carga y una losa aligerada.

La elección de una losa aligerada para el nivel -1 responde a la necesidad de reducir el peso estructural sobre la cubierta, facilitando así la incorporación de un sistema vegetal en la azotea Este tipo de losa permite soportar cargas adicionales de tierra y plantas sin comprometer la estabilidad del edificio Además, la losa aligerada contribuye al aislamiento térmico, generando un ambiente favorable para el crecimiento saludable de la vegetación De esta manera, se favorece la integración visual y ambiental de la casa con el contexto natural, logrando que la edificación se camufle y armonice con el paisaje circundante.



T O R R E D E D E P A R T A M E N T O S
T O R R E A N T A
El proyecto Torre Anta representa un desarrollo residencial ubicado en la colonia Lomas 1ra Sección, en San Luis Potosí La propuesta se centra en crear una torre que combine funcionalidad, confort y diseño contemporáneo, adaptándose a las necesidades actuales de vivienda urbana.
El edificio se proyecta con departamentos que ofrecen amplios espacios y una óptima iluminación natural, además de integrar áreas comunes que potencian la calidad de vida de sus residentes y fomentan la interacción social.


El terreno destinado para la Torre Anta cuenta con una superficie de 392 27 m² y presenta una topografía relativamente plana con ligeras irregularidades que condicionan la organización del programa arquitectónico
Su ubicación en la colonia Lomas 1ra Sección permite un fácil acceso a servicios urbanos, áreas verdes y vías principales de comunicación El análisis del entorno considera aspectos climáticos, como la orientación solar y los vientos predominantes, para optimizar la ventilación natural y el confort térmico en el interior de los departamentos.

El diseño se ajusta estrictamente a la normativa vigente para la zona, incluyendo el uso de suelo permitido, que es habitacional de mediana densidad. Se respetan los coeficientes de ocupación del suelo (COS), uso de suelo (CUS) y coeficiente de absorción de suelo (CAS) establecidos por la autoridad local

/ Lobby
La propuesta arquitectónica se basa en maximizar la calidad de vida de los habitantes mediante una distribución eficiente de los espacios y la integración de tipologías que atienden distintos estilos de vida
La organización del programa promueve la privacidad en las zonas íntimas y la interacción en las áreas comunes.







C

TIPOLOGÍA E


A

El proyecto incluye cinco tipologías de departamentos y un penthouse, diseñados para cubrir distintas necesidades habitacionales y estilos de vida Las tipologías varían en tamaño y distribución, desde espacios compactos tipo loft ideales para personas solas o parejas, hasta unidades más amplias pensadas para familias, con múltiples habitaciones y áreas de convivencia
Cada diseño prioriza la iluminación natural y la ventilación cruzada, así como la optimización del espacio para maximizar confort y funcionalidad. El penthouse, ubicado en el nivel superior, ofrece mayores dimensiones y acabados premium, junto con terrazas privadas que potencian la experiencia de vida La diversidad de tipologías responde a la intención de atraer a diferentes usuarios y garantizar que el edificio ofrezca opciones versátiles sin perder coherencia en el diseño general. TIPOLOGÍA





N O D O 5 7



N O D O 5 7
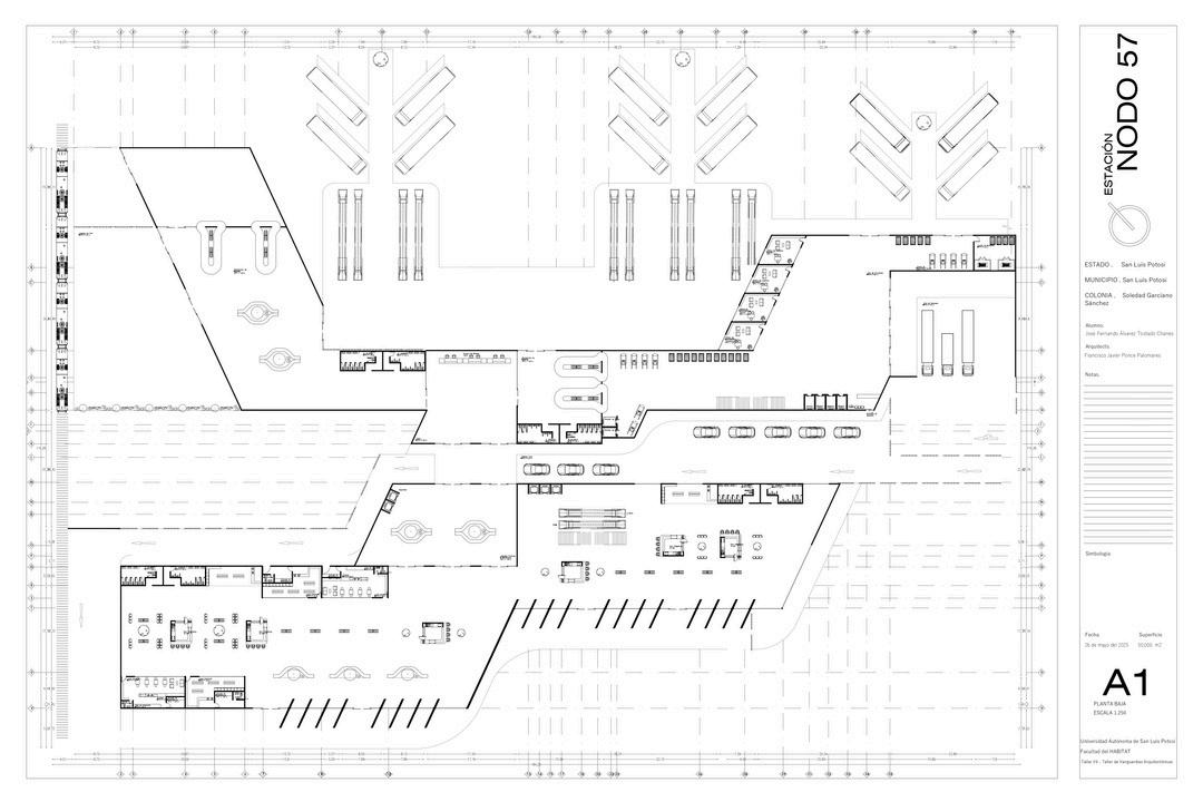
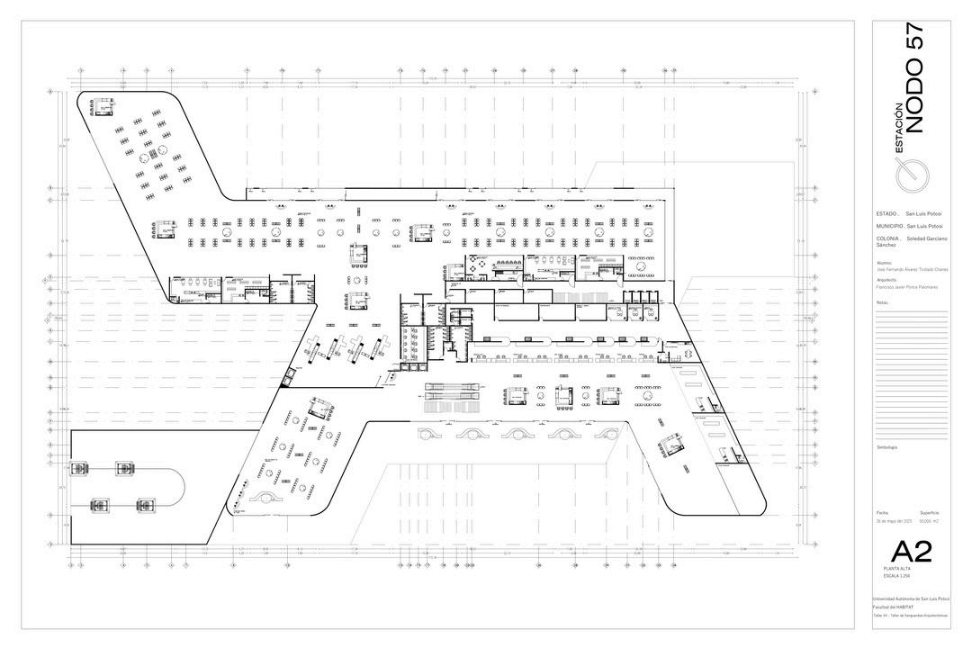
La Estación Nodo 57 surge como respuesta a la creciente necesidad de un sistema de transferencia multimodal eficiente en San Luis Potosí, vinculado a la Carretera 57 y al Aeropuerto Internacional Ponciano Arriaga.
El diseño integra movilidad terrestre, ferroviaria y aérea, buscando optimizar los tiempos de traslado y reducir la saturación vial. Se prioriza la separación de flujos entre usuarios y trabajadores para garantizar seguridad, eficiencia y confort
El lenguaje arquitectónico combina el brutalismo contemporáneo con elementos cálidos, empleando materiales como acero oxidado, concreto pulido, madera de encino y piedra blanca
La composición busca transmitir solidez y modernidad, pero también generar un ambiente acogedor que humanice la escala del transporte masivo El uso de cubiertas amplias y espacios diáfanos asegura iluminación natural y ventilación eficiente.
















La estación está organizada en niveles y áreas diferenciadas para cada tipología de transporte, lo que evita cruces innecesarios entre usuarios y garantiza un flujo ordenado



ANEXOS



