PORTAFOLIO de
arquitectura

![]()

nolasco.161000@gmail.com
+51 999904516
Lima, Perú
Un bachiller de la carrera de arquitectura y diseño de interiores, con experiencia en el diseño y elaboración de planimetrías y modelados 3D enfocados en el diseño residencial, elaboración de planos residenciales, remodelación de ambientes y seguimiento de tramites m unicipales.
Asistente de Arquitectura
Set. 2024 – Oct. 2024
Modelado 3D de proyectos de arquitectura utilizando el software Revit, tanto para en arquitectura y MEP.
Elaboracion de planos de espacialidades, instalaciones sanitarias e instalaciones eléctricas.
Modelado 3d de familias para el software Revit.
Asistente de arquitectura
Mar,2023 – Set. 2023
Colaboración en la elaboración de propuestas de diseño y presentaciones a clientes
Apoyo en la gestión de proyectos y seguimiento de cronogramas y plazos.
Elaboración de planos y documentación técnica para la obtención de permisos
Preparación de documentación de proyectos como planos y memorias
Colaboración en la preparación de informes de avance y seguimiento de proyectos.
Asesoramiento al cliente para ajustar a sus necesidades las características de la construcción
Practicante de Arquitectura
Dic. 2022 – Feb. 2023
Modelado 3D de proyectos de construcción para remodelaciones
Colaboración en la elaboración de modelos 3D para presentaciones y elecciones de materiales
Creación de bocetos y planos utilizando el software SketchUp.
UNIVERSIDAD PRIVADA DEL NORTE
Bachiller en arquitectura 2018-2023
DIPLOMADO EN EL SOFTWARE CHIEF ARCHITECT
EduMCD Institute Abril- Agosto, 2024
COMPETENCIAS
HABILIDADES PERSONALES
Trabajo en equipo
Proactividad
Capacidad de tomar decisiones
Trabajo en equipo
SOFTWARE
INTERMEDIO
AutoDesk AutoCAD
BASICO
Adobe Illustrator
Adobe InDesing
Lumion
AutoDesk Revit (Arquitectura) AutoDesk Revit (MEP)
Adobe Photoshop SketchUp
Chief Architect
IDIOMAS
Español Nativo Ingles Intermedio
Italiano Básico
Centro educativo básico especial
Proyectos propios 03 02 04
Edificio hibrido
Proyectos de interiores

Este centro educativo fue diseñado para cubrir las necesidades de una población con síndrome de dow dentro del distrito de Ate, Lima. Este proyecto se realizó dentro de una superficie de 14.000 m² .
Este proyecto fue realizado como propuesta de proyecto final de carrea y de tesis


y
se



Como condicionante de diseño se tuvo en cuenta una variable enfocada en la arquitectura sensorial, donde se emplearon colores, texturas y un juego con las sombras para así generar estas sensaciones que estimulen los sentidos.




En el aspecto formal, se tomó en cuenta en entorno y la normativa peruana para poder efectuar un diseño acorde la misma, a la par se tuvo en cuenta el juego con las alturas y cubiertas para jerarquizar los espacios.




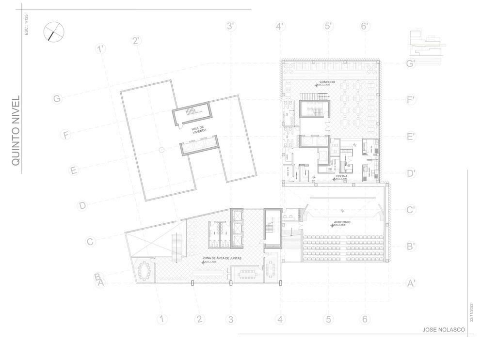
Este Edificio Hibrido fue diseñado para cubrir las necesidades de una población especifica ubicada en el centro de lima, el terreno se encuentra en la Av. Garcilaso de la vega o también llamada Av. Wilson, dentro del edificio se encuentran tipologías como vivienda, oficinas, restaurante, museo, centro de convenciones y teatro.





En estos cortes hacemos notar la intención de generar espacialidad e interconectar ciertos espacios visualmente, ademas dándole continuidad en la circulación tanto vertical como horizontal, a su ves generando volados y terrazas.

En estas elevaciones se puede notar la intención de que el volumen tenga una buena transición entre el hotel de 14 pisos y uno bajo de 3 pisos.




Se generaron espacios de convivencia en las terrazas que tienen tanto vistas hacia el interior como hacia al exterior del proyecto, a su vez se jerarquizaron los ingresos, tanto el principal como el de vivienda..



Estos pro unos de estancia mis prac realizaro residenc comercia


Este diseño es una propuesta de diseño para una remodelación y propuesta de sala comedor, un bar y un pasillo que uniría las zonas social e intima de manera interna




Este diseño es una propuesta de diseño para un restaurante-cafetería de dos niveles con una temática deportiva.




Este diseño es una propuesta de diseño para una sala-comedorcocina de un departamento de 160m²



Dis
En e algu
me t inde clien nece desd com



Esta propuesta responde al diseño de un cuarto para un niño de 6 años, entre algunos requerimientos del cliente fueron los de una temática de el juego Roblox y el color verde, ademas de almacenamiento para sus cosas.




Esta propuesta responde al diseño de un espacio comercial en el distrito de san miguel, donde se tuvo que reorganizar los productos y darle mas dinamismo a la circulación que se tenia, logrando que sea mas directa.