Portfolio Jorien Cousijn

Page 1

Portfolio Jorien Cousijn

Jorien Cousijn +31 6 470 718 18 jorien.cousijn@gmail.com Essenburgsingel 72B 3022 EC, Rotterdam

Professioneel

Odeon, Rotterdam

IJdoorn, Amsterdam

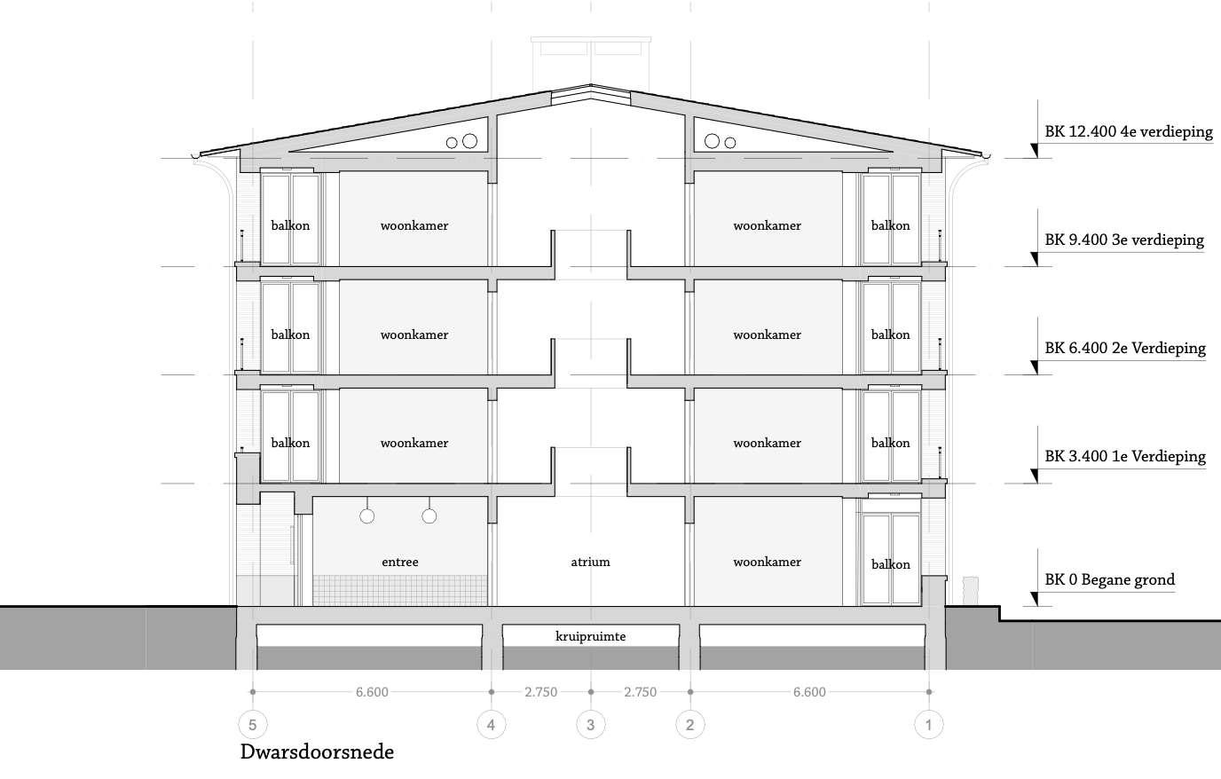
Woongebouwen D4 & E4, Leidsche Rijn

Woonark, Amsterdam

Vakantiehuis, Bacalar (MX)

Academisch

De hedendaagse Khan, Istanboel (TR)

Overig

Uitkijktoren Garniga Terme (IT)

ODEON

Happel Cornelisse Verhoeven Architecten (2021-2022)

Odeon betreft een woongebouw voor wooncorporatie Woonstad in het Oude Westen in Rotterdam. De Gouvernestraat is een bekende straat in Rotterdam, mede door het voormalige zalencomplex Odeon en filmhuis Kino, maar ook vanwege de centrale ligging en het tegendraadse karakter. Dat vraagt om een gebouw met een karakter wat daarbij past. Aan de achterkant van het kavel bevindt zich het verborgen Wijkpark in West. De Gemeente wil de positie van dit park versterken en ziet daar een rol voor het nieuwe woongebouw Odeon in.

Het alzijdige ontwerp kenmerkt zich door verbijzonderingen in de gevelstenen: wisselende kleuren, terug-springende hoeken, doorlopende penanten en ramen die omkaderd worden door een spel van diepte en kleur. De langsgevel reageert qua kleur en afmeting op de straat, de kopgevels doorsnijden dit patroon juist, letterlijk en figuurlijk.

Het gebouw heeft zes lagen, waarvan de laatste twee met een setback verder van de straat liggen en

opgetopt is door een tweetal kleine, eigenzinnige torentjes. Alle woningen, behalve die op de begane grond aan de straat, worden ontsloten door een middengang. Deze middengang wordt met daglicht verlicht door een viertal grote lichtschachten die de verschillende verdiepingen van boven naar beneden verbinden.

Het ontwerp is een forse woonmachine met 113 woningen (sociaal en vrije sector) van verschillende grootte. Op de begane grond bevinden zich naast woonunits een gemeenschappelijke woonkamer, een kinderdagvervblijf, een verhuurbare kantoorruimte en in de ‘buik’ van het blok zijn een tweetal grote fietsenstallingen voor de bewoners voorzien. Het project heeft een omvang van bijna 12.000 m2 BVO.

Hoewel de massa en omvang van het project vrij massaal is, hebben we in het ontwerp getracht een verfijning aan te brengen: details in het metselwerk, een vriendelijke plint, en aangename buitenruimtes voor alle appartementen.

Ik ben bij dit project betrokken geweest in de VO, DO en de vergunningsaanvraag.

De situatie tussen de Gouvernestraat en het Wijkpark
-Situatietekening 000 DO SI T CONCEPT N -
Het ontwerp voor een brede stoep met Delftse stoep
De hoek waar het motief omslaat in een andere kleur Gele kopgevel met een assymetrisch gezicht

-

-

-

-

--

-

-

-

-

-

-

-

-

-- -

- -

-

h h V W & H W P k W A W A H 05 H 03 D H 02 H 04 H 02 H 03 H 04 H 06 H 07 H 06 H 07 V 03 V 03 V 05 V 05 V 13 V 13 V 17 D k k d b p p 7 0 1 J K 7 6 5 4 3 2 N2 M H G D C 1 7 7 0 0 6 6 0 5 5 5 6 0 6 3 0 4 6 5 2 0 1 2 5 2 5 0 2 u nmuur k k k M O N1 B A C1 D 1 D UM -S V O WF Plattegronden tweed verdieping 102-103 DO PLG O A C A H K 9 2 B R CONCEPT
e v o O A- g
W
h N N 1
g
W
N 2
E
8
N N 2
N N 6
k N 2
h
b B
d h B 1 B
d d
d
E
P
b d
d N 3 1 D H 1 DE H 18 A A A d A A 3 A 4 A A 6 h o e c k k h o k k 0 J 7 5 4 3 2 N M H G D C 1 O A C 3 0 4 5 2 0 1 5 2 3 0 5 5 7 5 7 0 3 0 0 0 2 0 0 9 5 2 4 0 0 2 0 0 2 5 2 5 6 0 5 6 1 2 0 0 0 4 0 5 1 0 5
-
-
--
-
D A T V -N R C U V L angsdoorsnede CC 202 DO DR S RM W D O WA 0 d CONCEPT CR - H h B 1- W d 1 - d d K MO WA- d N - N N- W - N N h - N 6 -- E - 1- N N- p - D B ff - P --W- - C-- HW WA W WA g N B C C D1 D2 E F G H K N N M2 M1 O P 6 5 p 1 p p p p 7 p p O R H G E -y A ON U E Gevelaanzicht Gouvern 300 DO GE O MA W R O W O 2 B R 0 8 CONCEPT M HN - b B - g - W - OM W- h N N 1 - K b N 5- W - N 2 - N 1 -- N N 2- N N- k N 2 - W N 7 5V- d h B 1 - d d -VK -W d - h d - - - p g- W W D W D fi W D d N J K N M O P A B C D F G H C D N M 0 B g n o d 3 6 0 V d e n 6 6 0 V d 9 6 0 V d e n 1 6 4 p g 6 5 e p g 1 6 D k 0 8 3 2 0 3 0 2 0 5 1 0 0 1 1 0 0 0 5 1 0 0 1 0 1 1 0 0 5 1 0 5 8 6 0 4 6 1 0 0 6 5 1 0 2 4 0 8 1 4 1 1 8 5 1 0 2 4 0 4 1 1 8 0 4 1 6 5 1 0 5 0 1 0 0 6 V 01 V 04 V 10 V 08+V 09 V 02 V 10 V 11+V 12 V 02 V 11+V 12 H 04 V 17 V 05 V 05 V 13 V 13 H 04 H 04 H 03 H 04 H 03 H 05 H 02 H 02 b d b d h g k h O T Dwarsdoorsnede BB 201 DO DR S 3 O R n o -d d p p p p 4 2 7 6 3 0 2 6 3 0 0 3 6 0 9 V 14 V 15 V 15 V 16 H 02 H 01 H 09 h b h d

IJDOORN

Happel Cornelisse Verhoeven Architecten (2021-2022)

De locatie van de voormalige IJdoornschool in Amsterdam-Noord komt vrij voor sociale woningen van woningbouwcorporatie Ymere. In plaats van het gesloten blok, hebben we een vijftal blokken die de rooilijn rondom volgen met een gezamenlijk, doorwaadbaar hof ertussenin ontworpen. Deze vrijstaande blokken met zadeldaken ogen als grote woonhuizen. De blokken vormen door hun verschillend aantal bouwlagen samen een opklimmend silhouet dat medieert tussen het kleinschalige tuindorp Nieuwendam en de hoogbouw op het Waterlandplein. Ook de architectuur zoekt naar bemiddeling tussen deze twee werelden: zadeldaken en bakstenen details refereren naar de Amsterdamse School terwijl de grote raampartijen en overhoekse balkons aansluiten bij het karakter van de moderne woontorens.

Er zijn drie woningtypes, voor verschillende doelgroepen: 89 ouderenwoningen (geclusterd wonen), 50 compacte woningen (voor jongere eenpersoonshuishoudens) en 2 rolstoelwoningen. Behalve wonen is er ook een grote gezamenlijke fietsenstalling, wasmachine-ruimte en gemeenschappelijke ruimte met klein zorgkantoor. Deze bevinden zich op de begane grond van het afwijkende (en hoogste) blok met de compacte woningen. Het project omvat zo’n 12.000 m2 BVO.

Ik heb als ontwerper aan dit project gewerkt in de SO, VO en DO-fase. Behalve ontwerpwerk stond ik in nauw contact met de opdrachtgever, projectmanager vanuit de aannemende partij en overige adviseurs en woonde ik alle vergaderingen bij. Een groot deel van dit traject bestond uit het financieel haalbaar maken van dit plan. Dit project is inmiddels in de uitwerkende fase, de bouw ervan staat geplanned voor maart 2024.

Massa van de blokken als opklimmend silhouet. Render vanaf het de Volendammerweg
/ 30 Situatie 10
Locatie tussen tuindorp en waterlansplein Render vanuit een van de entreeportieken richting de gemeenschappelijke tuin

Begane grond, inclusief de landschappelijke inrichting. Het afwijkende blok aan de noordkant huisvest gemeenschappelijke functies.

Plattegronden van de woningtypes: ouderenwoningen (1a en 1b, oranje), compacte woningen (2, geel) en rolstoelwoningen (blauw)

/ 30 Begane grond 15
/ 30 Miva 34 30 Woningtype 2 33 / 30 Woningtype 1B 32 / 30 Woningtype 1A 22
Atrium, een ruimte voor ontmoeting
Gevels blokken C en D. Blokken B en E hebben een afwijkend aantal verdiepingen, blok A heeft een andere ontsluitingstypologie. Perspectief Volendammerweg Het opklimmende silhouet van de blokken, gezien vanuit het zuiden. De blokken omzomen een collectieve binnentuin.

WOONGEBOUWEN D4 & E4

DOK Architecten (2020-2021)

Team:

Deze twee woongebouwen zijn deel van een ensemble van zes gebouwen in twee blokken met een gedeelde parkeergarage in het centrum van de Utrechtse nieuwbouwwijk Leidsche Rijn.

D4.1 betreft een gebouw van 8 lagen tegenover het station met kantoorruimtes en 78 appartementen rondom een gedeeld hof. Het gebouw heeft een kenmerkend onderscheid tussen de plint, het lijf en een bekroning. De plint (BG+1e verdieping) bevat kantoorruimtes (2500m2 BVO) en de overige lagen (2e7e verdieping) de appartementen (65-100m2 BVO).

E4.3 is een 13-laagse woontoren en geldt als een accent in het gebied. De vijf appartementen (65-100m2 BVO) per laag zijn de herkennen aan de ronde balkons die als schubben het gebouw in steken. De toren heeft een karakteristieke gevel met sprekend metselwerk, diepe negge’s en subtiele belijningen.

Het schetsontwerp voor de twee blokken, opgesteld door een andere partij, kwam voort uit het stedenbouwkundige kader van de supervisor van het gebied. DOK Architecten is met de uitgangspunten uit deze visie verder gegaan om tot een voorontwerp en definitief ontwerp te komen. Het definitieve ontwerp (DO+) is inmiddels uitgewerkt (ook in BIM) en gereed om in te dienen.

Ik ben vanaf het begin van de VO-fase betrokken geweest als ontwerper aan beide gebouwen. Samen met een compact, wisselend team van collega’s heb ik gewerkt aan de conceptvorming, studie en de uitwerking van plattegronden, gevels, doorsneden, gevelfragementen en details. Ik heb hiervoor de ontwerpvergaderingen met opdrachtgever, supervisor, adviseurs en overige architecten bijgewoond.

Daarnaast heb ik geregeld met de installatieadviseur, constructeur, architecten van de buurgebouwen, en de landschapsarchitect contact gehad om het ontwerp af te stemmen. Dit gebeurde veelal via het uitwisselen van BIM-modellen.

Dit project is inmiddels vergund maar ligt voorlopig stil vanuit de opdrachtgever.

Gebouw E4.3

Projectlocaties (in rood) in Leidsche Rijn Centrum

Stedenbouwkundig kader (groene gebouwen door DOK)

Gebouw D4.1
E4 D4
21 22 23 24 25 26 27 28 1 2 3 4 5 6 7 8 9 10 11 12 13 41 51 61 71 81 91 02 12 22 32 42 52 62 1 2 3 1 2 3 4 5 6 7 8 9 10 11 12 13 14 15 16 17 18 19 20 21 22 9 0 1 2 3 1 2 3 4 5 6 7 8 D4-15 D4-P D4-Qb D4-R D4-S D4-13 D4-11 D4-9 MKwarm MK D4-T 2 4 8 5 2 5 0 2 7 0 0 2 5 0 2 1 0 0 1 0 0 1 2 5 0 1 4 2 0 1 4 5 250 6 114 2050 500 4000 205 2570 415 3685 350 3001 415 350 1839 700 462 935 462 6900 239 1015 2475 600 415 2395 220 6875 6900 220 430 1034 620 4791 3050 800 1500 800 750 750 800 1500 800 694 6 900 3 450 4 321 1 883 800 750 750 800 1 500 800 1 500 800 750 750 800 1 500 400 400 1 500 800 875 746 5 429 2 2 0 7 9 9 0 8 1 0 0 2 2 0 1 2 3 1 2 5 3 4 8 0 0 1 5 0 0 8 0 0 1 1 2 5 3 7 5 8 0 0 1 5 0 0 8 0 0 1 5 0 0 8 0 0 2 3 2 5 +6 530 +7 +7 020 +7 020 +7 020 +6 530 +7 020 +6 530 +6 530 A A C cho nmaa ka S S Ontwerp hoftu n c andschapsarchi ec BVO kantoren BVO 736 28 m2 BVO gemeenschappe i ke binnenr BVO: 110 50 m2 GO gemeenschappel jke b nnenru GO 86 09 m2 wa w BWL D4-3 kantoorunit 1 GO: 622 87 m2 Wenenpromenade B r a t s a v a p r o m e n a d e L j u b l a n a p r o m e n a d e Centrumboulevard Par jsboulevard Vaduzd jk D4 1 D4 2 D4 3 E4 1 E4 2 E4 3 WM WD WTW VV h Symbo en En e Pe maa B andve ghe d 30 m n wbdb 60 bdb Ze u end n t a es W g u m e se ve ng V u m e se ve ng Op e p aa s wasmach ne + a d oge Hw Sc ach Me e k s B u v o r ppe v ak V b p k Dagmaa Geb u kso pe v k Cen e v o z e nge kas MK BVO VVO DGM GO CVZ Hem wa e a v e HWA Ge u dwe end b nnen oz n + de r g A ko t ng n D oge b us e d n V u h w g Rookme de B andb uss Noodv c ng 0 m wb bo 0 b bo 0 m wb bo S eu e u s E a besche m e v ch ou Be che mde v uch o e EBV BV S V uch d u zon e s u e o d p p B an we r BWL B and angh spe B andm dpa ee FL BM F h BM opdrach geve arch ect pro ec a ch tec Liesbeth v Pieter Liev Leidsche R
H10 V03b V01
21 22 23 24 25 26 27 28 1 2 3 4 5 6 7 8 9 10 11 12 13 41 51 61 71 81 91 02 12 22 32 42 52 62 1 2 3 1 2 3 4 5 6 7 8 9 10 11 12 13 14 15 16 17 18 19 20 21 22 9 0 1 2 3 1 2 3 4 5 6 7 8 D4-15 D4-P D4-Qb D4-R D4-S D4-13 D4-11 D4-9 MKwarm MK D4-T 2 4 8 5 2 5 0 2 7 0 0 2 5 0 2 1 0 0 1 0 0 1 2 5 0 1 4 2 0 1 4 5 250 6 114 2050 500 4000 205 2570 415 3685 350 3001 415 350 1839 700 462 935 462 6900 239 1015 2475 600 415 2395 220 6875 6900 220 430 1034 620 4791 3050 800 1500 800 750 750 800 1500 800 694 6 900 3 450 4 321 1 883 800 750 750 800 1 500 800 1 500 800 750 750 800 1 500 400 400 1 500 800 875 746 5 429 2 2 0 7 9 9 0 8 1 0 0 2 2 0 1 2 3 1 2 5 3 4 8 0 0 1 5 0 0 8 0 0 1 1 2 5 3 7 5 8 0 0 1 5 0 0 8 0 0 1 5 0 0 8 0 0 2 3 2 5 +6 530 +7 +7 020 +7 020 +7 020 +6 530 +7 020 +6 530 +6 530 A A C cho nmaa ka S S Ontwerp hoftu n c andschapsarchi ec BVO kantoren BVO 736 28 m2 BVO gemeenschappe i ke binnenr BVO: 110 50 m2 GO gemeenschappel jke b nnenru GO 86 09 m2 wa w BWL D4-3 kantoorunit 1 GO: 622 87 m2 Wenenpromenade B r a t s a v a p r o m e n a d e L j u b l a n a p r o m e n a d e Centrumboulevard Par jsboulevard Vaduzd jk D4 1 D4 2 D4 3 E4 1 E4 2 E4 3 WM WD WTW VV h Symbo en En e Pe maa B andve ghe d 30 m n wbdb 60 bdb Ze u end n t a es W g u m e se ve ng V u m e se ve ng Op e p aa s wasmach ne + a d oge Hw Sc ach Me e k s B u v o r ppe v ak V b p k Dagmaa Geb u kso pe v k Cen e v o z e nge kas MK BVO VVO DGM GO CVZ Hem wa e a v e HWA Ge u dwe end b nnen oz n + de r g A ko t ng n D oge b us e d n V u h w g Rookme de B andb uss Noodv c ng 0 m wb bo 0 b bo 0 m wb bo S eu e u s E a besche m e v ch ou Be che mde v uch o e EBV BV S V uch d u zon e s u e o d p p B an we r BWL B and angh spe B andm dpa ee FL BM F h BM opdrach geve arch ect pro ec a ch tec Liesbeth v Pieter Liev Leidsche R

WOONARK

Project als zelfstandig ontwerper (2020-2022)

Voor een rustige locatie aan het Noordhollandsch Kanaal in Amsterdam wenste deze particuliere opdrachtgever een woonark om zelf te gaan wonen, werken en gedeeltelijk te verhuren. Hij wilde de ark flexibel kunnen gebruiken voor zijn wisselende behoeftes nu en in de toekomst. Bij het ontwerp moest ik ook rekening houden met het budget, de afmeting van de ligplaats, de beperkingen van de arkenbouwer en het transport, en de regelgeving van de Amsterdamse welstand op het water.

Samen met de opdrachtgever heb ik aan de tekentafel gezeten om zijn wensen en ideeën in schetsen vorm te geven en de benodigde ruimte en zijn wens hoe hij het wil gebruiken vast te stellen. Door deze gesprekken heb ik een PVE kunnen opstellen en de specifieke wensen van de opdrachtgever inzichtelijk gemaakt. Zo had hij als zangcoach een specifieke studioruimte nodig, waar hij niet alleen zijn studenten kan ontvangen, maar ook kan gebruiken om muziek te maken. Deze ruimte vereiste een loskoppeling van de woning, in routing en in geluidsoverdracht, maar moest ook te verbinden zijn. Verder wenste hij een los toegankelijk appartementje in de woonark om te kunnen verhuren als AirBnB. Hierbij speelde privacy en los functioneren van de verschillende delen ook een rol.

De ark heeft één voordeur naar een portaal met een gardarobe, meterkast, toilet en een trap naar beneden. Onderaan deze trap is links de werkruimte (mediakamer) en rechts het los verhuurbare appartement. Het entreegebied wordt gedeeld door alle drie de functies (woning, verhuurbaar appartement, mediaruimte). Rechts van de entree is de afsluitbare deur naar de woning. Met de trap naar boven kom je in de grote, hoge woonkamer met open keuken. Deze lichte en geheel open ruimte is naar

het water gericht en geeft directe toegang tot het dakterras en een klein balkon. Vanaf de toegangsdeur van de woning met de trap naar beneden kom je bij de private woonfuncties, zoals slaapkamers en de badkamer. Rondom het entreeportaal is een kern op hoogte van de dijk waar de ark aan ligt. Daar komen alle installaties het gebouw binnen en lopen ze via de wanden aan de dijkkant naar de keukens en badkamers, die alle aansluitingen in die wand hebben.

Dit project is technisch uitgewerkt door de arkenbouwer. Inmiddels is het vergund en zal in de

GSEducationalVersion
Type Interieur vanuit keuken Interieur vanuit onder
trap

* in de nieuwe situatie wordt het rechterschuurtje verkleind door de noordwand 1150 mm naar het zuiden te verplaatsen.

Souterrain - half onder water (slaapvertrekken,

4.600 1.200 5.800 +5.000 2.646 4.154 +5.000 6.800 14.200 0.200 4.900 1.500 0.200 0.200 1.820 11.980 0.200 +6.000 sparing beton tpv dakopgang. GSEducationalVersion Aangepast door JC Tekening Souterrain Type Plattegronden Schaal 1:100 Layout ID P.1 Versie Datum 27 oktober 2022 Projectnaam Woonark Joep 1 2 3 5 6 7 8 9 9R 0.188 8G 0.274 9R 0.188 8G 0.250 20.000 0.350 3.300 0.100 3.000 0.100 3.000 0.150 4.100 0.150 1.100 0.150 4.150 0.350 6.800 0.350 4.710 0.020 1.350 0.370 6.800 2.000 0.100 1.000 0.100 2.900 20.000 0.350 2.000 0.100 3.550 0.100 0.950 0.100 8.200 0.150 4.500 -0.890 -0.890 -0.890 berging (+installatie-units) h = 1.500 (+WD) kast mediaruimte klimaatinstallatie Slaapkamer 3 8.7 m2 Slaapkamer 2 8.7 m2 Slaapkamer 1 14.2 m Walk-in 4 m Badkamer 7.7 m2 Gastenverblijf 25.2 m2 Mediaruimte 12.3 m2 GSEducationalVersion Aangepast door JC Tekening Entree en dijk Type Plattegronden Schaal 1:100 Layout ID P.2 Versie Datum 27 oktober 2022 Projectnaam Woonark Joep 1 2 3 4 5 6 7 +0.800 mk schacht 6.340 0.500 4.100 2.600 9.900 0.500 6.800 20.000 26.840 2.190 3.030 3.910 0.390 4.420 3.740 0.950 0.100 0.700 0.150 1.100 1.000 1.600 1.300 +0.800
Bestaande steiger Bestaande schuurtjes*
GSEducationalVersion Aangepast door JC Tekening Woonkamer Type Plattegronden Schaal 1:100 Layout ID P.3 Versie Datum 27 oktober 2022 Projectnaam Woonark Joep 7R 0.187 6G 0.250 7R 0.189 6G 0.255 3.270 1.530 1.300 0.350 3.900 1.900 1.200 1.500 2.400 1.000 0.100 3.000 0.150 4.150 0.350 1.000 2.000 1.250 0.350 6.100 0.350 3.050 4.600 0.150 1.700 1.250 8.400 0.150 4.100 +2.010 +2.010 +2.010 schacht Woonkamer II 23.8 m Woonkamer 38.6 m2 Woonkeuken 18.7 m2
muziekstudio)
Begane grond op dijkniveau (entree, toilet, meterkast)
1e verdieping (woonkamer, keuken, balkon) dakterras en groendak
Aangepast door JC Tekening Zuidgevel, Westgevel Type Gevelaanzichten Schaal 1:100 Layout ID GVL.1 Versie Datum 27 oktober 2022 Projectnaam Woonark Joep -1.560 -1.260 -0.890 ±0.000 +0.800 +2.010 +3.320 +5.000 +6.000 D01 D02 D03 D04 D05 GSEducationalVersion -1.560 -1.260 -0.890 ±0.000 +0.800 +2.010 +3.320 +5.000 +6.000 D01 D02 D03 GSEducationalVersion -1.560 -1.260 -0.890 ±0.000 +0.800 -1.560 -1.260 -0.890 ±0.000 +0.800 +2.010 +3.320 +5.000 +6.000 GSEducationalVersion 0.370 1.500 0.190 2.380 0.140 2.090 0.590 3.400 0.370 2.600 0.300 1.310 2.400 0.280 2.224 2.313 0.190 0.140 0.370 2.600 0.300 2.690 0.300 2.224 2.600 0.300 3.400 4.610 1.000 2.090 0.590 3.400 2.400 0.280 0.370 2.600 0.300 3.400 0.590 1.500 0.190 2.380 0.140 2.090 0.370 2.600 0.300 2.690 0.300 2.224 2.600 0.300 3.400 4.610 1.000 Aangepast door JC Tekening Oostgevel, Noordgevel Type Gevelaanzichten Schaal 1:100 Layout ID GVL.2 Versie Datum 27 oktober 2022 Projectnaam Woonark Joep -1.560 -1.260 -0.890 ±0.000 +0.800 +2.010 +3.320 +5.000 +6.000 -1.560 -1.260 -0.890 ±0.000 +0.800 +2.010 +3.320 +5.000 +6.000 GSEducationalVersion Aangepast door JC Tekening Oostgevel, Noordgevel Type Gevelaanzichten Schaal 1:100 Layout ID GVL.2 Versie Datum 27 oktober 2022 Projectnaam Woonark Joep -1.560 -1.260 -0.890 ±0.000 +0.800 +2.010 +3.320 +5.000 +6.000 -1.560 -1.260 -0.890 ±0.000 +0.800 +2.010 +3.320 +5.000 +6.000 GSEducationalVersion -1.560 -1.260 -0.890 ±0.000 +0.800 +2.010 +3.320 +5.000 +6.000 -1.560 -1.260 -0.890 ±0.000 +0.800 +2.010 +3.320 +5.000 +6.000
(waterzijde) Langsdoorsnede Westgevel Oostgevel Dwarsdoorsnede Zuidgevel (dijkzijde)
Noordgevel

VAKANTIEHUIS

Project als zelfstandig ontwerper (2022-2023)

Ik heb deze vakantiewoning voor een NederlandsMexicaanse familie in een buitenstedelijke, tropische context nabij Bacalar, Mexico ontworpen. De opdrachtgevers wilden een klein appartement waar ze zelf gebruik van kunnen maken, en een verhuurbaar appartement op de verdieping. Ze vonden het belangrijk dat de woning het overvloeien van het buiten- en binnenleven toestaat.

Wegens praktische overwegingen vanuit de opdrachtgever (budget, tijd en beschikbare lokale materialen & kennis) zijn de duurzame ambities (rammed earth, bamboe) voor het gebouw helaas gesneuveld.

Vanwege mijn gebrek aan kennis van de Mexicaanse bouwregelgeving en praktijk, heb ik enkel een voorontwerp gemaakt. De lokale aannemer is hiermee verder aan de slag gegaan en is het momenteel (in betonblokken) aan het bouwen.

Casa en Bacalar, Mexico 18°41'48.8"N 88°23'43.4"W Drawing Name Planta Baja Casa en Bacalar, Mexico 18°41'48.8"N 88°23'43.4"W Fleur Teitink Drawing Status Draft, Nov '22 Drawing Scale 1:100 Layout ID P.1 13 14 15 16 18 31 límite de parcela 0.100 2.450 0.100 4.000 0.250 0 3 4 5 6 7 8 9 10 N GSEducationalVersion Drawing Name Planta Primer Nivel Casa en Bacalar, Mexico 18°41'48.8"N 88°23'43.4"W Fleur Teitink Drawing Status Draft, Nov '22 Drawing Scale 1:100 Layout ID P.2 13 14 15 16 18 3231 0.250 2.150 4.500 1.000 1.000 4.650 2.600 2.350 1.000 3.350 3.900 2.350 0 3 4 5 6 7 8 9 10 N Drawing Name Planta Segundo Nivel - techos Casa en Bacalar, Mexico 18°41'48.8"N 88°23'43.4"W Fleur Teitink Drawing Status Draft, Nov '22 Drawing Scale 1:100 Layout ID P.3 2.350 3.750 3.500 1.000 1.000 6.900 2.100 1.000 3.500 3.750 2.350 0.100 3.400 3.900 0.100 2.150 0.100 0.100 4.300 0.100 tanque agua 0 1 2 5 6 7 8 9 10 N

DE HEDENDAAGSE KHAN

Ik heb mijn afstudeerproject in 2018 voltooid bij de studio ‘Design as Politics’, binnen het thema Migratie - de stad van komen en gaan. Ik koos ervoor om mij te verdiepen in een historisch voorbeeld in een van ‘s werelds oudste migrantensteden: Istanboel. Mijn docenten waren Hans Teerds, Gilbert Koskamp & Victor Muñoz Sanz. Het project is beoordeeld met een 8,5.

Gedurende het afstudeerproject heb ik één maand als fellow bij het Nederlands Instituut in Turkije (NIT) onderzoek gedaan naar mijn onderwerp en de specifieke locatie. Na mijn afstuderen heb ik op uitnodiging van het NIT en het Nederlandse Consulaat gesproken over mijn project bij een conferentie over herbestemming in het (historische) stadsweefsel.

Het project behelst een onderzoek en ontwerp voor een hedendaagse versie van de historische ‘khan’ voor nieuwe migranten in huidig Istanboel. Het onderzoek focust op drie aspecten: (1) Istanboel, een chaotische stad tussen het Oosten en het Westen als de context, (2) de migrant die probeert zijn plek te vinden in de stad als de gebruiker, en (3) de khan, een historische typologie specifiek in Istanboel als het gebouwtype.

De khan is de stedelijke variant van de karavanserai: een verblijfsaccomodatie voor handelaren en reizigers langs de lange-afstandsroutes door het MiddenOosten en Azië. Nu de khans al tientallen jaren niet meer worden gebruikt als accomodatie, dreigen deze mysterieuze, eeuwenoude gebouwen in verval te raken en te verdwijnen. Dit project onderzoekt hoe het concept van de khans kan worden geprojecteerd op een hedendaagse vorm. In deze herinterpretatie is de khan een plek voor nieuwkomers in de stad: migranten die pas naar Istanboel zijn gekomen, als parallel met de functie van de oude khans. Deze hedendaagse khan biedt tijdelijke huisvesting en een basis voor het vinden van werk zodat migranten een gemakkelijkere start in hun nieuwe stad hebben. Het ontwerp speelt behalve met de architectonische typologie van de khans, ook met het bestaande stadsweefsel en de ruïnes van een bloemfabriek.

Voor een uitgebreide beschrijving van het project, de maquettes, en de uiteindelijke plattegronden, doorsnedes, gevels en details, zie het productenboek en het onderzoeksverslag.

De typologische architectonische eigenschappen van een khan, zoals de beschermende schil(1), de binnenplaats(2), de beboogde portico’s (4&5) en de functieverdeling in verdiepingen(7)

Langsdoorsnede

Gevelaanzicht Noord-Oost

Plattegrond 1e verdieping

3 42 43 10 11 20 24 33 34 32 35 31 28 46 48 49 50 51 52 45 47 44 36 37 30 29 23 18 19 16 14 15 13 12 17 55 53 54 56 57 58 59 60 61 62 63 element for raised roof edge for rainwater ltration (waterproof layer) support of the roof construction planks fabrics piping (polished edge) g ou ed planks fabrics foam insulation fabrics prefab facade elements console heating system planks (polished edge) grou ed foam insulation (reinforced) pre-fab column concrete facade element with acoustic insulation fabrics planks (reinforced) pre-fab column 3 1 42 43 10 11 20 24 33 34 32 35 31 28 46 48 49 50 51 52 45 47 44 36 37 30 29 23 18 19 16 14 15 13 12 17 55 53 56 57 58 59 60 61 62 63 element for raised roof edge for rainwater ltration (waterproof layer) support of the roof construction planks fabrics piping (polished edge) g ou ed planks fabrics foam insulation fabrics prefab facade elements console heating system planks (polished edge) grou ed foam insulation (reinforced) pre-fab column concrete facade element with acoustic insulation fabrics planks (reinforced) pre-fab column 3 1 42 43 10 11 20 26 27 24 25 33 34 32 35 31 28 46 48 49 50 51 52 40 41 45 47 44 36 37 38 39 30 29 23 22 21 18 19 16 14 15 13 12 17 Materials numbered in ed 55 53 54 56 57 58 59 60 61 62 63 1. Zinc roof trim with clips 2. Non-structural wooden element for raised roof edge 3. Zinc gutter lled with gravel for rainwater ltration 4. Sedum ayer 5. Bituminous sealant (waterproof layer) 6. Rigid foam insulation 7. 8. Structural beams (wood) for support of the roof construction 9. 10. Vapour barrier 13. Vertically rebated wooden planks 14. Wooden battens 15. Waterproof layer 16. Soft insulation recycled fabrics 17. Vapour barrier 19. Wooden frame 24. Ventilation sha ts and other piping 25. Lamina ed glass balustrade (polished edge) g ou ed 27. Wooden sleepers 28. Vertically rebated wooden planks 29. Wooden battens 30. Soft insulation recycled fabrics 31. Wooden plank 32.Wooden construction frame 33. Wooden mounting frame 34. Wooden window frame Wooden slab for support of foam insulation Soft insulation recycled fabrics 11. Plasterboard 12. Wooden stud frame 18. Wooden frame 21. Spitter 22. Polished concrete (reinforced) prefab facade elements 23. Prefab concrete (reinforced) console 20. Casted concrete oor with heating system 35. HR ++ glazing 36. Wooden handrail 37. Steel cable 38. Vertically rebated wooden planks 39. Wooden battens 40. Safety glazing 41. Wooden window frame 42. Laminated glass balust ade (polished edge) - grou ed 43. Steel channel (balustrade) 44. Wooden window frame 45. Wooden door with rigid foam insulation 46. Polished concrete (reinforced) pre-fab column 47. Wooden window frame 48. Polished pre-fab (reinforced) concrete facade element 49. Pivot door steel construction 50. Steel channel 51. Pivot door steel construction 52. Steel channel 53. HR ++ glazing 54. Wooden stud interior wall with acoustic insulation 55. Wooden window frame 56. Metal connection elements 57. Soft insulation - recycled fabrics 58. Wooden battens 59. Vertically rebated wooden planks 60. Steel channel (balustrade) 26. Wooden oor boards 61. Polished concrete (reinforced) pre-fab column 62. Wooden window frame 63. Safety glazing
8 42 43 10 11 6 5 7 20 46 48 49 50 51 52 45 47 44 9 55 53 54 56 57 58 59 60 61 62 63

UITKIJKPUNT GARNIGA TERME

In de zomer van 2022 heb ik deelgenomen aan de 31ste editie van Camposaz. Camposaz is een organisatie opgericht door een groep Italiaanse architecten die vonden dat architecten te ver van de bouwpraktijk stonden. Elk jaar organiseert Camposaz workshops op bijzondere locaties waarbij een internationale groep jonge architecten, in samenspraak met de lokale community als opdrachtgever, een houten bouwwerk bedenkt, ontwerpt én bouwt. Deze workshop vond plaats in een het hechte Noord-Italiaanse bergdorpje Garniga

Terme gedurende 10 dagen met 12 architecten uit Italië, Engeland, Polen, Iran en China.

Het resultaat van deze internationale snelkookpan vol leuke discussies, chaos en beslissingen maken is een tweetal houten paviljoens op een uitzichtpunt over de Adige vallei. Het ene bouwwerk is een uitkijktoren met een beschutte ruimte onderin, het andere bouwwerk is een platform tussen de bomen om op te zitten of liggen. De bouwwerken zijn visueel verbonden door een strook dunne latten in elkaars verlengde, een verwijzing naar de rivier Adige.

De uitkijktoren gaat een dialoog met de beneden gelegen Adige Vallei aan in zowel de positionering als de vormgeving. De toren nodigt door de buigende beweging bezoekers uit de vallei naar beneden in te kijken waar een lappendeken van rijen wijnranken en appelbomen te zien is. Dit patroon van vlakken met rijen in verschillende richtingen keert terug in de gevel van de toren. Vanaf de toren is de vallei niet alleen te zien, maar ook te horen.

Het platform ligt op enige afstand van de afgrond beschut tussen de bomen. Vanaf het platform is de vallei niet te zien, maar wordt de beschouwers blik gericht op de bergen, de lucht en en bladerdek boven het platform. Als een gevouwen blad steekt één hoek omhoog, wat uitnodigd om op het platform te liggen en naar boven te kijken.

Plattegrond

TAV. 06 GARNIGA BELVEDERE trentoitalia CAMPOSAZ 31:31 N 46° 0’ 6.718’’ E 11° 5’ 44.131’’ 0 0.5 1 2m 0 0.5 1 2m
PRESA 06 f /11 1/8 ISO 64 14mm ore 6:35 CAMPOSAZ 31:31 N 46° E 11° PRESA 03 f / 2.8 1/200 ISO 200 24mm ore 18:51
Aanzicht (vanaf valleizijde)

Il secondo elemento del progetto si sviluppa in orizzontale per offrire un angolo di riposo più arretrato e protetto dove sdraiarsi all’ombra delle chiome circostanti. L’orizzontalità della piattaforma si spezza creando un piano inclinato che innalza il punto di vista dell’osservatore, il quale può quindi scegliere la pellicola: le fronde degli alberi che incorniciano uno squarcio di cielo o i profili delle catene montuose che si stagliano all’orizzonte. Il rivestimento scelto per la piattaforma si presenta più regolare rispetto a quello della torre. Tuttavia, è una variazione dei profili di legno utilizzati che connette visivamente le due strutture, insieme ad un leggero aggetto che rompe la pianta trapezoidale, in direzione del corrispettivo elemento di invito alla torre.

TAV. 03 GARNIGA TERME trentoitalia PRESA 02 /11 1/8 ISO 64 14mm CAMPOSAZ 31:31 ore 18:51
PRESA 13 f /13 1/10 ISO 64 16mm ore 7:03 TAV. 03 GARNIGA TERME trentoitalia PRESA 02 f /13,0 1/25 ISO 64 24mm ore 7:12 N 46° 0’ 6.718’’ E 11° 5’ 44.131’’ PRESA 03 f / 2.8 1/200 ISO 200 24mm ore 18:51 GARNIGA BELVEDERE PRESA 19 PRESA 18 f /8 1/80 ISO 64 24mm ore 6:44 /10 1/125 ISO 80 PRESA 17 f /13 1/200 ISO 400 180mm ore 7:16 PRESA 05 f /11 0,8 ISO 64 50mm ore 6:19 PRESA 06 f /11 1/8 ISO 64
maart 2023

Turn static files into dynamic content formats.

Create a flipbook
Issuu converts static files into: digital portfolios, online yearbooks, online catalogs, digital photo albums and more. Sign up and create your flipbook.