Jorden Shepard - Portfolio

Page 1

PORTFOLIO

Jorden Shepard
2 3
Library Programmatic Evolution Riverwest Elementary School
1 MLK
2 3

MKE Library

Project Narrative

Located on N martin Luther King Dr, Milwaukee. The goal is to create a space within a space and to have the massing revolve around this space.

4 5

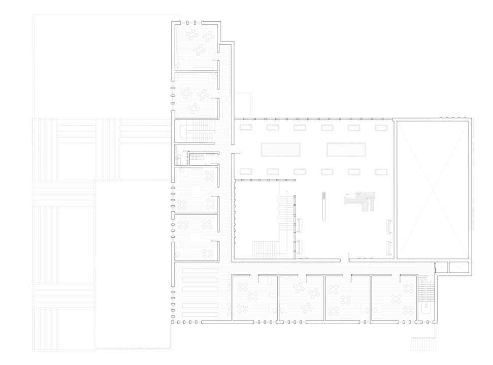
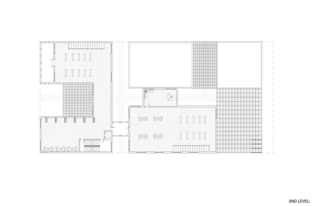
Plans

Features Teen & Adult Section on the left side and Kids Section on the right. Has Special rooms. The upper levels features private offices and rooms and storage.

6 7
10 11

RIVERWEST ELEMENTARY SCHOOL

Project Narrative

Goal of this project is to experiment how to manipulate he topography to fit a massing, and to create spaces with Retaining walls

12 13

Plans

Concept: courtyard & garden area. Students will be able to wait for school to start, buses, and spend their recess in this courtyard area

14 15
16 17
18 19

Cladded with a light Brown brick,black metal sheets, and wood for the columns and beams

20 21
22 23
24 25
26 27

Wells St. Library

Project Narrative

Located on 549 S Wells St, near the Chicago Stock Exchange underpass, in Chicago, Illinois.The goal of this studio was to create a space with an intial program, and discover ways the building’s program can evolve within a span of a hundred years, potentially inpacting its interior and/or exterior.

28 29
30 31
North of Site: Artist: Ella & Pitr Location: 527 Wells St. Chicago is an old native name and the story of the city is directly linked with native people. East of the site: On the First level, it feature this green bluish marble tiles that seemed to be slapped on the brick facade well after being built. Possibly to add more character South of Site: Features one of Chicagos premiere residental towers. Features The chicago Stock exchange Building that has an under pass under the building that features alot of vehicular traffic. Lasalle Steet Station Features large body of pedestrian traffic DAILY Possibly implement this structural element into my design Potentially propose something that will adhere to the passengers.
Site Anatomy Site Collage
Site Composition
Site Highlights

Model Study

Tasked with making a series of models with any site conditions of our choosing. The two models incased impacted the form in different ways

infringement on the view of the mural

32 33
Modular staggering style. Imulated in my design by staggering the form down to not limit Intersecting planes. Imulated in my design by creating wooden structures that cover the walk ways that entire the site Angled Surfaces Stacking retaining walls

Form Diagram

Shows a series of extrusions from the form that takes most of the site. The Chosen form is to not hinder the view of the Mural drawn by Ella & Pitr.

34 35

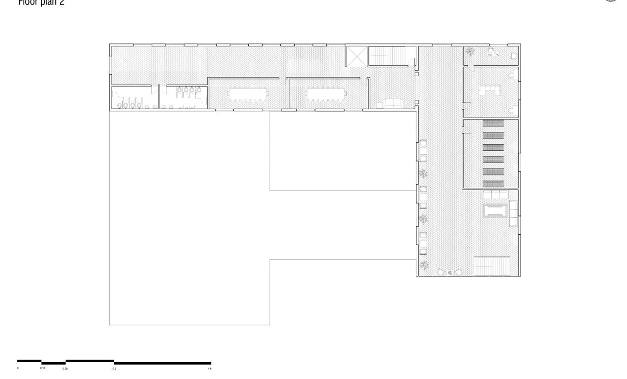
Plans

There are many access points onto the site and into the buildings, with a imaginary line that dissects the site down the middle, taking you through the building and from South point to the north point of the site

36 37

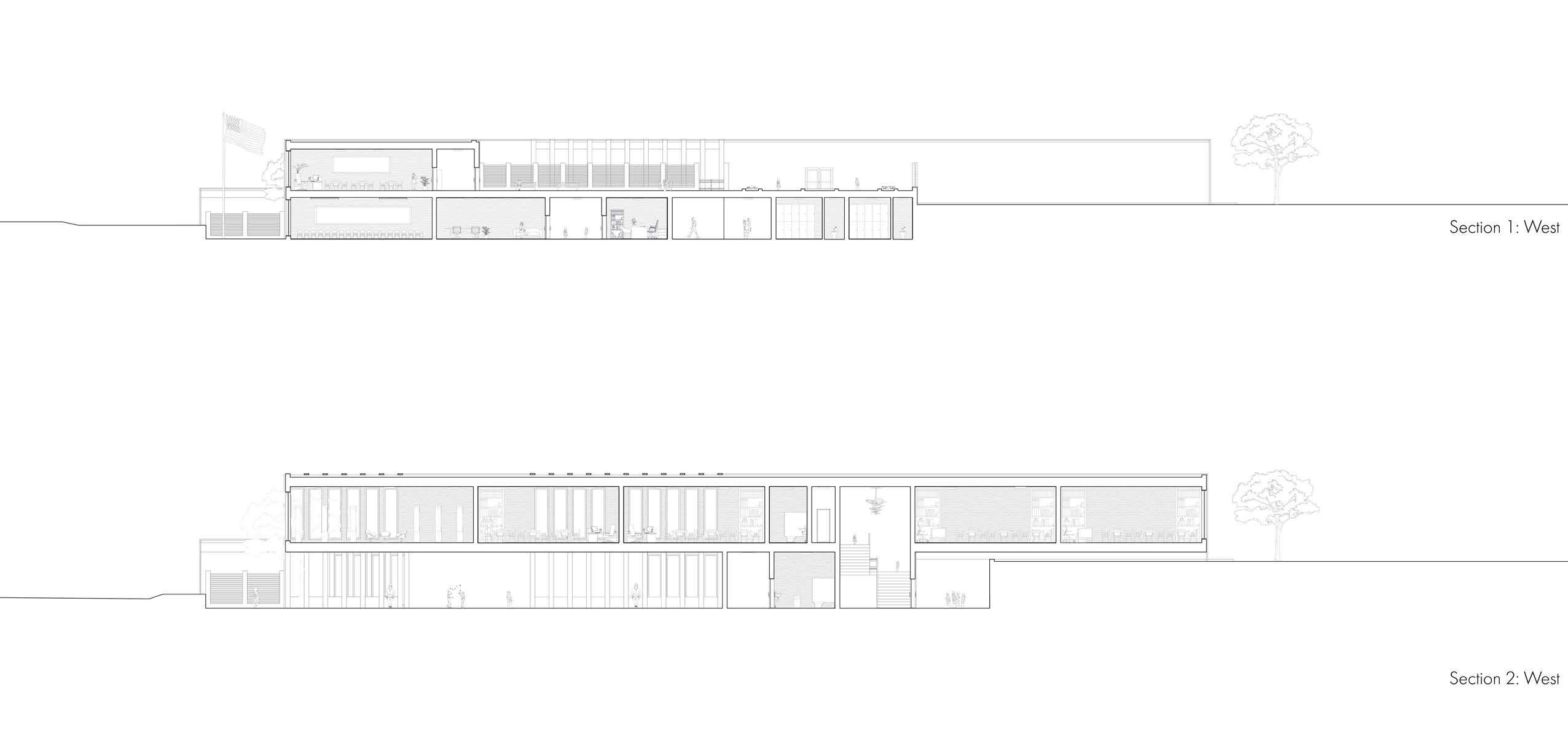
Section

Shows the building in the relation to the mural. Gains the ability to see the mural from each story of the building

38 39

2023

In the beginning of this structure, a library will occupy this space. It features book exploration areas that have the largest footprint on the site, including private rooms for isolated studies, an exhibition area on the top floor for events, and the private office for the librarian in existance.

2053

With the modular like system in a public market , with many similar programs exists in this structure. Features restuarants, meat/produce section, bakery, dessert places, and a cafe that acts a seperate location from the market, but is still included in the market.

40 41
Library Diagram
Public Market Diagram

Dance Center Diagram 2083

With the spaces being linear, a dance studio would best fit this building years later. Features studio areas for larger dance classes of any media and smaller studio spaces for individuals to practice their routines.

UI Data Center Diagram 2103

Inspired by adult animation: Pantheon...A UI (Uploaded intellegence) data center acts as a base for the people whose brain information has been uploaded into to the cloud. Their information is then stored into a hard drive that are stored in data banks in the server room. Features electric room, power rooms for the server banks, cooling room so the hard drives dont over heat, storage for extra equipment or maintanance and network room, for internet connection.

42 43

Elevations

Material: Black Metal Sheets & mahogany Wood. Brutalist style. This material was chosen based on the Last Program, The UI data center. Since 98% of the world was uploaded in the show, most of the buildings were made with mostly one monochramatic material, Since there was no one in the real world to judge the decisions made.

QR Code to interactive

360 panorama. Also can be viewed in VR

44 45
46 47
48 49
50 51
52 53

PROFILE

As an architectural intern, I am highly adaptable and thrive in fast-paced environments. I am eager to learn from experienced professionals, absorb new design concepts, and contribute my own fresh perspectives to projects. With a strong work ethic and a genuine enthusiasm for architecture, I am ready to make valuable contributions to your firm's projects while expanding my knowledge and skills in a professional setting.

CONTACT

SchoolEmail: Shepar25@uwm.edu

Personal Email: Jorden0712@Gmail.com

HomeCell: 224-214-6584

VOLUNTEERWORK

Service learning: Glen Hills Middle School

• 20hrs.

Externship:

• AgArchitecture (winterim2023)

• Groth Design Group (winterim2024)

JORDEN SHEPARD

EDUCATION

Oakland University

• 2019- 2020

• GPA:3.1

University of Wisconsin – Milwaukee

• 2020- 2024

• GPA:3.0

WORK EXPERIENCE

Madison Bleu Boutique – cashier/clerk

• 2017– 2019

Jewel Osco - Front Clerk

• July 2020–August 2020

Great Wolf lodge – Dish Washer

• June 2021–August 2021

Sam’s Club – Merchandise Stocker

• June 2022–August 2022

STUDIOS

Architectural Making 1

• Fall 2020

Architectural Making 2

• Spring 2021

Architectural Design 1

• Fall 2022

Architectural Design 2

• Spring 2023

SKILLS

Revit

Autocad

Rhino7

Illustrator

Photoshop

Intermediate Design Studio (650) • Fall 2023

54

Turn static files into dynamic content formats.

Create a flipbook
Issuu converts static files into: digital portfolios, online yearbooks, online catalogs, digital photo albums and more. Sign up and create your flipbook.
Jorden Shepard - Portfolio by Jorden Shepard - Issuu