JONATHAN GRIMALDO
SELECTED PROJECTS 2018 - 2025

THE SHORTCUT AS AN URBAN PASSAGE

FROM THE CONDE TO MONTECRISTO








![]()
SELECTED PROJECTS 2018 - 2025










TUTOR: EDWING OTERO UBICATION:
Located in the eastern part of Caracas, the historic hill like several medieval cities, with the difference and fortress. The historic center is important chitecture, and now it is affected by a sum of of building located in the town south border, center of undesired informal construction. The and it is giving a program that seek to

OTERO | 5° YEAR 2024
CARACAS, VENEZUELA CENTER
historic center of Petare is based on the top of a difference that medieval cities are limited by walls important for its cultural heritage and its colonial arinformal construction. We proposed a serial border, most affected areas, to protect the historic The building recreates the medieval city wall improve the neighborhood dynamics.



In the Historic Center of Petare, the buildings near the Sucre Square and the Church, have conserved its colonial architecture, meanwhile the boundaries are affected by informal construction, especially the southern area.
As part of the master plan to restructure the historic center of Petare, a vehicular road is proposed to surround the neighborhood, limiting vehicular access and prioritizing pedestrian traffic, implementing the superblock concept.






The Art Center concept allows to adapt to the irregular plot where it is located, the building is composed by the main nave that distribute to the secondary galleries. The galleries are covered by different roof type to offer different spaces for a variety of uses. The V shaped roof and selected finishing material are used for a traditional aspect of the building.







TUTOR: ALBERTO MANRIQUE UBICATION: CARACAS, CULTURAL
The project studies the relation between the tervene in a block on the Caracas city downtown passages. Therefore, a cultural center building to shape the public spaces. The challenge is to lar plot and organize its


SPACE THROUGH ARCHITECTURE
MANRIQUE | 2° YEAR 2018
CARACAS, VENEZUELA CULTURAL CENTER
architecture and the urban spaces. So, we indowntown to free occupied plots to open pedestrian building is proposed, there its architecture is a tool to develop a building that adapts to its irreguits surrounding spaces.




The building is located at the financial center of Caracas, that is fully congested and scare of adequate spaces for pedestrian traffic and recreation. Therefore, an urban passage is conceived to cut between the great city blocks.






THE PUBLIC ATRIUM section a-a´
The urban passage is conceived as a great atrium that is surrounded by the main circulation aisles of the building and it is covered by a roof that permit natural sun light, in order to give prominence and scale to the passage while maintaining a visual relation between the urban space and the cultural center.




TUTOR: JUAN CARLOS
UBICATION: CARACAS, URBAN PROFILE, APARTMENT
The project explores the architectural possibilities by strict regulations. Therefore, we studied two growth in the city of Caracas: Chacao and regulation that will be applied in the redevelopment residence is proposed as first essay of the regulation a mixed used building that maintain an architectural


URBAN MORPHOLOGY
PARILLI | 4° YEAR 2019
CARACAS, VENEZUELA
APARTMENT BUILDING , SPORT CENTER
possibilities of designing in an urban context ruled two urbanizations that has most successfully Los Palos Grandes, to synthesize an urban redevelopment of Montecristo. Then, a multi-family regulation application, and finally, to develop architectural value besides the strict regulation.


Montecristo is full by unique-family houses and small commercial shop, however, large scale residential, commercial and offices building are built in the neighborhood surroundings that affects the scale of the urbanization. Therefore, it is required to implement a new scheme that adapts to the city growing and improve its urban spaces.





The concept of the center courtyard of the colonial houses as the main articulating space of the house, it is recovered in an urban building. The courtyard serves as an atrium that offers meeting spaces and allows a visual continuity on each floor of the building.

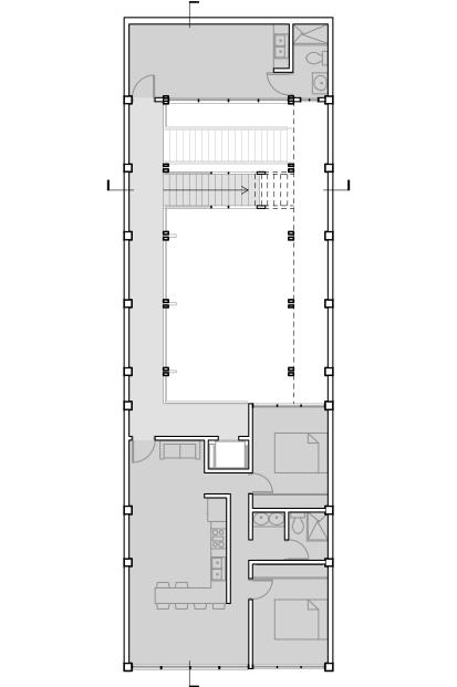
1st floor +3.2m

section a-a´



ORIENTATION

TERRACES

PROGRAM

CIRCULATION
TERRACES TOWARDS THE SQUARE
The building apartment units are separated to create social spaces for the residents and allow adequate ventilation and natural illumination for each apartment. Each terrace is heading to the public town square.

section a-a´
THE BUILT VALLEY
The stadium is the ultimate sport building typology. Despite, the sport center is not destined to support such magnitude events, the building seeks to offer such visual relations. The swimming pool is located in the center area and it is surrounded by terraces.



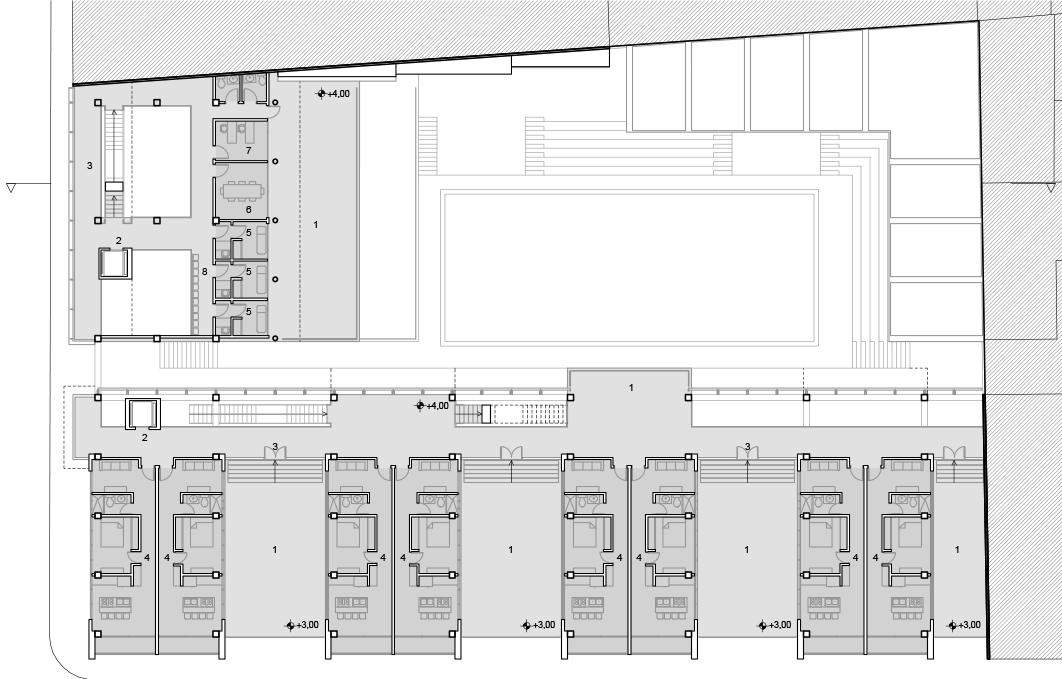
1st floor +4.0 m
1. Terrace
2. Elevator hall 3. Corridor 4. Apartment 5. Office 6. Meeting room 7. Administration 8. Waiting room
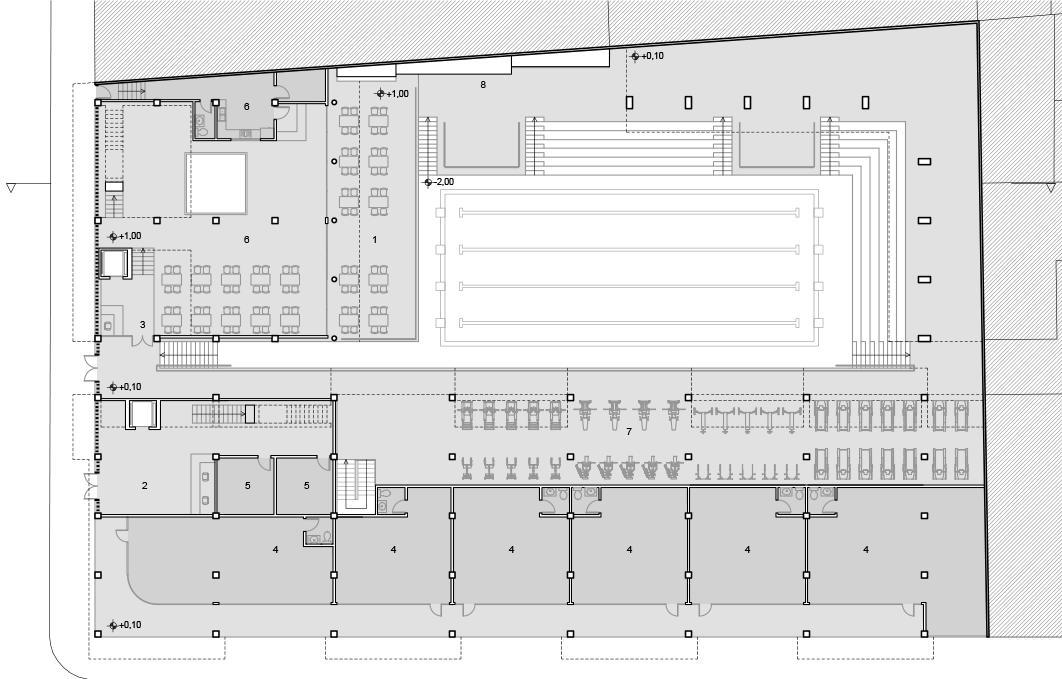
ground floor +0.1 m
1. Terrace 2. Lobby 3. Reception 4. Shop 5. Services room 6. Restaurant 7. Gym
8. Climbing wall basement floor -2.0 m 1. Locker room 2. Sauna
Jacuzzi
Masage room 5. Swimming pool 6. Racketball court





ISABEL CALEYA ARQUITECTURA | SOCADO CAFE
LOCATION: LAS MERCEDES, CARACAS, VENEZUELA
CONSTRUCTION AREA: 411 m2
CONSTRUCTION YEAR: 2023
PROGRAM: CAFÉ
The project consist on the extension of an existing café. The interior design is focused on reinforcing the stablished brad identity and preexisted shop design, by improving the users experience throughout the use of natural material, calid illumination and the innovative furniture design to create a cozy atmosphere.













TRAGALUZ ESTUDIO DE ARQUITECTURA | VENEMERGENCIA
LOCATION: MARACAY, ARAGUA, VENEZUELA
CONSTRUCTION AREA: 750 m2
CONSTRUCTION YEAR: 2025
PROGRAM: URGENT CARE CENTER
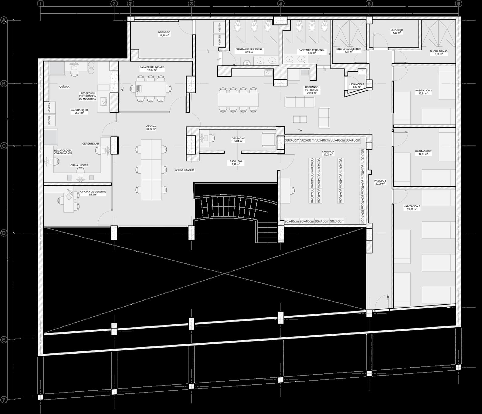
The project involves the renovation of the commercial area of a mixed-use building, formerly the headquarters of Mercantil Insurances, to convert it into Urgent Care Venemergencia for the city of Maracay. For this purpose, the internal spaces of the building are adapted to accommodate the program provided by the clients with all the required areas, in an economically optimized manner and following the required guidelines. The interior architecture continues with the design line established for all Venemergencia urgent care centers around the country, where the design is adapted according to the spatial characteristics of the site.













TRAGALUZ ESTUDIO DE ARQUITECTURA | JESUITAS
LOCATION: CHACAO, CARACAS, VENEZUELA
CONSTRUCTION AREA: 148 m2
CONSTRUCTION YEAR: 2024
PROGRAM: OFFICE
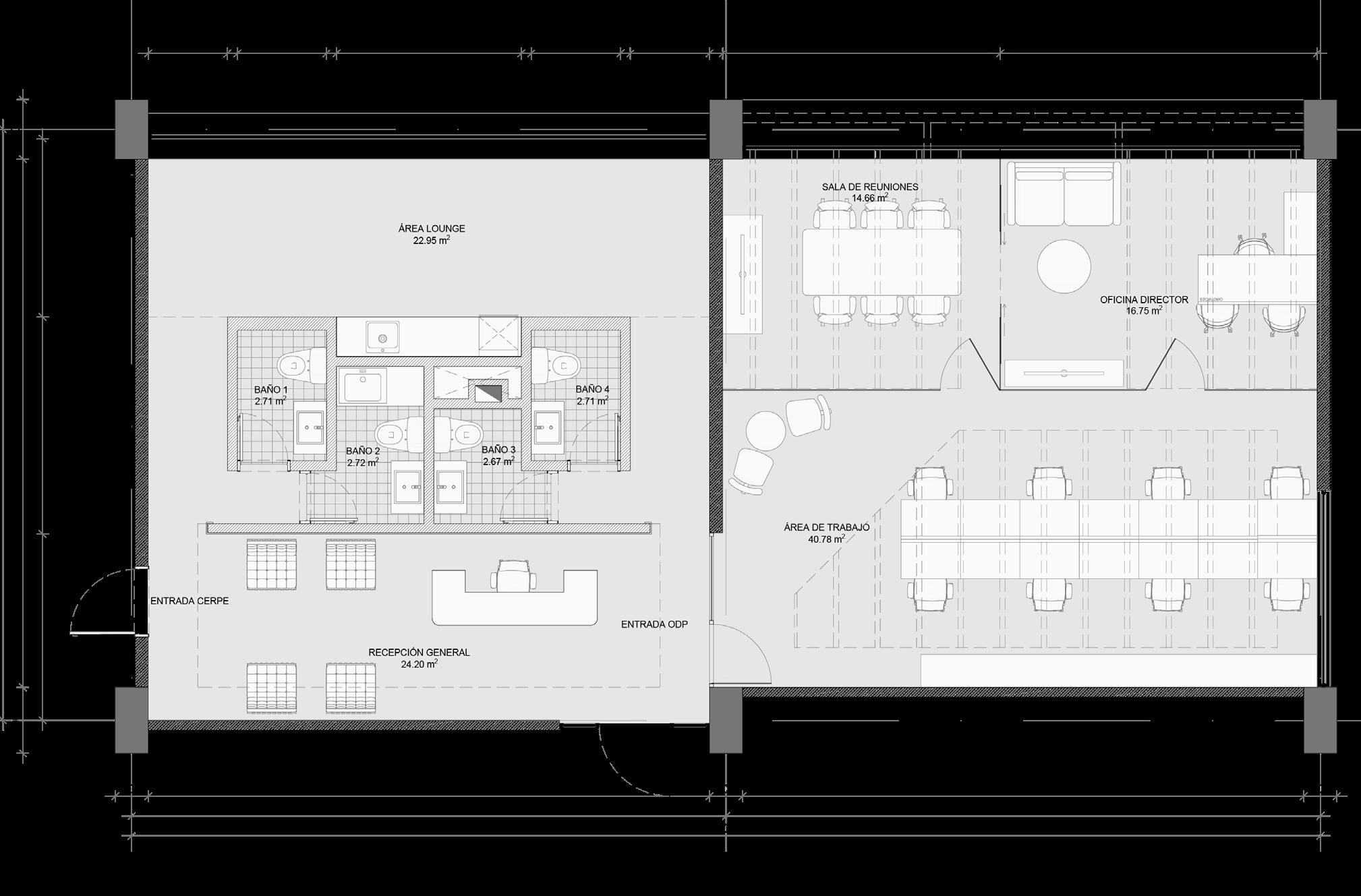
The project consists of the renovation of a former unused office space to house the new office for the Jesuit Development and Progress Organization. Additionally, the project involves the remodeling of common areas that serve other departments, which includes a reception, employee bathrooms, and a lounge area. The design stands out for the use of transparent separations in each space and clearing the roof of ceilings, except for strategic places where installations goes, in order to achieve a more spacious space.


corte longitudinal a-a’




