Carbon Sequestered Future Ruins

Page 1

Carbon Sequestered Future Ruins

Jonathan Ward (September 2022)

P1a:
AMS

Westzaan, Noord Holland

60mins (bike) 75 mins (public transport) from Amsterdam Centraal

Currently a “rural area”, this location was once the industrial backbone of Amsterdam up until the 19th century. Built with the (sustainable) materials of the time; wood and reed. There were more than 1.000 windmils and even more warehouses which culminated in a productive industrial region.

Open landscape Historical water system Traditional facades

Angry farmers

Overrun building Open landscape

Floor 01
Floor 02
Wooden windows Traditional joinery Fan for drying Barley Gypsum 02 floor
outfitted Shingled roof
Modern window Wooden facades Electrically
What if the building was
was given back to nature?
1350

1800

0 +3 -3 -6

0 +3 -3 -6

0 +3 -3 -6

0 +3 -3 -6 BC 1000 BC 1000 AC 1500 AC 2000 AC

0

+3
-3 -6

Sand

Silty-clay

Peat-clay

Reed peat

Peat mos Sedge peat

Peat forest Water

Since the 1970s the world has lost 35% of it’s peatlands; which store twice as much carbon than rain forests

C C C C C C
C C
or 2.500
Low ground water level Oxidization 5.000 tonnes =
C C C C C
= €20.000.000 or 2.500 ha
C High ground water level Carbon sink

Peat landscape Cultivated landscape

Wind Water Demolish Vegetation

Future Ruins

landscape 50 years 100 years

Ruins come about due to natural population decline, with many structures derelict over time due to long-term

How to we create
disasters, armed conflict, and structures becoming progressively long-term weathering and scavenging. create a ruin?
Wind
Flood the
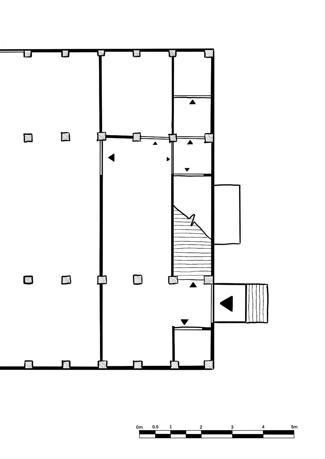
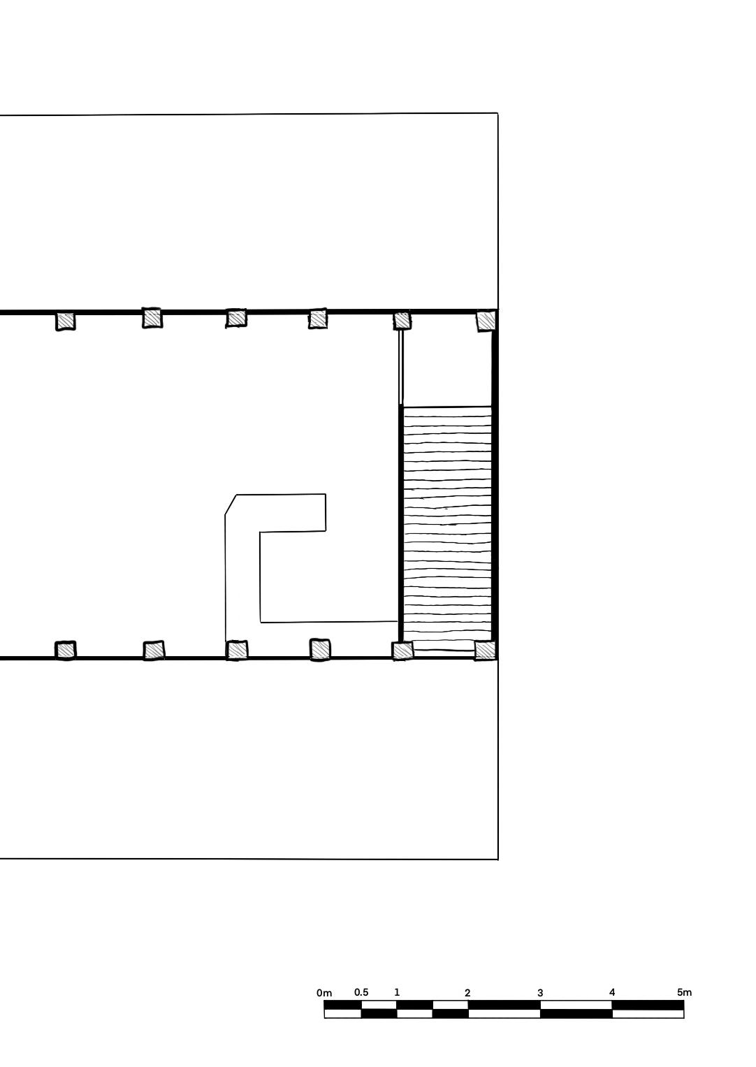
the land Remove facade Wind break Vegetation Water Scale 1:500
LEGEND Deck (warehouse facade) Stairs Peat Water Farmland Trees Siphons Playground
Scale 1:500 Ruin (warehouse) Informatino center
Scale 1:200 High dijk (+1m) Siphon (charging inlet) Deck (recycled facade) Ruins
Scale 1:200 High dijk (+1m) Low dijk (+0,4m) Ground level (-0,6m) New ground level - peat (+0,2m)
Wind break
Check valve charging Inlet Outlet Wind break
Ruins
Scale 1:50 Scale 1:200 Deck (recycled facade) High dijk (+1m) New ground level - peat (+0,2m) Siphon Low dijk (+0,4m)

Turn static files into dynamic content formats.

Create a flipbook
Issuu converts static files into: digital portfolios, online yearbooks, online catalogs, digital photo albums and more. Sign up and create your flipbook.