
“Architecture exists, like cinema, in the dimension of time and movement.”
-Jean Nouvel
![]()

“Architecture exists, like cinema, in the dimension of time and movement.”
-Jean Nouvel
Email: Jonathanrivers2020@gmail.com jriver96@students.kennesaw.edu
Phone: 470-331-1935
About:
I’m a dedicated architecture student currently pursuing a B.ARCH degree at KSU. My passion for architecture drives me to work diligently and efficiently, enabling me to rapidly acquire new knowledge and expand my understanding of the field.
BIM SOFTWARES
Revit
Rhino
Grasshopper
Blender
ADOBE PROGRAMS
Photoshop
InDesign
Illustrator
Acrobat
After Effects
OTHER
AutoCAD
D5
Design
Drawings
ArchGIS
Twinmotion
Model Making
Soft Skills
Leadership
HOBBIES
Making Movie Posters
Reading Collecting Vinyls
Learning Guitar
Data Center Research
Wood Working
Travel
Student Research Assistant [KSU Fabrication Laboratory] January 2022 - Current (2 Years)
• AutoCAD, Rhino, and Cura Assistance for 3D printing
• Testing various 3D printing material such as clay
• Ensure equipment is properly maintained and cleaned
• Guide students in laser cutting and 3D printing assignments (printing, loading, development process)
• Assist faculty with laser cutting and 3D-printing projects
• 2nd Place Nationally at the Barbara G. Laurie Student Design Competition 2024 [As Competition Chair] + Prize of $1,500 + NOMA Atlanta Grant of $1,000 + GMC Grant of $500
• Finalist For TVS Design Competition
• Dean’s List 4x
• President’s List
Kennesaw State University [KSU] College of Architecture and Construction Management
• GPA: 3.5
• Completed Competition: + TVS Design Competition + Museum of Emotions + AIA Student Competition + Urban Studio Comp. + NOMAS Comp. 2023 + NOMAS Comp. 2024 + KSU Concrete Comp.
• National Organization of Minority Architects Students [Competition Chair] August 2020 - Current








PROGRAM: TRANSIT HUB, HOUSING, COMMUNITY SPACE, ETC.
The Backyard is a reaction to the Highway to Nowhere which was a plan for a highway that destroyed a lot of minority neighborhoods. To counteract this, we designed a housing, community space, and a transit hub with a “backyard” that connected everything while at the same bridging to the gap between the two sides of the highway and highlighting the culture of West Baltimore.

2024 NATIONAL STUDENT DESIGN COMPETITION
PRESENTED ON OCTOBER 25, 2024
IN RECOGNITION AND DEEP APPRECIATION FOR YOUR OUTSTANDING PERFORMANCE AND DEDICATION TO EXCELLENCE IN STUDENT DESIGN. FOR

Ice Factory transformed into a town hall and historic exhibit for residents and neighborhoods. The addition of the food hall, art exhibit and office further activate the program.

Open plaza used for farmers’ market and local merchant markets to promote economy and engagement. The plaza is open to the ice factory, serving as a historical backdrop to the site. Bike paths are connected though the entire site for multi-modal transportation and road softening occurs to transition between roads

After-school and tutoring programs provide means to promote better education along with the library with office spaces that can be used by residents. The open court and community garden are also programmed for better food education and encouraging movement.

STUDIO APARTMENT 1 BEDROOM APARTMENTS


After-school and tutoring programs provide means to promote better education along with the library with office spaces that can be used by residents. The open court and community garden are also programmed for better food education and encouraging movement.
The backyard, in Baltimore’s rowhouse neighborhood, has historically served as a vital communal space, fostering a sense of connection and belonging among residents. The interconnected nature of these backyards, often spearated by only faces, creates natural interstitial spaces. This project seeks to expand upon this concept by repurposing the “highway to Nowhere” into a layred, interconnected community backyard. By transforming this underutilized infrastructure. The aim of The Backyard is to now create a shared green space that promotes social interaction, environmental sustainability, and a renewed sense of community within the city.
PASSAGE WAY COURTYARD
PASSAGE WAY
BACKYARD ROW




















































































































































PROGRAM: DATA CENTER
The crown jewel of Greenwave is its agrivoltaic system. Sunlight reaching the solar panels generates clean, renewable energy that directly powers the data center’s operations. This significantly reduces reliance on the traditional grid and minimizes the facility’s carbon footprint.











24” x 24” METAL TILE [3” DEPTH]
COMPUTER ROOM RACK CRAC [COMPUTER ROOM AIR CONDITIONER]
24” x 24” PERFORATED METAL TILE

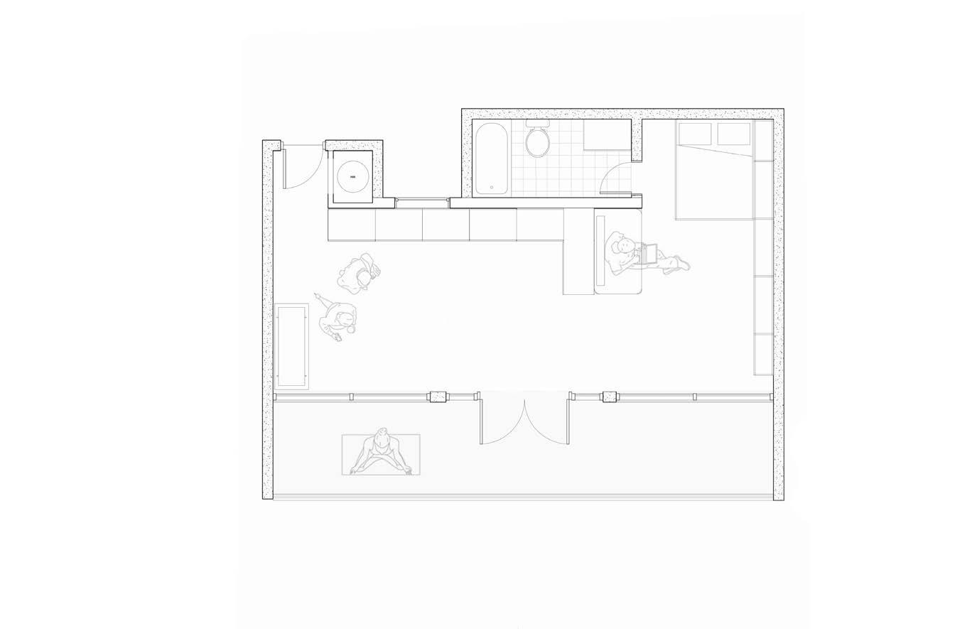
JAPONISME HOUSE PROGRAM: APARTMENT


The Japonisme House is a unique architectural fusion that marries the modernist principles of Le Corbusier with the refined elegance of traditional Japanese design. Inspired by the 19th-century European fascination with Japanese art and culture, known as Japonisme, the building seeks a harmonious balance between East and West.








PROGRAM: FACTORY, OFFICE, RESEARCH CENTER
Heights and Yards, a visionary project, redefines the concept of a solar panel factory by weaving together cutting-edge innovation, mindful community engagement, and environmental responsibility. ts unique dual-site architecture, linked by existing railroad tracks, seamlessly integrates within Atlanta, fostering a holistic approach to green energy and sustainable development.


















My time in architecture school has fostered a deep passion for models/ fabrication and the unique insights they offer. The process of crafting a model isn’t just about replicating a physical structure; it’s a gateway to a deeper understanding of the building’s potential. Through the act of creation, I’ve come to appreciate how models unlock the secrets of a design’s structural integrity and expose the intricacies of the architect’s vision.


ers of plywood, totaling a substantial six inches in thickness, each layer was CNC’d to resemble the vertebrae of the human spine. To achieve optimal weight distribution and maintain structural integrity, the middle six layers utilize an strategic A-B form construction technique. This method involves strategically placed cutouts within the A forms, which then become the key support points for the interlocking B forms. Metal screws act as the connective tissue, ensuring a robust yet lightweight frame.
that looks like a spine. There are 8 layers of the spine that equal 6 layers are broken into pieces to and follow an A B structure, where the structure is cut in the A form, become the strong part of metal screws. The fins that allow the people to sit on it, are curved of the spine. The inside is also cut to act like a beam, meaning



natural support system provided by the spine. The initial concept drew from the profound sense of comfort and security a fetus experiences nestled within its mother. We envisioned replicating this feeling of complete physical and emotional ease within the chair's design. Secondly, we recognized the importance of ergonomic support, drawing inspiration from the human spine's inherent ability to promote proper posture and alleviate strain.
Axonometric: Inner pieces used to create a transformative and interchangeable design





Axonometric: Dowel and Inner pieces for final chair design.







