CV & Portofolio - Johan

Page 1

ARCHITECTURAL PORTOFOLIO.

selected project

2019 - 2022

Petra Christian University

PORTOFOLIO BOOKSET 2023

Seorang lulusan arsitektur Petra ,lahir di kota Surabaya yang tertarik dengan desain terutama, pendekatan kontekstual yang menekankan pada kualitas sensorial dan materialitas pada berbagai tipologi. Berbekal pengalaman berbagai sayembara, proyek dan magang serta memiliki semangat bereksplorasi mengenai ilmu arsitektur dan berkolaborasi dengan para desainer lain.

Project*

*sayembara / studio - nama - fungsi

2022

ILDSC - not goodbyes - memoriam landscape

Etalase - TuMan - Pasar UMKM

studio 5 - Bambaya - dorm mahasiswa

Archicare - Spectrum of life - instalasi (top 15)

Archifest - Kukila- Mixed- used building (top 5)

+62 811 347 0999
Johansantoso937@gmail.com
2023
johan santoso djojo

Archiray viii - Gezichtpunt - creative space

Studio 6 - Art forest - creative space

Studio 7 - Subid - Mixed used building

72 hours (uph) - Kita[ran] - instalasi (top 15)

2023

Studio 8 - saturasi - Fasilitas edukasi dan wisata kawasan kedung cowek, surabaya

Workshop Skills Experience

Pendalaman konservasi arsitektur feb - jun 2021

Workshop sahabat bambu nov 2022

Others

Mentor Autocad - studio 05 April - 2022

Mentor Rhinoceros - studio 06 Maret - 2023

Intern Architect - SB301 nov 2022 - feb 2023 l Surabaya

Membantu dalam proses berjalannya pameran “archives and process”

Membantu dalam proses pembuatan proposal untuk klien

Membantu dalam perkembangan desain melalui sketsa, modelling, diagram, studi bentuk dan lain-lain

Asisten arsitek apr 2022 - juli 2023 l Surabaya

Membantu proses pembuatan renovasi katedral dari tahap konseptual hingga skematik

Archicad

Adobe Illustrator - indesign - photoshop

Autocad

Grasshopper

Rhinoceros 7 Sketch up Ms Office

Education

SMA Kristen Petra 1 2016 - 2019

Universitas kristen petra 2019 - 2022 PORTOFOLIO BOOKSET

designed the flexibility various programs and activities contains, multiple os. also Maintain ing the

SATURASI Atmosfir Simbolisme Kota SUB. ART FOREST 6-23 32-47 24-31 CONTENT 2023

to serve flexibility of the programs activities it hosting scenariMaintainhistory

Kota
SUB. ID 32-47 CONTENT KUKILA Lain-lain 48-55 56-58 PORTOFOLIO BOOKSET
Lingkungan Pengalaman

SATURASI

MEMORIAL DAN EDUKASI KEDUNG COWEK

Kawasan Benteng Kedung Cowek merupakan salah satu peninggalan belanda yang dibangun tahun 1900-an, memiliki sejarah panjang bagi Surabaya, terutama saat puncak peperangan Surabaya di Kedung Cowek, 28 november 1945.

Selain potensi sejarah, karena kawasan terlupakan oleh waktu, alam di sepanjang kawasan terus bertumbuh hingga membangun atmosfer baru sekaligus menimbun memori yang telah berlalu. Perencanaan fasilitas edukasi wisata ini bertujuan untuk menciptakan sebuah fasilitas pembelajaran untuk wisatawan terutama anak sekolah untuk lebih mengenal sejarah dan konteksnya bagi surabaya. Selain itu, perlunya ahli konservasi dan arkeolog untuk menjaga kawasan itu tetap terjaga. Masalah utama yang dihadapi dalam perancangan ini adalah area edukasi yang perlu kontekstual dengan benteng-benteng dan alamnya dan alur sirkulasi antara bangunan baru, alur yang telah ada dan benteng.

Kedua masalah tersebut dapat diselesaikan dengan pendekatan ruang dengan place-based learning sebagai dasar kurikulum, an architecture of the seven karya Pallasma dan alur sirkulasi.

Studio 8 - 2023
Rhinoceros - Enscape - llustrator - Photoshop 2023
2023

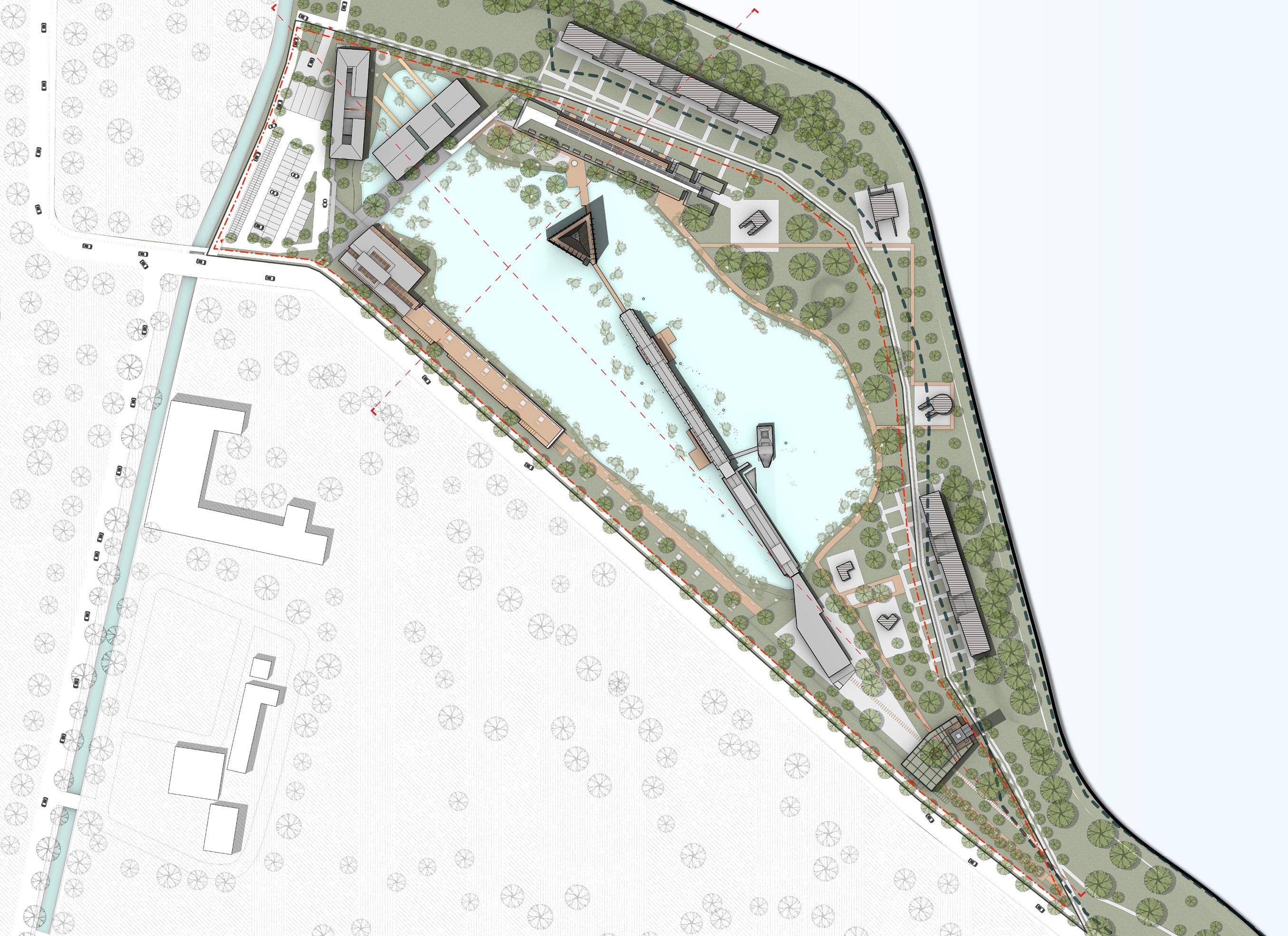
Lokasi tapak berada di jalan kedung cowek, Kedung cowek, Kecamatan Bulak, Kota Surabaya, Jawa timur dan merupakan lahan kosong. Tapak berada di Kawasan benteng kedung cowek yang berada dekat dengan jembatan suramada dengna jarak kurang lebih 260 m dan termasuk dari kawasan cagar budaya.

Rawa Tanah 22350 m2 27771 m2

Existing

8
Kawasan benteng kedung cowek berbentuk mememanjang dan memiliki 10 benteng yang tersebar di kawasan dengan jarak tempuh total kawasan sebesar 1.7 km Makro 1 2
49121
m2
Start/end
+10-30 menit 30-100 menit 10 menit
DESIGN APPROACH
GSP Bangunan Benteng Sawah Jembatan GSB Sungai
Jalur
trekking Jalur kaki
Data

Masa depan Atmosfir + sirkulasi

Komersial Komersial

Sekuens

Kedepannya akan ada perkembangan kawasan bisnis (gambar 3) pada sisi timur kawasan, maka diperlukan “sekuens” baru agar pengalaman berjalan dibenteng tidak terganggu dengan merubah jalan yang awalnya dilalui benteng sebagai pedestrian dan menambah alur baru di rawa.

9
start isolation knowing contemplative sharing* relax Relax discovery discovery discovery
Pasif (santai) Aktif (belajar) Aktif (perenungan) Sirkulasi utama Sirkulasi baru Pedestrian(buffer)
3 4
SATURASI l 2023
10
Objectifying
Contrast Hiding Solid-void
Konsep Massa
Plaza utama Dok rawa Dok benteng
Konsep Lanskap Zonasi
DESIGN APPROACH
Servis Publik Pendukung Edukasi
11
Lanskap & benteng Blok massa
SATURASI l 2023
Penyesuain

skala dan proporsi,

berat - transparansi

Pendekatan atmosfer melibatkan tujuh indera yang meliputi penglihatan, perasaan, pendengaran, penciuman, pengecap, serta gerakan fisik yang secara singkat dapat disebut sebagai pengalaman kinetik. Indera-indera tersebut memasuki memori dan berperan dalam membentuk pengalaman arsitektural. Untuk menciptakan atmosfer ruang yang tidak hanya dinikmati dalam satu dimensi, diperlukan intensi ruang dan massa yang kemudian diartikan menjadi kriteria berikut ini,

intensitas cahaya, orientasi ruang material

bentuk bukaanoritentasi

12
tekstur
1. Parkir 2. drop off 3. penerima 4. jembatan 5. pengantar 8. watchtower 9-12. memori b. pendukung c. loading dock d. servis e. cafe Legenda
3 d DESIGN APPROACH
Pendekatan
Kriteria Transformasi bentuk

Terdapat tujuh massa yang tersebar pada kawasan, dua diantaranya massa edukasi (pengantar dan memori) dua merupakan lobi publik (penerima dan watchtower) dan massa yang tersisa merupakan pendukung ( servis, pendukung, cafe). Masing-masing memiliki itensi dan pendekatannya tapi pada portofolio ini lebih difokuskan ke massa memori (8-12) yang merupakan salah satu massa utama selain pengantar yang bercerita tentang sejarah perang yang terjadi disini.

Sekuens

Parkir > drop off > lobby > transisi > pengantar > benteng >

watchtower > memori > transisi

Loading dock > servis > benteng / pendukung / lobby

Drop off > cafe / pendukung

watchtower > memori > transisi > benteng

13
5 8 b e SATURASI l 2023
14
1. Massa penerima 2. Massa pengantar 3. Massa watchtower 4. Massa memori 5. Massa 6. Massa
1 2 4 7 3 a a a a a a a b b b b b b b b 6 5 d c b 6 c d N N
plan
plan DESIGN OVERVIEW
7. Massa
Layout
Site
15
a. Benteng b. Plaza c. Parkir d. Loading dock
a a a a a a a 2 5 7 1 4 3 b b b b b b b b b SATURASI l 2023
Massa pendukung Massa servis Massa cafe

Perang itu sendiri kompleks dan memiliki sejarah yang panjang. Berbagai cerita dari skala besar seperti negara hingga yang lebih emosional, sisi keluarga dan sudut pandang pertama berusaha diceritakan agar memberikan konteks menyeluruh apa itu perang. Harapannya, perang tidak sekedar ditunjukan sebagai data melainkan sebagai pengalaman yang tidak boleh terjadi lagi. Maka dalam proses kurasi, massa memori dibagi lima yaitu :

16
Edukasi - massa memori Transformasi bentuk Propaganda Ultimatum Perang Evakuasi Kematian
1 2 c d e e d DESIGN APPROACH
Kematian

Pergerakan

Setelah proses kurasi cerita, maka d massa ditransformasikan sesuai dengan itensi ruang dan pergerakan ruang disamping dan diterapkan ke massa memori (transformasi 3).

Massa memori memiliki 2 aksis satu aksis utama yang merupakan jalur cerita dan kedua aksis tipuan yang memberikan itensi bingung di ruang perang (c)

Legenda

a. Ruang propaganda

b. Ruang ultimatum

c. Ruang perang

d. Ruang evakuasi

e. Ruang kematian

17
Perang Ultimatum Propaganda Evakuasi
3 a b c e d c c a b
c c b a SATURASI l 2023
e e 6 7
Tampak utara massa memori c c c c 1 2 3 4 5

a. Ruang propaganda

b. Ruang ultimatum

c. Ruang perang

d. Ruang evakuasi

e. Ruang kematian

Ruang ultimatum

pendengaran, kinetic

ruang memiliki denah yang berliku yang menyimbolkan bahwa perang memiliki banyak perspektif dan menyajikan propaganda dengan suasana ruang yang cenderung putih dan bersih.

Halus Cukup - Tinggi Solid Remang

Bidang dinding atas Interior plaster, kanvas kayu,

Keserakahan dari sekutu membuat perang terjadi, disini pengujung dipandu oleh cahaya ”harapan” serta suara radio yang menjadi penuntun dari area tersebut. Ruang dibuat menurun agar mensimbolkan sebuah harapan yang pupus.

Halus

Tinggi-lebar Solid

Terang-gelapIndoor Concrete

Tidak selamanya alur cerita berjalan lurus, terkadang ia harus berliku untuk mencapai tujuan. Pada ruang ketiga, cenderung dingin kasar dan depresi diekspresikan dengan pergerakan yang ditenggelamkan serta berliku dengan cahaya yang diatas menyimbolkan suatu harapan diatas massa. Pengunjung diajak memutar dengan adanya bubuk mesiu sebagai pandun dan menambahkan pengalaman ruang

Kasar Cukup - Tinggi Solid

Terang

Bidang atap Indoor Concrete

20
Legenda b a c c
Potongan a-a Ruang propaganda
visual,
visual, bau, kinetik, haptik visual, kinetic
Down DESIGN OVERVIEW
Ruang perang
a 1 3 4 b c Kriteria Kriteria Kriteria 2

Terpukul mundurnya pasukan bertahan menyebabkan warga mengevakuasi diri dari Surabaya. Disini rasa aman, hening coba diterapkan dengan instalasi yang lebih bercerita dari sisi kemanusiaan perang bukan tentang perang sebagai data melainkan cerita orang pahlawan dan keluarganya. Dengan bukaan dibawah serta ruang yang terdefinisi dari bidang dinding mencoba membuat pengujung berkontemplasi keluar mengenai pejuang yang sudah berkoban demi masa kini dan yang akan datang

Kriteria

Kasar

Sempit - Cukup Solid Terang

Bidang Dinding - bawah Indoor Kayu, kain

Gong terakhir untuk memperingati kematian 200 pasukan yang menghadang sekutu yang meninggal. Disini massa bersifat sakral dan dengan penciptaan ruang semisolid serta meninggi menciptakan itensi ringan dan aman.

Kriteria

Kasar Luas - Tinggi semi -Solid Terang

Bidang atap dan dinding Indoor Kayu

21
d e e
visual, pendengaran Ruang evakuasi Kematian
SATURASI l 2023
Masa lalu Masa depan Axis
5 6 7 d d e
visual, pergerakan, haptic

Sekuens

Pengunjung dapat mencapai kawasan dengan berjalan kaki atau naik kendarraan yang nantinya berkumpul; di suatu plaza terbuka sebelum mengalami sekuen tiap massa : massa penerima (2-4), jembatan, massa pengantar (5-8), menjelajahi benteng, masa watchtower(9-11), dan massa memori(12-13).

pada massa pengantar (5-7) menceritakan tentang kedung cowek melalui layer kota, negara dan benteng sebagai pengetauan awal sebelum menjelajahi benteng.

Materialitas

Massa menggunakan elemen kayu dan memiliki ukuran relatif lebih kecil dari benteng agar dapat melebur dengan sekitar dan menunjukan hirarki kepentingan yang disesuaikan dengan itensi desain.

22
1 2 4 3 5 6 DESIGN OVERVIEW
23 9 12 8 10 11 13 15 14 16 7 SATURASI l 2023
Legenda 2-4. Penerima 5-8. Pengantar 9-11. Watchtower 12-13. Memori 14.Cafe 15. Pendukung 16. Servis

Art Forest

Creative Space

Pada studio 6, mahasiswa ditugaskan untuk membangun bangunan publik (simbolik) yang sesuai dengan konteks Jalan Kertajaya, surabaya timur. Fungsi bangunan diharapkan sesuai dengan konteks kota , aktivitas, dan sejarah dengan mengikuti metode arsitek yang dipilih masing-masing mahasiswa (junya ishigami).

Site terletak di jalan kertajaya, dimana secara pemetaan dulunya merupakan daerah subur dengan sawah dan hutan. Seiring perkembangan kota, daerah kertajaya sekarang dipenuhi oleh bangunan untuk alasan ekonomi tanpa mempedulikan nilai ekologis, sejarah, seni. Seni di surabaya sendiri mulai berkembang dimana mulai bermunculan creative space meski hanya sedikit (3) dibanding dengan osaka yang memiliki 30 lebih galeri. Diharapkan dengan hadirnya Creative space di surabaya sebagai pengingat akan “hutan” yang mewakili nilai historis, alam dan menampung karya seni untuk surabaya yang akan datang.

Studio 6 - 2022 Kolaborator : Joyce Marcella Laurens
Rhinoceros - Enscape - lllustrator - Photoshop 2022

Borrowed scenery

Memanipulasi ruang dengan pengertian persepsi ruang pengujung*

Menghadirkan itensi alam

Memasukan sejarah, material bangunan , budaya ke dalam desain

Fenomena alam “hutan” diterjemahkan dalam suatu bentuk denah dengan bundar hitam mempresentasikan letak kolom (pohon) akan berada. Jarak antar kolom berkisar 8-12 tergantung dari beban struktur juga penggunaan pattern hexagon agar kesan hutan terasa.

26
借景 teori affordence* Shakkei
DESIGN APPROACH

Denah kolom diatas lalu di extrude dan dan denah di project pada bagian atapnya . Setelah itu di trim sehingga terdapat gap untuk cahaya matahari masuk dan ditambahkan atap kaca sebagai pelindung dari hujan nantinya. Agar bangunan tidak terkesan masif, jarak mata juga diperhitungkan dengan memakai derajat 14.

27
ART FOREST l 2022

Pelatakan karya seni sendiri dapat diatur sesuai dengan itensi pameran. Maka dari itu, pajangan (merah) dapat dilepas pasang dari atap dan pajangan (biru) berupa karya seni yang dapat diletakan di lantai.

28
Kombinasi Denah lantai 1 Legenda Lantai 1 Lantai 2 6. Mirrorforest 7. Lobby 8. Workshop 9. Servis 10. Parkir pegawai 1. Drop off 2. Basement entrance 3. Basement out 4.Taman
DESIGN OVERVIEW 1 1 1 4 1 1 6 7 7 7 8 9 10
5. Lobby
29
Potongan a-a ART FOREST l 2022
Instalasi

Sekuens

Pengunjung disambut oleh lobby yang terbuka dan melebur dengan ruang publik hijau dan memasuki instalasi “mirror forest’ “ (gambar 3) dimana ada permainan ilusi cermin ketika dari dalam ruang tetapi ketika berada di luar ruangan, ruang tersebut menjadi halaman tengah bagi “hutan” kolom pada bangunan.

30
1 2 3 4 5 DESIGN OVERVIEW

Sekuens

Terdapat workshop (gambar 6) dengan meja yang mengikuti pattern pohon sehingga dapat disesuaikan dengan jumlah orang dan lantai dua (gambar 7) juga terdapat galeri yang lebih membutuhkan suasana ruang yang tertutup

31 6 8 7
ART FOREST l 2022

SUB.ID

Mixed used Building

Studio 7 - 2023

Pada studio 7, untuk memberikan jiwa baru pada surabaya, terutama area surabaya tengah dimana kawasan ini memiliki potensi sejarah ,budaya dan dulunya merupakan pusat ekonomi . Kondisi kawasan sekarang mati selain akibat pemindahaan pelabuhan ke arah utara dan privatisasi bangunan bersejarah serta lahan publik membuat kawasan kehilangan jiwanya dan penduduk pergi ke tempat lain.

Maka dari itu, kami merencanakan perkembangan ke depan agar kawasan memilik tujuan yang jelas dan menjadi daerah yang baik dan berkelanjutan. Harapannya agar warga Surabaya bersedia untuk tetap tinggal di kawasan . Kawasan yang direncanakan dengan berbagai zona dan fasilitas , seperti zona ekonomi, budaya, tempat tinggal dan lainnya dengan kemudahan akses untuk menuju ke seluruh bagian kawasan.

Blok massa kawasan dibagi per murid untuk dikembangkan menjadi proyek individu dengan tetap mengikuti konsep utama kota berkelanjutan serta kesepakatan fungsi. Saya mendapat massa dengan fungsi ekonomi kreatif dan budaya dengan fasilitas untuk mendukung perkembangan ekonomi terutama anak muda yang akan tinggal disini.

designed to serve the flexibility of the various programs and activities it contains, hosting multiple scenarios. also Maintaining the history

Rhinoceros - Enscape - lllustrator - Photoshop 2023
Kevin L - Timothy P - Arief R - Vittorio H

Analisa

Daerah eropa khususnya di Surabaya Utara tidak berkembang seiring dengan perkembangan kota. Situs ini berada di simpul yang ramai, dikelilingi oleh institusi pendidikan dan desa untuk para pendatang, sumbu sungai yang kuat, banyak bangunan bersejarah dan transportasi umum tetapi tidak terintegrasi dengan baik.

Berbagai permasalahan seperti ruko modern yang tidak kontekstual, warga kampung informal di bantaran sungai, minimnya ruang publik, di sekitar tapak, tidak terhubung dengan alam, bangunan tua yang diprivatisasi dan yang terpenting, minimnya ruang lingkup manusia. hidup membuat penghuninya terus berpindah-pindah.

34
Linkage Fungsi Kevin lynch View luar-dalam
DESIGN APPROACH
View dalam-luar Aksesbilitas Sekitar

Konsep besar kawasan adalah menyatu dengan sejarah selagi menghidupkan kembali ekonomi dengan mengaktifkan jalan (kuning) serta sungai (biru) untuk dijadikan area yang ramah bagi publik dengan membangun kawasan dengan fasilitas yang menghormati sejarah kota serta berfokus ke ekonomi kreatif selagi menerapakan konsep kota berkelanjutan.

35
Konsep
SUBID l 2022
Konsep kawasan Sungai Jalan sejarah

Sesuai dengan analisis, blok kreatif dikhususkan untuk kantor sewa, UMKM, Co-working, aula, wisatawan dan hotel. Untuk blok perumahan, ada UMKM di lantai 1-2, walk cycle hub dan perumahan untuk kelas menengah.

Demolish Extrude

- Reuse

Zoning Axis /Shear

Transformasi bentuk

(gambar 1) Gedung Pertamina, bank dialihfungsikan menjadi hotel dan kafe. Bangunan ruko dibongkar dan rumah desa informal di lokasi tersebut dipindahkan ke tempat tinggal baru

(gambar 3) Area ini dirancang untuk pejalan kaki yang 90% tidak dapat diakses dengan mobil. Bloknya sendiri terbagi menjadi dua, yaitu blok kreatif di selatan dan blok perumahan di utara.

36
1 4 2 5 3 6 Parti
(gambar 2) Landmark dan bangunan cagar budaya menentukan sumbu dengan adaTaman dan alun-alun untuk menerima pejalan kaki yang datang dari node dan transportasi publik. Extrude/shear
Program ruang
DESIGN APPROACH

Bangunan baru (ungu) meskipun memiliki skala yang lebih tinggi

dari bangunan lama (putih), mencoba menerapkan kemunduran untuk bangunan tua dan skala manusia, mempertahankan sumbu yang memperkuat bangunan lama dan menambahkan taman di samping sebagai titik vital bagi pejalan kaki dan jiwa kawasan.

37
SUBID l 2022
Blok massa
38 DESIGN OVERVIEW

Tumbuh, berdiri, berkembang bersama kota. Menciptakan katalis bagi industri kreatif Surabaya dengan menerapkan ekologi, sejarah, dan manusia secara holistik di kawasan tua ekonomi Belanda. Dengan penambahan plaza pada sekitar kawasan serta pembukaan riverside dengan harapan kawasan dapat bertumbuh dan menjadi harapan bagi kota surabaya.

39
SUBID l 2022
Katalis

designed to serve the flexibility of the various programs and activities it contains, hosting multiple scenarios. also Maintaining the history

Dalam pengembangkan desain, suasana bangunan tua sekitar dipelajari dan diterapkan dengan sentuhan kontemporer agar menciptakan familiarity. Hal tersebut coba diterapkan pada fasade, ruang dan koridor tanpa mengganggu fleksiblitas program ruang pada bangunan. Harapannya, massa dapat menjadi katalis tanpa merusak atmosfir kota tua surabaya.

40
adjustment with program Final transformation
2 3 1
Transformasi bentuk
DESIGN APPROACH
Shear
41 SUBID l 2022
42
DESIGN OVERVIEW
Kantor instalasi pintu geser Museum maket kota video
43 Creative space bazaar tempat kumpul pameran catwalk SUBID l 2022

Legenda

44
1.Kios 2. Atrium 3. Lift 4. WC 5. Galeri 6. Sunken plaza 7. Kantor 8. Hall penerima 9. Perpustakaan 10. Museum 11. Tempat kumpul 12. Musshola 13. Tangga kebakaran
Denah lantai 1 1 1 1 1 1 1 1 1 DESIGN OVERVIEW 1 1 1 1 1 1 2 3 13 4 12 4 2 11 6 8 13
Potongan a-a
45
Denah lantai 2 Denah lantai 3 Denah lantai 4 Denah basement 9 10 1 1 1 1 1 1 1 1 11 1 1 1 1 10 10 10 10 10 10 10 10 10 3 13 4 12 4 13 SUBID l 2022 5 7 7 7 7 7 7 7 3 11 13 4 4 13 3 13 4 412 13
Potongan b-b

Massa berusaha menciptakan perasaan familiarity (gambar 1-3) dengan bangunan tua yang berada di sekitar dengan penciptakan arcade dengan permainan bata dari lantai satu sampai tiga dengan aksen kolom pada lantai atas .Penerapan setback dari jalan pejalan kaki untuk vegetasi yang sesuai dengan konsep besar kawasan

Massa memiliki 2 pintu masuk, satu merupakan pintu masuk kawasan (gambar 3) dengan taman untuk menerima pejalan kaki atau transporatsi publik yang mengarahkan ke plaza besar serta riverside kawasan. Pintu masuk ke massa creative (gambar 4) disambut oleh amphitheater yang dapat digunakan apabila terdapat acara dan dapat menikmati bangunan tua dari amhpitheater

46
familiarity 1 2 4 3 DESIGN OVERVIEW
47
7 6 5 8 9 10 11 12 SUBID l 2022
(gambar 5-7) terdapat galeri, museum serta perpustakaan untuk turis lokal maupun non lokal agar dapat menikmati sejarah surabaya. Lalu pada ruang di massa creative, suasana bangunan coba diterapkan di atrium dengan permanan skylight serta koridor-koridor kecil( gambar 8-11). Terdapat rooftop untuk tempat kumpul (gambar 12) untuk menikmati suasana sekitar dan digunakan untuk acara tertentu.

Kukila

Mixed used building

Semester 7 - 2023

Tema Archfest 2022 adalah Breathing buildings, yang mengharuskan bangunan bisa berdampak bagi lingkungan sekitar dengan berbagai macam pendekatan.

Site terletak di Jl. Raya Mastip, karangpilang ,Surabaya. Area tersebut terpilih karena berada dekat dengan area pabrik dan perumahan yang dibagian belakang site terdapat sungai, serta kualitas udara surabaya yang buruk selama 54% dari total hari per tahun sehingga breathing building dapat menjadi dampak positif.

Di sekitar site sendiri terdapat banyak pedagang kaki lima yang tidak beraturan serta kawasan karangpilang mulai bertumbuh dan mulai bermunculkan kantor-kantor. Oleh karena alasan diatas kami berusaha menyelesaikan masalah secara holistic dimana, Manusia, alam, dan hewan dapat menyatu. Fungsi bangunan merupakan area PKL dengan co-working space berada diatas dengan berbagai vegatasi baik untuk udara maupun. Bangunan dibuang memanjang dengan lengkungan untuk menangkap angin dan membiarkan beberapa lantai terbuka agar terjadi penghawaan silang.

Rhinoceros - Sketch Up - Enscape - lllustrator - Photoshop 2022
Brief

Bangunan dibuang memanjang dengan lengkungan untuk menangkap angin dan membiarkan beberapa lantai terbuka agar terjadi penghawaan silang

50
Bentuk disesuaikan dengan site Parkir Parkir Parkir
DESIGN APPROACH
Dipotong untuk aliran udara Ditekuk untuk menangkap angin Transformasi Bentuk Konteks Pendekatan
51 KUKILA l 2022 KUKILA l 2022
Zonasi
Site plan

Sistem filter angin menggunakan vegetasi dan yang nantinya disaring lagi oleh kain agar orang didalam ruangan mendapat udara bersih. Bangunan dinilai berhasil (udara disekitar mulai bersih) apabila jumlah populasi burung meningkat dan tinggal lalu mencari makan di bangunan. Pada lanskap, bagian belakang site, lantai 3 dan jembatan dibuat vegetasi yang menyaring udara serta pangan burung. Pada daerah Panggung dan jembatan diberi pembatas berupa tali atau vegetasi agar burung tidak merasa takut dan dapat hinggap meskipun ada manusia . Di atap massa bangunan juga terdapat rumah burung agar burung dapat tinggal.

52
DESIGN APPROACH Approach
53 KUKILA l 2022
54 DESIGN OVERVIEW
55 KUKILA l 2022

Archives & process Archives & process

“Archives and Process” bertujuan untuk menguraikan keseluruhan proses SB301 O ffi ce dalam meramu agenda Kammari sebagai sebuah kolektif. Lewat pameran ini, SB301 O ffi ce berupaya untuk menceritakan kembali Kammari dalam konteks Kota Lama Gresik kontemporer.

Saya masuk di proyek ini saat pertengahan pameran dikerjakan dan saya membantu membuat kebutuhan barang pameran seperti maket, editing foto, merchandise, serta beberapa kali merangkap menjadi panitia .

Dormitory refurbishment project

Tim :

Aryazopa Tjong

Johan Santoso

Tedy Shahidan

Fikri Izza

Proyek Renovasi Asrama Mahasiswa di Blitar, Jawa Timur, bertujuan untuk memperbarui bangunan berlantai tiga beserta fasilitas toilet/ laundry di lingkungan pesantren. Pembangunan akan dilakukan secara bertahap untuk meminimalkan gangguan terhadap penghuni santri putri. Struktur kokoh asrama dipertahankan, dengan kulit sekunder ditambahkan ke struktur sebelumnya untuk menciptakan tampilan baru dan memungkinkan interaksi. Hasilnya, bangunan ini diberi tampilan yang segar namun tetap praktis, memenuhi kebutuhan modern dengan tetap menghormati warisan strukturnya.

Di proyek ini saya membantu dari tahap awal (brainstorming, sketsa, 3d model) hingga skematik (render, pembuatan gambar skematik, render) dan proses pembuatan proposal untuk klien

Diinisiasi Oleh: SB301 Office, Kammari

Dewan Kurator: Fikri Izza, Nur baiti Khasanah, Advan Beryl

Diorganisir oleh Tujujati Artspace

Tim Pameran SB301 Offce: Fikri Izza, Nurbaiti Khasanah, Advan Beryl, Johan Santoso, Princess Griffith, Arya Eka, Satrio Seno, Aryazopa Tjong, Tedy Shahidan

56
PENGALAMAN
Tentang Peran Peran

project in east java & others

57 Architecture Portfolio of SB301 Office 2023 all rights reserved 2023 SB301 Office 129 300 FI TS A3 AT FIFI STUDENT DORMITORY 02 02 01 MATERIAL SCHEDULE 1. KABINET LANTAI DENGAN STRUKTUR KAYU SOLID TEBAL 24MM EX. AVIAN BOYO 600 JATI 2. KAYU MULTIPLPEK TEBAL 15MM DENGAN FINISHING CAT VERNISH KAYU EX. AVIAN BOYO 600 JATI AXONOMETRY F13 DIPAN STORAGE NTS 01 01 02 02 03 04 03 05 04 05 06 06 DETAIL OVERVIEW 04 exercising at the garden 06 washing clothes at the laundry area 08 washing hands at the toilet sink 01 going up and down the stairs 05 playing together at the garden 01 02 03 04 05 06 07 08 02 storing belonging in the dorm room 03 resting in the dorm room ACTIVITIES OVERVIEW 104 TSFI 860 40 40 2320 40 860 40 40 1120 40 410 40 1120 40 SECTION 01 ELEVATION PLAN 2. FASAD DENGAN PENUTUP FIBER GELOMBANG TRANSPARAN TEBAL 0.6MM EX. MULTILITE ROMA GREY 1:25 112 300 ARCHITECTURAL FI TS A3 AT FIFI STUDENT DORMITORY 956 05 RAILING 02 SECTION 07 05 1. BAJA PROFIL T UK. 10X10CM DENGAN FINISHING POWDER COATING PUTIH EX. JOTUN WHITE 118 SMOOTH GLOSS 2. PLAT BESI TEBAL 4MM LEBAR 100MM DENGAN FINISHING POWDER 3. PIPA BESI DIAMETER 1.5 INCI DENGAN FINISHING POWDER COATING PUTIH EX. JOTUN WHITE 118 SMOOTH GLOSS 4. SELING BAJA UK. 8MM 5. LANTAI EXPANDED METAL DENGAN FINISHING POWDER COATING PUTIH EX. JOTUN WHITE 118 SMOOTH GLOSS 6. RANGKA HOLLOW GALVANIS TEBAL 1.7MM UK. 4X6CM DAN SMOOTH GLOSS 7. FLOOR FLANGE PERSEGI UNTUK BAJA HOLLOW UK. 4X4CM F08 RAILING 02 1 : 10 127 300 SB301 FINAL SET ARCHITECTURAL FI TS A3 AT FIFI STUDENT DORMITORY 600 01 02 03 04 01 TABLE SINK TOP VIEW 01 TABLE SINK SECTION 01 1. WASTAFEL EX. TOTO TOJA CONSOLE LAVATORY 2. KRAN WASTAFEL EX. TOTO EA SINGLE LEVEL LAVATORY FAUCET 3. MEJA COR BETON TEBAL 10CM DENGAN FINISHING SEMEN EKSPOS 4. KACA CERMIN TEBAL 5MM F12 TABLE SINK 1:25 127 300 SB301 FINAL SET ARCHITECTURAL FI TS A3 AT FIFI STUDENT DORMITORY 01 02 03 04 01 TABLE SINK TOP VIEW 01 TABLE SINK SECTION 01 1. WASTAFEL EX. TOTO TOJA CONSOLE LAVATORY 2. KRAN WASTAFEL EX. TOTO EA SINGLE LEVEL LAVATORY FAUCET 3. MEJA COR BETON TEBAL 10CM DENGAN FINISHING SEMEN EKSPOS 4. KACA CERMIN TEBAL 5MM F12 TABLE SINK 1:25 138 300 SB301 FINAL SET ARCHITECTURAL FI TS A3 AT FIFI STUDENT DORMITORY 40 01 WATER FAUCET FRAME TOP VIEW 1. RANGKA SIKU GALVANIS UK.4X4CM TEBAL 1.2MM DENGAN FINISHING POWDER COATING PUTIH EX. JOTUN WHITE 118 SMOOTH GLOSS 02 WATER FAUCET FRAME SECTION 01 03 WATER FAUCET FRAME ELEVATION A F15 WATER FAUCET FRAME 1:25 FI TS A3 ATFI STUDENT 250 90 120 90 85 80 85 40 200 170 40 300 40 90 120 90 160 25 275 25 03 EX. AVIAN BOYO 600 JATI LAUNDRY BENCH TOP VIEW LAUNDRY BENCH PLAN LAUNDRY BENCH SECTION 01 F16 LAUNDRY BENCH 1:5
LAIN - LAIN l 2022-2023

Proyek renovasi Katedral di Surabaya, Jawa Timur, bertujuan untuk memberikan nuansa hangat dan memberikan aksentuasi baru tanpa merubah suasana yang sudah ada, pola jendela dijadikan inspirasi untuk penerapan pola plafon dan altar. Pemakaian elemen kayu dan marmer untuk memberikan kesan elegan serta permainan lampu yang mengaksentuasi altar dan plafon .

58
PENGALAMAN
Cathedral renovation

Kelas KKP Mojotrisno bertujuan untuk membantu desa untuk berkembang menjadi desa yang sesuai dengan jati dirinya. Kelompok kami ditugaskan untuk mencari potensi daerah untuk dikembangkan sebagai desa wisata seperti potensi makanan daerah, hasil pencaharian serta tempat untuk dijadikan pasar.

Lalu bangunan gazebo kami terpilih sebagai prototype bangunan bambu untuk memfasilitasi pasar yang nantinya akan bernama pasar barongan. Selain membangun, kami bersama komunitas sahabat bambu dan warga desa mengikuti workshop pembuatan bangunan dari bambu agar kedepannya desa dapat membangun sendiri.

59
Team : Altrerosje Asri, Bram Wayne, Aurelia Agraputri, Chriscentia Valerie P, Fabio Antonio, Evelyn Tania Kuliah kerja pelayanan*
LAIN - LAIN l 2022-2023 KKP
PORTOFOLIO BOOKSET 2023 THANK YOU Johansantoso937@gmail.com +62 811 347 0999

Turn static files into dynamic content formats.

Create a flipbook
Issuu converts static files into: digital portfolios, online yearbooks, online catalogs, digital photo albums and more. Sign up and create your flipbook.