Johanna Doerr Portfolio '23

Page 1

ARCHITECTURE PORTFOLIO

SELECTED WORK JOHANNA DOERR

THE SYMBIOTIC PATHS

LINES OF LOWELL MAKER SPACE

WRITERS THEATRE I PRECEDENT STUDY

BROOKLINE BOAT BUILDING SCHOOL

FARNSWORTH HOUSE I PRECEDENT STUDY

01 02 03 04 05
CONTENTS

THE SYMBIOTIC PATHS

01

THE TRUFFLE IS A WELL KNOWN PRODUCT OF THE ITALIAN REGION. IT GROWS UNDERGROUND AND IT IS A LUXURIZED ITEM THAT IS USED TO ADD FLAVOR TO MANY DISHES IN THE CULINARY WORLD. THE WHITE TRUFFLE SPECIFICALLY IS A HIGH END COMMODITY FOR PEOPLE OF A PARTICULAR STATUS TO ENJOY. IT IS SO OVER EXPLOITED, PROVING HOW THE ECONOMIC BENEFITS LEAD TO OVERLOOKING THE ECOLOGICAL PROCESS THE TRUFFLE UNDERTAKES, RESULTING IN A REJECTION AND DENIAL OF THE BEAUTY OF THE NATURAL PROCESS AND CARE FOR THE ENVIRONMENT.

HOWEVER, THERE IS A SMALL COMMUNITY IN THE MARCHE REGION KNOWN AS ACQUALOGNA THAT PROMOTES THE TRUFFLE IN MANY WAYS. NOT ONLY IS IT FOUND IN THE LOCAL DISHES BUT THERE IS A MUSEUM THAT PROVIDES AN INSIGHT INTO THE ECOLOGICAL GROWTH PROCESS OF THE TRUFFLE. IT HAS BECOME A TRUE REFERENCE POINT TO LOCAL PRODUCERS, OFFERING A RESPECTED AND WELL ESTABLISHED STAGE THANKS TO THE UNIQUENESS OF THE FUNGUS. SHOWING A DEEPER FOCUS ON HOW THE PROCESS OF TRUFFLE FARMING AND HUNTING WORKS AND THE INTRICACIES OF PROPERLY KNOWING HOW TO PROVIDE THE NECESSARY ENVIRONMENT FOR THE TRUFFLE TO GROW. THIS ALSO REFLECTS THE DEEP ROOTED IMPORTANCE OF THE TRUFFLE IN THE ACQUALAGNA COMMUNITY IN WHICH 1⁄3 OF THE POPULATION IS INVOLVED.

ACQUALOGNA IS A BUILT URBAN COMMUNITY THAT IS SURROUNDED BY A GREEN ENVIRONMENT, HOWEVER, ITS INTERIOR DOES NOT PROMOTE OR REAP THE ECOLOGICAL BENEFITS IT COULD BE. PETER DEL TREDICI, A WELL KNOWN BOTANIST AND AUTHOR, SPEAKS ABOUT THE WAYS OF FINDING THE INBETWEEN SPACE OF RURAL AND URBAN, DEFINING IT AS A SEEMINGLY DRASTIC DICHOTOMY. HE GOES INTO DEPTH ABOUT THE TERMS NATIVE, EXOTIC, OR NON-NATIVE AND HOW IT CREATES THIS DIVISION AND FAILS TO CAPTURE THE GRAY AREA IN THE MIDDLE.

IN THE SOCIAL ASPECT OF THE COMMUNITY THE TRUFFLE IS “NATIVE” HOWEVER IN REGARDS TO THE ECOLOGICAL FABRIC IT IS THE NON-NATIVE COMPONENT. THE GOAL WOULD BE TO FIND THE GRAY AREA IN THIS DICHOTOMY USING THE NATIVE PLANTS WITHIN THE INTERIOR URBAN PLAN TO PROMOTE A DEEP ROOTED FOCUS ON IMPLEMENTING A POSITIVE ENVIRONMENT FOR THE SOCIALLY KNOWN TRUFFLE TO THRIVE.

STUDIO 07

PROFESSOR SAMUEL MADDOX

FALL 2022 I STUDY ABROAD ITALY

MEDIUM USED RHINO 3D, ILLUSTRATOR & PHOTOSHOP

WITHIN THE SITE, THE RESEARCH CENTER PROMOTES EDUCATION FOR STUDENTS OF VARIOUS AGES TO COME AND LEARN THE NEED FOR ENVIRONMENTAL CARE NOT ONLY THROUGH THE CULTIVATION AND GARDENING STRATEGIES BUT THE BIOLOGICAL AND CHEMICAL UNDERSTANDING OF COMPONENTS FOUND WITHIN THE PLANTS THEMSELVES.

1 PRODUCT PRODUCTION 2 BATHROOMS 3 OFFICE SPACE 4 TREE NURSERY 5 FRONT DESK 6 CLASSROOMS 7
8
9
AREA 10
11
12
13
14
15
EDGING FLASHING WITH WATERPROOF MEMBRANE VAPOR CONTROL LAYER 2 LAYERS OF RIGID INSULATION SINGLE PLY MEMBRANE STRUCTURAL SOFFIT VAPOR CONTROL LAYER FASCIA SOFFIT COMPRESSABLE FIBER INSULATED CAVITY BARRIER CEILING FINISH PLASTER BOARD FLOOR PANEL GROUNDING CLAMP HEX BOLT BAND & PEDESTAL
BIOLOGY LABORATORY
CHEMISTRY LABORATORY
COMPOST
COMPOSTING DROP-OFF
STORAGE ROOM
CAFE
KITCHEN
OUTDOOR SEATING
PARKING

15

2 3 4 5 6 7

2 2

14 GROUND FLOOR PLAN I 1:8

7.3m THE ARCHITECTURAL SYSTEMS FOUND IN THE BUILDING ITSELF SPEAK TO THE DESIRE OF RESEMBLING THE ENVIRONMENT IN WHICH THE TRUFFLE IS FOUND AS WELL AS THE NECESSARY CARE IT NEEDS. WITH THE USE OF GLUE LAMINATED CONSTRUCTION ON A 16’ FOOT GRID ONLY FOR A SHIFT TO 8’ FOUND UPON THE EXTERIOR HALLWAYS TO RESEMBLE A “FOREST” FEELING THROUGH THE PASSING AND ENTRIES OF THE BUILDING. SPEAKING TO THE GRID SYSTEM FOUND THROUGHOUT THE URBAN DESIGN AND DECK DESIGN THERE IS A RAISED FLOOR SYSTEM THAT ALLOWS FOR AN UNDERFLOOR AIR CONDITIONING SYSTEM KNOWN AS UFAC TO TAKE PLACE. PROVIDING A LEVEL OF COHERENCY WITHIN THE GRID ON THE SITE AS WELL AS OFFERING AN ABILITY TO REGULATE DIFFERENT TEMPERATURE NEEDS IN THE DIFFERENT SPACES.

9 10 11 12 13 THE SYMBIOTIC PATHS 01

8

PRODUCTION LAB LABORATORY DROP-OFF
1 2
MM

LINES OF LOWELL MAKER SPACE

02

THE CURRENT ONLINE COMMUNITY IS GLOBAL IN REACH, HOWEVER HAVING A LOCAL PRESENCE, WHERE PEOPLE CAN DROP-IN AND WORK ON PROJECTS CAN BE QUITE IMPACTFULL. THE BUILDING IS TO SERVE, SUPPORT, AND PROMOTE THE CREATIVE ACT, ITS PROCESSES, AND IMPACTS THE SURROUNDING COMMUNITY. THIS WILL BE A PLACE WHERE PEOPLE EXCHANGE IDEAS AND DEVELOP NEW FORMS OF KNOWLEDGE THROUGH MAKING. THIS SITE IS IN LOWELL, MA IN THE DOWNTOWN AREA. LOWELL HAS EMERGED AS A CULTURAL CENTER, WITH MANY GENERATIONS OF IMMIGRANTS CONTRIBUTING TO THE VITALITY OF THE CITY. THE RIVERS WERE INCORPORATED INTO HISTORIC NATIONAL PARKS, AND STILL GENERATE SIGNIFICANT HYDRO-ELECTRIC POWER FOR THE REGION. MANY OF THE FORMER MILL BUILDINGS HAVE SINCE BEEN CONVERTED TO OTHER USES, INCLUDING HOUSING, LIVE-WORK ARTIST RESIDENCES, OR SMALL-SCALE SHOPS AND MANUFACTURING. THE PROJECT CONNECTS WITH THE SITE THROUGH VARIOUS EXISTING LINES WITHIN LOWELL THAT INTERSECT WITH EACH OTHER CREATING THE SHAPE OF THE MAKER SPACE.

THE STRUCTURE MADE WITH REINFORCED CONCRETE, STEEL, AND WOOD IS EMBEDDED INTO THE GROUND LEADING PEOPLE TO THE MAIN MAKER SPACE. THE HEAVY STEREOTOMIC MASS IS PIERCED BY A TECTONIC PIECE CREATING SHELTER AND GUIDANCE THROUGH THE SPACE. HAVING THE STRUCTURE EMBEDDED INTO THE GROUND ALLOWS THE MAKER SPACE TO BLEND INTO ITS SURROUNDING CREATING A COMFORTABLE AND WELCOMING SPACE FOR THE LOWELL COMMUNITY AS WELL ENTICING PEOPLE TO ENTER AND EXPERIENCE THE SPACE.

STUDIO 06

PROFESSOR IGNACIO CARDONA SUMMER 2022

MEDIUM USED RHINO 3D, ILLUSTRATOR, PHOTOSHOP, LAZOR CUTTING & MODEL MAKING

FORM CIRCULATION
LINES OF LOWELL MAKER SPACE 02 poured concrete rebar smooth gravel coping polyamide struts concrete aluminum slab edge cover 1 “insulating glass 5” 2 1/2” 12” 4 1/8” on site pured concrete rebar 2” rigid insulation sheating vapor barrier drywall 2” finsihing concrete radiant heataing tubes 2’ compact fill 2” rigid insulation vapor barrier joint tube steel beam joint region beam caple hung ceiling corrugated metal sheet
LINES
LOWELL MAKER SPACE 02
OF

WRITERS THEATRE I PRECEDENT STUDY 03

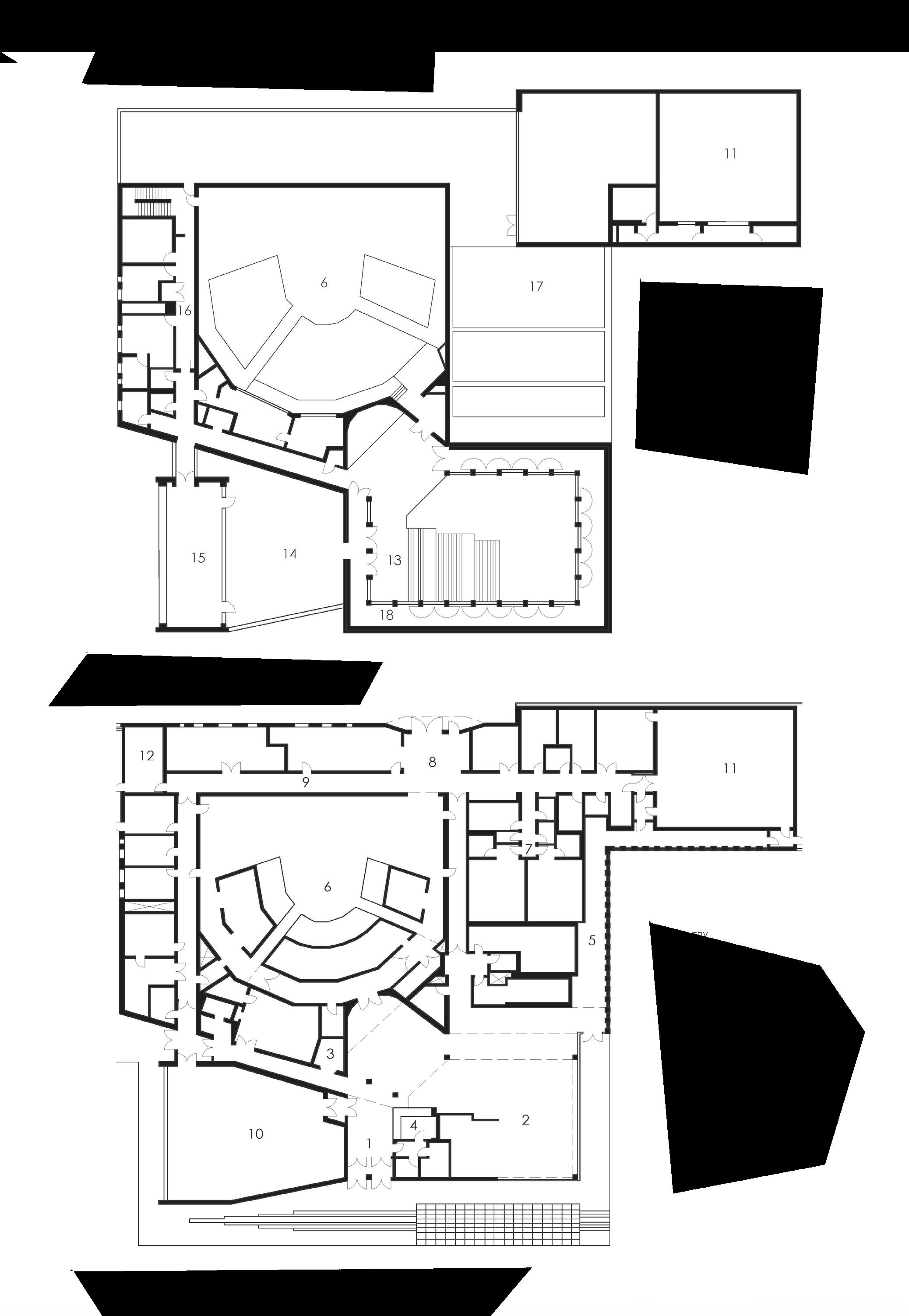
“CREATING AN ARCHITECTURE THAT ENERGIZED THE DAILY LIFE OF ITS COMMUNITY AND BECOMES AN EXCITING, REGION-WIDE CULTURAL DESTINATION” (STUDIO GANG).

ORGANIZED AS A VILLAGE-LIKE CLUSTER OF DISTINCT VOLUMES THAT SURROUND A CENTRAL HUB, THE BUILDING’S FORM RESONATES WITH THE CHARACTER OF GLENCOE’S DOWNTOWN. THE THEATER’S TWO PERFORMANCE SPACES—A MAIN STAGE AND A SMALLER BLACK BOX VENUE—EMPLOY INNOVATIVE STAGING AND SEATING CONFIGURATIONS TO MAXIMIZE THE SENSE OF INTIMACY BETWEEN ACTORS AND AUDIENCE AND TO ENHANCE THE IMMERSIVE EXPERIENCE OF WRITERS’ PRODUCTIONS.

THE BUILDING ENGAGES ITS CONTEXT THROUGH TRANSPARENT VISUAL CONNECTIONS AND IVY-COVERED BACKDROPS TO THE SURROUNDING PARKS.

IN FAIR WEATHER THE LOBBY CAN OPEN TO THE ADJACENT WOMEN’S LIBRARY CLUB PARK, ALLOWING THE ENERGY AND INTERACTION GENERATED WITHIN THE THEATER TO EXTEND OUTWARD INTO THE COMMUNITY BEYOND. AT NIGHT, THE THEATER GLOWS FROM WITHIN, DRAWING INTEREST AND ACTIVITY TO THIS IMPORTANT CIVIC AND CULTURAL ANCHOR.

STUDIO 04 PROFESSOR GLORIA CHANG SPRING 2021 I STUDY ABROAD AMSTERDAM

MEDIUM USED RHINO 3D, ILLUSTRATOR, PHOTOSHOP & ENSCAPE

1 ENTRY

LOBBY

COAT CHECK

CONCESSIONS

LIBRARY

250 SEAT THEATRE

PERFORMERS SUITE

LOADING DOCK

THEATRE BACK OF HOUSE

REHEARSAL ROOM

BLACK BOX THEATRE

GREEN ROOM

GALLERY

EVENT TERRACE

DONOR LOUNGE

OFFICES

GREEN ROOF

SECOND FLOOR PLAN
13
14
15
16
17
FIRST FLOOR PLAN
2
3
4
5
6
7
8
9
10
11
12

PERFORMANCE SPACES

PUBLIC SPACES

PRIVATE SPACES

WRITERS
03
THEATRE I PRECEDENT STUDY

BROOKLINE BOAT BUILDING SCHOOL

04 N

THE WOODEN BOAT BUILDING SCHOOL WOULD BE LOCATED IN A TOWN IN BROOKLINE MAINE. IT IS SITUATED ON A PENINSULA THAT JUSTS OUT INTO BLUE HILL BAY AND ACROSS EGGEMOGGIN REACH FROM LITTLE DEER ISLE.

IT’S A VERY LOW POPULATED TOWN WITH ONLY 857 PEOPLE AS 2020. THE TOWN IS VERY WELL KNOWN FOR HAVING A BOAT BUILDING SCHOOL THAT IS NEAR THE COAST LINE. THE STUDENTS THAT ATTEND RANGE FROM A VARIETY OF AGES; FROM YOUNG ADULTS TO SENIORS.

OF ALL THE THINGS CONSIDERED WHEN DESIGNING, AMONG THE MOST IMPORTANT ARE HOW ONE INTERACTS THROUGHOUT THE SPACES, AND THE TRANSITIONS BETWEWEN EACH SPACE.

IN ORDER TO FUFILL THE ESSENCE OF A WOODEN BOAT BUILDING SCHOOL; THE BUILDING INTEGRATES A SENSE OF CONNECTION BETWEEN SPACES.

A PUBLIC SPACE IS KEY TO THE HEALTH OF A COMMUNITY. WHILE PROVIDING THE FRONT PART OF THE BUILDING, LOCATED CLOSER TO THE STREET, AS A MORE COMMUNITY LEARNING SPACE IT CONTRIBUTES BY PROVIDING FRESH AIR AND THE OPPORTUNITY TO INTERACT WITH OTHERS WITHIN THE INTERIOR AND EXTERIOR OF THE BOAT BUILDING SCHOOL.

AS FOR THE BACK AREA, IT IS CONSIDERED THE BOAT MAKING SPACE, ALLOWING ONE TO FOCUS AND DETACH THEMSELVES FROM THE COMMUNITY LEARNING AREA TO START BUILDING BOATS.

BE SECTIONING OFF BOAT MAKING AND COMMUNITY LEARNING, IT THEN ALLOWS ONE TO INTERACT AND SHARE ONE’S IDEAS WITH OTHERS, CREATING A COMMUNITY WITHIN ITSELF.

STUDIO 03

PROFESSOR LORA KIM

FALL 2020 I STUDY ABROAD AMSTERDAM

MEDIUM USED RHINO 3D, ILLUSTRATOR, PHOTOSHOP & ENSCAPE

BRAINSTORMING FIRST ITERATION N N SOLID (EDUCATION) TRANSPARENCY (SOCIAL) A C N Boat Making Community Learning N N N SOLID
TRANSPARENCY
A B C N N
FIRST ITERATION N N N SOLID (EDUCATION) TRANSPARENCY (SOCIAL) A B C N Boat Making Community Learning boat making community learning
1 2 3 5 4 6 7 8 9 10 11 12
(EDUCATION)
(SOCIAL)
BRAINSTORMING
BRAINSTORMING

PROGRAM SEWING ROOM (500 SF), WOODSHOP (800 SF), WOOD STORAGE (200 SF), STUDIO SPACES (600 SF), BOAT BUILDING ROOM (1600 SF), LIBRARY (300 SF), PLANNING ROOM (200 SF)

PROGRAM SEWING ROOM (500 SF), WOODSHOP (800 SF), WOOD STORAGE (200 SF), STUDIO SPACES (600 SF), BOAT BUILDING ROOM (1600 SF), LIBRARY (300 SF), PLANNING ROOM (200 SF)

TRANSPARENCY (SOCIAL) - LOUD AREA

PROGRAM LOBBY (100 SF), GIFT/GEAR SHOP (400 SF), KITCHEN (500 SF), BATHROOMS (2) (200 SF)

FLOOR 1 2 3 4

1. Arrival Area/Lobby 2. Cafe 3. Library 4. Gift Shop 5. Bathrooms 6. Sewing Room 7. Drafting Room 8. Studios 9. Woodshop 10. Wood Storage 11. “Big Shed” Boat Building Room 12. Exterior Dining

200 100 50 0

12 1/8’’ = 1’0’’

5 6 7 8 9 10

11

5 11

FLOOR PLAN PRIVATE PUBLIC A B BROOKLINE BOAT BUILDING SCHOOL 04

4 5
7 8 9 10 5 11 1. Arrival Area/Lobby 2. Cafe 3. Library 4. Gift Shop 5. Bathrooms 6. Sewing Room 7. Drafting Room 8. Studios 9. Woodshop 10. Wood Storage 11. “Big Shed” Boat Building Room 12. Exterior Dining 12 11
PRIVATE PUBLIC
N A B C A B C N A B C C B A A B N A B C
2
6
FLOOR PLAN
A
SOLID (EDUCATION) - QUIT AREA TRANSPARENCY (SOCIAL) - LOUD AREA
A B C N A B C N A B C A B C N A B C C B A A N A B C
SOLID (EDUCATION) - QUIT AREA
PROGRAM LOBBY (100 SF), GIFT/GEAR SHOP (400 SF), KITCHEN (500 SF), BATHROOMS (2) (200 SF) PLAN 1 ARRIVAL AREA/LOBBY 2 CAFE 3 LIBRARY 4 GIFT SHOP 5 BATHROOMS 6 SEWING ROOM 7 DRAFTING ROOM 8 STUDIOS 9 WOODSHOP 10 WOOD STORAGE 11 BIG SHED BOAT BUILDING ROOM 12 EXTERIOR DINING

FARNSWORTH HOUSE I PRECEDENT STUDY

05

THE PRECEDENT STUDY IS FOR A THEORY THAT TRANSCENDS THE MOMENT AND SHOWS AN UNDERSTANDING OF ARCHITECTURE CAREFUL INSPECTION AND REVIEW OF BUILDINGS IS THE APPROACH FOR THIS QUEST. THE DESIRED OUTCOME IS THE DEVELOPMENT OF THEORY TO GENERATE IDEAS WITH WHICH ARCHITECTURAL DESIGN.

EXACTLY THAT IS WHAT WAS STUDIED BY MIES VAN DER ROHE’S FARNSWORTH HOUSE IN ILLINOIS. REDRAWING PLANS AND ELEVATIONS ALONG SIDE NON-PARIEL THAT WAS MADE OUT OF VELLUM PAPER AND WOOD.

STUDIO 02 PROFESSOR LIEM QUANG SPRING 2020

MEDIUM USED RHINO 3D, ILLUSTRATOR, PHOTOSHOP, VELLUM PAPER, & WOOD

FARNSWORTH HOUSE I PRECEDENT STUDY 05
I BOSTON, MA I DOERRJ@WIT.EDU I I +1 (203) 427 1199 I I WWW.LINKEDIN.COM/IN/JOHANNA-DOERR-777782202 I

Turn static files into dynamic content formats.

Create a flipbook
Issuu converts static files into: digital portfolios, online yearbooks, online catalogs, digital photo albums and more. Sign up and create your flipbook.