
CONTENTS
Pg 4-5: Resume
Pg 6-17: Riverside Library
Pg 18-29: The Greenhouse
Pg 30-41: JOURNEY
Pg 42-43: Basement Remodel
![]()

Pg 4-5: Resume
Pg 6-17: Riverside Library
Pg 18-29: The Greenhouse
Pg 30-41: JOURNEY
Pg 42-43: Basement Remodel
Third Year Architecture Student of the University of Kansas. Based in the Northern Virginia/Washington D.C. area.
Interested in leveraging design to meet sustainability with a focus on user experience.

M.ARCH PROGRAM:
University of Kansas
August 2022 - Current
• Dean’s List (2023-2024)
• Sigma Alpha Epsilon Fraternity
- Founding Father
• MASP Member
• KU Natural Ties Member
• InDesign
• Sketchup
• Illustrator
• Photoshop
• Enscape
West Springfield High School September 2018 - May 2022
• Varsity Cross Country (2018-2021)
• Winter Track (2019 - 2020)
• LifeTeen Catholic Youth Ministry (2018-2020)
• DECA Member (2020)
• Photography
• Sports
• Sketching
• Strength Training
SHANNON CRISS
Professor
University of Kansas scriss@ku.edu
THOM ALLEN
Professor
University of Kansas
t273a306@ku.edu
ERIC CUTHBERTSON General Manager EagleBank Arena
ericcuthbertson@yahoo.com
SERVER:
54 Restaurant
May 2024 - August 2024
• Expertise in taking orders, delivering food and beverages, and managing customer interactions with efficiency and a friendly demeanor.
• Proficient in greeting and seating guests, managing reservations, and maintaining a welcoming and orderly dining area.
Sohao Buffet
March 2024 - Current
• Proficient in greeting and seating guests, managing reservations, and maintaining a welcoming and orderly dining area.
• Expertise in taking orders, delivering beverages, and managing customer interactions with efficiency and a friendly demeanor.
Eaglebank Arena
December 2022 - June 2023
• Responsible for providing excellent customer service and ensuring the safety and security of guests, performers, and staff during events at Eagle Bank Arena.
• Requires working in a fastpaced, dynamic environment and handling multiple tasks simultaneously.
Cottontail Swim & Racquet Club
April 2021 - August 2022
• Supervised swimming activities and ensured that policies, guidelines, and safety procedures are followed.
• Warned swimmers of improper activities or danger and enforced pool regulations and water safety policies.
Chick-Fil-A
October 2020 - April 2021
• Performed guest service and food preparation duties.
• Greeted customers, took customer orders, and completed transactions on the cash register.
NOVA Parks
May 2018 - September 2019
• Assisted with the operation of facility by registering users, collecting fees, operating POS systems, selling merchandise and serving food and beverages.

February ‘24 Professor Shannon Criss Arch 209
Developing a coherent architectural project that demonstrates an understanding of design fundamentals, critical thinking, ordering systems, creative and productive processes, thoughtful and persuasive architectural representation and begin to demonstrate a technical understanding of buildings. The primary emphasis will be on the process of designing a building in an urban context. Special focus will be placed on the use of daylight and sustainable building principles.
Section through communal ground level

By dividing louder and quieter zones and strategically situating the coffeehouse, the open-air gateway facilitates seamless movement for visitors within the building

Located in the heart of Kansas City’s River Market district, Riverside Library serves as a welcoming retreat for visitors arriving from the nearby park, bustling River Market, and scenic Heritage Trail. Whether you’re strolling along the riverfront, exploring the market stalls, or walking through the historic trail, our library beckons with open arms, offering a sanctuary for all.





Being mindful of the surrounding historic buildings, I wanted to continue the theme of industrial design.
An aspect I wanted to capture was the linear movement from Main Street to the Heritage Trail. Creating scenic views and adding a sense of culture.
For those emerging from the verdant embrace of the park, Riverside Library stands as a beacon of intellectual curiosity, inviting you to continue your journey of discovery within our walls.
From the lively energy of the River Market, where the sights, sounds, and scents of local culture abound, Riverside Library provides a haven for those seeking respite from the hustle and bustle.
Joseph MacDonald
Multiple massing models were made with different intents to explore how the form sits in the surrounding environment.







Each model wanted to capture linear movement, extended living spaces, park connection, city market connection, and connection to the heritage trail.




After exploring the different massing studies, the programmed spaces were arranged in a form that best promoted functionality.
With an emphasis on extended living spaces, the form offers multiple gateways of entry. Inspired by the walkability of Kansas City, the gateways offer visitors to pass through the form.
With a private courtyard created from the gateways, angled axis’ are then cut to improve circulation.
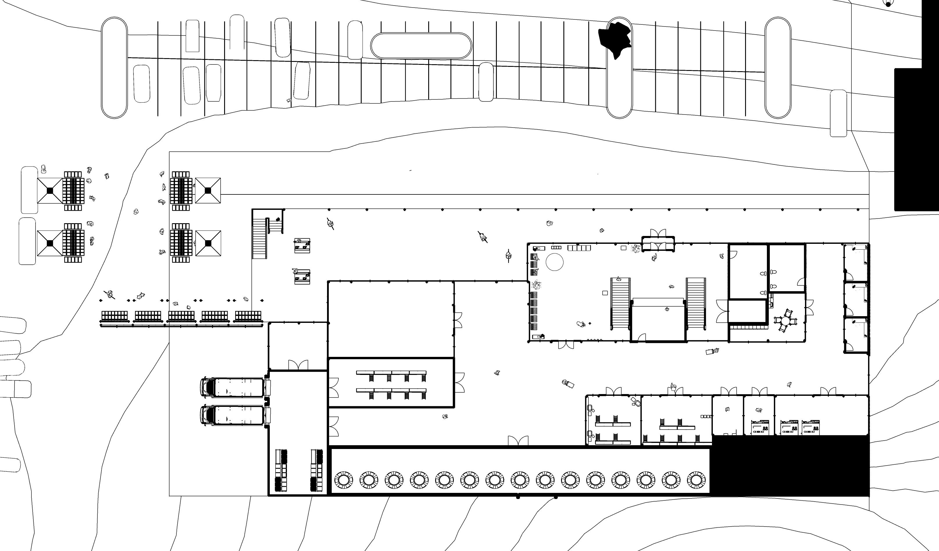
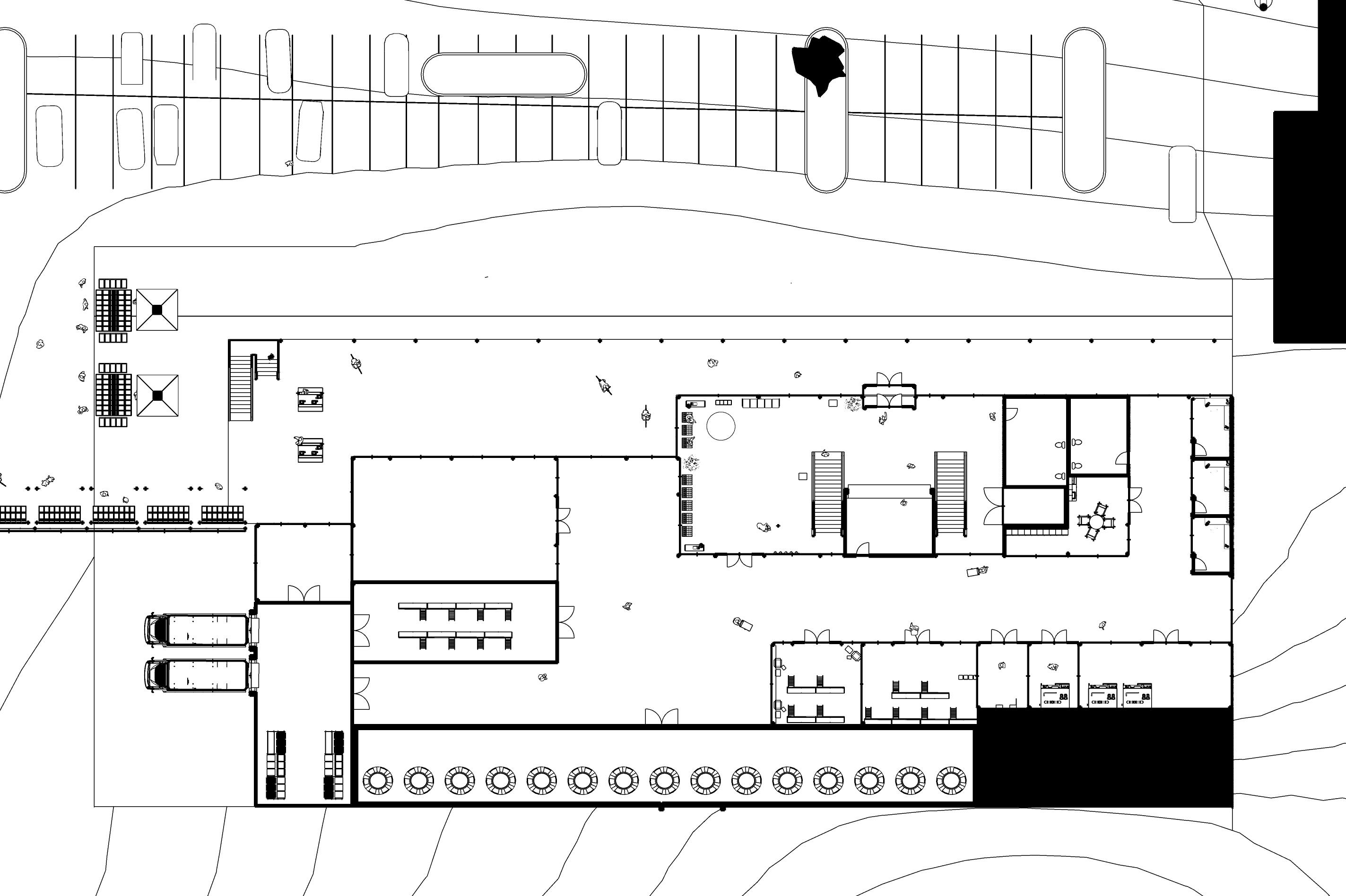
1. Auditorium
2. Computer Lab
3. Meeting Room
4. Audio/Recording Studio
5. Lobby
The second level is strategically arranged, with louder rooms positioned farther away from quieter spaces to minimize noise disturbance.
Roof elevations are designed to further distinguish these spaces by accommodating different noise levels.
The rooms are then strategically cut to define circulation pathways between spaces and entrances.
1. Adult Reading
2. Maker’s Space
4. Tween Reading

The linear movement is accentuated by the extended façade of the outdoor patio while showing circulation in and outside of the library.


As visitors exit the courtyard, they are enveloped by a sweeping view of the entire library, creating an immersive experience.

The lobby welcomes visitors with curated collections and invites young readers to the second level, where they can explore the children’s section.

URBAN FARM
Fall ‘23 Professor Todd Achelpohl
Arch 208 Minnesota Ave Kansas City, Kansas 66101
The objective of the Urban Farm project was to seamlessly integrate an environmentally conscious building into an urban landscape, prioritizing a minimal environmental footprint. Mandated to utilize lightweight steel and glass, the structure ingeniously incorporates aeroponic towers for a vertical farming approach. Critical functional zones, such as loading docks, processing rooms, and mechanical spaces, were strategically designated within the building. To maintain a transparent and engaging relationship with the public, the structure boasts a clear facade visible from the street, offering an inviting display of the innovative agricultural practices taking place within.

Kansas City, KS



The building is designed to optimize daylighting and harness solar, wind, and water energy, ensuring sustainability throughout the space.
Given the site’s context among residential and commercial buildings, it was essential to design the building as a space where the community can come together and share meaningful experiences.



1. Lobby
2. Front Office
3. Breakroom
4. Office (3x)
5. Staff Bathroom
Mechanical Room
Electrical Room 8. Technology Room
Seed & Nutrient Storage
General Storage
11. Water Filter/Storage
12. Refrigerated Storage
13. Processing Room
14. Hydraulic Lift Elevator
15. Shipping/Recieving




The building features a steel and glass structure with cable bracing, designed to maximize sunlight for the aeroponic towers and enhance photosynthesis. The building’s design was influenced by the University of Kansas’ Architecture Forum, where cable bracing and curtain walls play a defining role in shaping the space.




The building employs aeroponic towers to optimize space for plant growth, offering a more efficient alternative to traditional farming methods.

The building features an opening that floods the lobby with natural light upon arrival, while also providing sunlight to the aeroponic towers and other areas throughout the building.




The building is designed with sustainability in mind, incorporating resource reuse and recycling. It features a rainwater storage room where collected water is filtered and repurposed for the aeroponic towers and biofuel production. Additionally, the parking lot is equipped with wind turbines to harness energy.




The farmers market features a steel and glass wall that partially shields the importing trucks from public view while providing shade to the market area. Additionally, the wall is topped with solar panels and solar water pumps, which serve both as shading elements and sources of renewable energy.



A 1/4-inch scale study model was created to demonstrate the structure and visualize the layout. The model is divided into three pieces, allowing observers to examine each floor individually.

PAVILLION
January ‘24 Professor Shannon Criss
Arch 209
1594 N 3rd St, Lawrence, KS 66044
This project envisions an outdoor pavilion along the Kansas River, crafted to immerse visitors in the region’s natural beauty. The pavilion will serve as a serene retreat, designed to echo the narrative of its surroundings and offer a tranquil escape.



These models enhanced my comprehension of how various materials exhibit distinct structural and light properties. Through the exploration of light surfaces, I discovered the transformative effect of flipping the entire project, unveiling novel perspectives and generating unique light properties. The cube project, in particular, provided me with a fresh outlook on lighting, utilizing harsh contrasts from behind to alter perceptions. This experience broadened my understanding of manipulating both surrounding and interior lighting.






Through feedback and review, I gleaned that abstract elements captivate the eye more effectively. My intention was to craft a journey that, at first glance, appears intricately complex, enticing the viewer to delve in and explore the intricacies of the Journey.
My objective for this model was to steer of vertical elements, crafting a design that appears intricate yet maintains simplicity. composition consists of multiple components seamlessly integrated to give the illusion unified whole, despite being comprised parts.




steer clear that simplicity. The components illusion of a of distinct

Constructing a model with layered intricacies aimed at producing a discernible contrast. Strategically concealing the lower layers to accentuate the prominence of the uppermost layer, all the while guiding observers on a visually engaging journey to the summit.


The site was selected for its concealed beauty. Meandering through a trail of lifeless trees, my attention was captivated by a vibrant green clearing. This hidden pocket reveals an open field, basking in direct sunlight. The tranquility is enhanced by the enveloping density of trees, creating a hushed ambiance punctuated only by the melodic chirping of birds.






Northeast Section Showing View Upon Walking Into The Site.




The completed model is designed to mirror the experience of discovering the chosen site. A distinct opening with a sharp pathway symbolizes the journey through the dense arrangement, resembling the trek amid the dead trees. As one progresses, the entrance to the expansive grass field unfolds, with sunlight streaming in to provide a breathtaking view at the summit. The design aims to encapsulate the essence of the journey to the hidden site within its physical form.
Joseph MacDonald
SIGMA ALPHA
EPSILON BASEMENT
REMODEL
January ‘23 Sigma Alpha Epsilon
Return to Campus
1301 W Campus Rd, Lawrence, KS 66044

Sigma Alpha Epsilon was awarded its charter in the spring of my freshman year. To commemorate the occasion, I presented the national executive board members with a sketch of our house that I had drawn as a formal gift. Additionally, I leveraged my architecture class knowledge to redesign the fraternity’s basement, which had been empty prior to the remodel. I took the initiative to carefully analyze and define the spaces, ensuring a well-planned and functional design.

My plan was to subdivide the open room into smaller, distinct spaces, each designated for specific activities or designed to offer a view of ongoing activities.

I created three SketchUp models for my fraternity brothers to review, allowing them to vote on their preferred features and aspects. I was entrusted by our house corporation and was fortunate to receive $5,000 in funding to move forward with my plans.



Thank you.
Email: jayhawkjoe04@gmail.com
Phone: (571) 533-0003
linkedin.com/in/joeymac04