

PORTAFOLIO
Joe Santiago Pañahua Palomino

Topografía y desarrollo del distrito de San juan de Lurigancho.
Parte de una investigación acerca del distrito.
PERFIL

Soy un estudiante apasionado por la arquitectura, actualmente cursando el 8vo ciclo. Mi deseo de aprendizaje y habilidad para superar obstáculos me impulsan constantemente a lograr objetivos.
Con interés en el diseño arquitectónico, creando soluciones para los espacios, siempre teniendo en cuenta las necesidades de los usuarios, así como el respeto por el entorno. En cada proyecto en el que participo, me caracterizo por mi compromiso total, enfocándome en obtener resultados excepcionales. Mi capacidad de aprendizaje y mi habilidad para trabajar en equipo me permiten abordar los desafíos con determinación y eficiencia.
Considero que la responsabilidad y el interés en cada proyecto son fundamentales para lograr una arquitectura de calidad y significativa.
Mi objetivo es demostrar mis habilidades y conocimientos, siempre buscando asumir nuevos retos que me permitan crecer profesionalmente.
¡Estoy emocionado por seguir avanzando y plasmar mi visión en cada proyecto!
JOE SANTIAGO PAÑAHUA PALOMINO
15.03.2001
Educación:
Pregrado Arquitectura
UPC: Universidad Peruana de Ciencias Aplicadas
Diplomado de especialización BIM: Diseño y construcción.
Universidad de Ciencas y Artes de América Latina (UCAL)
Herramientas:
AutoCad:
SketchUp:
Photoshop:
Revit:
Illustrator:
Contacto:
Avanzado
Intermedio
Avanzado
Avanzado
Intermedio
Celular: 995 328 626 joespp15@gmail.com
CONTENIDO

Representación de vista aérea de Bayovar, San Juan de Lurigancho.
Parte de una investigación acerca del distrito.
CONTENIDO






Centro de Rehabilitación para niños con discapacidades visuales y auditivas
Taller VII
Semestre 2024-2
Centro de Visitantes en Barranco
Semestre 2022-2
Centro Cultural en La Punta
Taller V
Semestre 2021-1
Biblioteca en Santiago de Survo
Taller III
Semestre 2020-1
Vivienda - Taller en Miraflores
Taller II
Semestre 2019-2

1 VIVIENDA - TALLER EN MIRAFLORES
Después de haber analizado los lenguajes y estilos arquitectónicos que existen en el distrito de Miraflores, empezamos a desarrollar una maqueta conceptual, teniendo en consideración el estilo arquitectónico analizado, en este caso el Modernismo.

El concepto de esta maqueta se centró en tener continuidad en los planos, además de resaltar un color característico del estilo arquitectónico, que es el blanco, considerando variación de alturas y niveles y por último teniendo una composición simple.
De esta maqueta empezaron a salir las primeras maquetas volumétricas.


Después de muchas variaciones en el modelo, se empezó a tener el primer aproximamiento, el cual se iba consolidando. Al ir diseñando el la vivienda, se decidió por compartir este lenguaje con el terreno al lado derecho, brindando una plaza en la calle.



2 BIBLIOTECA EN SANTIAGO DE SURCO
De la mano de mi compañero Fabián Tamashiro, se diseña una biblioteca que cumple las distintas necesidades de los usuarios, brindándoles usos variables y actividades para desarrollar, además de solucionar y crear un recorrido eficiente.
En este proyecto se ha propuesto la inserción de cuatro bloques típicos que envuelven a un solo bloque atípico en el centro, con la finalidad de que este pueda distribuir a los usuarios a los ambientes principales sin que tengan que trasladarse innecesariamente.

Servido:
Los espacios de los bloques típicos están distribuidos en base a su funcionalidad. Espacios como los restaurantes y el auditorio cuentan con su propio bloque típico.


Servidor:
El bloque se plantea teniendo en cuenta que pueda distribuir a tres de los cuatro bloques atípicos a través de puentes de uso público y privado.
Cautivo:
El espacio cautivo está concentrado principalmente en los puentes, utilizados como conexión entre los bloques típicos y atípicos.


BIBLIOTECA EN SANTIAGO DE SURCO



MEDIATECA
1. Áreas de descanso
2. Mesas de trabajo
3. Áreas de estanterías de libros
4. Zona de lectura
5. Zona audiovisual
6. Terraza

Planta

CENTRO CULTURAL EN LA PUNTA
El proyecto es un centro cultural, pensado en ofrecer distintas actividades culturales para todo público, desde talleres hasta salas de exposiciones. El concepto del proyecto se basa en brindar área libre al lugar, sin ocupar todo el terreno con el edificio, esto para poder incentivar a la permanencia de las personas. Por otro lado, se crea un recorrido eficiente en el lugar, haciendo que el edificio no incomode, sino que brinde opciones para las personas. Conformado por dos bloques con grandes acristalamientos que ayudan a dar una sensación de ligereza, además que brindan conexiones visuales al mar.


Área Libre:
Brindar espacio para que se desarrollen actividades ajenas al edificio, además que inciten a la permanencia de los peatones.
Recorrido:
El edificio se situa en una ubicación que no afecte al recorrido de las personas, además que brinde opciones para que puedan elegir.






CENTRO DE VISITANTES EN BARRANCO

1. Primero se partió con un plano, teniendo en cuenta la superficie que no se encontraba en pendiente.
2. El plano se vuelve volumen definiendo la altura que tendría el edificio.
3. El volumen adapta formas a la topografía del lugar, para así situar los talleres o salas de exposiciones al exterior.
4. Para adaptar mucho mejor el volumen, el volumen toma una forma escalonada.
5. Una intención fuerte del edificio era que este tenga las circulaciones exteriores, escaleras que recorran el edificio de principio a fin y un ascensor que tenga vista hacia el edificio.
6. Como resultado, se obtiene un edificio imponente que se adapta a la pendiente del terreno y además que cuenta con una circulación marcada en la fachada.
El edificio es un centro cultural, este cuenta con un parque en la parte superior, que al ser visitado, oculta todo el edificio bajo tierra. El Centro de Visitantes en Barranco, cuenta con talleres de danza, talleres de cocina, cafetería, auditorio, entre otros. Todos los espacios se vuelven más interesantes al ir más abajo, todo esto posible gracias a la gran escalera exterior y los ascensores que brindan una mejor experiencia y visuales a todos los visitantes.

CENTRO DE VISITANTES EN BARRANCO




PLANTA NIVEL 1
PLANTA NIVEL -4
CORTE LONGITUDINAL
CORTE TRANSVERSAL

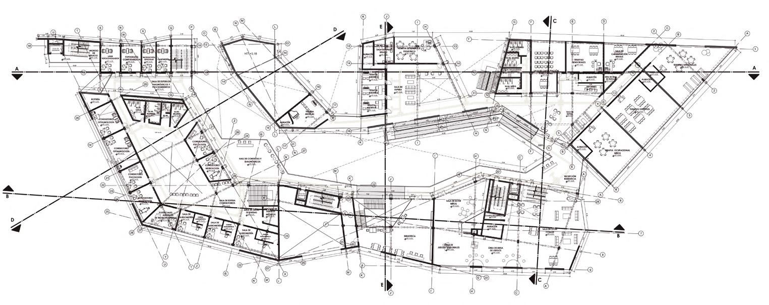
El proyecto busca diseñar un centro de rehabilitación para niños y jóvenes con discapacidades auditivas y visuales, combinando accesibilidad, funcionalidad y empatía. Su objetivo es ofrecer atención especializada que mejore su calidad de vida y fomente su desarrollo integral.
El Cobijo:
Para poder diseñar un edicio que pueda servir a niños con discapacidades visuales y auditivas, se busca ua toma de partida relacionada al usuario, por lo cual se centra en los dos tipos de comunicación que las personas con estas discapacidades utilizan, el Lenguaje de Señas y el Lenguaje Braille. El título del concepto “El Cobijo” nace por la intención de crear un centro de rehabilitación que además de brindar servicios, brinde protección y comodidad, como si estuviesen en su “Casa” u “Hogar”. Al traducir estas palabras al Lenguaje de señas y al Braille, se obtiene:
H O G A R

Una vez teniendo los dos pilares del concepto, se necesita bases de diseño, por lo cual se diseña un gráco que incluya estas dos palabras, con las que se relacionan signicados, dando inicio a la fase de diseño.
PROTECCIÓN

CONTINUIDAD UNIÓN




CASA






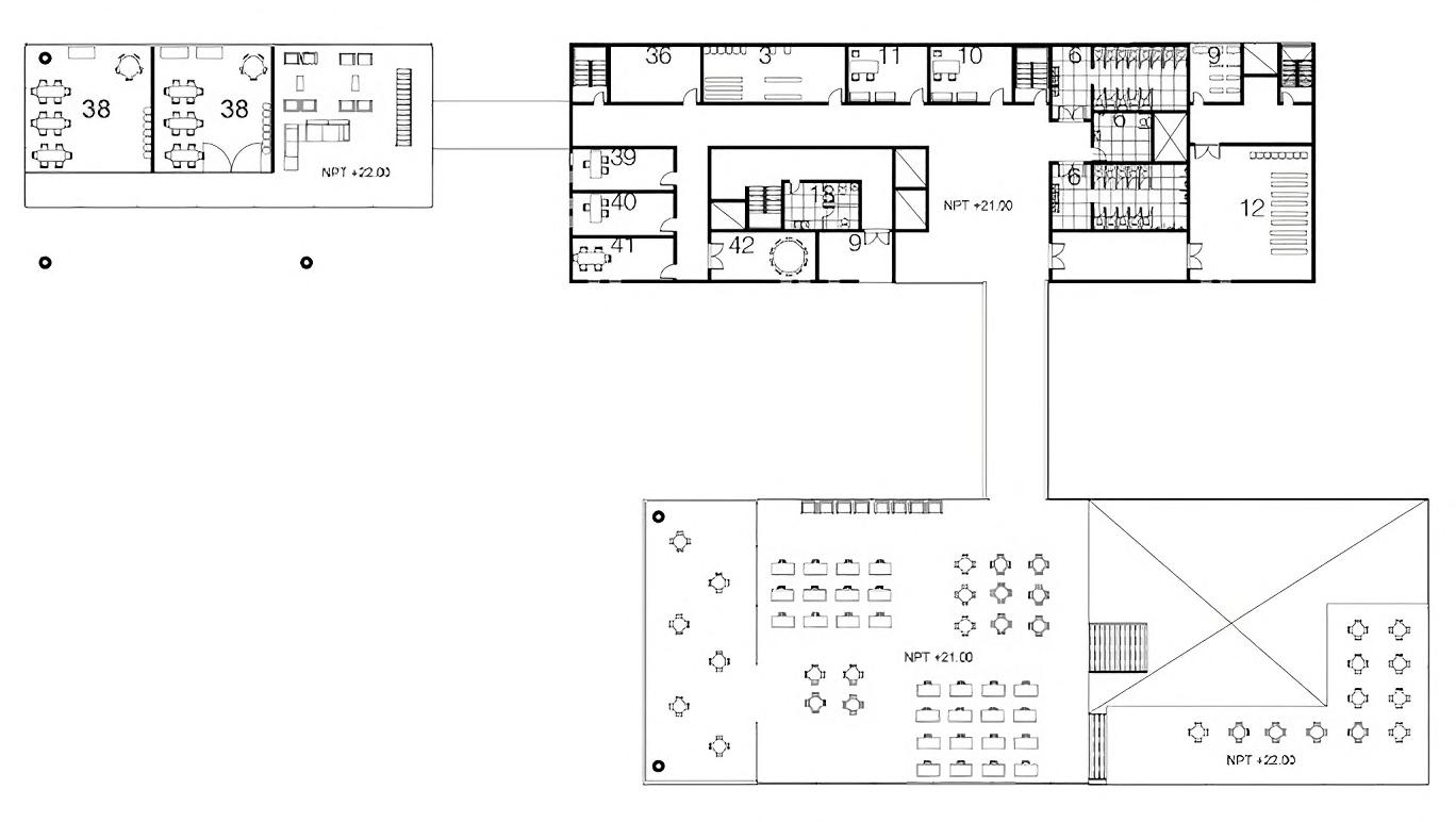
PLANTA PRIMER NIVEL
PLANTA SEGUNDO NIVEL
PLANTA TERCER NIVEL
PLANTA SÓTANO
PLANTA CUARTO NIVEL
PLANTA A DETALLE


DETALLE 1

ELEVACIÓN OESTE

ELEVACIÓN SUR


DETALLE 2
CORTE ESCANTILLÓN
DETALLE 3

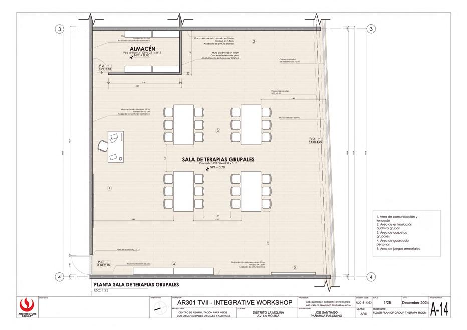
SALA DE JUEGOS SENSORIALES HALL DE TERAPIAS
MAQUETA
CORTE C - C

¡Gracias!