The Green Hill House

Page 1

TheGreenHillHouse

ApresentadoporPresentedby

TheGreenHillHouseéumexclusivoprojetochavenamãodeumamoradiadeluxonumalocalização privilegiada,naperiferiadosmaisconceituadosresortsnocentrodoAlgarve,comprivacidadegarantidamas comfácilacessoatodasascomodidades.

Commateriaiseequipamentosselecionadosdealtaqualidade,acasaestáinseridanumsingulareamplolote deterrenonavertentesuldeumacolinalocalizadaentreVilamouraeLoulé,commaisde37.000metros quadradosdeárea,oferecendoumavistaúnicaedesafogadasobreacostaalgarviaeoOceanoAtlântico. Oprojetoestátotalmentelicenciado,asobrasdeconstruçãopodemcomeçarimediatamente.

TheGreenHillhouseisanexclusiveturnkeyprojectofaluxuryvillaonaprimelocationintheoutskirtsofthe mostrenownedresortsofCentralAlgarve,withguaranteedprivacybutwithineasyaccesstoallamenities. Withselectedhigh-endmaterialsandequipment,thishouseisframedonasingularandlargeplotoflandon thesouthsideofahilllocatedbetweenVilamouraandLoulé,withmorethan37,000squaremeters,oferinga uniqueandunobstructedviewoverthecoastandtheAtlanticOcean.

Theprojectisfullylicensed,buildingworkscanstartimmediately.

Vilamoura ValedoLobo QuintadoLago AeroportoAirport TheGreenHillHouse

Privilegiaraprivacidadeemtodasasáreasdoimóveléumadasprincipaiscaracterísticasdeste exclusivoprojeto.

Apesardarelativaproximidadedealgunsvizinhos,alocalizaçãodacasafoiestrategicamentepensada paraaproveitaraomáximoavistapanorâmicamasprincipalmenteparapermitirumaposiçãoelevada sobreoutraspropriedades,garantindoassimamáximadiscriçãoetranquilidadenãosónointerior, mas–esobretudo–nasáreasexterioresdoimóvel.

Privilegingprivacyinallareasofthepropertyisoneofthemainfeaturesofthisexclusiveproject.

Despitetherelativeproximityofsomeneighbours,thelocationofthehousewasstrategicallydesigned tomakethemostofthepanoramicviewbutmainlytoallowanelevatedpositionoverotherproperties, thusensuringmaximumdiscretionandtranquilitynotonlyinside,but–andaboveall–intheexterior areasoftheproperty.

Áreadolote..................................37.462m2/3,74Ha

Áreadeconstrução

Interior......................................567m2

Zonasexteriores.......................255m2

Landarea.....................................37,462sqm/9,11Ac

Builtarea

Indoor........................................567sqm/6,103sq.t

Outdoor.....................................255sqm/2,745sq.t

.Pisosuperiorexclusivoparaoproprietário,master suitecomamplavarandaejacuzziexterior, escritório/biblioteca

.Pisotérreocomzonadeestarerefeições,cozinhae quatrosuites

.Pisoinferiorcomsaladejogos,ginásio,spa,adegae garagem

.Zonaexteriorcomamploterraço,barbecue,zonade refeições,sundeck,piscinainfinityejardim mediterrânico

.Upperlevelexclusiveforowner’squarters,master suitewithlargebalconyandprivatejacuzzi, ofice/library

.Groundlevelwithlounge&dining,kitchen,four ensuitedoublebedrooms

.Lowerlevelwithgamesroom,gym,spa,winecellar, garage

.Outdoorareawithlargeterrace,barbecue,diningarea, sundeck,infinitypool,mediterraneanrockgarden

Asáreasgenerosasnointeriordoimóveltraduzem-senummaiorconfortoeamplitudedeespaço, permitindointroduzirconceitosdiversosdemobiliárioedecoraçãoemdiferenteszonasdacasa.

Aformainteligentecomooprojetofoidesenhadopermiteinclusive,desdequenumafaseinicialdos trabalhosdeconstrução,alteraraconfiguraçãointeriordealgunsespaços,parareletirnaperfeiçãoasideias edesejosdosproprietários.

Estasalterações,emborasujeitasalicenciamento,nãoalteramacalendarizaçãodostrabalhos,umavezquea suaexecuçãopodedecorreremsimultâneocomoprocessodealterações.

Thelargeindoorareastranslateintogreatercomfortandspaciousness,allowingtheintroductionofdiferent conceptsoffurnitureanddecorationindiferentareasofthehouse.

Theintelligentwayinwhichtheprojectwasdesignedevenallows,fromanearlystageoftheconstruction work,tochangetheinteriorconfigurationofsomespaces,toperfectlyrelecttheideasandwishesofthe owners.

Thesealterations,althoughsubjecttolicensing,donotaltertheworkschedule,sincetheirexecutioncantake placesimultaneouslywiththealterationsprocess.

Acozinhaincorporamobiliárioemateriaisdealtaqualidade,equipamentosdegamasuperiorcomboa eficiênciaenergética,ebeneficiatambémdeespaçosamplosediferenciados,comumazonaderefeições maisinformaleumaáreaadjacentecomumamesaparajuntarafamíliaeamigosnaquelesjantaresmais especiais.

Odesign,mobiliárioetipodeequipamentospodemserconvenientementealterados,mesmoaténuma fasemaisadiantadadostrabalhosdeconstrução.

Thekitchenincorporateshighqualityfurnitureandmaterials,superiorequipmentwithgoodenergy eficiency,andalsobenefitsfromlargeanddiferentiatedspaces,withamoreinformaldiningareaandan adjacentareawithatabletogatherfamilyandfriendsforthosedinners.morespecial.

Thedesign,furnitureandtypeofequipmentcanbechangedconveniently,evenatalaterstageofthe constructionwork.

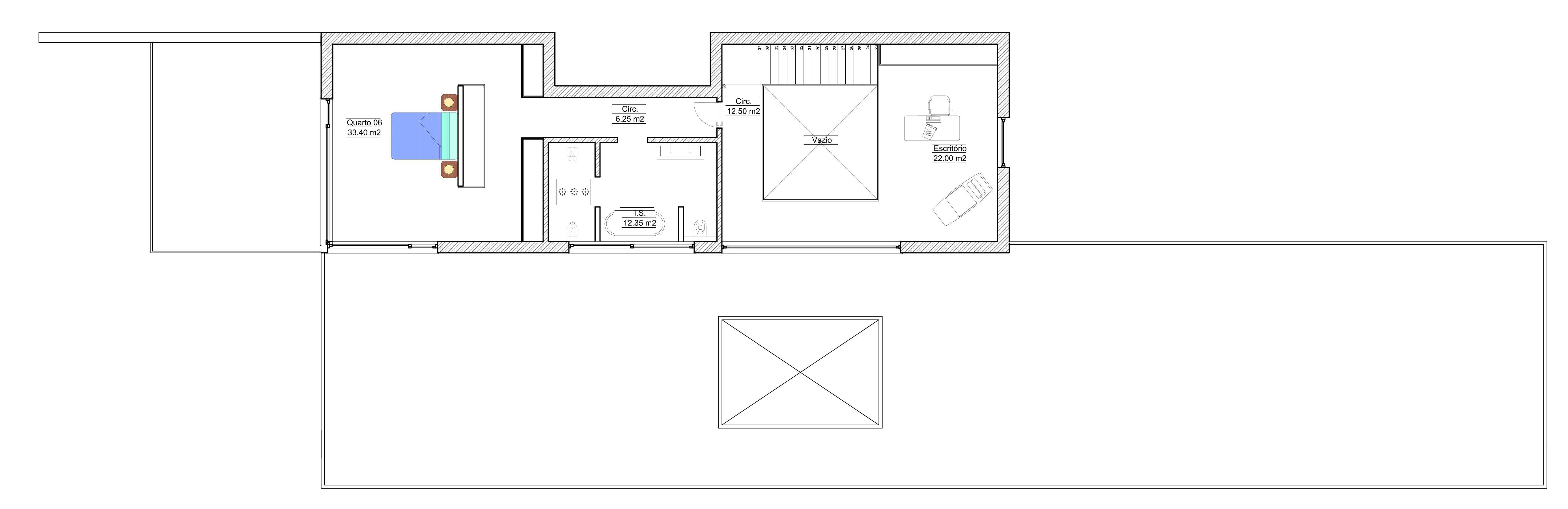
Opisosuperioréoespaçomaisexclusivodacasa,incorporandoumaelegantemastersuitecomcloset,umaamplacasa-de-banhocomducheebanheirafreestanding,um escritório/bibliotecaeumaespaçosavarandacomloungeexteriorejacuzziprivativo.

Theupperflooristhemostexclusiveareainthehouse,incorporatinganelegantmastersuitewithdressingroom,alargebathroomwithshowerandfreestandingbathtub,an office/libraryandaspaciousbalconywithanoutdoorloungeandprivatejacuzzi.

MapadeAcabamentosBuildingFinishesList

ESTRUTURASTRUCTURE

Estruturabetãoarmadocomdimensõesregulamentareselajesaligeiradas.Nacaveserãoexecutadosmurosperiféricosmaciçosdebetãoarmado.Lagede coberturaaligeiradade25cmcombetãode8cm,isolamentotérmicode10cmeduplateladeimpermeabilizaçãocomgodoerufometálico. Reinforcedconcretestructurewithregulardimensionsandlightenedslabs.Inthebasement,massiveperipheralwallsofreinforcedconcretewillbe built.25cmlightenedroofslabwith8cmconcrete,10cmthermalinsulaonanddoublewaterproofingsheetwithcobbleandmetallicflashing.

PAREDESWALLS

Paredesexterioresemblocotérmicode25cm,isolamentotérmicoemPoliesrenoexpandidode8cmcomacabamentoaargamassaincorporando armaduraemfibradevidroevernizdeproteção.Paredesinteriorescomblocoacúscode14cm,acabamentoemgessoprojectadopintadocomnta pláscapoCináquaouequivalente.Emalgunspanosdeparede,acabamentoempedranaturalderevesmento.

Exteriorwallsin25cmthermalblock,8cmexpandedpolystyrenethermalinsulaonwithmortarfinishincorporangfiberglassarmorandprotecve varnish.Interiorwallswith14cmacouscblock,projectedplasterfinishpaintedwithCináquatypeplascpaintorequivalent.Onsomewallcloths, naturalstonecladdingfinish.

CAIXILHARIASFRAMEWORKS

Caixilhariaemalumínioanodizadocomcortetérmico,decorrere/oubatente,marcaSosoaresouequivalente,gamapremium,emcoradefinir,lacada comvidroduplo8mmFloatGlassExtraCleanSunGuardSN51/28HT+8mmFloatGlassExtraClearcomcortetérmico;vãosdosquartoscomestores motorizadosinteriorespo“Blind”damarcaBandalux,comdayscreeneblackout,emcoradefinir;restantesvãoscomestoreselétricosinteriores dayscreen,emcoradefinir.

Opcional:estoresmotorizadosexteriores,emcoradefinir.

Frameinanodisedaluminumwiththermalcut,slidingand/orstop,Sosoaresbrandorequivalent,premiumrange,incolortobedefined,lacquered withdoubleglass8mmFloatGlassExtraCleanSunGuardSN51/28HT+8mmFloatGlassExtraClearwiththermalcut;roomspanswith“Blind”type motorizedinteriorblindsbyBandalux,withdayscreenandblackout,inacolortobedefined;remainingspanswithinteriordayscreenelectricblinds,in colortobedefined.

Oponal:externalmotorizedblinds,incolortobedefined.

PORTADEENTRADAENTRANCEDOOR

Portadesegurançapivotanteemchapadeaço,combloqueiodefechoemcincopontos,revesmentointerioreexterioremTrespa. Steelsheetpivongsecuritydoor,withfive-pointlocking,interiorandexteriorTrespacladding.

PAVIMENTOSINTERIORESINDOORFLOORS

PavimentocerâmicomarcaMarazziouequivalente,gamapremium,100x100,emcoradefinir.Opção(nãoalterapreço)depavimentoemcarvalho americanonosquartos.

CeramicflooringbrandMarazziorequivalent,premiumrange,100x100,incolortobedefined.Opon(doesnotchangeprice)ofAmericanoakflooring intherooms.

PAVIMENTOSEXTERIORESOUTDOORFLOORS

Pavimentocerâmicooupedradegamapremium,complementadocomdeckthermotratadodamarcaToscca. Premiumceramicorstoneflooring,complementedwithathermotreatedTosccadeck.

CARPINTARIASCARPENTRYFIXTURES

PortasalveolaresemMDFcomarosemmadeiramaciça,lacadas,comacessórioseminox;Roupeiroscom1módulodegavetas,varãoemaçoinox,com portasemMDFlacadoeinterioremmelamina;RodapéemMDFlacado;ApaineladosdasjanelasemMDFhidrófugolacado;MóveisdeWCsuspensos emMDFlacadosaaltobrilhocomtamposemcorian.

HoneycombdoorsinMDFwithsolidwoodframes,lacquered,withstainlesssteelaccessories;Wardrobeswith1drawermodule,stainlesssteelrail, withlacqueredMDFdoorsandmelamineinterior;LacqueredMDFbaseboard;Windowpanelinginwater-repellentlacqueredMDF;Inthebathrooms, high-glosslacqueredMDFsuspendedfurniturewithcoriantops.

TETOSCEILINGS

(Interiores)Tectofalsoemgessocartonadode13mmhidrófugo,comisolamentotermoacúsco; (Terraçosexteriores)PerfilmadeiraTrespaousimilar.

(Indoor)Suspended13mmwaterproofplasterboard,withthermoacouscinsulaon; (Exteriorterraces)Trespawoodprofileorsimilar.

COZINHAKITCHEN

Blocossuperioreseinferioresemmelaminacorbrancaououtra,acabamentomate;TamposemCorianoumármorepolido;MisturadorasdamarcaFranke ousimilar;ElectrodoméscosdamarcaSiemens,gamapremium,ousimilar(placainduçãocomsistemadeexaustão,micro-ondas,forno,frigoríficovercal, congeladorvercal,máquinacafé,winefridge).

Upperandlowercabinetsinmelanine,whiteorothercolor,mafinish;TopsinCorianorpolishedmarble;Frankebrandmixersorsimilar;Siemensbranded appliances,premiumrange,orsimilar(induconhobwithexhaustsystem,microwave,oven,vercalfridge,vercalfreezer,coffeemachine,winefridge).

INSTALAÇÕESSANITÁRIASBAHTROOMS

EquipamentossuspensosVilleroy&Boch,gamapremium;Lavatórioscomtamposemcorianoumármorepolido; MisturadorasdamarcaFrankeousimilar;RevesmentodeparedescerâmicomarcaMarazziouequivalente,gamapremium,dimensõesvariáveis,em coradefinir;BasesdeducheemCorianan-derrapanteeguardaemvidrolaminadofoscooutranslúcido.

Villeroy&Bochsuspendedequipment,premiumrange;Washbasinswithtopsincorianorpolishedmarble; Frankebrandmixersorsimilar;CeramicwallcladdingbrandMarazziorequivalent,premiumrange,variabledimensions,incolortobedefined;Shower basesinnon-slipCorianandguardinfrostedortranslucentlaminatedglass.

ELETRICIDADEESOLUÇÕESDECLIMATIZAÇÃO/AQUECIMENTOELECTRICITY&HEATING/COOLINGSOLUTIONS

PaineisfotovoltaicosmonocristalinosLGSolarouequivalente,cominversorDC/ACebateriaacumuladora;AparelhagemdemanobradamarcaEfapel, gamapremium;Quadroeléctricoprincipalnorés-do-chãoeparcialemcadaumdosrestantespisos,comincorporação/conexãoparasistemade domócaeCCTV.

LGSolarmonocrystallinephotovoltaicpanelsorequivalent,withDC/ACinverterandaccumulatorbaery;Efapelbrandswitchingequipment,premium range;Mainelectricalpanelonthegroundfloorandparaloneachoftheremainingfloors,withincorporaon/conneconforhomeautomaonand CCTVsystem.

Sistemadearcondicionadocentral,marcaDaikinouequivalente,comchillerexteriordealtaperformance,comtecnologiadecontrolointeligentee purificaçãodear;Sistemadepisoradiantehidráulicoparaaquecimento/arrefecimentodopavimentocombombadecalor;Painéissolaresparaáguas quentessanitáriascombombadecalorauxiliaredepósitocilíndricodealtacapacidade.

Centralaircondioningsystem,Daikinbrandorequivalent,withhighperformanceoutdoorchiller,withintelligentcontroltechnologyandair purificaon;Hydraulicunderfloorheang/coolingsystemwithheatpump;Solarpanelsfordomeschotwaterwithauxiliaryheatpumpandhighcapacitycylindricaltank.

DOMÓTICAHOMEAUTOMATIONSYSTEM

SistemaTeldakousimilarcomwalltabletseappmóvel;integraçãomodularparacontrolodeclimazação,iluminação,motorizações,acessibilidadeeCCTV. Teldaksystemorsimilarwithwalltabletsandmobileapp;modularintegraonforclimatecontrol,lighng,engines,accessibilityandCCTV.

SPAEJACUZZIMASTERSUITESPA&MASTERSUITEJACUZZI

Spa:CombiSaunaeBanhoTurcoAG-M1388TurcoBemmadeiraHemlockeCalorífero6Kw(Sauna),GeradordeVapor3KweChuveiroTropical(Sauna), JacuzziJ-200gamapremium;TerraçoMasterSuite:JacuzziJ-300,gamapremium.

Spa:CombiSaunaandSteamBathAG-M1388TurcoBinHemlockwoodand6KwHeater(Sauna),3KwSteamGeneratorandTropicalShower(Steam Bath),JacuzziJ-200premiumrange;MasterSuiteTerrace:J-300Jacuzzi,premiumrange.

PISCINASWIMMINGPOOL

EstruturapoInfinitycomtanquedecompensação,sistemadebombagemefiltragemAstralpool; (Envolvente)Pavimentocerâmicooupedradegamapremium;RevesmentoparedesefundoemcerâmicoEzarriouequivalente;Bombadecalor Daikin,gamapremium

Infinitytypestructurewithcompensaontank,Astralpoolpumpingandfilteringsystem; (Surroundingarea)Ceramicorstoneflooringofpremiumrange;WallandboomcladdinginEzarriceramicorequivalent;Daikinheatpump,premium range.

PORTÃODEENTRADAEVEDAÇÃOENTRANCEGATE&FENCE

Portãomotorizadoemestruturadeaçogalvanizado,revesmentoemmadeiraTrespaousimilar,motorizaçãoeacessóriosDEA;Murofrontalem pedra,instalaçãoAlgarCava,vedaçãoempainelmetálicoVedaCercaNyolofor3D(noperímetrodacasa).

Motorizedgateingalvanizedsteelstructure,Trespaorsimilarwoodcladding,motorizaonandDEAaccessories;Frontstonewall,AlgarCava installaon,VedaCercaNyolofor3Dmetalpanelfence(ontheperimeterofthehouse).

JARDIMETERRENOENVOLVENTEGARDEN&SURROUNDINGLAND

ZonasajardinadascomrelvanaturalPlantoxeplantasadefinir;Jardimmediterrâniconoperímetroenvolventedamoradiacomárvoreseplantasa definir;Murosdesuportedejardimmediterrânicoempedra,instalaçãoAlgarCava. GardenwithnaturalPlantoxgrassandotherplantstobedefined;Mediterraneangardensurroundingthevilla,withtreesandplantstobedefined; Stonewallsforthemediterraneangarden,AlgarCavainstallaon.

Informação:Equipamentos,estruturas,instalaçõese/outrabalhosaquinãodescritosouespecificamenterequeridospelocompradornão estãoincluídosnovalordevendadoimóvelesãoobjetodeorçamentaçãoemseparado,sujeitaaanáliseeaprovaçãodocomprador.

Informaon:Equipment,structures,installaonsand/orworksnotdescribedhereorspecificallyrequiredbythebuyerarenotincludedin thesalepriceofthepropertyandaresubjecttoseparatebudgeng,subjecttoanalysisandapprovalbythebuyer.

Umpisoexclusivoparaoproprietário,privilegiandoáreasgenerosasemuitaluznatural,paraalémdebeneficiardeumaincrívelvistapanorâmica. Anexclusivefloorfortheowner,favoringgenerousareasandplentyofnaturallight,inadditiontobenefitingfromanincrediblepanoramicview.

PisosuperiorUpperloor
EscritórioOffice Mastersuite TerraçoBalcony TerraçoBalcony

PisotérreoGroundloor Umaconfiguraçãointeligenteefluídaquecombinanaperfeiçãoazonamaissocialcomaáreaprivativadosquartos.Podeseralteradaapedido. Anintelligentandfluidconfigurationthatperfectlycombinesthesocial/livingareawiththeprivateareaofthebedrooms.Canbechangeduponrequest.

QuartoBedroomQuartoBedroomQuartoBedroom
SaladejantarDiningroom CozinhaKitchen SaladeestarLivingroom TerraçoTerrace TerraçoTerrace
QuartoBedroom

PisoinferiorLowerloor

Estepisopodeseralteradoapedido,acrescentandoporexemplomaisumquartocomluznatural,umasaladecinema,zonadeestar,etc. Thisfloorcanbechangeduponrequest,adding,forexample,anotherbedroomwithnaturallight,acinemaroom,alivingroom,etc.

GaragemGarage ArrumosStorage SalajogosGamesroom GinásioGym AdegaWinecellar

Turn static files into dynamic content formats.

Create a flipbook
Issuu converts static files into: digital portfolios, online yearbooks, online catalogs, digital photo albums and more. Sign up and create your flipbook.
The Green Hill House by joaoferrodias - Issuu