PORTIFÓLIO ARQUITETURA
URBANISMO


![]()


Data de nascimento: 12/09/1996, 28 anos
Endereço: Rua Doutor Antônio Alvares Lobo, 398 - Campinas, SP
Telefone: (19) 9 9152-2808
Email: joao.gralmeida@gmail.com
Doutorado em Arquitetura, Tecnologia e Cidade - linha: Cidade: Planejamento e Projeto Urbano - Universidade Estadual de Campinas - Unicamp (2025 - )
Mestrado em Arquitetura e Urbanismo - Grupo Requalificação Urbana - Bolsista CAPESPontifícia Universidade Católica de Campinas (2021 - 2023)
Especialização em Habitação de Interesse Social e Assistência técnica - Pontifícia Universidade Católica de Campinas (2020 - 2021)
Graduação em Arquitetura e Urbanismo - Pontifícia Universidade Católica de Campinas (2014 - 2019)
Intercâmbio Acadêmico - Escola de Arquitetura e Urbanismo, Universidade de Valparaíso, Valparaíso, Chile (2018)
Cargo: Professor Tutor de Arquitetura e Urbanismo semipresencial noturno
Período 07/2023 – 12/2024
Atividades: Aplicação de conteúdo de diversas disciplinas do curso de Arquitetura e Urbanismo, aplicação de atividades práticas e exercícios, auxilio no desenvolvimento de projetos arquitetônicos dos estudantes
Cargo: Arquiteto projetista
Período 02/2023 – 11/2024
Atividades: Desenvolvimento de desenhos técnicos de arquitetura em diferentes fases de projeto: desde Estudo Preliminar, Anteprojeto e Executivo de projetos residenciais e de interiores, planilhas de orçamentos e de programação de obra e desenvolvimento de desenhos para aprovação em prefeituras e condomínios habitacionais, elaboração de projetos de marcenaria, marmoraria e serralheria- softwares: Autocad, SketchUp, Revit, Microsoft Office
Modo Engenharia e Design - São Paulo, SP
Cargo: Arquiteto projetista
Período 06/2022 – 12/2022
Atividades: Desenvolvimento de projetos arquitetônicos residenciais, escolas, edifícios habitacionais e industriais em BIM pelo software Revit Compatibilização com demais disciplinas da construção civil como elétrica, hidráulica e estrutural e desenvolvimento de projetos de legalização de edifícios em órgãos públicos Etapas: Projeto Básico, Legalização e Executivo
Softwares: Revit, Autocad, Microsoft Office
Vila Brasil Arquitetura e Design/Rodrigo Vilas Boas - Campinas, SP
Cargo: Arquiteto projetista
Período 11/2020 – 06/2022
Principais atividades: Desenvolvimento de desenhos de Projetos de Arquitetura em diferentes fases: Anteprojeto, Projeto Básico, Projeto Legal de aprovação em prefeitura e condomínios e Projeto Executivo em software Revit Experiencia em Revit, Sketchup, Layout, Pacote Office, Adobe Photoshop
Brique Arquitetura - Campinas, SP
Cargo: Arquiteto projetista
Período 2021- 2022
Principais atividades: Criação e concepção de arquitetura em projeto de reforma e ampliação de residência.
Projeto realizado em parceria com arquiteto Fábio Garcia
Regra Mobiliario Corporativo - Campinas, SP
Cargo: Estagiário e Freelancer
Período 02/2019 – 11/2019 |02/2020 - 03/2020
Principais atividades: Desenvolvimento de orçamentos comerciais de produtos e de layout de ambientes corporativos Experiência em Autocad, Sketchup, Pacote Office, Adobe Photoshop
Autocad - Avançado
SketchUp - Avançado
Layout - Avançado
Revit - Intermediário
Pacote Office - Avançado
Adobe Photoshop - Intermediário
Adobe InDesign - Intermediário
QGis - Básico
Cartografias: Reflexões e Prática - IAB RJ (2025)
Curso Colagem Photoshop - CURA (2020)
Curso Decifrando o Direito à Cidade - Escola da Cidadania, Instituto Polis (2020)
Workshop Conforto Ambiental em Habitação de Interesse Social - FAU USP (2019)
Oficina de Construção em Solo Cimento, Limeira-SP (2017)
Oficina de Assistência Técnica em Habitação de Interesse Social - ATHIS - Campinas (2015)
Workshop Colaborativo Plano Diretor de Campinas (2015)
Apresentação de artigo científico - Pós Graduate Meeting PUC CAMPINAS (2021)
Monitoria - Disciplina Urbanismo C (2019)
Auxilio Projeto Memória Ferroviária FAPESP (2017)
Iniciação Científica - Requalificação Urbana - Bolsista CNPQ (2016-2017)
Iniciação Científica - Requalificação Urbana - Bolsista Reitoria (2015 - 2016)
Espanhol - Avançado
Inglês- Intermediário
projeto: Danilo Pena Maia e Raissa Gattera
Trabalhos desenvolvidos durante o período no escritório Fresta Arquitetura, utilzação de softwares, Autocad, SketchUp e Layout
O de SketchUp, vinculado técnicos com cotas, detalhes e descritivos.




projeto: Arquitetos Danilo Pena Maia e Raissa Gattera
PROJETO EXECUTIVO DE ARQUITETURA E
DESIGN DE INTERIORES

Trabalhos desenvolvidos durante o período no escritório Fresta Arquitetura, utilzação de softwares, Autocad
Desenvolvimento de projetos arquitetônicos na escala de interiores com foco de detalhes construtivos, planta de paginação de pisos e revestimento, descritivos, cubas e áreas molhadas.


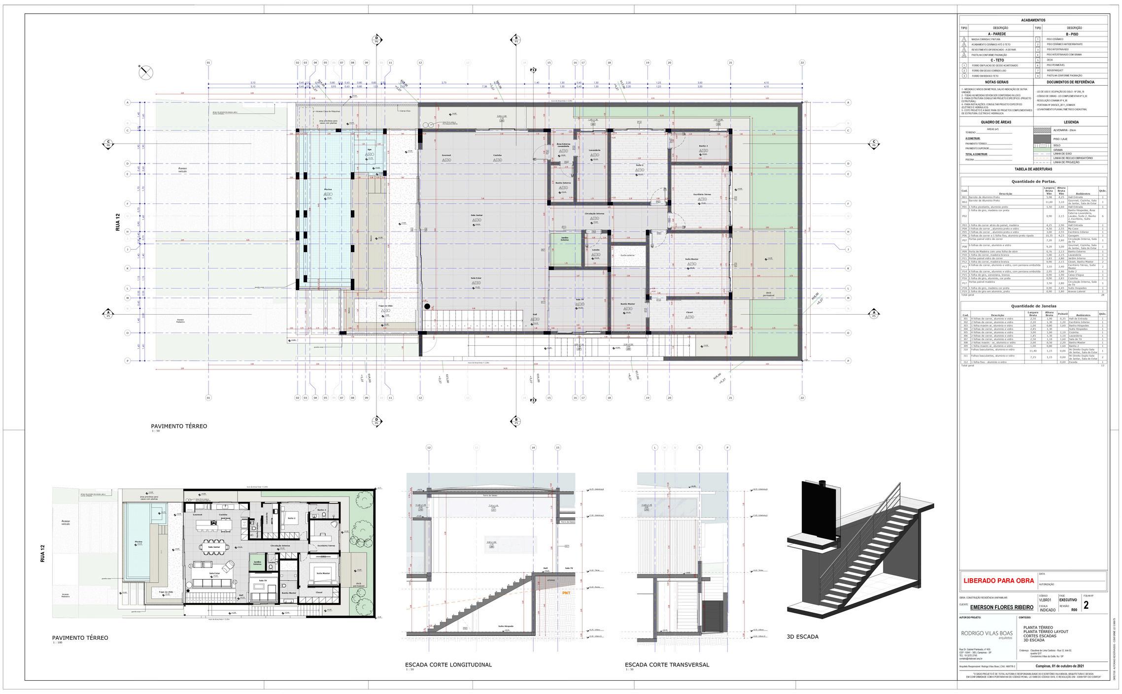
projeto: Arquiteto Rodrigo Vilas Boas
PROJETO DE ARQUITETURA - FASE EXECUTIVO
Trabalhos desenvolvidos durante o período no escritório Vila Brasil e Rodrigo Vilas Boas, utilzação de software Revit


Pranchas de plantas executivas para construção, corte, realizadas no software Revit.
projeto em parceria com Arquiteto Fábio Garcia
PROJETO DE ARQUITETURA - FASE
ANTEPROJETO
Trabalhos desenvolvidos junto ao arquiteto Fábio Garcia no escritório Brique Arquitetura

Projeto de uma reforma e ampliação de uma residência em Campinas, com desenvolvimento de área de lazer, churrasqueira, sauna, piscina e academia. Desenvolvimento de criação, anteprojeto e executivo de arquitetura.



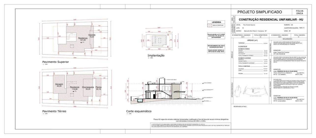
PROJETO DE ARQUITETURA - FASE
PROJETO LEGAL E COMPLETO
Levantamento
projeto: Arquiteto Rodrigo Vilas Boas
Trabalhos desenvolvidos durante o período no escritório Vila Brasil e Rodrigo Vilas Boas, utilzação de software Revit para aprovação em Prefeituras e Condomínios





PÓS-GRADUAÇÃO
DE INTERESSE SOCIAL E ATHIS
Levantamento
ano: 2021
Projeto realizado durante o curso de Especialização em Habitação de Interesse Social e ATHIS



O Projeto foi realizado em durante os anos de 2020 e 2021 na região da Vila Moscou em Campinas, um complexo de núcleos habitacionais populares e ocupações em áreas de risco ao redor do Ribeirão Anhumas e a Rua Moscou.
Foi desenvolvido juntamente com a comunidade da região. Feito levantamento da área com as necessidades e potencialidades foram propostas nas diversas áreas diretrizes projetuais e escolhido pelas lideranças locais a consolidação do Parque Linear do Ribeirão Anhumas.


Setor 1 - Implantação




Imagens Projeto






PROJETO DE ARQUITETURA
POPULAR
Este trabalho foi realizado durante o último ano de graduação como o trabalho de conclusão de curso. Ele foi estruturado em duas escalas, uma em cada semestre, o primeiro na realização de um projeto urbano e o segundo semestre em um projeto de arquitetura.
O projeto urbano começou na escolha de um território que fornecesse conflitos e características sintomáticas de uma grande cidade brasileira, por isso a escolha de Guarulhos como local de estudo e trabalho Foi realizada leitura territorial da cidade analisando a historia, os planos diretores e dados fornecidos pela prefeitura e pelo governo do estado de São Paulo Diante da leitura, o projeto foi proposto em uma área foco de investimentos e de possibilidade de um projeto que consiga atingir de alguma forma toda a cidade por se localizar no centro do município e possuir áreas disponíveis para projetos de infraestrutura e de lazer com relevância social, econômica e ambiental


ESTADO DE SÃO PAULO
MUNICÍPIO DE GUARULHOS



Parque CECAP - A área de atuação ainda é de importância histórica por ser uma das primeiras áreas urbanizadas da cidade e possuir um patrimônio arquitetônico, o conjunto habitacional Zezinho de Magalhães Prado, projeto de Vilanova Artigas e Paulo Mendes da Rocha

O projeto urbano propôs para a área um conjunto de infraestruturas que ao se apropriar das áreas vazias remanescentes do projeto do conjunto habitacional funcionasse como um centro cívico com qualidade para a cidade, com a presença de dois parques reabilitando áreas verdes, e os integrando com o bairro vizinho, com escolas, novas habitações e centros culturais


A proposta individual buscou integrar no projeto, propostas que contemplasse a habitação de interesse social, visto que é uma das grandes questões da cidade de Guarulhos O projeto buscou estruturar o reassentamento de uma área localizada a 900 metros das novas habitações, para manter as características de vizinhanças.
A favela da rua Manaus, possui cerca de 200 residências que foram construídas por cima de um pequeno curso d’água que sofre com alagamentos, despejo de esgoto e perigo de doenças sanitárias constantes


Estudos de topografia, ruídos, insolação e ventos.



A área de reassentamento é localizada ao lado do conjunto habitacional Zezinho Magalhães Prado e faz parte de um conjunto de quatro quadras destinadas a ZEIS no zoneamento É também vizinha ao Parque do Mirante (proposto) e da estação da CPTM (existente)
A quadra buscou a integração de habitação com serviços e comércios, possuindo o térreo voltado à rua com salas comerciais para que os alugueis se revertem ao valor condominial e que promova a segurança e trocas de vivência no âmbito da quadra habitacional Também possui em cada um equipamento público de serviço como creches, escolas infantis e centros de vizinhanças



Anteprojeto Arquitetônico
Os edifícios habitacionais se constituem com blocos de estrutura metálica e vedações de alvenaria de blocos cerâmicos.
As tipologias de plantas são de kitnets, 2 dormitórios e 3 dormitórios, mantendo a mesma estrutura metálica modificando a proporção.









Trabalho realizado durante o segundo semestre do intercâmbio na universidad de Valparaíso, Chile
A disciplina de urbanística buscou analisar os lugares urbanos de influência de equipamentos de transportes, mais especificamente os elevadores urbanos. Em Valparaíso os elevadores urbanos, chamados de ‘ascensores’ são parte do cotidiano e da história, muito utilizado pela necessidade de vencer o grande desnível entre o centro plano e os morros que configuram esse anfiteatro urbano. Abaixo os desenhos de estudo do elevador analisado, o Polanco, único da cidade que promove o deslocamento vertical, os demais possuem deslocamento inclinado por um sistema funicular.







Entre estações - praças, Caminhos e descansos




DISCIPLINA: URBANISMO C
O projeto pensou a área de barra funda como ainda parte do sistema ambiental do entorno do rio Tietê, área de constantes alagamentos por sua condição de várzea. O projeto coloca como ponto norteador os olhos ao rio e o de fazer com que ele deixe de ser apenas uma via expressa marginal e passe a ser visto como o elemento que deve ser preservado por todos, para isso foi pensado um museu do rio e ao seu lado um parque de várzea com o intuito de reestabelecer o relacionamento pacifico entre a cidade, o rio durante os períodos de chuvas
Projeto realizado junto a Daiane Hernandes, Elisa Barroso, Matheus Duarte e Mateus Siqueira
Trabalho realizado na disciplina ‘Urbanismo C’ durante o 8º semestre da graduação
Projeto de reabuilitação urbana no bairro da Barra Funda em São Paulo
Na estruturação urbana, hoje um área de galpões industriais, foi proposto a instalação de espaços para empresas de tecnologias de pequeno porte num espaço mesclado com edifícios residenciais e áreas de ZEIS. E além disso fortalecendo os sistemas de transportes coletivos presentes na área, como o metrô, CPTM e corredores de ônibus, proposto agora em mais quantidade de ruas e avenidas


DISCIPLINA: DESENHO DO OBJETO B
Consiste na construção de um parquinho com um sistemas de jogos construídos de pallets reaproveitados do CEASA, localizado próximo a área do bairro, formando um complexo de brincadeiras sobre uma caixa de areia Os brinquedos, além de seu caráter de baixo custo e baixo impacto por ser feito a partir de um produto praticamente descartável para o CEASA. Foi pensado de maneira de fácil construção, necessitando quase como um passo a passo ou um manual para uma mão de obra não especializada o projeto ainda visa uma possível oficina coletiva no bairro para a manutenção destes brinquedos e a fabricação de outros elementos como móveis feitos pelos próprios moradores

projeto: Daiane Hernandes, Elisa Barroso, João Gilberto, Mateus Siqueira, Matheus Duarte ano: 2017




FAZENDA BRANDINA
DISCIPLINA: PROJETO C
projeto: Barbara Monteiro, Carolina Dantas, Daiane Hernandes, João Gilberto, Mariana Estaregue ano: 2015
Projeto realizado nas disciplinas de “Infraestrutura Urbana”, “Projeto C” e “Paisagismo” durante o 4º semestre da graduação. (2015)
O projeto partiu do parcelamento do solo da área da Fazenda Brandina, localizada as margens da Rodovia Dom Pedro I, onde abriga infraestruturas de serviços de porte regional como o Shopping Iguatemi, hipermercados e que atualmente é palco da consolidação de condomínios residenciais de “alto padrão”, a vizinhança porém abriga uma diversidade de bairros, populares, de classe média e também de pequenas favelas. Além disso é de grande importância ambiental por abrigar um curso de água que deságua no rio Atibaia.
Desta forma, o projeto do parcelamento propõe a concepção de um bairro misto e diverso que reforce a característica ambiental da região. O Projeto de Arquitetura proposto foi de habitações mistas e de interesse social mescladas com equipamentos de lazer e toda sua extensão.


