


UNIVERSITY PROJECT
DESIGNERS AGENCY


















UNIVERSITY PROJECT
DESIGNERS AGENCY
2016 SECTIONS – SKETCH




















UNIVERSITY PROJECT
UNIVERSITY PROJECT
PERUVIAN RESTAURANT
PERUVIAN RESTAURANT
























PROJECT :
PRIVATE VILLA - KUWAIT
DESIGN :







PROJECT :
MARINA APARTMENT
DESIGN :
LEFT ARCHITECTS









COMPANY PROJECTS
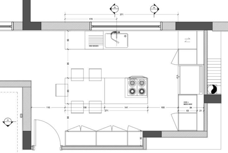
PROJECT :
SKYLINE APARTMENT
FURNITURE PLAN
DESIGN :

COMPANY PROJECTS
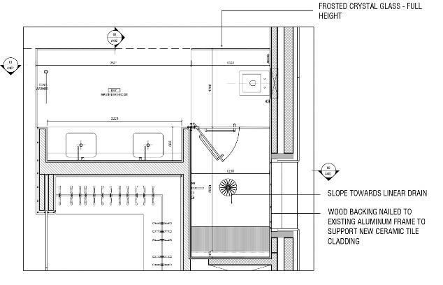
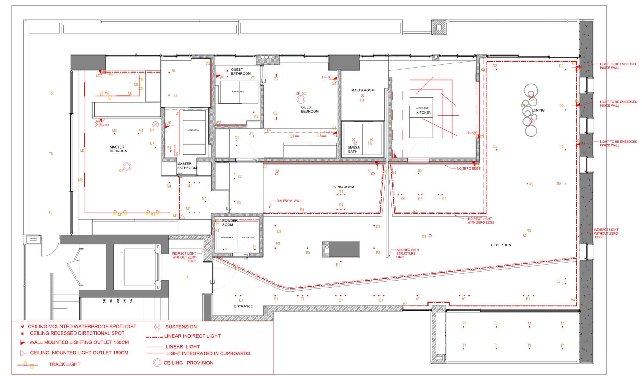
PROJECT :
SKYLINE APARTMENT
LIGHTING PLAN
DESIGN :

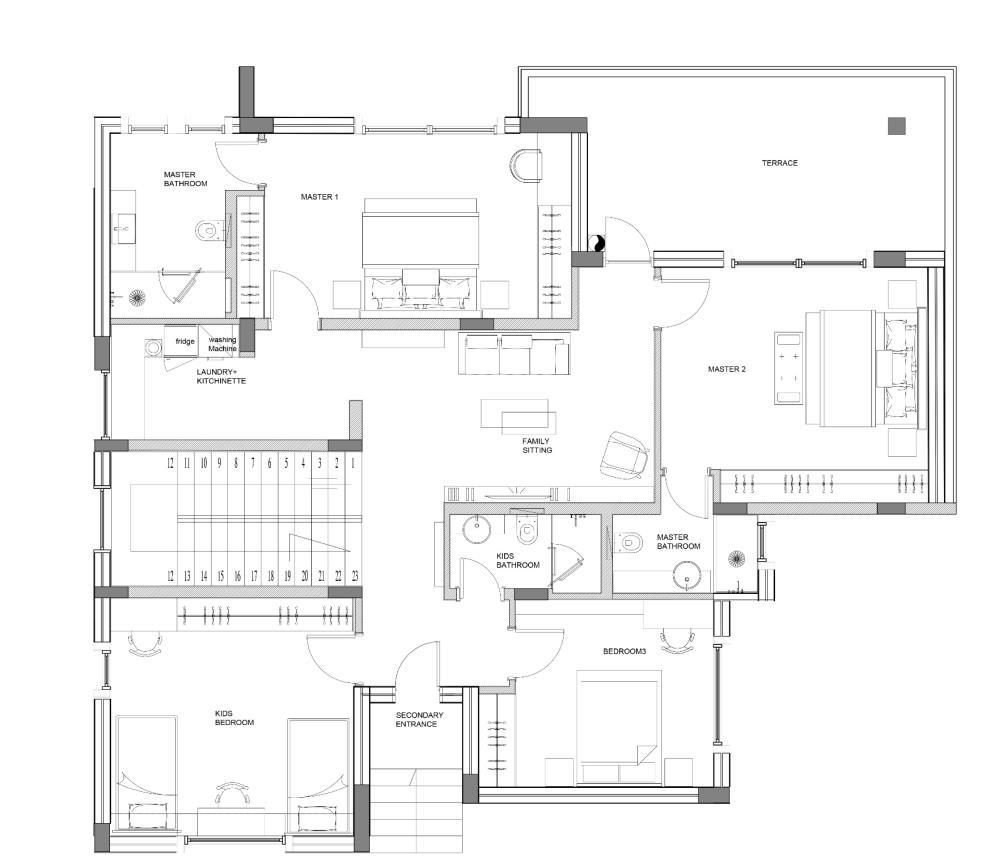
PROJECT :
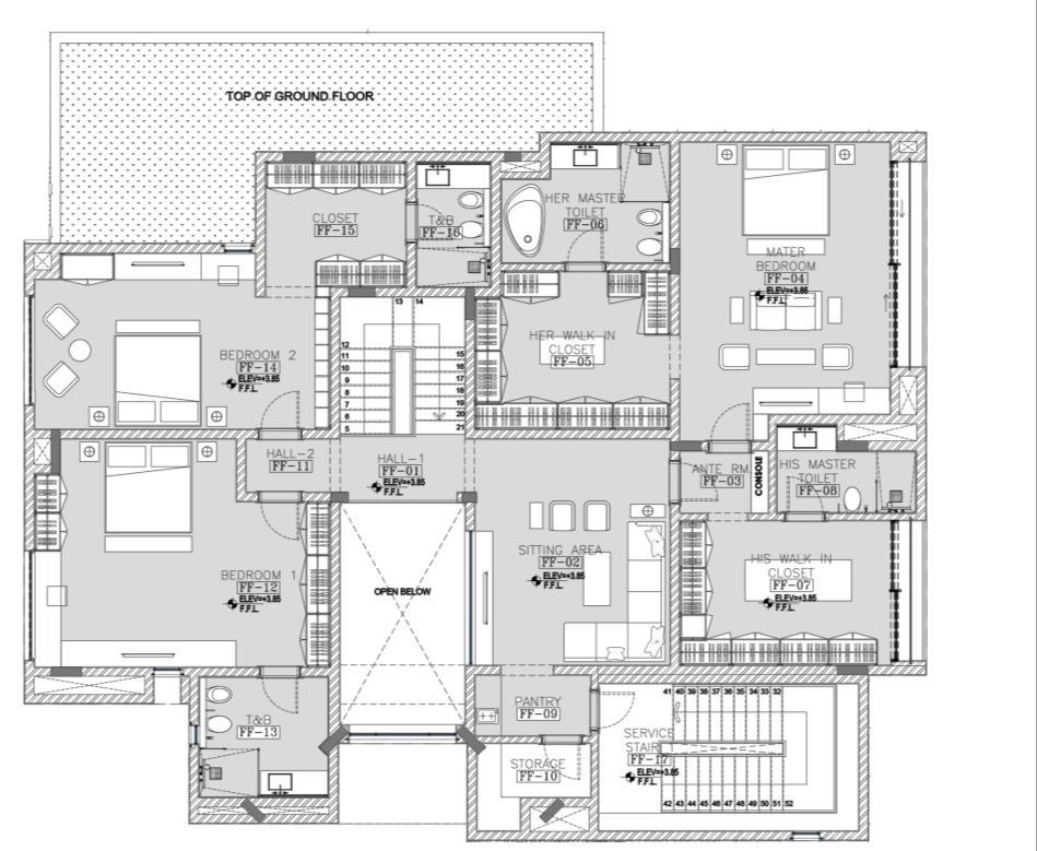
PRIVATE RESIDENCE
RIYADH DESIGN :
SAS CONSTRUCTION-
PERSPECTIVE DESIGN COMPANY PROJECTS






PROJECT :
PRIVATE RESIDENCE
RIYADH DESIGN :
SAS CONSTRUCTION-
PERSPECTIVE DESIGN COMPANY PROJECTS






PROJECT :
PRIVATE RESIDENCE
RIYADH
DESIGN :
SAS CONSTRUCTION-
PERSPECTIVE DESIGN COMPANY PROJECTS









PROJECT :
PRIVATE RESIDENCE
INTERIOR & OUTDOOR
TERRACE
CLIENT :
ANGLESDIFFERING
DESIGN:
JOANNE MOUANNES
GEORGES GHOSN








PROJECT :
PLASTIC SURGERY
CLINIC
DESIGN :






PROJECT :
BAABDAT PRIVATE VILLA




PRIVATE RESIDENCE






























PROJECT :
SKYLINE APARTMENT
FURNITURE + DESIGN
DESIGN :

SKYLINE APARTMENT
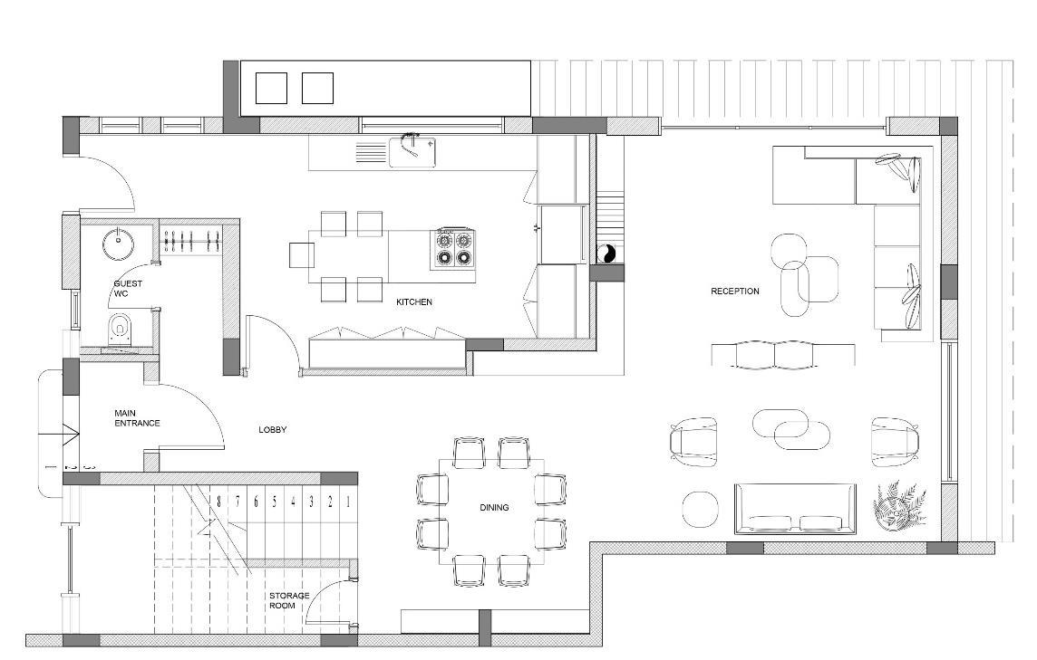
PROJECT :
SKYLINE APARTMENT
DESIGN :
SKYLINE APARTMENT
FURNITURE + DESIGN
KARINA SUKKAR
FURNITURE + DESIGN
JOANNE MOUANNES
DESIGN :
DESIGN :
KARINA SUKKAR
KARINA SUKKAR
JOANNE MOUANNES
JOANNE MOUANNES




PROJECT :
POOL WC
DESIGN :





PROJECT :
MASTER BEDROOM
KIDS BEDROOM
PRIVATE RESIDENCE










PRIVATE RESIDENCE CLIENT:







PROJECT :
ANTHONY BONJA , JEWELRY BOUTIQUE DOWNTOWN
DESIGN :
NS & A – NAJI SFEIR






PROJECT :
CUSTOMIZED PRODUCTS
DESIGN :





PROJECT :
CUSTOMIZED PRODUCTS
DESIGN :






PAINTINGS











