Portfolio
ByJoanBorrellRibas

![]()
ByJoanBorrellRibas



Thisprojectoriginatedfromadesigncompetitioninourstudio.Weformedpairs andcreatedadesignproposalforacrechecateringtochildrenagedzerotosix years.Thewinningdesignwouldbeconstructedbyus,thestudents,in Limpopo,SouthAfrica.
Thedesignemphasisestheimportanceofnegativespaceandefficient constructionmethods.Throughouranalysisofthesite,weobservedhow peopleinSouthAfricafrequentlyutiliseshadedoutdoorareasasmuchas indoorspaces.Consequently,wemadethisourprimaryfocus.
Duringthedesignprocess,weprioritisedplacingthermallymassiveloadbearingbrickwalls,andthenwedelineatedthenegativespacesurrounding them.Thisapproachultimatelydeterminedtheshapeofthebuilding.


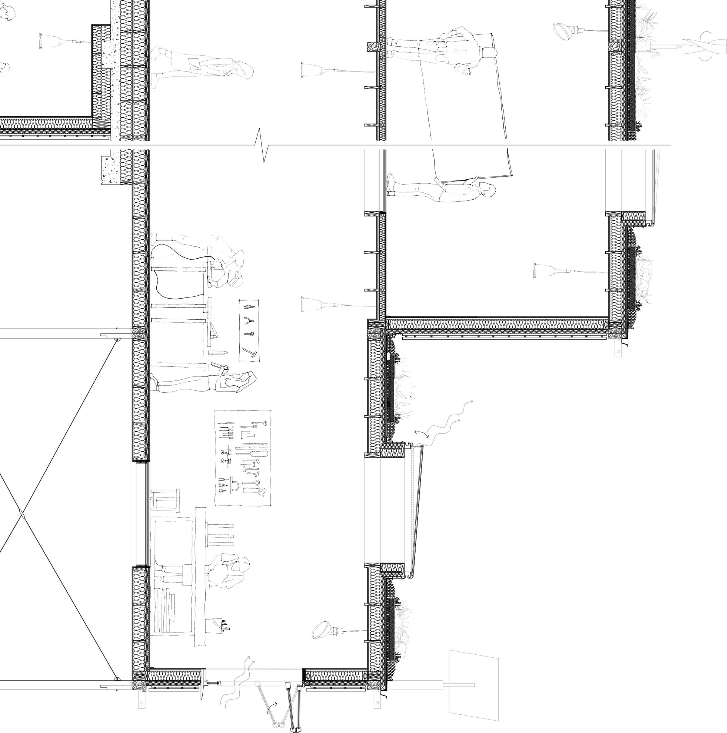
Roof
InteriorOSBceiling-1220x2400x18mm
VLC(VapourControlLayer)
CorkInsulation-280mm Purlin-2000x228x38mm
ExteriorOSBsheathing-1220x2400x18mm Beathermembrane CorrugatedMetalRoof
Envelope
SouthAfricanBrick-222x106x73mm Wallties
Pressedconcretelintel
MetalTplate-175x160mm
PlinthStretcherBrick Dripcap
Doubleglazedwindowunit
DPM(Damp-proofmembrane)
ExteriorOSB-1220x2400x18mm FloorJoists-1000x280x38mm
CorkInsulation-280mm
InteriorOSB-1220x2400x18mm Floorboards-1800x160x15mm
Window Floor Foundation
ConcreteStripFoundation
PostBase(forthefloorjoists)
DPM(Damp-proofmembrane)



Lastyear,Iparticipatedinadesignandbuildstudioattheuniversity.Afteradesign competition,wedrewallofthedetailsandconstructedthewinningcrechein Gamolepo,SouthAfrica,withlimitedconstructionknowledge.Despitechallenges,the experienceexposedustonewculturesandshowedhowarchitecturecanbenefit underprivilegedcommunities.Youcanlearnmoreaboutthisproject@design_build_ studio.














InProject01,wewereputintorandomgroupsofthreeandgiventhetaskof producinga“physicalpoem”ofCoventryasameansofexploringand understandingtheplacewhereourunithasbeenworkingallyearround.Inthis analyticalproject,weweregivenaroutethroughCoventry.Wethenconducted alotofresearchandproducedthreemainpieces:alongdrawingthatlookedat thephysicalqualitiesandnarrativehistory,apoemoffourstanzas,anda physicalpoemthatexploredamuchmorepersonalviewofobservationsand responsestothecity.




“ Whentherearememoriesscatteredinrubble; Emptytheshell.
Andnexttotheclutter,remembersomethingnew, Thenextvesselcanholdliquidtoo.
Wheneachmendblancheslikewavesagainstrock; Salvewiththewind.
Inpatientneglect,itwanglesitstone Ofchirpingbirdsandcarsontheroad.
Whenwatchesstopticking,ribboncaughtinthe loom; Dismantletheirengines.
Forquietpiecescanberearranged, Asculptor’stouch,atransformationstaged.
Whenrelicsslipthroughnature’ssands, Seektorecast.
Mouldedbyhandstooinnocenttocreate Whereechoesofthepastwouldnotobey.”







AmasterplanshowingalargevisionforthenewcityofCoventrywitha gatehousewhichactsasamuchmoredetailedandconciseversionofthe masterplan'sconceptandideas.Thispointofinteractionservesasa spiritualbridgebetweenhumansandtheconstantlychangingwild, fosteringaconnectionthatencouragesreverenceandunderstandingofits preciousness,inspiringbothcurrentandfuturegenerationstocoexistand developharmoniouslywithnature.Thisprojectexplorestheoryof phenomenologyaswellasmuchmoreinnovativematerialslikeAguahoja byNeriOxman.











Cradle-to-cradlefurniturelineinCoventry.Focusingonchairswith traditionaljoineryforeasydisassembly.InspiredbyCriticalRegionalism andCradle-to-Cradleprinciples,thedesignincorporateslocalmaterials andEnglishjoinery(tuskandtenonjoint)toreflectthearea'sheritage. Chairscanbedismantledandcombinedtocreatenewfurnitureitems, suchasbenches.Thisfurniturewillbemanufacturedandsoldinthe factorywhichiscurrentlybeingdesigned.









ThisCradletoCradlefurniturefactoryinCoventryrepurposesanexisting buildingnearthemarket.Servingthepublic,workers,andapprentices,the architectureembodiesthe“wasteequalsfood”principle,showcasingan endlesscycleofproduction.ItincorporatesCradletoCradle(C2C) philosophyandcriticalregionalism,creatingspacesforpublicengagement withfurnituremanufacturing.
Revivingtraditionaltimbercrafting,thestructureusesamodulartuskand tenonjoint,allowingittoexpandandcontractbasedondemand.The 1970sbuilding,strippedtoitsconcreteframe,supportsanewtimber structure.Holesintheconcreteslabbringnaturallighttothegroundfloor, integratingthemarketatmosphere.
Windowsonupperfloorsshowcasebuildingactivity,creatingshapesand formsvisiblefrombelow.Thesewindowsalsoenhanceground-floorlight and,atnight,allowlightfromsocialspacestoenliventheurban environment.















