Architectural design portfolio

Page 1

Port folio

JOSEPH SALAKO
Contents Innovation Center Condominium design Dim Sum House The Eye Arena 4 16 22 28 01 02 03 04
4

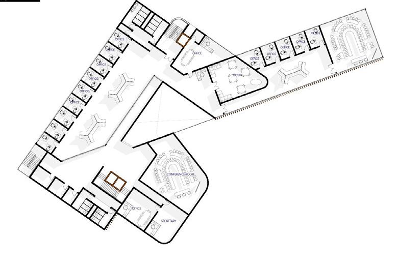
Innovation Center

An oil and gas corporation consulted Crystal white Architects for the design and construction services for the design of an innovation center. The main challenge faced during the decision making process was the pre existing structure on site. Two designs were proposed for proper evaluation of the decision making process, a demolition and a renovation design

Project name: Innovation center

Firm: Crystal White Architects

Roles: Schematic design, Site reconaisance, 3D Modelling, Presentatinn, Documentation for tender and construction, 3D visualisations.

Date: 2020

Status: Completed, 2022

5
6

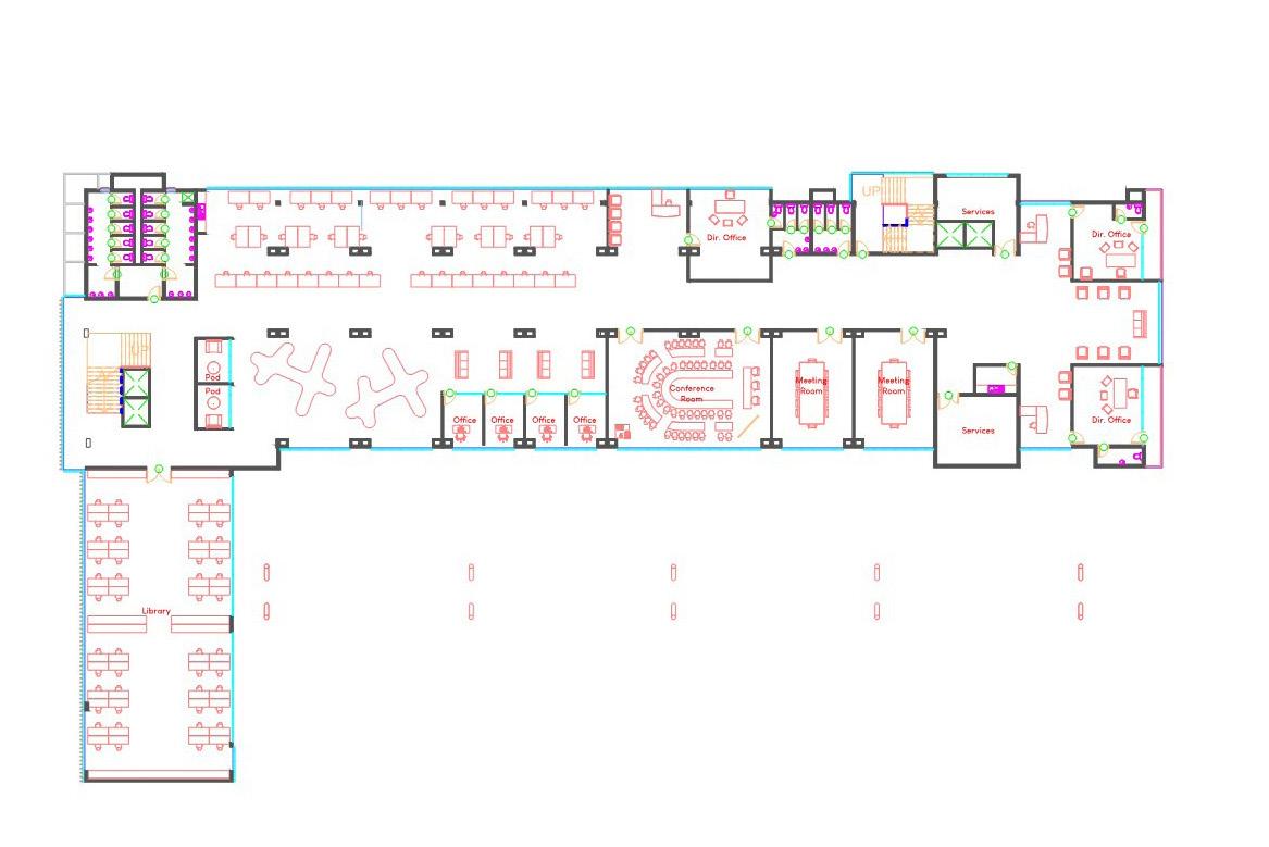
New Build

The demolition option presented an opportunity for a fresh build, optimal material selection, and a clean slate for flexible design with no constraints. One of the main concerns in the existing structures was accessibility and the building-to-site coverage ratio. Energy and daylighting analysis were conducted using Sefaira. As a team, we deduced that the negative implications of demolition would be balanced within a period of 5 years. From that point onwards, it would have compensated for the energy wasted in the demolished building.

7
8
9
10

Renovation

After several presentations and meetings, the client expressed concerns about the negative image associated with demolition, especially considering their position as an oil and gas company. Consequently, they decided to focus more on the possibilities that renovation could provide.

Eventually, a design was proposed, suggesting a partial demolition of less than 10% of the existing structure after conducting a thorough structural test.

11
12
13
14
15

Condomunium design

A condominium design advertisement was posted on the Arcbazar website, seeking a modular 2-bedroom unit that could be prefabricated and then assembled on-site. I took charge of the entire project, from schematic design to BIM modeling, interior design, and visualization. The submitted designs included both the unit and its arrangement.

My main focus in this design project was to excerise my visualisation and interior design skills as it was a scalable project

The project received an honorable mention, you can view the details of the project at the following link: https://www.arcbazar. com/public-building-design/project/brackets-eighth-streetparcel-quot3quot-united-states

Location: United States

Date: 2021

16
17
18
19
20
21
22

Dim Sum House

A competition for the design of a Japanese restaurant was announced on the Arcbazar website. I took on the challenge and submitted a design that was solely created by me and the design secured second place in the competition.

In developing the design, my primary focus was on meticulous modeling and maximizing the spatial layout. I aimed to create an environment that seamlessly blended the elements of Japanese aesthetics with the functionality and ambiance required for a restaurant setting.

The project was situated in the United States, and you can view the details of my design at the following link: https://www. arcbazar.com/commercial-building-design/project/brackets-eastmeets-west-dim-sum-house-united-states.

Location: United States

Date: 2021

23
24
25
26
27

The Eye Sports Arena

For my final year MSc Architecture project, we were given the task of selecting a site and designing a project that aligned with our research topic. At that time, my area of interest revolved around sports and its impact on the socio-cultural dynamics of the surrounding environment.

I delved into exploring the relationship between sports and its influence on the immediate community, considering aspects such as social interaction, community cohesion, and urban development. Through extensive research and analysis, I aimed to understand how sports can contribute to the overall well-being and quality of life in a given area.

Location: Lagos, Nigeria

Date: 2018

28
29
30
31
32
33
34
35
36
37
Fin THANK YOU

Turn static files into dynamic content formats.

Create a flipbook
Issuu converts static files into: digital portfolios, online yearbooks, online catalogs, digital photo albums and more. Sign up and create your flipbook.