Skip to main content

Portfolio | James M. Muse III

Page 1

VISUAL PORT FOLIO

JAMES M. MUSE III

GRADUATE | FAY JONES SCHOOL OF ARCHITECTURE + DESIGN

1 CONTACT | 321.537.7040 | JAMES13MUSE@GMAIL.C0M

SPRING STREET SOCIAL CLUB

ADAPTIVE

5TH

SEEING THE FOREST

4TH

SUNKEN SPRINGS LIBRARY

4TH

A PARALLEL PARTITION WALL

ARCHITECTURE OF THE CITY

5TH

OF CONTENTS
TABLE
PROJECT
RE-USE
FAYETTEVILLE | ARKANSAS
YEAR
SKETCHES IN ROME
ROME | ITALY
YEAR
PILOT PROJECT HOT SPRINGS
ARKANSAS
DESIGN-BUILD
|
YEAR
INTEGRATED DESIGN PROJECT HUNTSVILLE
ARKANSAS
|
YEAR
DESIGN BUILD INSTALLATION AUSTIN | TEXAS SUMMER 5TH YEAR 3-22 47-48 33-42 43-46 23-32 2

SPRING STREET SOCIAL CLUB

AIMS TO BE A NODE THAT DRAWS INDIVIDUALS FROM THE POPULAR BAR DISTRICT ON DICKSON STREET TO SPRING STREET. THIS ADAPTIVE REUSE PROJECT TAKES A HISTORICALLY REGISTERED BUILDING AND REPURPOSES THE ORIGINAL FACADE TO CREATE A PROGRAM THAT WOULD COINCIDE WITH IT’S IMMEDIATE CONTEXT. THIS OLD BRICK BUILDING SITS IN A LIVELY PART OF TOWN THAT HOUSES LIVE MUSIC, THEATER, AND DINING EXPERIENCES. AS A REACTION TO THESE PROGRAMS, THIS BUILDING HAS BEEN REPURPOSED INTO A JAZZ CLUB WITH A HYBRID PERFORMANCE SPACE THAT WILL CATER TO LIVE MUSIC PERFORMANCES, STAND-UP COMEDY, AND PLAYS.

3
SPRING STREET SOCIAL CLUB 2024 | FAYETTEVILLE, ARKANSAS 4

THIS ANALYSIS FOCUSES ON THE ACTIVITIES THAT PEOPLE ACTIVITIES MOSTLY TAKE PLACE AT NIGHT AND WERE CATAGORIZED AND EATING, AND THEATER OR PERFORMING ARTS. THIS PROJECT SHOULD BE IN LINE WITH ONE

5 DIAGRAM | MAPPING ACTIVITIES
IN IMMEDIATE CONTEXT

PEOPLE OR VISITORS MAKE IN THE IMMEDIATE CONTEXT. THESE CATAGORIZED IN THREE SUBJECTS, LIVE MUSIC, DRINKING THIS DIAGRAM SUGGESTS THAT THE PROGRAM OF THIS OR ALL OF THESE THREE CATAGORIES.

6

THE SITE ANALYSIS CREATED AN UNDERSTANDING THAT THERE IS SOMETHING MISSING FROM THE NIGHTLIFE IN THIS BAR DISTRICT OF FAYETTEVILLE. THERE WAS A NEED FOR A LIVE MUSIC VENUE THAT WOULD ENCOURAGE VISITORS TO DANCE TO THE MUSIC. THIS PROGRAM INTEGRATES LIVE JAZZ MUSIC AND A HYBRID PERFORMANCE SPACE FOR OTHER EVENTS TO CURATE AN EXPERIENCE THAT WOULD ENCOURAGE VISITORS TO GET UP TO DANCE AND LAUGH WITH FRIENDS OR FAMILY. BELOW ARE SOME INITIAL CONCEPT SKETCHES MADE ON SITE WHILE GATHERING DATA FOR THE SITE ANALYSIS.

THE RIGHT SIDE OF THIS PAGE SHOWS THE EVOLUTION OF HOW THE SPACES WERE DETERMINED ON TRACE PAPER. THERE WAS AN INITIAL URGE TO RESPECT THE ORIGINAL FACADE AS IT IS AND LEAVE IT UNTOUCHED. THE WINDOWS AND DOORS WERE PUNCHED OUT LEAVING THE REST OF THE FACADE BARE AND UNTOUCHED. THRESHOLDS WERE CREATED FROM THESE OPENINGS IN THE FACADE. INSPIRED BY A PRECEDENT IN BROOKLYN, THE DOMINO SUGAR REFINERY, OFFSETS FROM THE ORIGINAL WALL RESPECT THE BUILDING’S FACADE. SPACES WERE DEFINED BY THE THRESHOLDS AND CELEBRATE THE PATINA OF THE ORIGINAL FACADE BY CREATING OPENINGS THAT SHOW THE OLD AND BEATEN BRICKWORK.

CONCEPT SKETCHES

7 PROCESS SKETCHES

THE INVISIBLE CTIES MODELING EXERCISE PLAYED A HUGE ROLE IN THE DEVELOPMENT OF THE GEOMETRIES IN THIS PROJECT. THESE RAMPSHAPED GEOMTRIES ARE INSPIRED BY A SHORT STORY IN THE BOOK INVISIBLE CITIES BY ITALO CALVINO CALLED MAURILLIA. THE 1/8‘‘ MODEL WOULD LATER REPLACE THE ORIGINAL BUILDING MODEL WITH AN ACRYLIC FACADE THAT WOULD REPRESENT THE ORIGINAL FACDE.

THE STORY ABOUT THE CITY MAURILIA TELLS HOW A NEW CITY WAS BUILT ON TOP OF AN EXISITING CITY. THE NEW CITY IS UNRECOGNIZABLE TO THE OLD ONE, BUT THE INHABITANTS ASK THE VISITORS TO LOOK AT POSTCARDS OF THE OLD CITY. IF THE VISITORS RESPECTED THE OLD CITY AS IT WAS THE INHABITANTS WOULD WELCOME THEM INTO THE CITY.

THE MODEL IS AN ABSTRACT REPRESENTATION OF THIS STORY BY BEING SET BACK FROM THE ORIGINAL FACADE, RESPECTING THE PLANES OF THE FACADES LIKE THE POSTCARDS IN THE STORY. THE RAMP SHAPED FORM OF THE WOODEN BLOCKS REPRESENT THE NEW CITY WHICH IS UNRELATED TO THE ORIGINAL CITY, OR THE ORIGINAL GEOMETRIES OF THE FACADE. THE OPPOSING GEOMETRIES DO NOT RELATE TO EACHOTHER BUT COMPLIMENT EACH OTHER BY NOT INTERFERING WITH OR SHOWING DOMINANCE OVER EACH OTHER.

THESE GEOMETRIES CONTINUED INTO THE DEVELOPEMNT OF THE ROOF FORM. THE FORM BECAME A PLAY ON A SAWTOOTH ROOF AND IS INTENDED TO COMPLIMENT THE SPACES BELOW.

8 AXONOMETRIC DRAWING
INVISIBLE CITIES MODEL | MAURILIA SITE MODEL
9
INTERIOR PERSPECTIVE 10
ELEVATION | SOUTH SECTION
11
| LONGITUDINAL
12
SECTION PERSPECTIVE 13
14 INTERIOR PERSPECTIVE
CHOISY DRAWING 15
DIAGRAM | PROGRAM SPECIFIED
16
DIAGRAM | DEMO SCHEME
17
18 INTERIOR PERSPECTIVE

SECTION | TRANSVERSE

19
PLAN
SITE
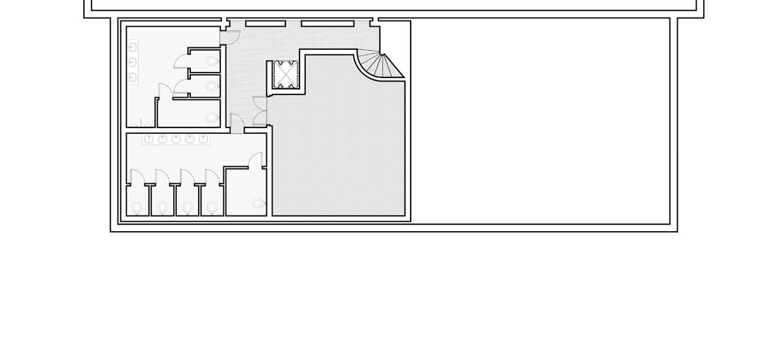
20 PLAN | GROUND FLOOR PLAN | SUB-LEVEL
21
22 EXTERIOR PERSPECTIVE
THE FOREST 2023 | HOT SPRINGS, ARKANSAS 23
SEEING

SEEING THE FOREST

IS A PILOT PROJECT FOR THE WHIPPLE FAMILY FORESTRY CENTER LOCATED ON THE GROUNDS OF GARVAN WOODLAND GARDENS IN HOT SPRINGS ARKANSAS. ROSS AND MARY WHIPPLE PROVIDED A GENEROUS DONATION TO THE UDBS STUDIO TO CREATE AN EDUCATION CENTER FOR PEOPLE TO LEARN MORE ABOUT THE PRESERVATION OF FORESTS AND WHAT FORESTRY CAN PROVIDE FOR INDIVIDUALS. THE PROJECT’S PURPOSE IS TO TEST THE MATERIALS OF THE WHIPPLE PROJECT (NAIL LAMINATED TIMBER, SHOU SHUGI BAN CLADDING, AND METAL BREAKING FOR THE ROOF) WHILE ALSO CATERING TO THE ETHEREAL EXPERIENCE OF THE CENTRAL ARKANSAS FOREST.

24

THE MOTTO OF THIS STUDIO PROJECT WAS IN THE FOREST, OF THE FOREST. EVERY DESIGN DICISION WAS INTENDED TO REPRESENT THE SUBLIME SENSORY EXPERIENCE OF THE FOREST WHILE PILOTING MATERIALS FOR THE WHIPPLE CENTER. THE TACTILE WORKS OF RICHARD SERRA BECAME OUR MAIN INSPIRATION. SERRA’S WORK PROVIDES AN EXPERIENCE THAT COMPELLS VEIWERS TO INTERACT WITH HIS PROJECTS AND IS A PRIME EXAMPLE OF THE EXPERIENCE THAT WE WERE TRYING TO CATER TO OUR VISITORS. WE STARTED WITH A DESIGN CHARRETTE THE BACK FROM OUR MID REVIEW THAT CALLED FOR A 1/8’’ SCALE MODEL TO REPRESENT THE FORM OF OUR NEW PROJECT. THE SMALL PLYWOOD MODELS WOULD REPRESENT A SMALL SPACE FOR AN INDIVIDUAL TO OCCUPY. THIS SMALL DESIGN COMPETITION DETERMINED THE FORM OF WHAT WOULD BE AN OBELISK IN A BOARDWALK WITHIN GARVAN WOODLAND GARDENS.

THIS PARTICULAR STUDIO REQUIRED MANY MODEL BUILDING EXPERIEMENTS TO IRON OUT THE DETAILS OF THE PROJECT. FOR THE DURATION OF THE SEMESTER, WE MAINLY WORKED ON MOCKUPS FOR A 1/3’’ SCALE MODEL, AND A 1 TO 1 PARTIAL SCALE MODEL. I HELPED MANAGE THE CONSTRUCTION OF THE BOTH PROJECTS, BUT MY MAIN FOCUS WAS ON THE ENCLOSURE, OR BREAKING SYSTEM THAT WOULD PROTECT THE NLT. WHILE HELPING MY TEAM MEMBERS I WAS ALSO TESTING A BREAK AND SOLDERING TEST ON BOTH OF THE SCALE MODELS TO DEVELOP A DETAIL FOR THE CONSTRUCTION OF PROJECT.

DIAGRAM | SITE MAPPING

DIAGRAM | STAKED SITE HIGHLIGHTED

DIAGRAM | EXPERIENCE 25
1/1 SCALE MODEL 1/8’’ DESIGN CHARETTE 1/3’’ MODEL
26 SITE PLAN
DIAGRAM | BREAK & SOLDERED TEST
27
EXTERIOR PERSPECTIVE 28

DIAGRAM | CALDDING DETAILS

DIAGRAM | CALDDING DETAILS

29
30 INTERIOR PERSPECTIVE
31
EXTERIOR PERSPECTIVE 32

SUNKEN SPRINGS LIBRARY

APPROACHES THE UNIQUE “L” SHAPED SITE IN A DISCRETE MANNER. THIS PROJECT’S PRIMARY MASSES ARE STRATEGICALLY NESTLED INTO THE NORTH SIDE OF THE SIGHT SO THEY DON’T MEET THE URBAN EDGE. THE INTENTION OF PUSHING AWAY FROM THE URBAN EDGE WAS TO CREATE A TRANQUIL EXPERIENCE FOR READERS AND TO NOT DISTRUPT THE URBAN FABRIC OF HUNTSVILLE.

33
Occupy Site Subtract from Mass Sink Supporting Masses Raise Library Mass SUNKEN SPRINGS LIBRARY 2022 | HUNTSVILLE, ARKANSAS 34

DIAGRAM | DRAINAGE & GEOMETRY

DIAGRAM | HVAC & DAYLIGHT ANALYSIS

DIAGRAM | ACOUSTICS

35

THE SITE ANALYSIS WAS CONDUCTED IN GROUPS OF THREE TO GENERATE A WIDE RANGE OF DATA TO WORK WITH. I FOCUSED ON THE WATER DRAINAGE AND ACOUSTICS OF THE SITE. USING PARAMETRIC SOFTWARE I WAS ABLE TO GENERATE AN ANALYSIS OF THE SLOPE OF THE SITE AND FOUND THAT THERE IS HUGE PATENTIAL FOR WATER CAPTURE ON THE SITE. USING A DECIBEL METER, SOUND LEVELS AROUND THE SITE WERE CAPTURED DURING OUR SITE VISIT. BOTH OF THESE ANALYSI SUGGESTED THAT PUSHING OUR BUILDING TOWARDS THE BACK OF THE SITE WOULD CATER A MORE PEACEFUL EXPERIENCE FOR READERS WITH THE POTENTIAL TO CAPTURE RAINWATER.

THE TITLE OF THE STUDIO, IDS (INTEGRATED DESIGN STUDIO), CHALLENGED STUDENTS TO CREATE A PRACTICAL BUILDING THAT COMBINED HVAC, LIGHTING, AND STRUCTURE INTO THEIR PROJECT. IN THE DEVELOPEMENT OF THE PROJECT, ALL STUDENTS CONSULTED WITH HVAC AND LIGHTING EXPERTS, ALONG WITH STRUCTURAL ENGINEERS. THERE WAS ALSO A NEED TO DEVELOPE A FACADE THAT WOULD SHADE THE INTERIOR OF THE PROJECT FOR SUSTAINABILITY AND ECONOMIC BENEFITS.

A SERIES OF MASS TIMBER PRODUCTS MADE UP THE MAJORITY OF THE STRUCTURE OF THE PROJECT. MANY GLUE LAMINATED BEAMS AND COLUMNS SUPPORTED THE BUILDING MASSES WHILE TWO CUSTOM GLUE LAMINATED TRUSSES WERE UTILIZED TO ACHIEVE A MASSIVE CANTILEVER. A GALVANIZED STEEL SKIN PROTECTED THE MASS TIMBER STRUCTURE AND A CUSTOM GLASS FAÇADE SHADED THE INTERIOR OF THE PROJECT. THE CUSTOM GLASS FACADE APPLIED AN OPAQUE GLASS PANEL SYSTEM THAT IS HELD UP BY STEEL FASTENERS AND GALVANIZED ALUMINUM CLIPS. TO TAKE ADVANTAGE OF THE DRAINAGE, A STONE RETAINING WALL LINES THE SOUTH EDGE OF THE SITE TO BE UTILIZED AS A MAIN COLLECTION SOURCE FOR WATER RUNOFF.

1. 1/2” Steel Fasteners 2. 1/2” Steel Connector 3. 1/4“ Galvanized Aluminum Supports 4. 1/4” Aluminum Bolts 5. 1/4” Custom Aluminum Clips 6. 1/4“ Opaque Glass Louvers 5 4 6 3 1 2 1. 8” x 30“ Glue Laminated Beam 2. 2” Wood Pegs 3. 1/2” Steel Bolts 4. 1/4“ Steel Plate Connector For Beam 5. 1/4” Steel Plate Connector for Truss Chord 6. 18“ 24” Glue Laminated Truss Chord 7. 1/4” Steel Plate Connector to Webs 8. 9“ x 11” Glue Laminated Web Diagonals 1 2 3 4 5 3 6 4 5 4 3 7 8 3 3 36 CRITICAL DETAILS
5’8” 13’ 4’ 8” 10’ 1st Floor Finish Floor Bottom of Truss Cord 2nd Floor Finish Floor Bottom of Top Truss Cord Ceiling Elevation Cistern Drain to Sanitary Sewer Pump Water Fountain Pump 1. Parapet Cap Flashing 2. Steel Facade 3. 1/4“ Opaque Glass Panels 4. 1/4” Galvanized Aluminum Supports 5. 1/4” Custom Aluminum Clips 6. 5 Ply CLT Wall 7. 5” Rigid Insulation 8. 4 “ Screws 9. Weather Membrane 10. 1/2” Sheathing 11. Steel Girt 12. Cut 2 x 4 13. Aluminum Sill 14. 1/2” Steel Fasteners 15. Tongue & Groove Decking 16. Aluminum Flashing 17. 1/2” Steel Connector 18. 1/4” Steel Plate Connector for CLT 19. Steel Bolt 20. 8” x 36” Glue Laminated Beam 21. So t Drip Edge 22. 2 x 4 Wood Connection 23. # 57 Rock 24. Polished Concrete Floor 25. 4” Drainage Pipe 26. Concrete Footing 27. ETPO Waterproof Membrane 28. 8” x 30” Glue Laminated Beam 29. 5 Ply CLT Roof 30. 7” Rigid Insulation 31. ETPO Waterproof Layer 32. Spray Foam Insulation 33. Typical Stud Wall 34. 18” x 24” Top Truss Chord 35. 9” x 1” Diagonal Truss Web 36. Blocking 37. HVAC Unit 38. 2 x 4 Light Truss 39. 18” x 24” Bottom Truss Chord 40. 24” x 24” Glue Laminated Column 41. 1/2” Steel Plate Connection 42. 2” Rigid Insulation 43. 8” Concrete Retaining Wall 44. Weather Membrane 45. Masonry Stone Wall 46. Reglet 1 2 3 4 5 14 6 7 10 11 8 12 9 16 13 18 19 20 15 21 22 17 23 25 24 35 34 39 26 31 30 29 28 40 42 41 27 45 44 46 43 38 32 33 37 36 SECTION DETAIL 37
RENDERED BAY 38
39
EXTERIOR PERSPECTIVE 40
|
41
ELEVATION
LONGITUDINAL
EXTERIOR PERSPECTIVE 42
43

A PARALLEL PARTITION

THE A PARALLEL PARTITION WALL

IS A SMALL BUILT PROJECT THAT I COMPLETED OVER A SUMMER FOR THE OFFICE DURING MY INTERNSHIP WITH A PARALLEL. THE AIM WAS TO CREATE AN AESTHETICALLY PLEASING VISUAL BARRIER BETWEEN THE OFFICE ENTRANCE AND THE KITCHENETTE. A PARALLEL’S PRINCIPAL, RYAN BURKE, CREATED A SIMPLE DESIGN THAT UTILIZES LEFTOVER HEMLOCK WOOD PLANKS FROM THE OFFICE INTERIOR AND 1/4’’ DIAMETER COPPER COUPLINGS TO KEEP EVEN SPACING FROM THE TWO WOOD PLANKS WHILE HIDING 3 INCH SCREWS THAT HOLD THEM TOGETHER.

ALL OF THE CONSTRUCTION WAS COMPLETED IN THE ATTACHED VACANT RENTAL SPACE OF OUR OFFICE. I STARTED BY CUTTING DOWN THE TIMBER IN TWO SEPARATE DIMENSIONS. THE BOARDS WENT THROUGH A HAND-MILLING PROCESS TO ACHIEVE DESIRED DIMENSIONS. THEY WERE ALL SANDED BY HAND TO PREPARE FOR THE PAINTING PROCESS. THE PLANKS WERE PRE-DRILLED TO AVOID THE FUTURE POLYACRYLIC COAT FROM BEING TARNISHED. THE PROCESS OF PAINTING THE POLYACRYLIC COAT THEN LIGHT SANDING WAS REPEATED THREE TIMES TO ENSURE THE GRAIN OF THE TIMBER REALLY STANDS OUT. INSTALLATION REQUIRED THE USE OF MORE HANDS. WITH THE HELP OF RYAN, I MADE SURE EACH BOARD WAS PLUM AND ALIGNED TO THE ONES ON THE CEILING ALLOWING EITHER OF US TO HOLD IT IN PLACE BEFORE DRILLING IT INTO POSITION.

CONSTRUCTION DOCUMENTS FOR REFERENCE

TEXAS 44
WALL 2023 | AUSTIN,

HAND-MILL & PILOT HOLES

ASSEMBLE PLANKS WITH COPPER COUPLINGS DOUBLE CHECK FOR INCONSISTENCIES BUILD PROCESS 45
COAT WITH POLYACRYLIC
FINISHED PRODUCT 46
47

ARCHITECTURE OF THE CITY

48
2023 | ROME, ITALY

Turn static files into dynamic content formats.

Create a flipbook