Portafolio arquitectura. Martínez Morales Jesús

Page 1

PORTAFOLIO.

Arquitectura Jesús Martínez Morales

1. CURRICULUM VITAE

EXPERIENCIA LABORAL

A. Levantamientos arquitectónicos y propuestas de proyecto

Participación en el programa “MODULO DE ATENCIÓN Y ASESORÍA TÉCNICA PARA LA VIVIENDA” en conjunto con la Coordinación de Servicio Social y Practica Profesional, FA, UNAM.

Programa enfocado al tema de vivienda popular atendiendo a comunidades de escasos recursos en la Ciudad de México y Área conurbada Jesús Martínez Morales

Formación Académica

Facultad de Arquitectura, UNAM

j.mtz.mrls@gmail.com

Español nativo

Ingles intermedio

Actividades

1. Búsqueda de personas con necesidad de proyecto de vivienda

2. Levantamiento arquitectónico y fotográfico de vivienda

3. Captura en AutoCAD de vivienda estado actual

4. Diseño de proyecto arquitectónico; plantas Arq., cortes longitudinales, transversales y fachadas

5. Diseño de proyecto de instalaciones sanitaria, hidráulica y eléctrica

6. Diseño de proyecto Estructural;

• Plantas y detalles estructurales; detalles en planta y sección de armado de losa (bayonetas y bastones de refuerzo), armadode trabes y/o cerramientos

• Planta de cimentación y detalles de armado de zapatas, castillos y/o columnas

7. Elaboración de memoria descriptiva

8. Entrega de archivos en formatofísico y digital (Planos 90x60cm,Memoria descriptiva, CD) a solicitante

B. Coordinador en Servicio Social

Participación como coordinador en el programa “MODULO DE ATENCIÓN Y ASESORÍA TÉCNICA PARA LA VIVIENDA” en conjunto con la Coordinación de Servicio Social y Practica Profesional, FA, UNAM. Actividades

1. Platica con Coordinadores

2. Contacto con el vinculo y reunión con solicitantes en Chimalhuacán

3. Platica de inducción a brigadas de iniciación al Servicio Social

4. Contacto con el vinculo para recaudar formatos de registro de solicitudes de vivienda

5. Coordinación de Brigada de iniciación de SS en Chimalhuacán en conjunto con profesores, para el levantamiento arquitectónico y fotográfico de viviendas por parte de brigadistas

6. Asesoría de proyectos a brigadistas

7. Revisión de entregas y respaldo digital de productos de brigada

Con mi trabajo como coordinador contribuimos a entregar 13 proyectos de vivienda para la comunidad de Chimalhuacán y como proyectista 6 más en otros sectores del Estado de México.

TESIS DE GRADO

Centro Universitario de Música Ixtapaluca, CUMI

Proyecto de plantel alterno a la Facultad de Música de la UNAM ubicado en el Municipio de Ixtapaluca en el Estado de México enfocado a la formaciónde profesionistas en el campo de la música en tres niveles;

Técnicoprofesional

Profesional asociado

Licenciatura

HERRAMIENTAS

Word

Power Point

Excel

Publisher

Curso “Bajemos la temperatura: De la ciencia climática a la acción” del WorldBank Group a través de Coursera

Curso “Diseño Asistido por Computadora 3D; AutoCAD”en el Centro de Cómputo “Augusto H. Álvarez”, Facultad de Arquitectura, UNAM

Curso “Taller de Computación en línea” en el Centro de Cómputo “Augusto H. Álvarez”, Facultad de Arquitectura, UNAM

Cursos en línea “Revit Básico ”,“Revit Estructuras”, “MEP Instalaciones Hidrosanitarias”, “MEP Instalaciones Eléctricas”, a través de Dwisest

1. CURRICULUM VITAE ……………………..…….……….

2. PROYECTO DE TESIS……………………………………3

Centro Universitario de Música Ixtapaluca,Estado de México

1. Planos Arquitectónicos; Conjunto …………..….…….5

2. Planos Estructurales; Área académica/Auditorio.….

3. Planos Hidráulicos; Conjunto……………………….…. 9

4. Planos Sanitarios; Conjunto……………………......…

5. Planos de Iluminación;Auditorio ….……………...…

6. Planos de Acabados; Auditorio …………...……...….

Proyecto de mejoramiento de vivienda

Exposición
FORMACIÓN COMPLEMENTARIA RECONOCIMIENTOS Curso Fotografía matemática, CCH, UNAM
Fisica, CCH, UNAM CONTENIDO
1
7
10
11
12 AutoCAD Revit Photoshop Sketchup Twinmotion (TexturasRenders)
DIGITALES CUMI
13
3. SERVICIO SOCIAL …………………………………..….

2.

PROYECTO DE TESIS.

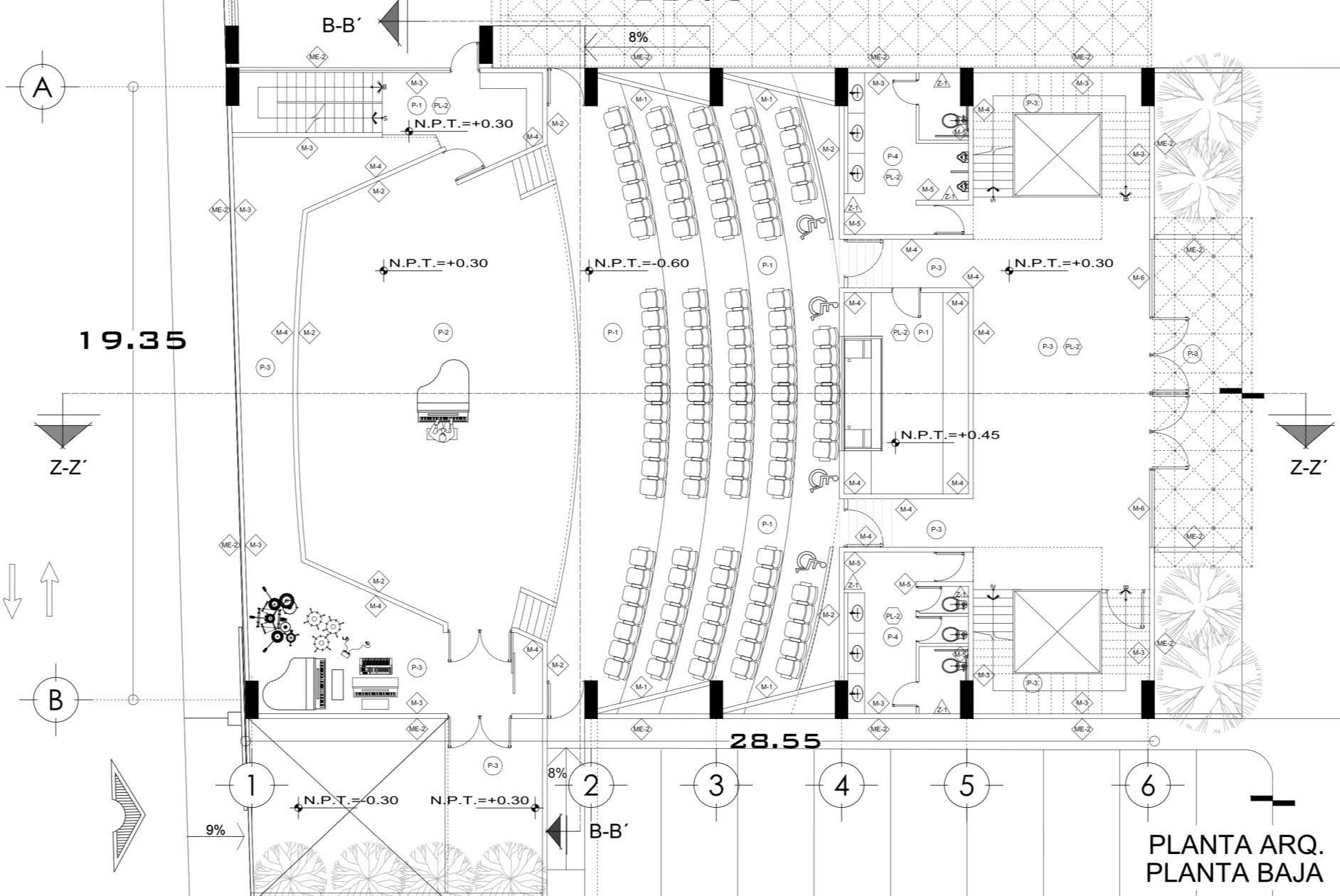
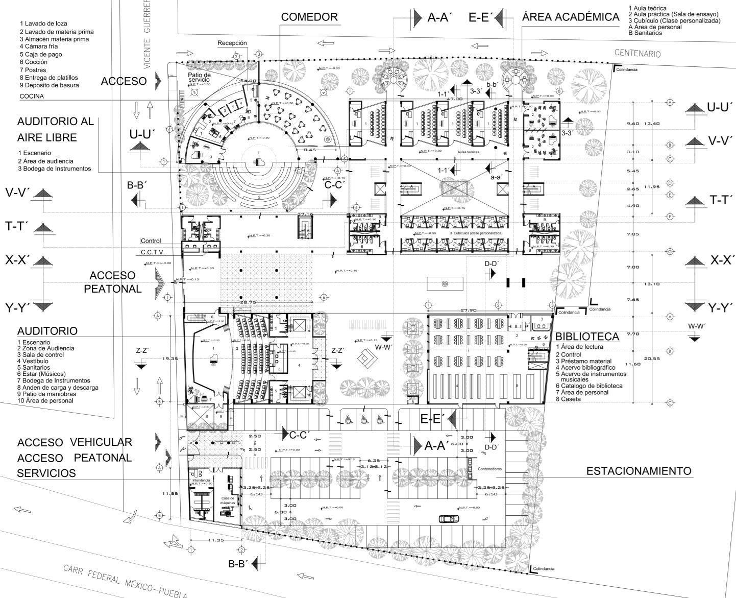
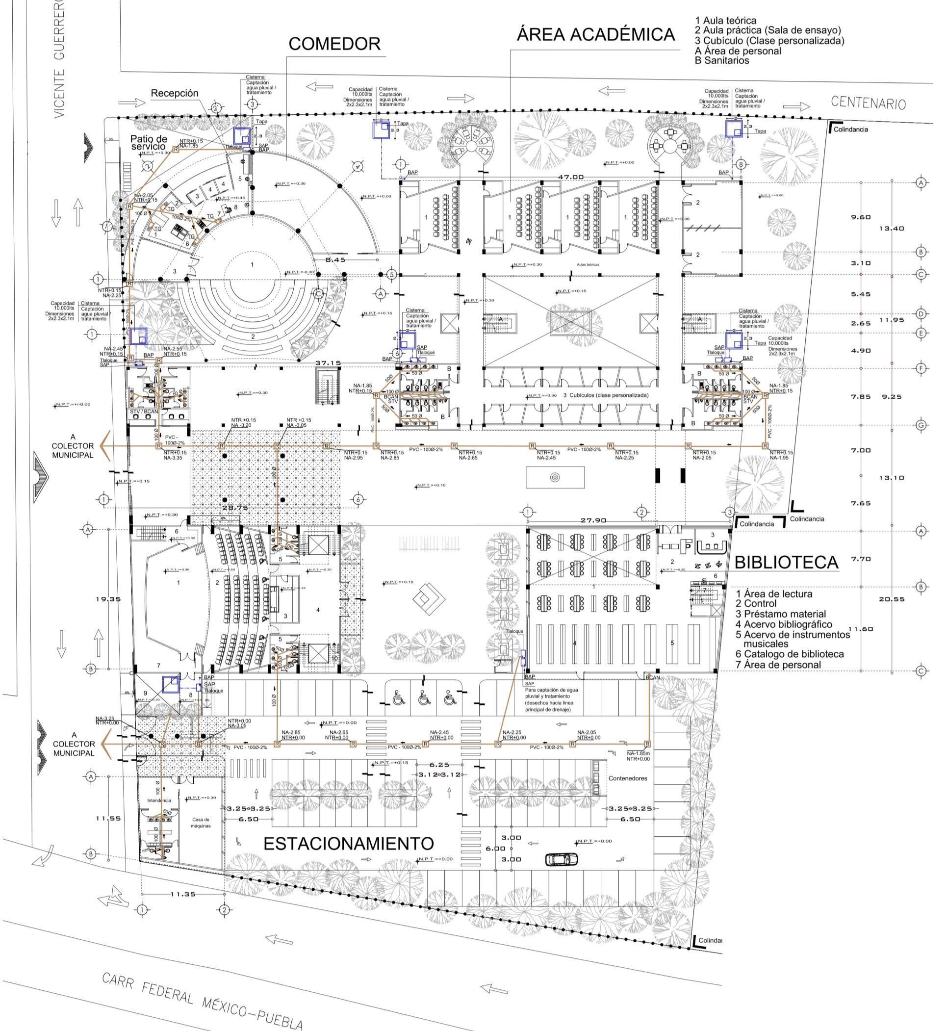
CUMI Centro Universitario de Música Ixtapaluca. Edo. De México.

1 Planta de Conjunto. Planta baja

6 Corte Transversal A-A´

Planta de Conjunto 1er Nivel

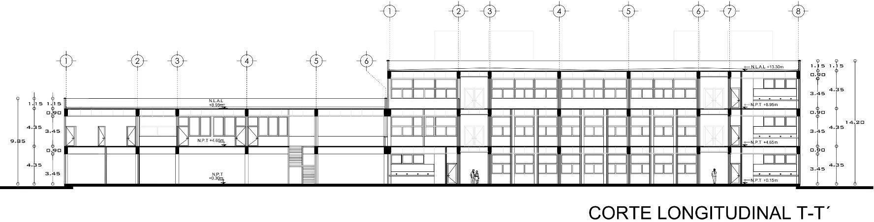
Corte longitudinal X-X´

2 7 A r q u i t e c t ó n i c o s
Planta de Conjunto. 2do Nivel 3 Corte Transversal B-B´ 4 Corte Longitudinal Y-Y´ 5
8
9 Corte longitudinal U-U´
P l a n o s d e c o n j u n t o 2.1
Corte Longitudinal V-V´

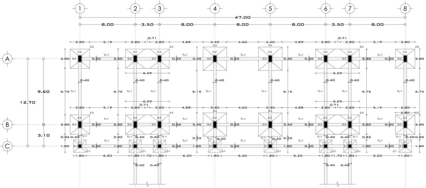
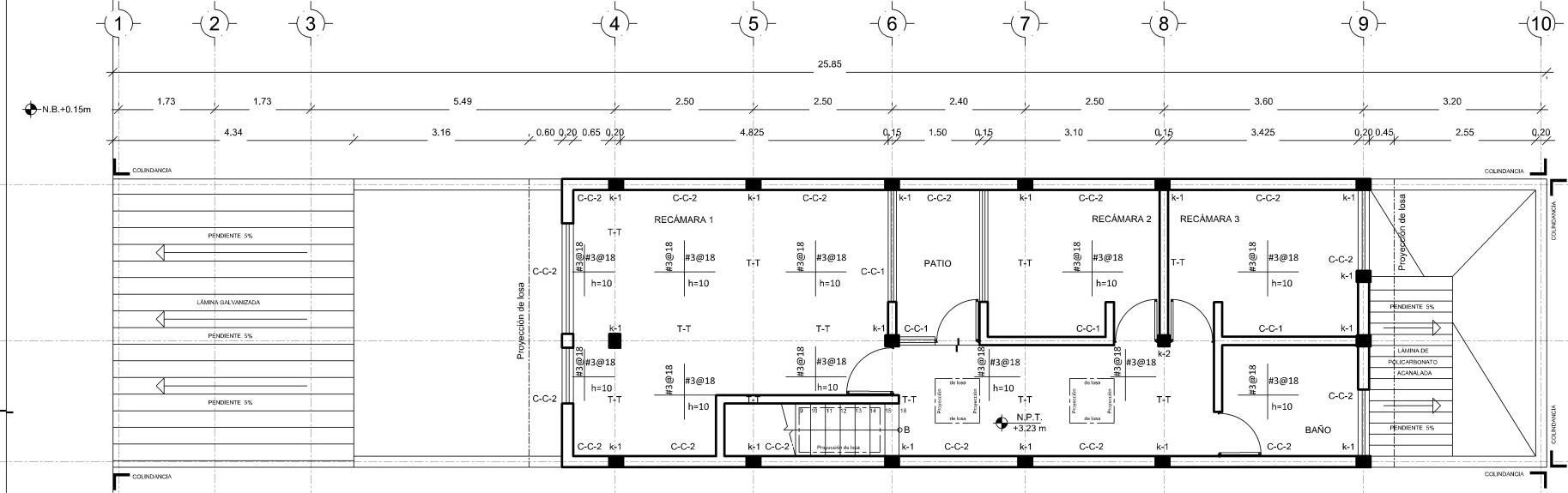
Planta de Cimentación. Edificio Clases Grupales

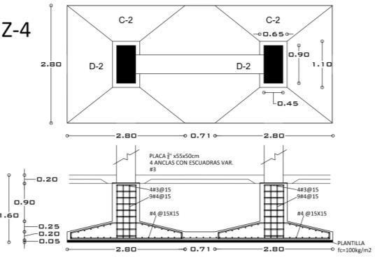
Planta Estructural tipo Edificio Clases Grupales 10

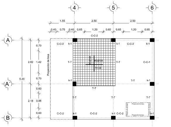
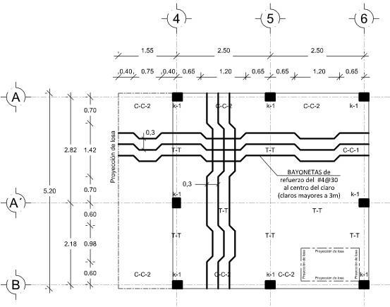
Planta Estructural Armado de losa Planta tipo

Corte Esquemático de Losa de Entrepiso

Detalles Estructurales Corte por Fachada. Edificio 11 12 13 14 9 E s t r u c t u r a; Á r e a a c a d é m i c a
E s t r u c t u r a; A u d i t o r i o 2.2 Planta Estructural; Planta baja 15
Columna C-1 16 Muro M-1 17 Unión viga-viga cantos iguales 21 Unión viga-viga cantos desiguales 22 Unión Columna-Viga de acero 20 Perfiles de acero IPR 19 Clases Grupales
DETALLES
H i d r á u l i c o s 2.3
2.4 S a n i t a r i o s
I l u m i n a c i ó n 2.5

PANEL ACUSTICO FONOABSORBENTE

MICROPERFORADO DE MADERA

Ideaperfo modelo Micro 05 Para muros y plafones

PISO DE MADERA MACIZA ROBLE ROJO

AMERICANO-RED OAK

A c a b a d o s
2.6

3. SERVICIO SOCIAL

“MODULO DE ATENCIÓN Y ASESORÍA TÉCNICA PARA LA VIVIENDA” en conjunto con la Coordinación de Servicio Social y Practica Profesional, FA, UNAM.

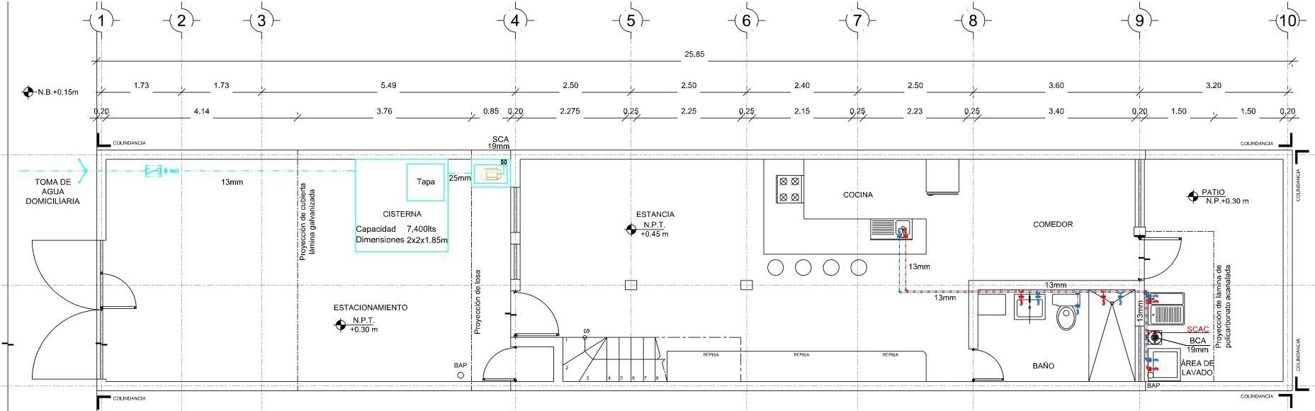
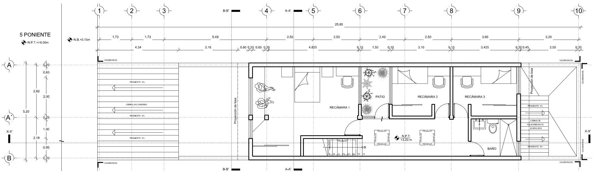
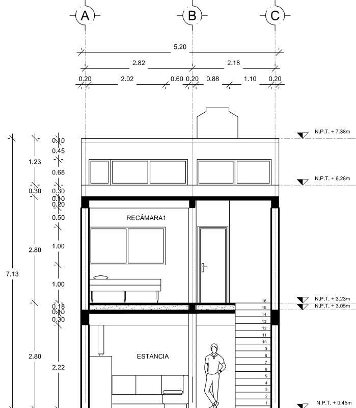
PROYECTO DE MEJORAMIENTO DE VIVIENDA

UBICACIÓN

Av. Moctezuma Mz 61 Lt 3, San Miguel Xico 2ª secc, Valle de Chalco Solidaridad, Estado de México, C.P. 56613

Superficie total (terreno): 134.40 m

Superficie total (construcción propuesta):

142.74 m2

Uso de suelo: Habitacional

A r q u i t e c t ó n i c o s
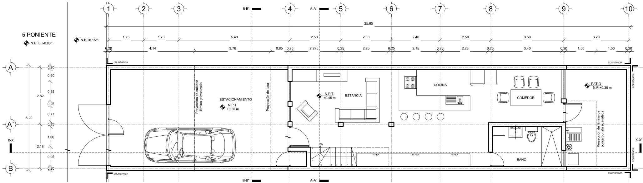
E s t a d o a c t u a l PLANTA BAJA 5 PLANTA BAJA ESTADO ACTUAL 1 FACHADA INTERIOR 3 FACHADA 2 CORTE A-A´ 4 PLANTA ALTA 6 CORTE LONGITUDINAL X-X¨ 7
E s t r u c t u t a l e s I n s t a l a c i o n e s
INST. HIDRAHULICA 8
INST. SANITARIA 9
INST. HIDRAHULICA 1O PLANTA ALTA ESTRUCTURAL 11 DETALLES ESTRUCTURALES 12
PLANTA BAJA.
PLANTA BAJA.
PLANTA BAJA.
Arquitectura Jesús Martínez
PORTAFOLIO.
Morales

Turn static files into dynamic content formats.

Create a flipbook
Issuu converts static files into: digital portfolios, online yearbooks, online catalogs, digital photo albums and more. Sign up and create your flipbook.